99 Parkdale Ave.#
Last updated: 2021-12-09 · ID: D07-12-19-0176
Summary#
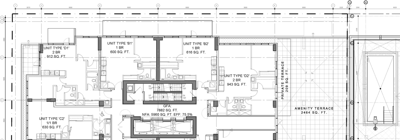
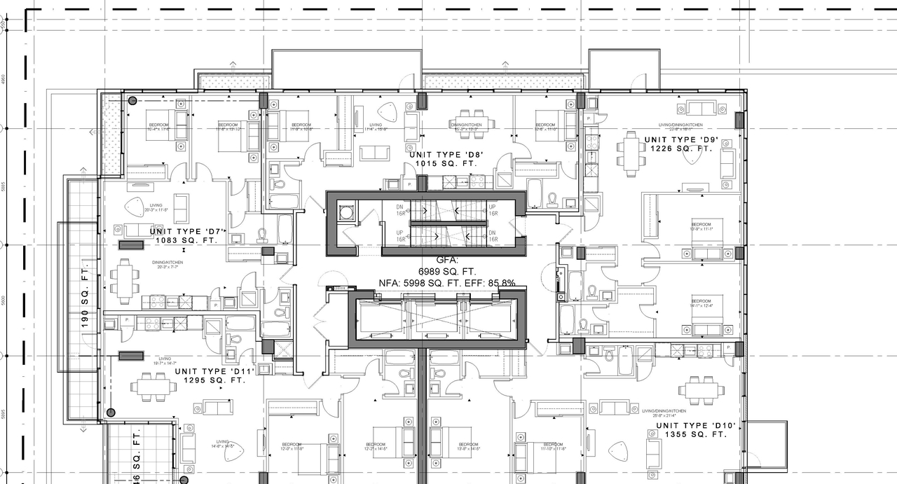
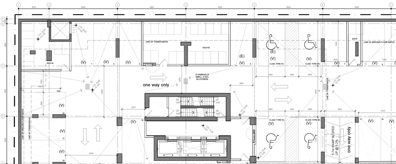
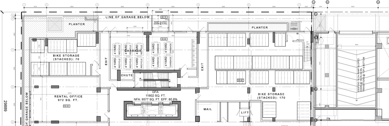
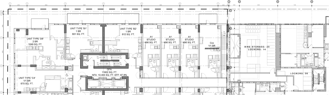
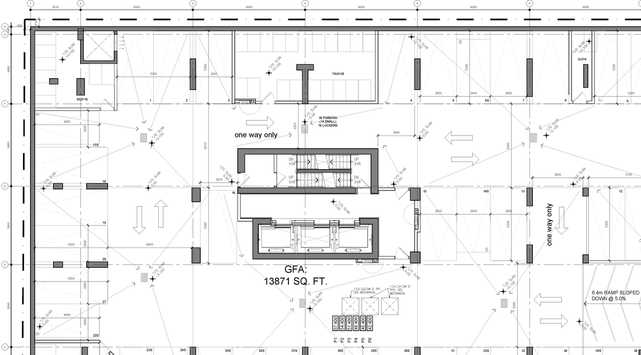
A Site Plan Control application to construct a 28-storey high-rise apartment building with 240 dwelling units and 220 vehicular parking spaces. Access to the underground parking garage is proposed to be shared with the abutting development on 121 Parkdale Ave from the rear lane.
Status
Post Approval (Agreement Registered - Securities Held)
Building Scale (Max.)
Based on elevation drawings. Values may be approximate. See sources for exact figures.
High-rise · 30 storeys
· 93.9 m
Data Quality Note
Height was partially estimated using visual scale. This may be approximate.
Renders#
Location#
Select a marker to view the address.
Site Plans, Elevations and Floor Plans#
Additional Information#
| Date Initiated | 2019-10-23 |
| Ward | Ward 15 - Jeff Leiper |
Documents#
Related Projects#
| Project | Last Updated | Date Initiated |
|---|---|---|
99 Parkdale Ave.
D02-02-25-0024 | 2025-09-25 | 2025-04-22 |












