700 Cope Dr.#
Last updated: 2021-05-12 · ID: D07-12-19-0144
Summary#
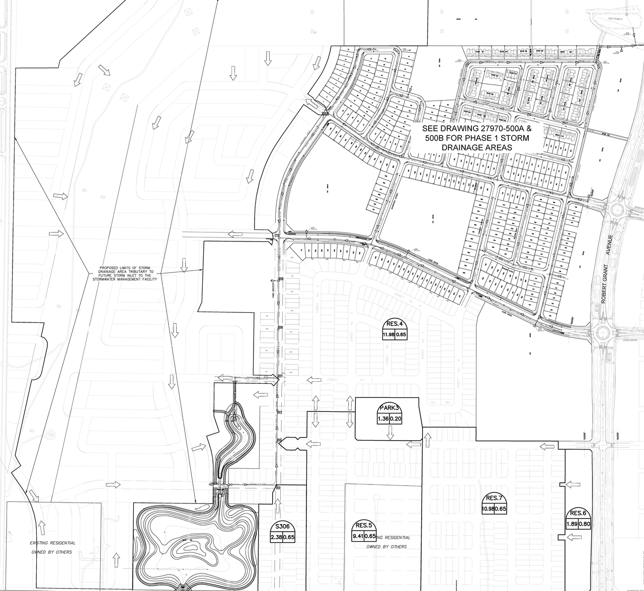
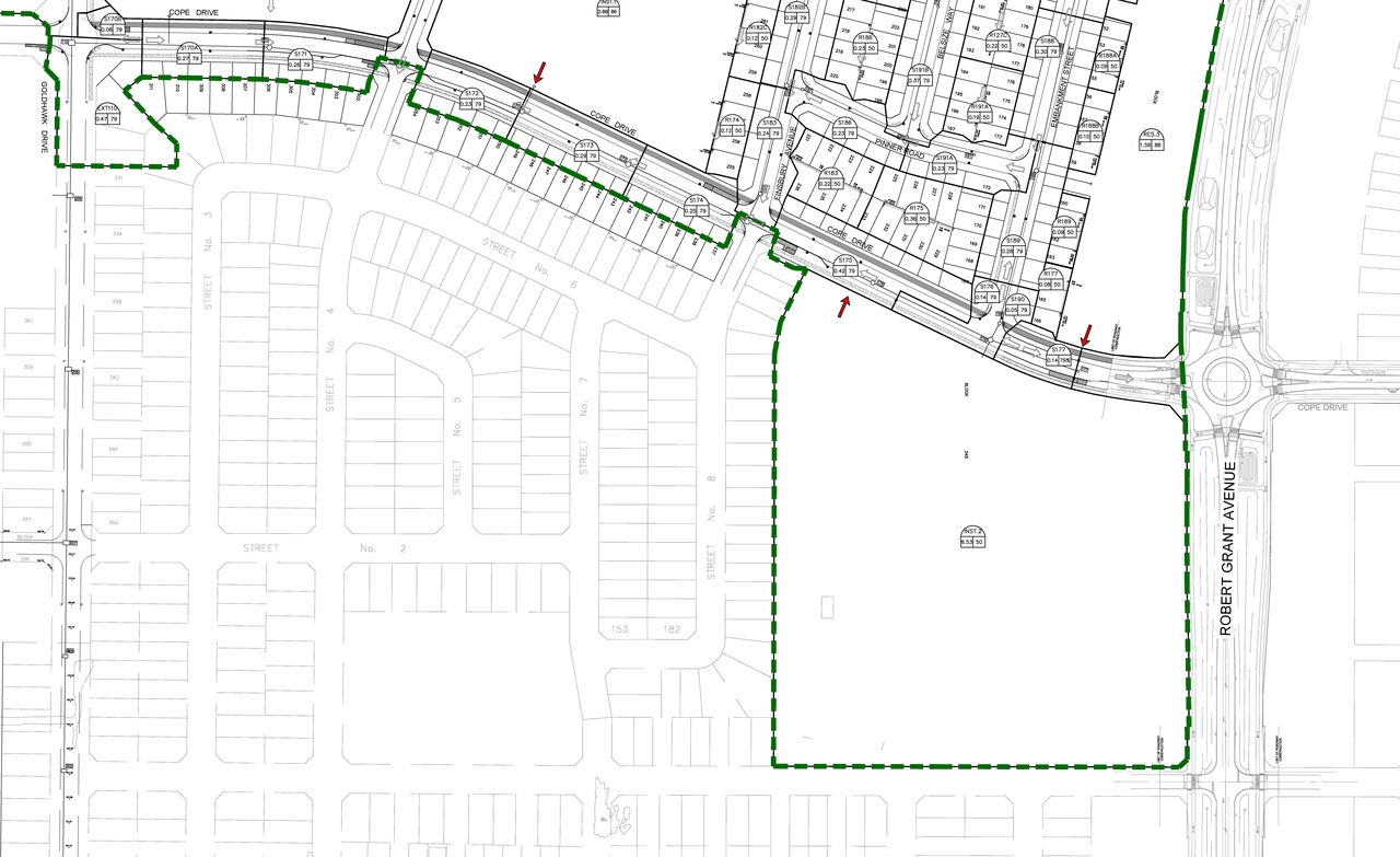
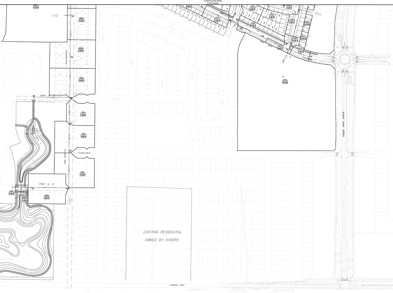
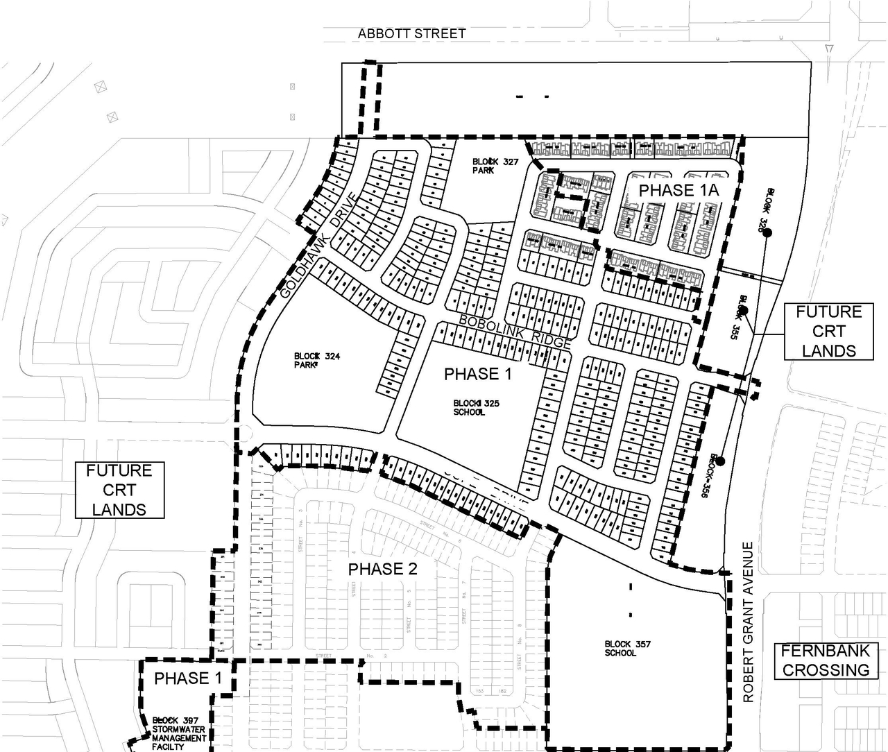
Site Plan Control application to permit the development of a four-storey OCDSB secondary school approximately 8,415 square metres in size. The school will include 64 classrooms, an outdoor track, two football/soccer fields, a surface parking lot and a bus loop within the site.
Status
Post Approval (Agreement Registered - Final Legal Clearance Given)
Building Scale (Max.)
Based on elevation drawings. Values may be approximate. See sources for exact figures.
Mid-rise · 4 storeys
Data Quality Note
Text was extracted using optical character recognition. This may introduce artifacts or misreads.
· 16 m
Data Quality Note
Text was extracted using optical character recognition. This may introduce artifacts or misreads.
Location#
Select a marker to view the address.
Site Plans, Elevations and Floor Plans#
Additional Information#
| Date Initiated | 2019-08-01 |
| Ward | Ward 6 - Glen Gower |


















