339-343 Gloucester St.#
Last updated: 2019-08-23 · ID: D07-12-19-0140
Summary#
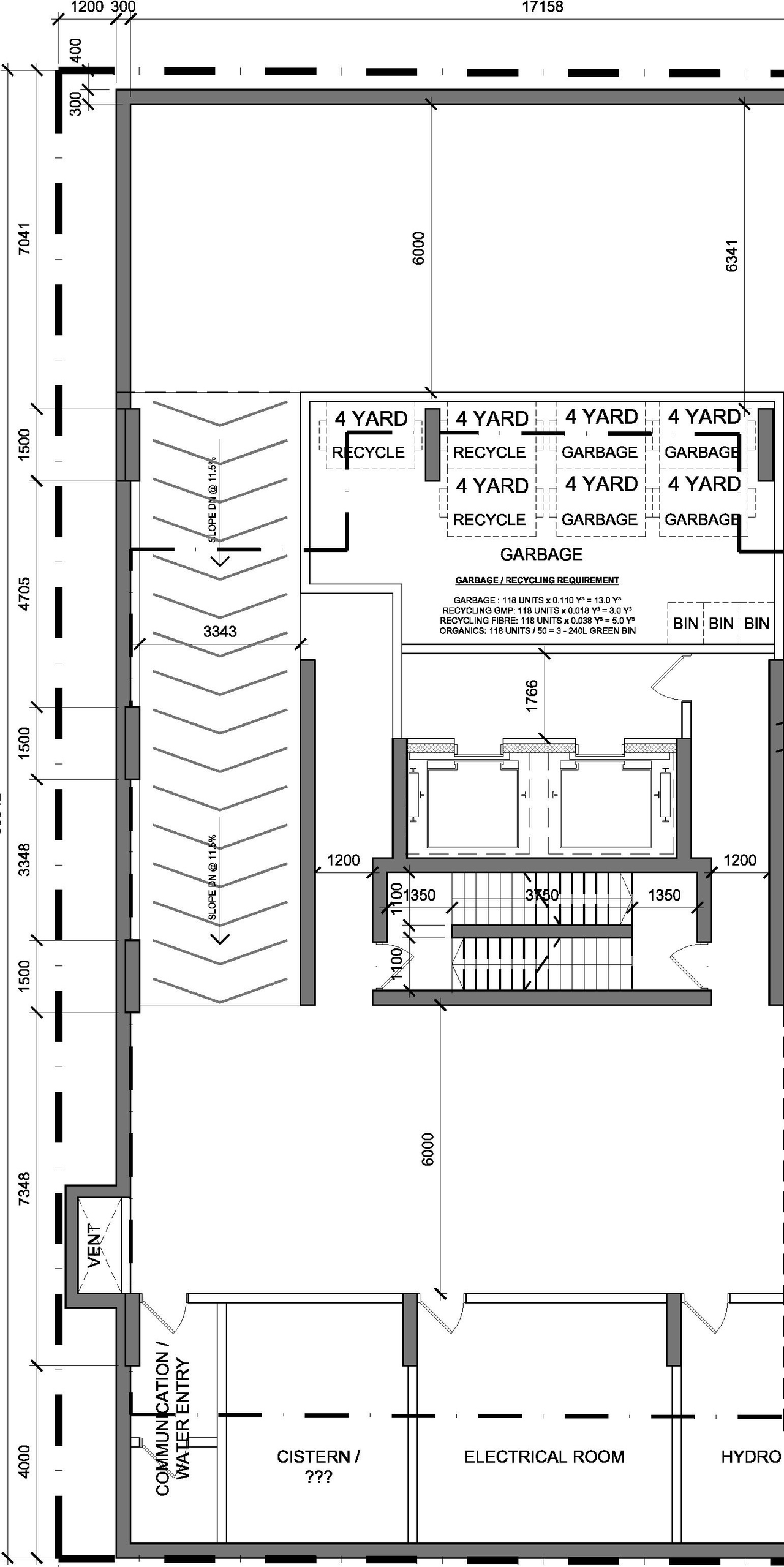
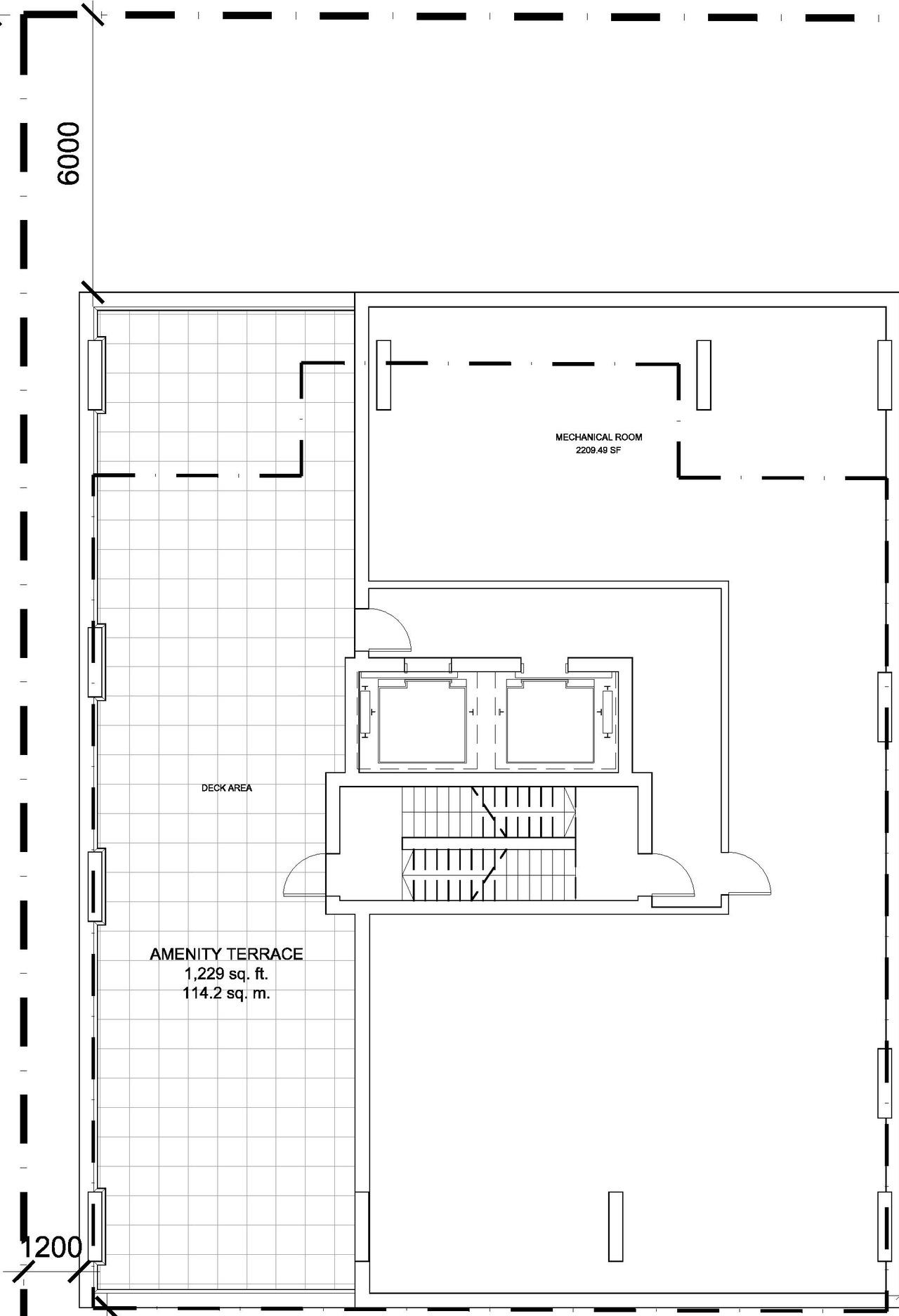
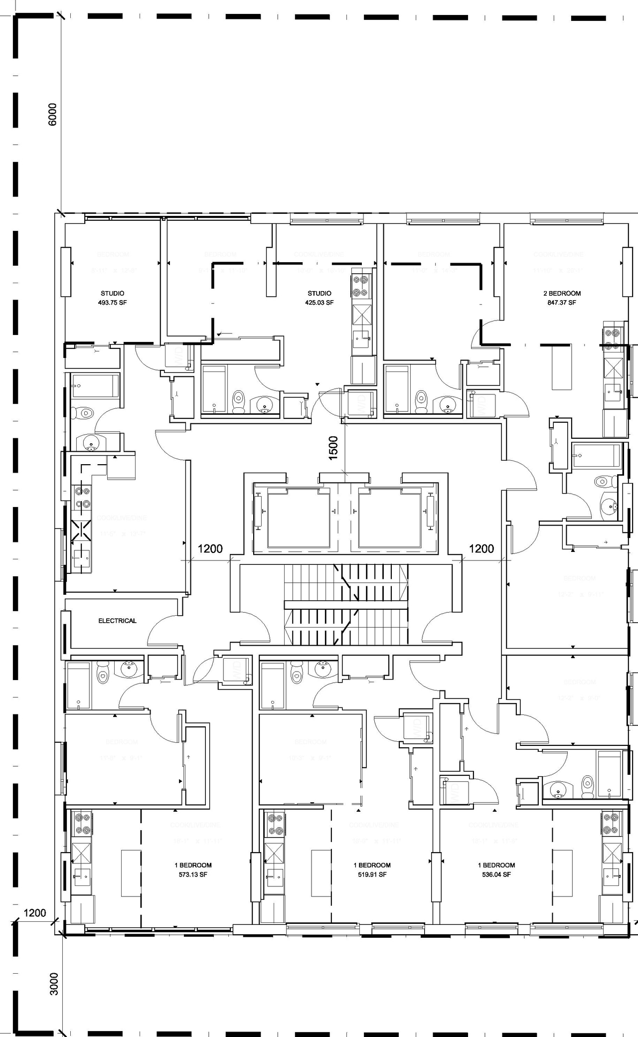
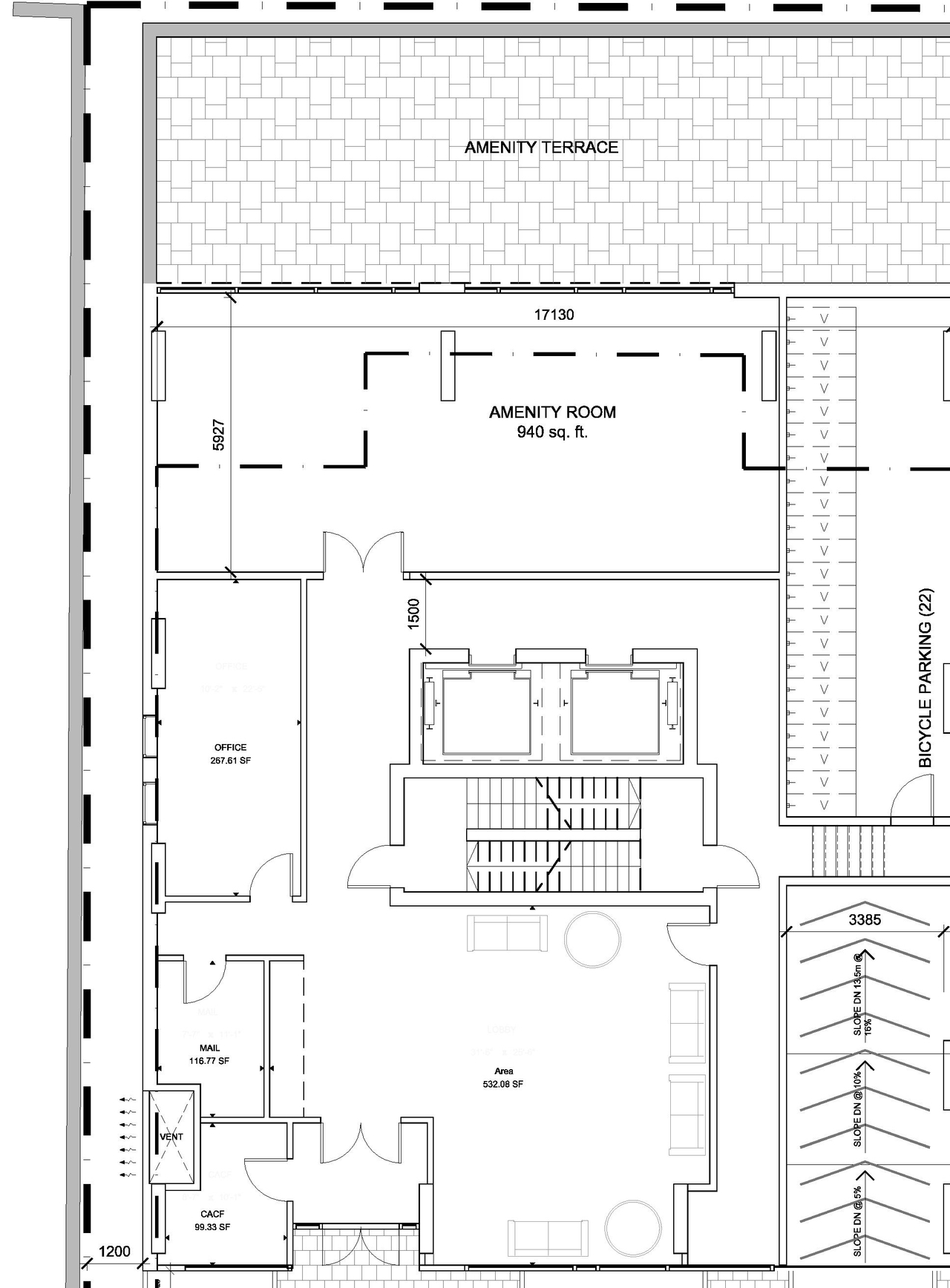
The proposal is for the development of a 21 storey high-rise apartment building with 116 dwelling units. An underground garage will provide access to 12 parking spaces.
Status
Active (Circulation Package Prepared)
Building Scale (Max.)
Based on elevation drawings. Values may be approximate. See sources for exact figures.
High-rise · 21 storeys
· 68.5 m
Renders#
Location#
Select a marker to view the address.
Site Plans, Elevations and Floor Plans#
Additional Information#
| Date Initiated | 2019-07-31 |
| Ward | Ward 14 - Ariel Troster |
| All Addresses | 339 Gloucester St. 343 Gloucester St. |



















