Ottawa Development Projects

24-30 Pretoria Ave.#

Last updated: 2020-12-22 · ID: D07-12-19-0126

Summary#

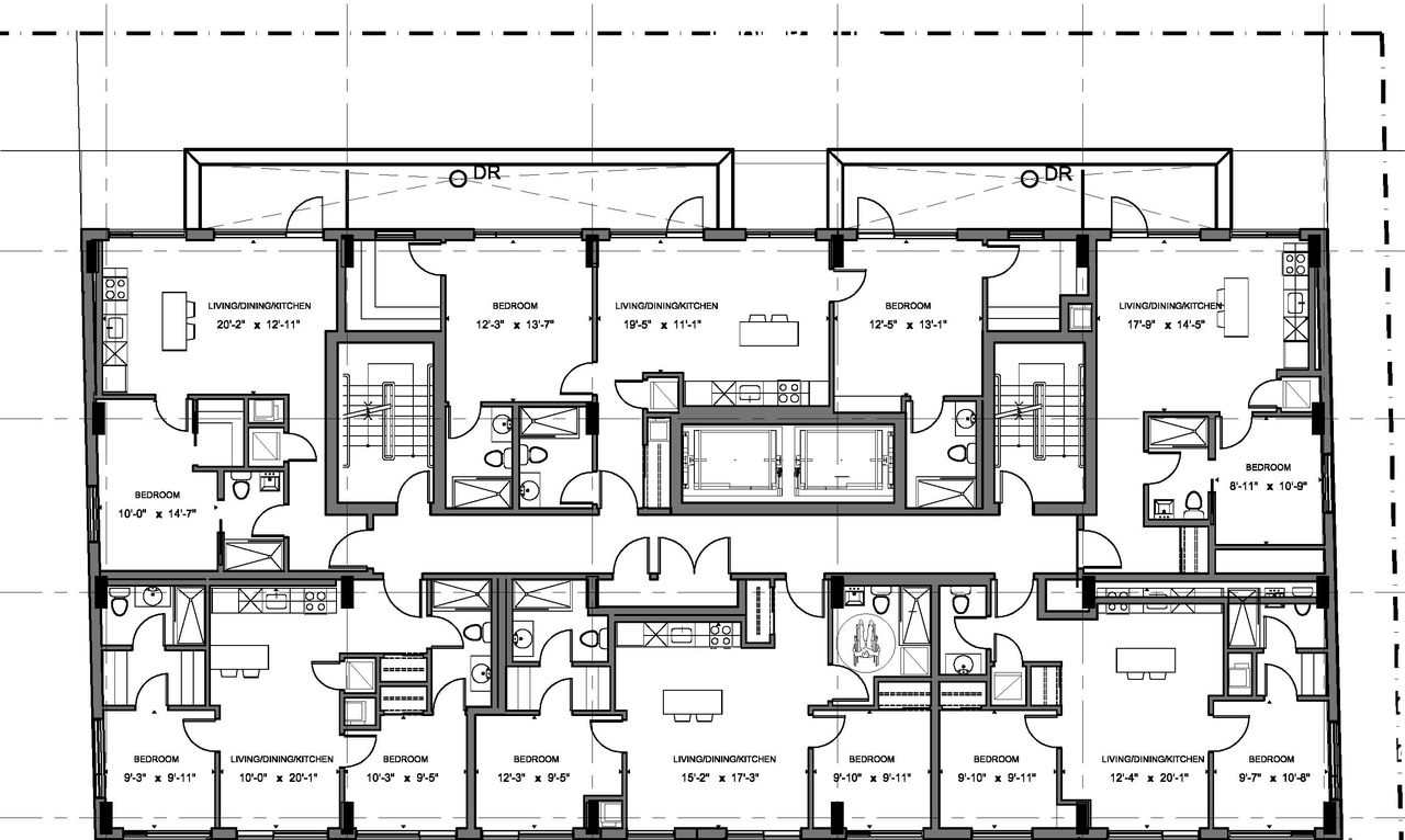
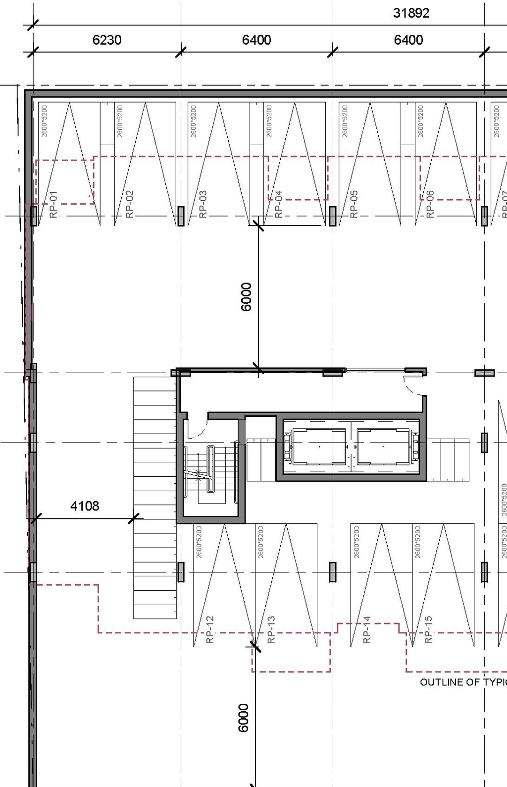
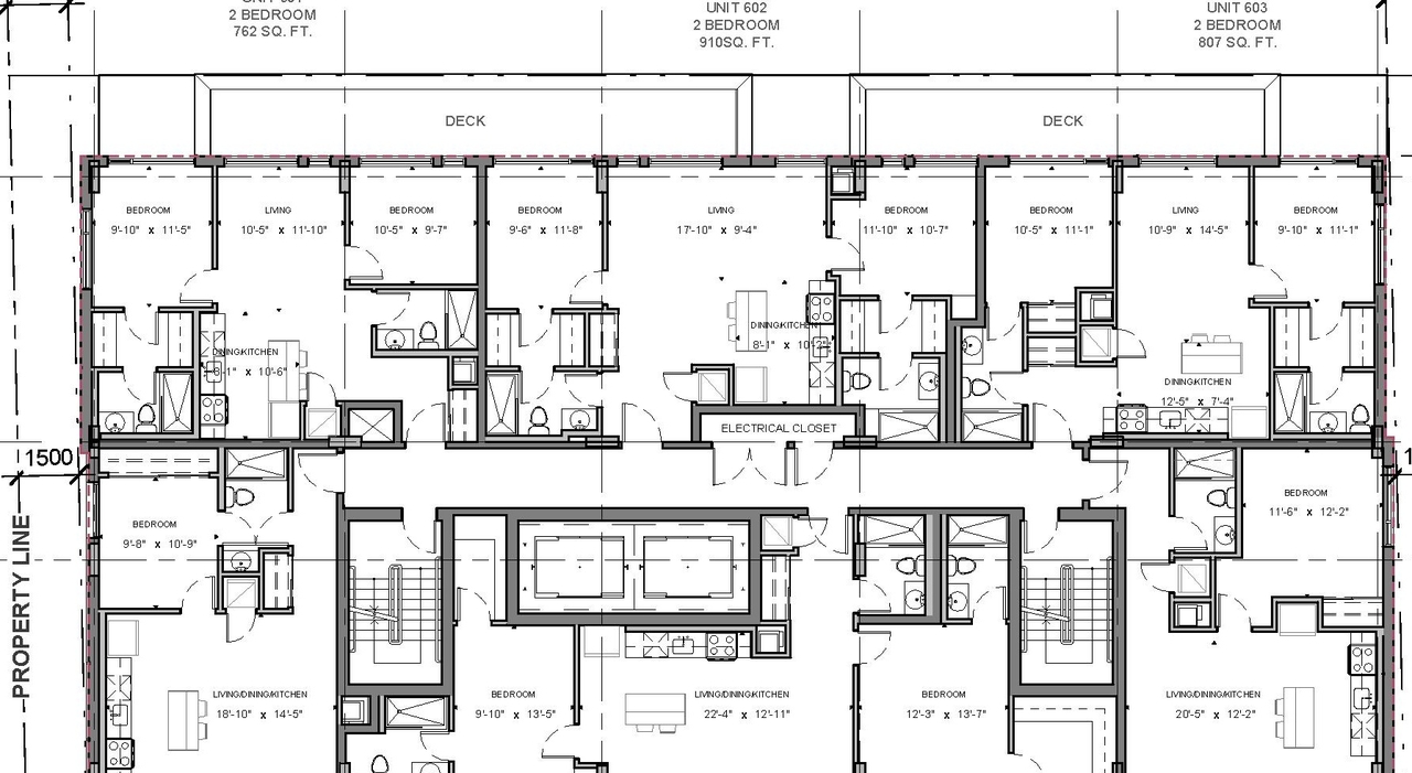
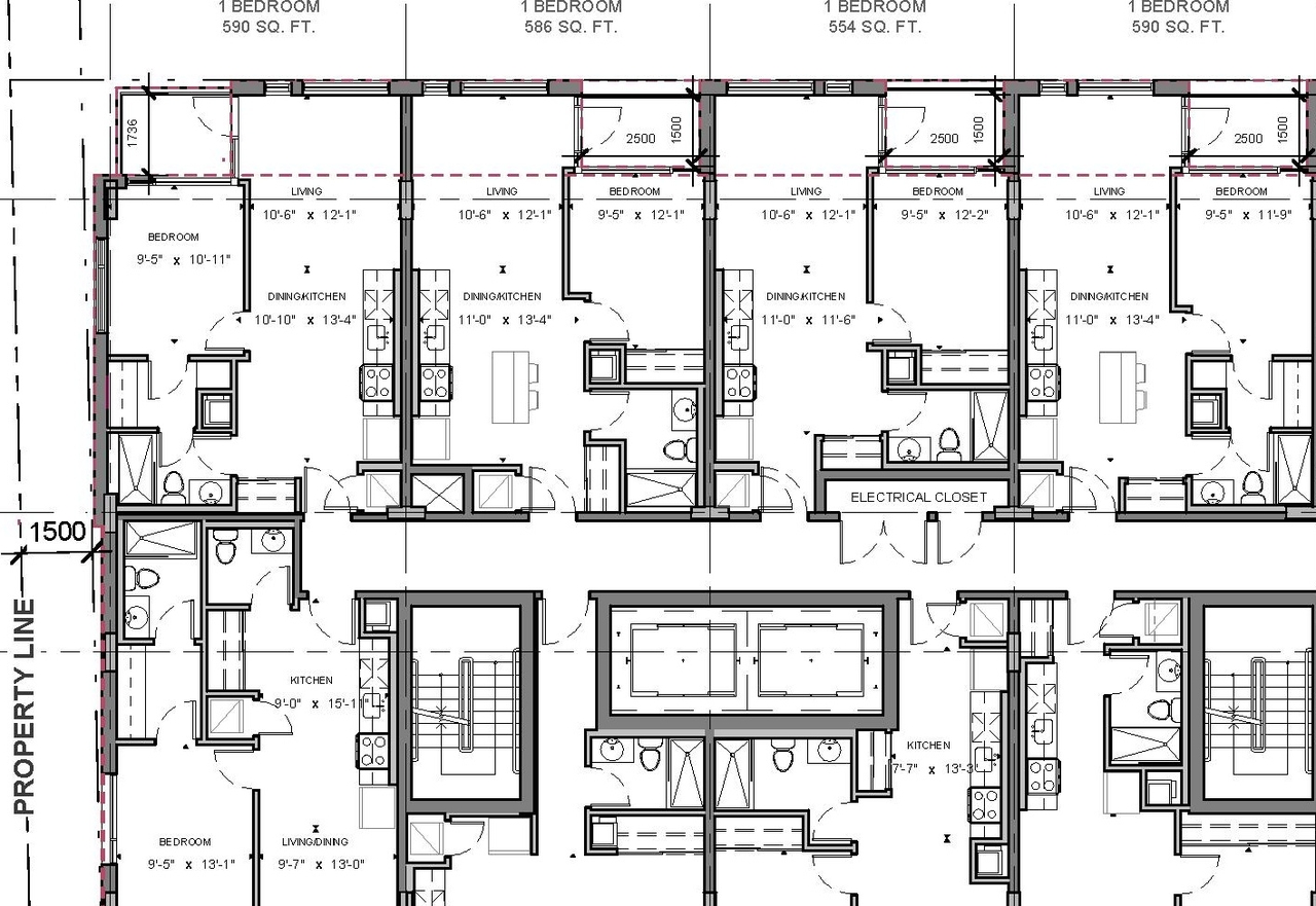
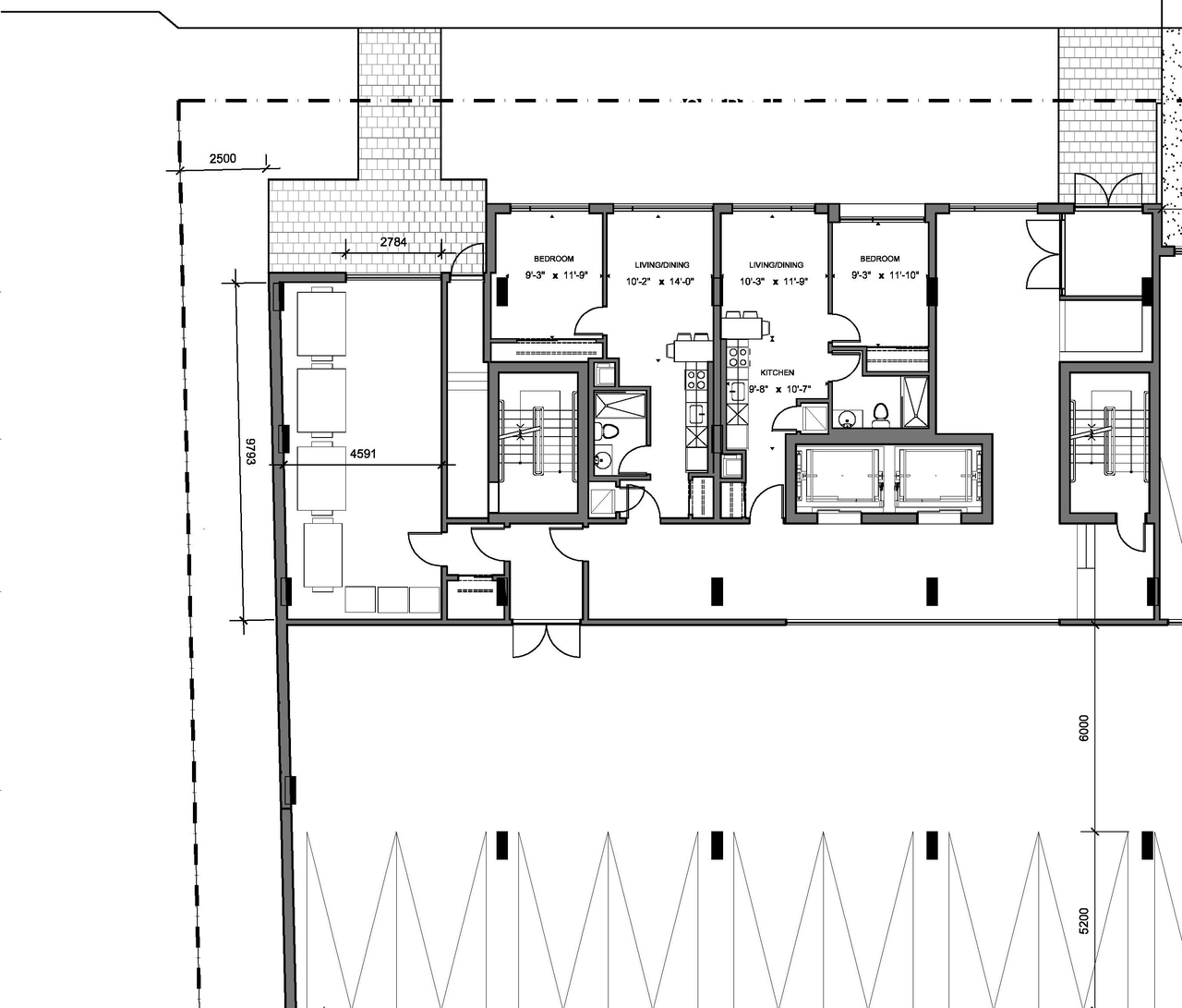
To construct a six-storey, 49-unit apartment building, with 18 underground parking spaces.

Status
Post Approval (Agreement Registered - Final Legal Clearance Given)

Building Scale (Max.) Based on elevation drawings. Values may be approximate. See sources for exact figures.
Mid-rise · 6 storeys · 21.4 m

Renders#

Location#

Select a marker to view the address.

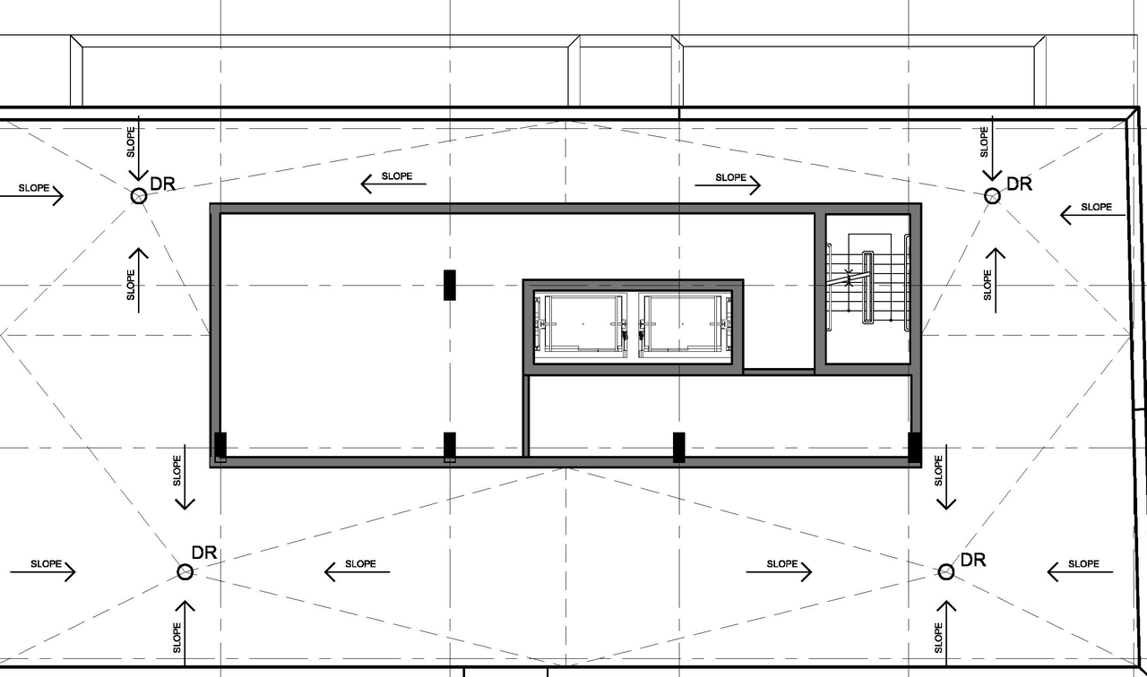
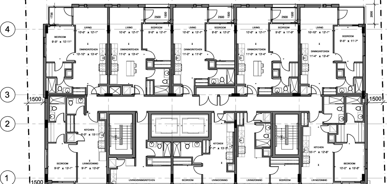
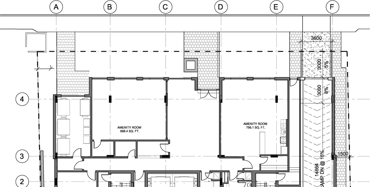
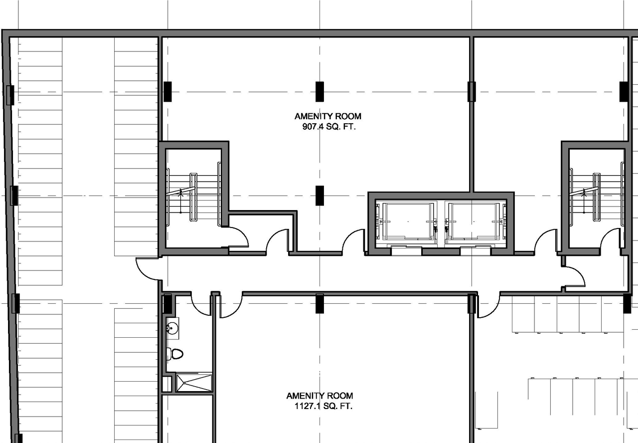
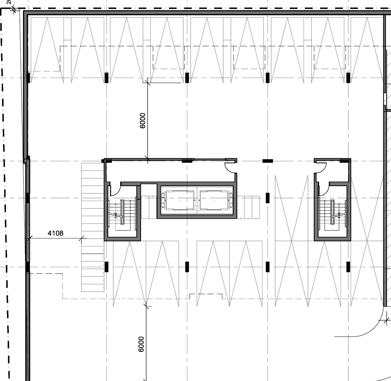
Site Plans, Elevations and Floor Plans#

Additional Information#

Date Initiated2019-07-25
WardWard 17 - Shawn Menard
All Addresses24 Pretoria Ave.
26 Pretoria Ave.
28 Pretoria Ave.
30 Pretoria Ave.

Documents#

TypeDocument
Architectural Plans2020-09-14 - Approved SP1 Site Plan - D07-12-19-0126
Architectural Plans2020-09-14 - Approved L1 Landscape Plan - D07-12-19-0126
Architectural Plans2020-09-14 - Approved A202 Elevations - D07-12-19-0126
Architectural Plans2020-09-14 - Approved A201 Elevations - D07-12-19-0126
Architectural Plans2020-08-19_Final Site Plan_D07-12-19-0126
Architectural Plans2020-08-19_Final Elevations 2_D07-12-19-0126
Architectural Plans2020-08-19_Final Elevations 1_D07-12-19-0126
Architectural Plans2020-02-06 - Sub 2 Site Plan - D07-12-19-0126
Architectural Plans2020-02-06 - Sub 2 Service Plan - D07-12-19-0126
Architectural Plans2020-02-06 - Sub 2 Landscape Plan - D07-12-19-0126
Architectural Plans2020-02-06 - Sub 2 Elevations - D07-12-19-0126
Architectural Plans2019-08-12 - Site Plan - D07-12-19-0126
Architectural Plans2019-08-12 - Service Plan - D07-12-19-0126
Architectural Plans2019-08-12 - Elevations 2 - D07-12-19-0126
Architectural Plans2019-08-12 - Elevations 1 - D07-12-19-0126
Design Brief2019-08-12 - Design Brief - D07-12-19-0126
Environmental2020-09-14 - Approved Phase I ESA Rev 1 November 2019 - D07-12-19-0126
Environmental2020-09-14 - Approved Phase I ESA Addendum - D07-12-19-0126
Environmental2019-08-12 - Phase I ESA - D07-12-19-0126
Environmental2019-08-12 - ESA Addendum - D07-12-19-0126
Floor Plan2020-02-06 - Sub 2 Floor Plans - D07-12-19-0126
Floor Plan2019-08-12 - Floor Plans - D07-12-19-0126
Geotechnical Report2019-08-12 - Grading Plan - D07-12-19-0126
Geotechnical Report2019-08-12 - Geotech Report - D07-12-19-0126
Landscape Plan2019-08-12 - Landscape Plan - D07-12-19-0126
Noise Study2020-09-14 - Approved GWE19-039 Traffic Noise Final R1 - D07-12-19-0126
Noise Study2020-02-06 - Sub 2 Noise Study - D07-12-19-0126
Noise Study2019-08-12 - Noise Study - D07-12-19-0126
Planning2019-08-12 - Planning Rationale - D07-12-19-0126
Rendering2019-08-12 - 3D View - D07-12-19-0126
Shadow Study2019-08-12 - Shade Study - D07-12-19-0126
Site Servicing2019-08-12 - Servicing & Storm Water Management - D07-12-19-0126
Stormwater Management2020-09-14 - Approved SWM 119011 Servicing and SWM - D07-12-19-0126
Stormwater Management2020-02-06 - Sub 2 Servicing & Storm Water Management - D07-12-19-0126
Surveying2020-02-06 - Sub 2 Site Survey - D07-12-19-0126
Surveying2019-08-12 - Site Survey - D07-12-19-0126
Tree Information and Conservation2020-09-14 - Approved Tree Preservation Report - D07-12-19-0126
Tree Information and Conservation2020-09-14 - Approved TCR - D07-12-19-0126
Tree Information and Conservation2020-08-19_Tree Protection Report Silver Maple_D07-12-19-0126
Tree Information and Conservation2020-02-06 - Sub 2 Tree Conservation Report - D07-12-19-0126
Tree Information and Conservation2020-02-06 - Sub 2 Tree Conservation Map - D07-12-19 -0126
Tree Information and Conservation2019-08-12- Tree Conservation Plan Map - D07-12-19-0126
Tree Information and Conservation2019-08-12 - Tree Conservation Report - D07-12-19-0126
Tree Information and Conservation2019-08-12 - Tree Conservation Plan Arial - D07-12-19-0126
2020-09-14 - Approved Structural Control Flow Letter - D07-12-19-0126
2020-09-14 - Approved Paterson Group Report PG479 - D07-12-19-0126
2020-09-14 - Approved GR 119011 - D07-12-19-0126
2020-09-14 - Approved GP 119011- D07-12-19-0126
2020-09-14 - Approved Flow Control Declaration - D07-12-19-0126
2020-09-14 - Approved DAR - D07-12-19-0126
2020-08-19_Final Landscape Plan_D07-12-19-0126
2020-06-23_Sub4_SitePlanFloorPlanElevation_24-30Pretoria
2020-02-06 - Sub 2 Phase I ESA - D07-12-19-0126
2020-02-06 - Sub 2 Grading and Erosion & Sediment Control - D07-12-19-0126
2020-02-06 - Sub 2 Geotechnical Report - D07-12-19-0126
2019-08-14 - App Summary - D07-12-19-0126