2145 Walkley Rd./2190 Halifax Dr.#
Last updated: 2025-08-22 · ID: D07-12-19-0075
Summary#
Development of a 15 storey + penthouse high rise residential building.
Status
Active (Comment Period in Progress)
Active (Comment Period in Progress)
Type
Site Plan Control
Site Plan Control
Building Scale (Max.)
Based on elevation drawings. Values may be approximate. See sources for exact figures.
High-rise · 18 storeys
· 55.32 m
Renders#
Location#
Select a marker to view the address.
Project Updates#
Added 8 documents
- 2025-08-21 - Transportation Impact Assessment - D07-12-19-0075
- 2025-08-21 - Site Servicing Report - D07-12-19-0075
- 2025-08-21 - Site Servicing Plan - D07-12-19-0075
- 2025-08-21 - Site Plan - D07-12-19-0075
- 2025-08-21 - P2 and P3 Parking Garage Plans - D07-12-19-0075
- 2025-08-21 - Landscape Plan - D07-12-19-0075
- 2025-08-21 - Key Plan and Zoning Table - D07-12-19-0075
- 2025-08-21 - Geotechnical Investigation - D07-12-19-0075
Added 7 documents
- 2025-03-26 - Traffic Impact Assessment - D07-12-19-0075
- 2025-03-26 - Site Servicing Report - D07-12-19-0075
- 2025-03-26 - MEMO - Grading Plan Review - D07-12-19-0075
- 2025-03-26 - LANDSCAPE PLAN - D07-12-19-0075
- 2025-03-26 - Key and Site Plan - D07-12-19-0075
- 2025-03-26 - Geotechnical Investigation - D07-12-19-0075
- 2025-03-26 - Civil Drawings - D07-12-19-0075
Status Updated
- Status: Active (Comment Period in Progress)
Added 1 document
Status Updated
- Status: Active (Application Reactivated)
Added description, height, 3 images and 3 documents
- Status: File Pending (Application File Pending)
- Development of a 15 storey + penthouse high rise residential building.
- Height: 55.32 m
- Storeys: 18 storeys
- 1 render
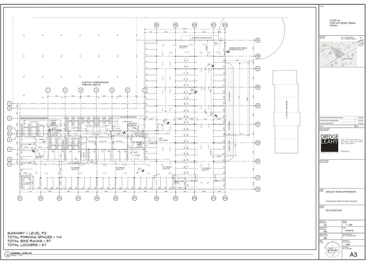
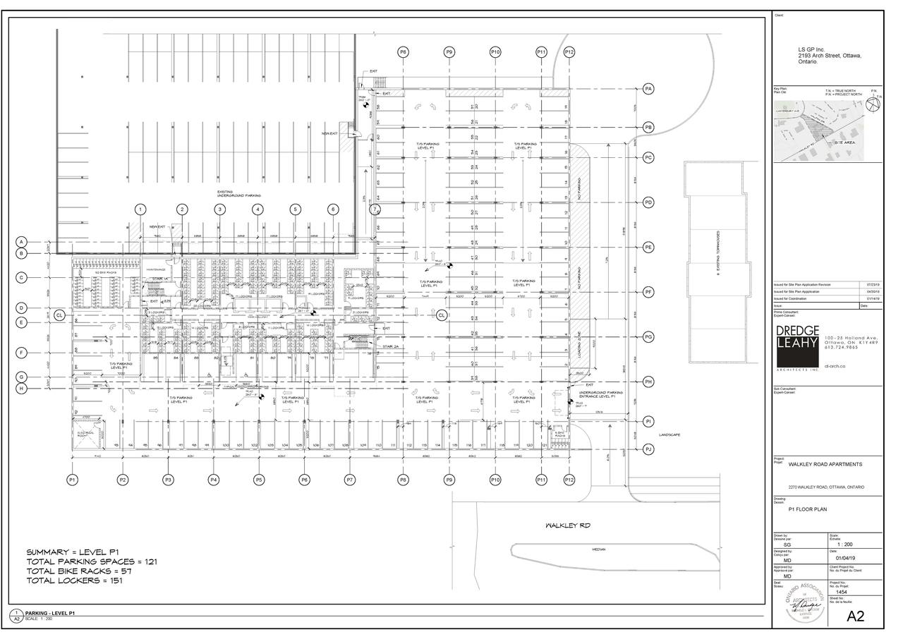
- 2 floor plans
- 2019-08-15 - Arch Rendering - D07-12-19-0075
- 2019-08-15 - P1 Floor Plan - D07-12-19-0075
- 2019-08-15 - P2 Floor Plan - D07-12-19-0075
Site Plans, Elevations and Floor Plans#
Additional Information#
| Date Initiated | 2019-05-08 |
| Ward | Ward 18 - Marty Carr |


