70 Beech St./75 Norman St.#
Last updated: 2019-06-07 · ID: D07-12-19-0054
Summary#
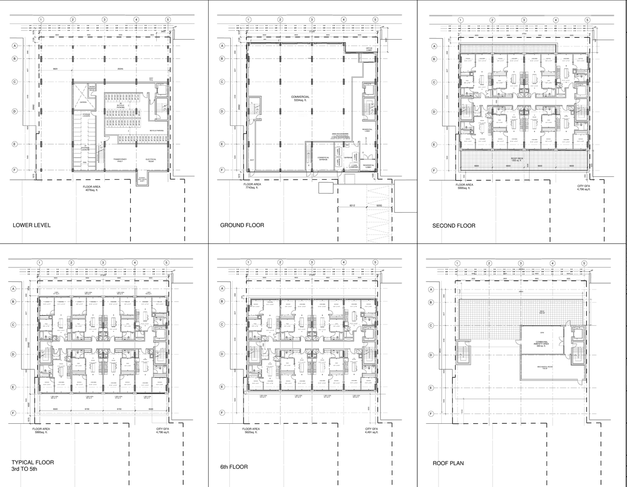
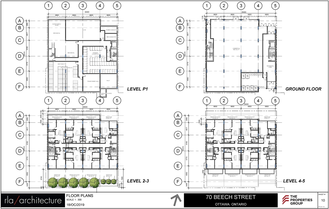
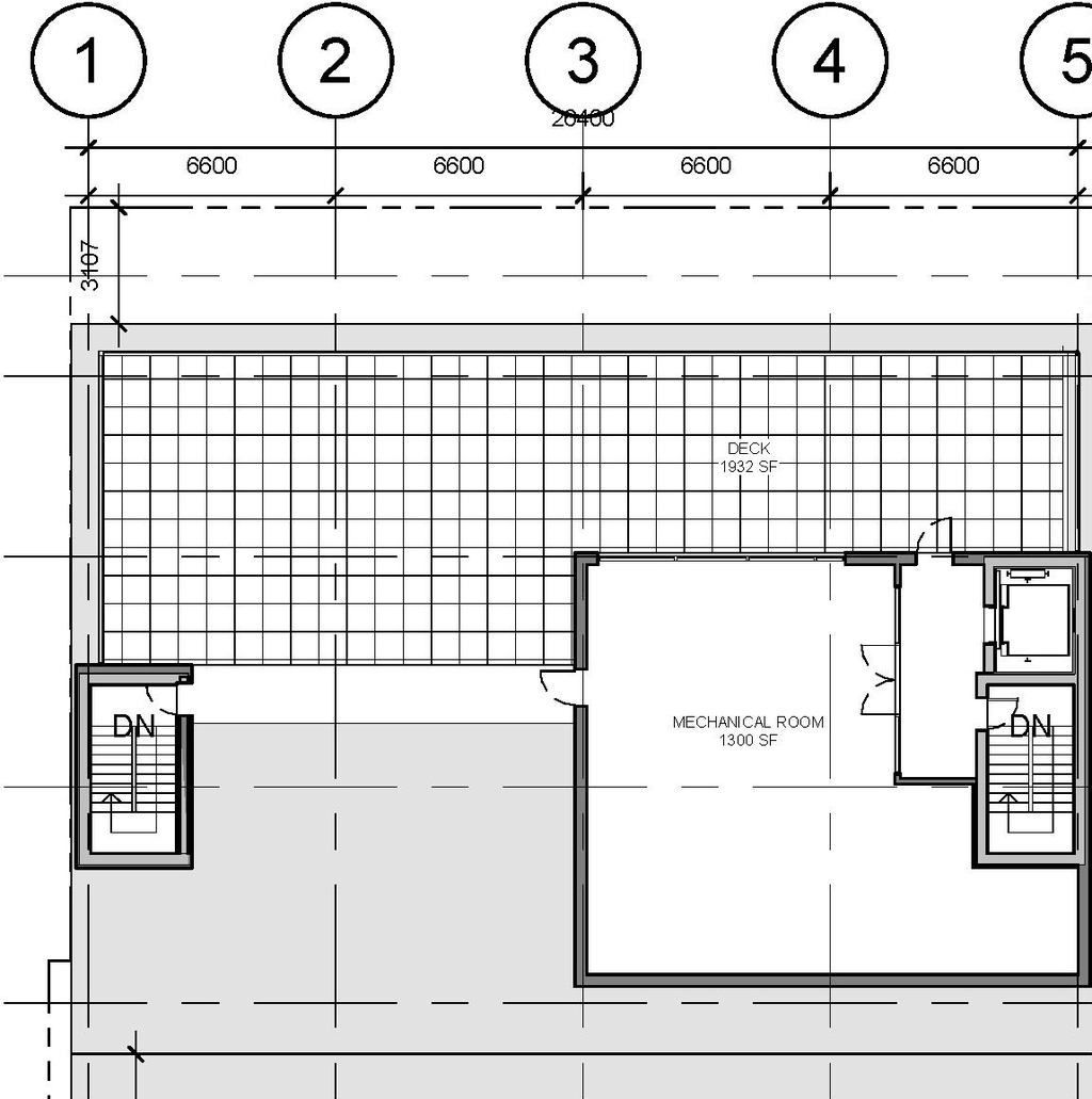
A proposed six-storey mixed use building at 70 Beech Street, with commercial uses on the ground floor and 40 residential units above. The existing dwelling at 75 Norman Street is proposed to be retained, and the detached garage will be demolished to provide five parking spaces for the new building.
Status
File Pending (Application File Pending)
Building Scale (Max.)
Based on elevation drawings. Values may be approximate. See sources for exact figures.
Mid-rise · 6 storeys
Data Quality Note
Text was extracted using optical character recognition. This may introduce artifacts or misreads.
· 24.3 m
Data Quality Note
Text was extracted using optical character recognition. This may introduce artifacts or misreads.
Renders#
Location#
Select a marker to view the address.
Site Plans, Elevations and Floor Plans#
Additional Information#
| Date Initiated | 2019-03-28 |
| Ward | Ward 14 - Ariel Troster |















