Ottawa Development Projects

2165 Robertson Rd.#

Last updated: 2021-09-28 ยท ID: D07-12-18-0205

Summary#

Permit the development of a one-storey restaurant with associated drive-through as well as a one-storey retail building with associated warehousing, distribution and offices.

Status
File Pending (Application File Pending)

Location#

Select a marker to view the address.

Site Plans, Elevations and Floor Plans#

Additional Information#

Date Initiated2018-12-24
WardWard 8 - Laine Johnson

Documents#

TypeDocument
Architectural Plans2021-09-01 - Site Plan - D07-1218-0205
Architectural Plans2021-05-28 - Site Plan - D07-12-18-0205
Architectural Plans2021-05-28 - Elevations 2 - D07-12-18-0205
Architectural Plans2021-05-28 - Elevations - D07-12-18-0205
Architectural Plans2021-03-10 - Site Plan - D07-12-18-0205
Architectural Plans2021-03-10 - Conditions Plan Existing - D07-12-18-0205
Architectural Plans2019-01-16 - Site Plan - D07-12-18-0205
Architectural Plans2019-01-16 - Elevations Building A - D07-12-18-0205
Architectural Plans2019-01-16 - Elevations 2 Building B - D07-12-18-0205
Architectural Plans2019-01-16 - Elevations 1 Building B - D07-12-18-0205
Electrical Plan2021-03-10 - Electrical Site Plan - D07-12-18-0205
Electrical Plan2019-01-16 - Site Lighting Letter - D07-12-18-0205
Electrical Plan2019-01-16 - Electrical Site Plan - D07-12-18-0205
Environmental2021-05-28 - Phase 2 Environmental Site Assessment - D07-12-18-0205
Environmental2021-05-28 - Phase 1 Environmental Site Assessment - D07-12-18-0205
Environmental2021-03-10 - Phase Two Environmental Site Assessment - D07-12-18-0205
Environmental2019-01-16 - Phase I ESA - D07-12-18-0205
Erosion And Sediment Control Plan2021-09-01 - Erosion Control Plan - D07-12-18-0205
Erosion And Sediment Control Plan2021-05-28 - Erosion Control Plan - D07-12-18-0205
Erosion And Sediment Control Plan2021-03-10 - Erosion Control Plan - D07-12-18-0205
Erosion And Sediment Control Plan2019-01-16 - Erosion Control Plan - D07-12-18-0205
Existing Conditions2021-09-01 - Existing Conditions Plan - D07-12–18-0205
Existing Conditions2021-05-28 - Existing Conditions Plan - D07-12-18-0205
Existing Conditions2019-01-16 - Existing Conditions Plan - D07-12-18-0205
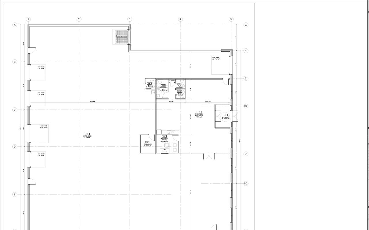
Floor Plan2019-01-16 - Floor Plan Building B - D07-12-18-0205
Geotechnical Report2021-09-01 - Grading Plan 2 - D07-12-18-0205
Geotechnical Report2021-09-01 - Grading Plan - D07-12-18-0205
Geotechnical Report2021-09-01 - Geotechncial - D07-12-18-0205
Geotechnical Report2021-05-28 - Grading Plan Review Memo - D07-12-18-0205
Geotechnical Report2021-05-28 - Grading Plan 2 - D07-12-18-0205
Geotechnical Report2021-05-28 - Grading Plan - D07-12-18-0205
Geotechnical Report2021-03-10 - Grading Plan Review Memo - D07-12-18-0205
Geotechnical Report2021-03-10 - Grading Plan 2 - D07-12-18-0205
Geotechnical Report2021-03-10 - Grading Plan - D07-12-18-0205
Geotechnical Report2019-01-16 - Grading Plan 2 - D07-12-18-0205
Geotechnical Report2019-01-16 - Grading Plan 1 - D07-12-18-0205
Geotechnical Report2019-01-16 - Geotechnical Investigation - D07-12-18-0205
Landscape Plan2021-09-01 - Landscape Plan - D07-12-18-0205
Landscape Plan2021-05-28 - Landscape Plan - D07-12-18-0205
Landscape Plan2021-03-10 - Landscape Plan - D07-12-18-0205
Planning2019-01-16 - Planning Rationale - D07-12-18-0205
Site Servicing2021-09-01 - Site Servicing Study - D07-12-18-0205
Site Servicing2021-09-01 - Site Servicing Plan - D07-12-18-0205
Site Servicing2021-05-28 - Site Servicing Study and Stormwater Management Report - D07-12-18-0205
Site Servicing2021-05-28 - Site Servicing Plan - D07-12-18-0205
Site Servicing2021-03-10 - Site Servicing Study and Stormwater Management Report - D07-12-18-0205
Site Servicing2021-03-10 - Site Servicing Plan - D07-12-18-0205
Site Servicing2019-01-16 - Site Servicing Plan - D07-12-18-0205
Site Servicing2019-01-16 - Servicing and Stormwater Management Report - D07-12-18-0205
Stormwater Management2021-09-01 - Stormwater Management - D07-12-18-0205
Stormwater Management2021-05-28 - Stormwater Management Plan - D07-12-18-02051
Stormwater Management2021-05-28 - Stormwater Management Plan - D07-12-18-0205
Stormwater Management2021-03-10 - Stormwater Management Plan - D07-12-18-0205
Stormwater Management2019-01-16 - Stormwater Management Plan - D07-12-18-0205
Surveying2019-01-16 - Survey - D07-12-18-0205
Transportation Analysis2021-03-10 - Transportation Truck Manuvering - D07-12-18-0205
Transportation Analysis2021-03-10 - Transportation Impact Addendum - D07-12-18-0205
Transportation Analysis2019-01-16 - Transportation Impact Assessment - D07-12-18-0205
Tree Information and Conservation2019-01-16 - Tree Conservation Report and Landscape Plan - D07-12-18-0205