Ottawa Development Projects

114 Richmond Rd.#

Last updated: 2022-12-16 · ID: D07-12-18-0080

Summary#

To convert the existing Sisters of the Visitation monastery into a mixed-use building and construct an addition to be used as an apartment building

Status
Active (Resubmission Review Completed)

Building Scale (Max.) Based on elevation drawings. Values may be approximate. See sources for exact figures.
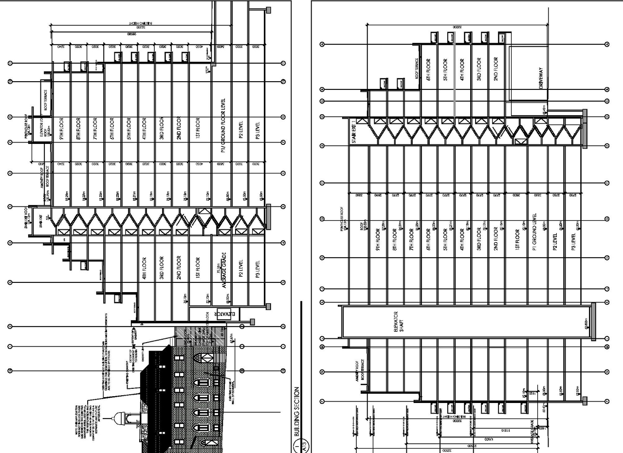
Mid-rise · 9 storeys Data Quality Note Text was extracted using optical character recognition. This may introduce artifacts or misreads. · 26.2 m Data Quality Note Height was partially estimated using visual scale. This may be approximate. Data Quality Note Text was extracted using optical character recognition. This may introduce artifacts or misreads.

Renders#

Location#

Select a marker to view the address.

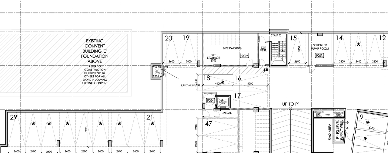
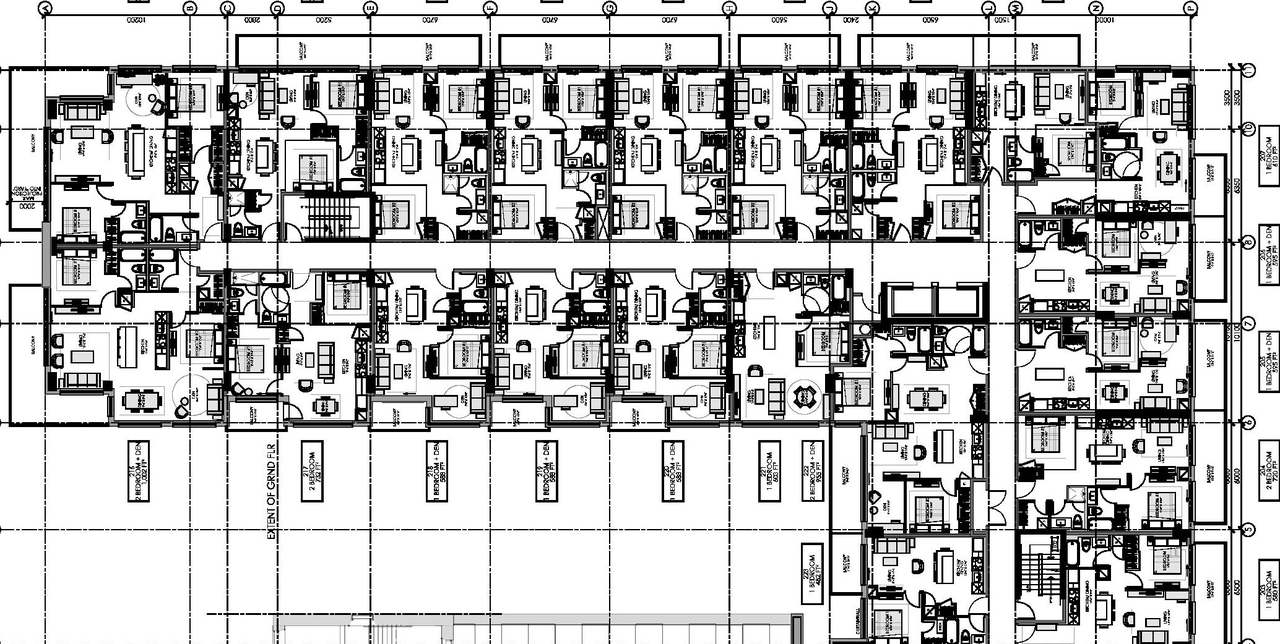
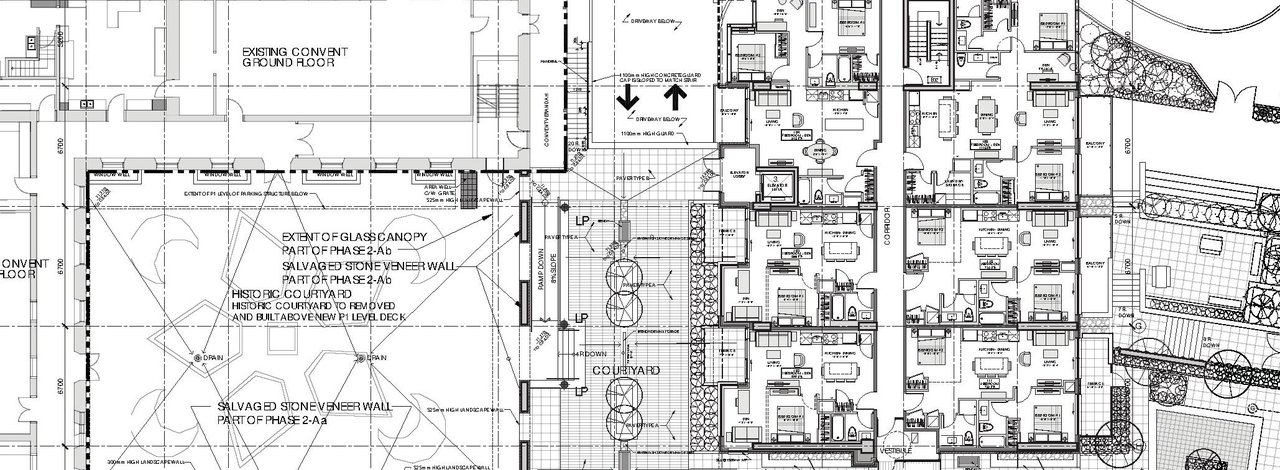
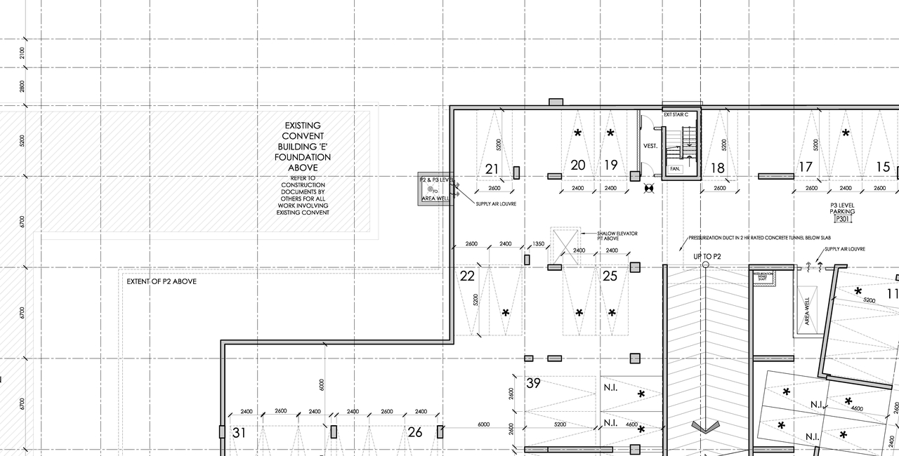
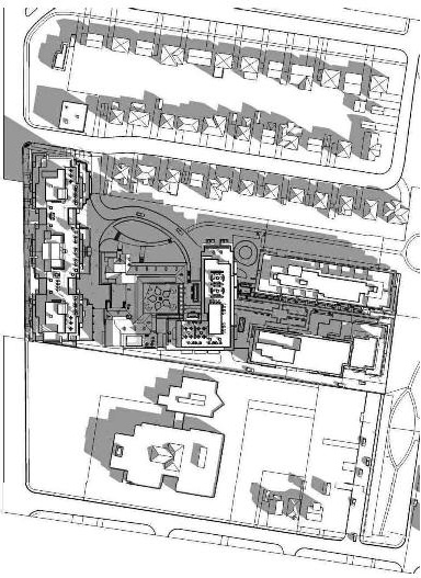
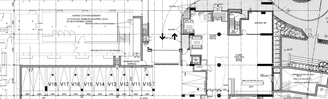
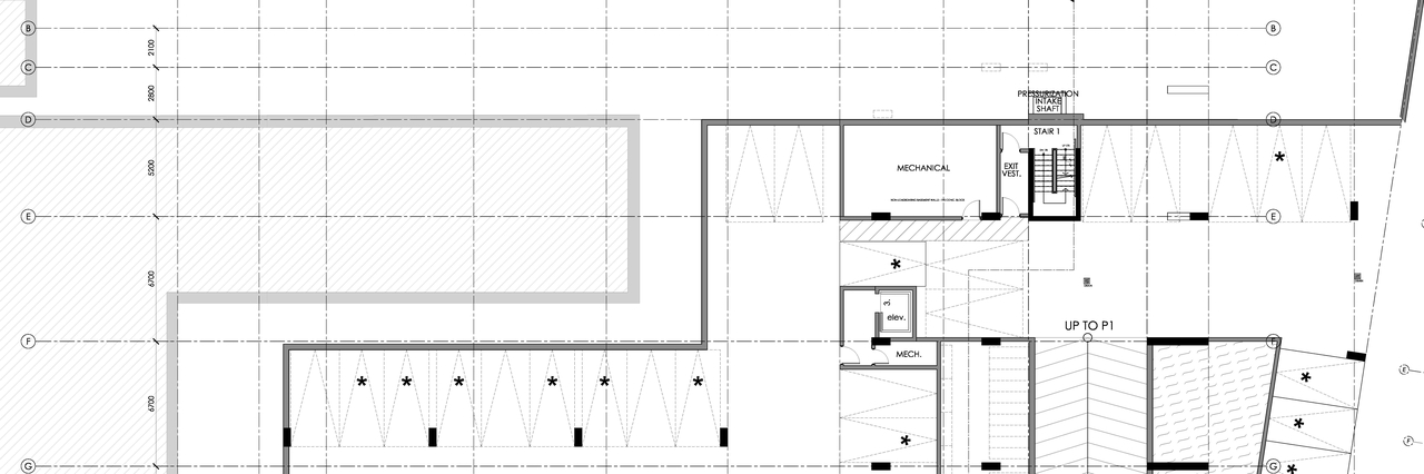
Site Plans, Elevations and Floor Plans#

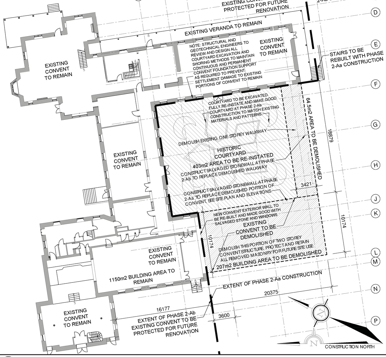
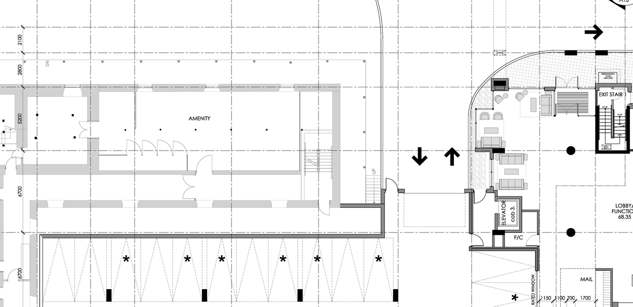
  • Image from page 15 of the file '2022-11-17 - Detail Site and Floor Plans - D07-12-18-0080'
  • Image from page 21 of the file '2023-05-09 - Architectural Design Brief - D07-12-18-0080'
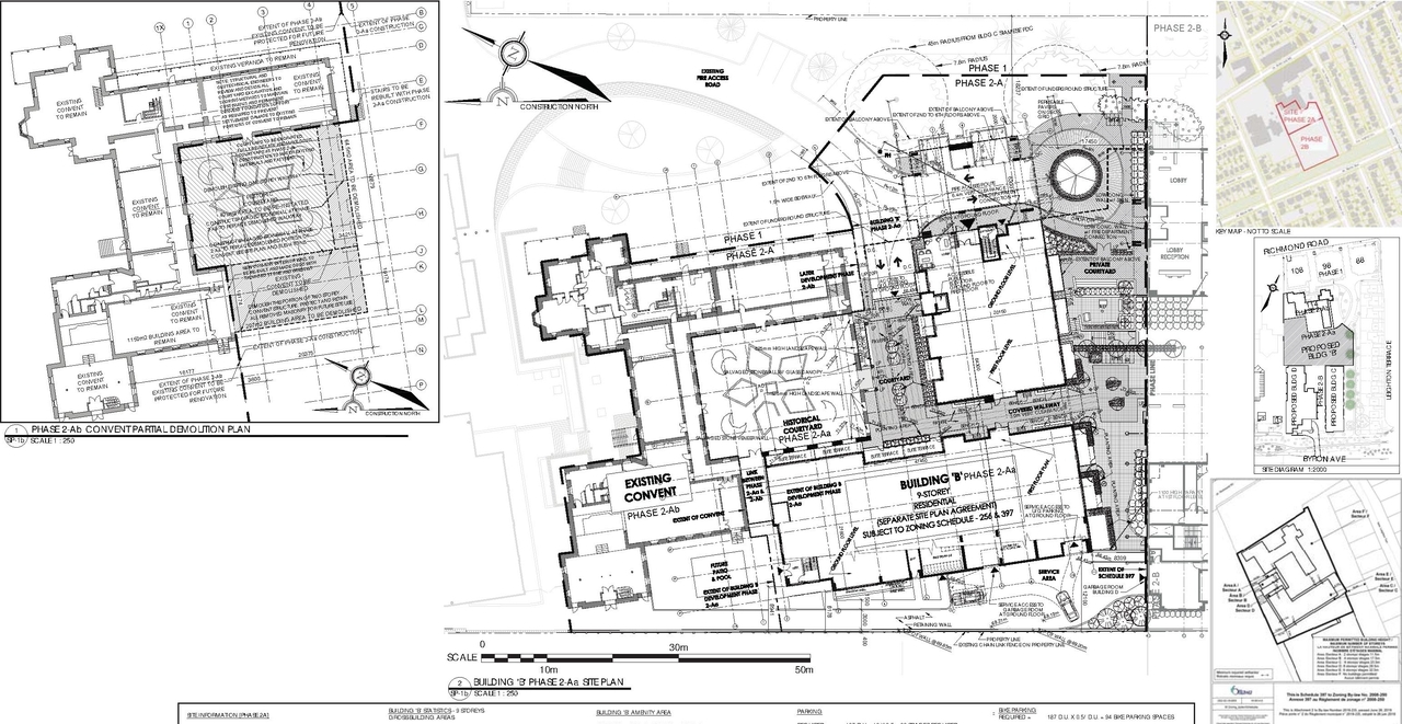
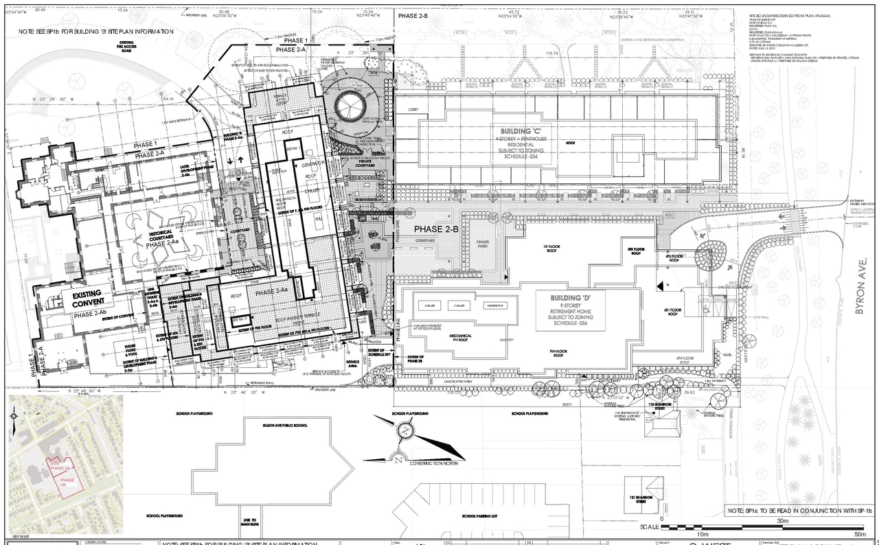
  • Construction site plan for project from page 7 of the file '2023-05-09 - Architectural Design Brief - D07-12-18-0080'
  • Construction site plan for project from page 7 of the file '2022-11-17 - Design Brief - D07-12-18-0080'
  • Construction site plan for project from page 22 of the file '2023-05-09 - Architectural Design Brief - D07-12-18-0080'
  • Construction site plan for project from page 8 of the file '2022-11-17 - Design Brief - D07-12-18-0080'
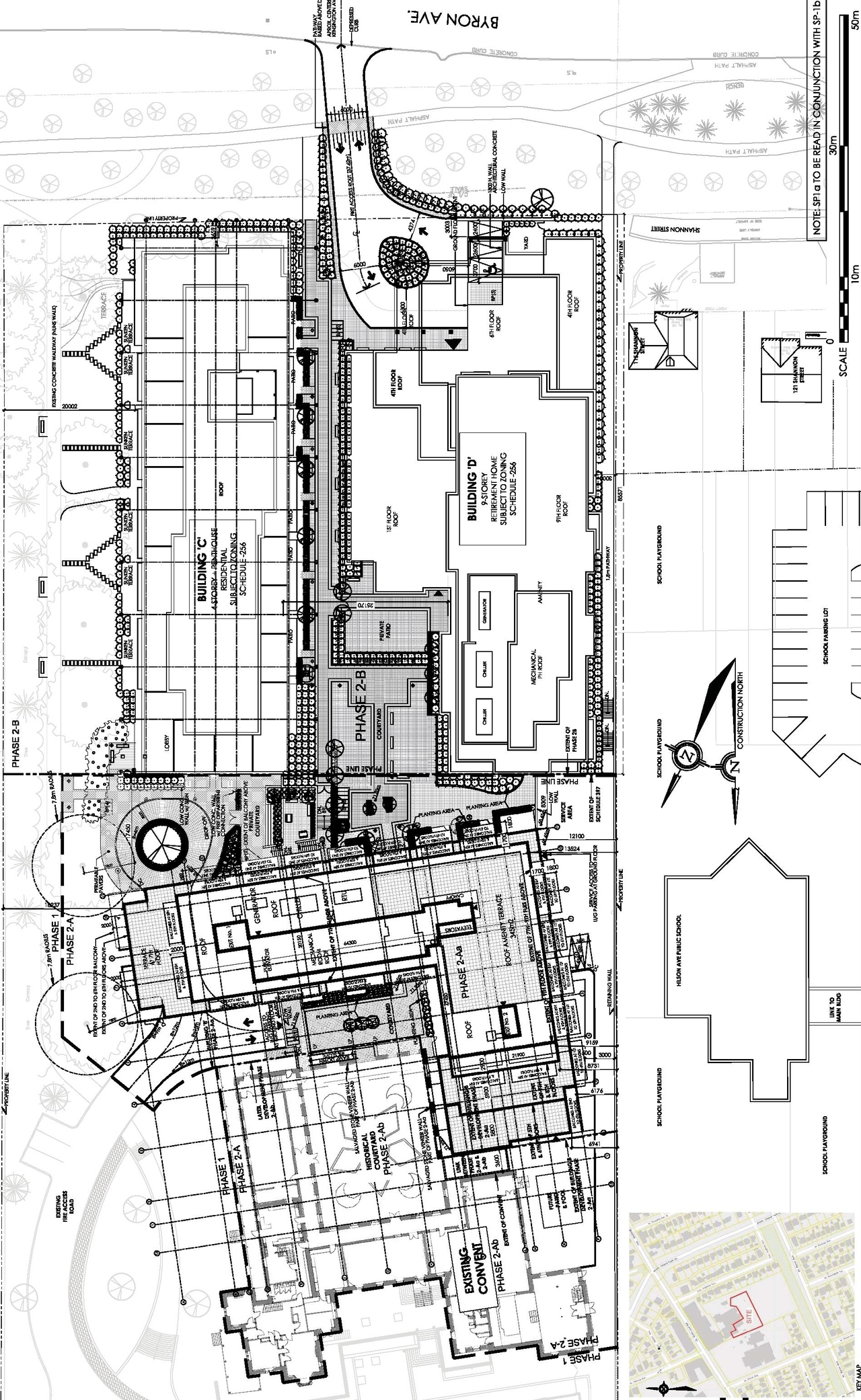
  • Construction site plan for project from page 12 of the file '2023-05-09 - Architectural Design Brief - D07-12-18-0080'
  • Construction site plan for project from page 22 of the file '2023-05-09 - Architectural Design Brief - D07-12-18-0080'
  • Construction site plan for project from page 2 of the file '2022-11-17 - Detail Site and Floor Plans - D07-12-18-0080'
  • Construction site plan for project from page 22 of the file '2023-05-09 - Architectural Design Brief - D07-12-18-0080'
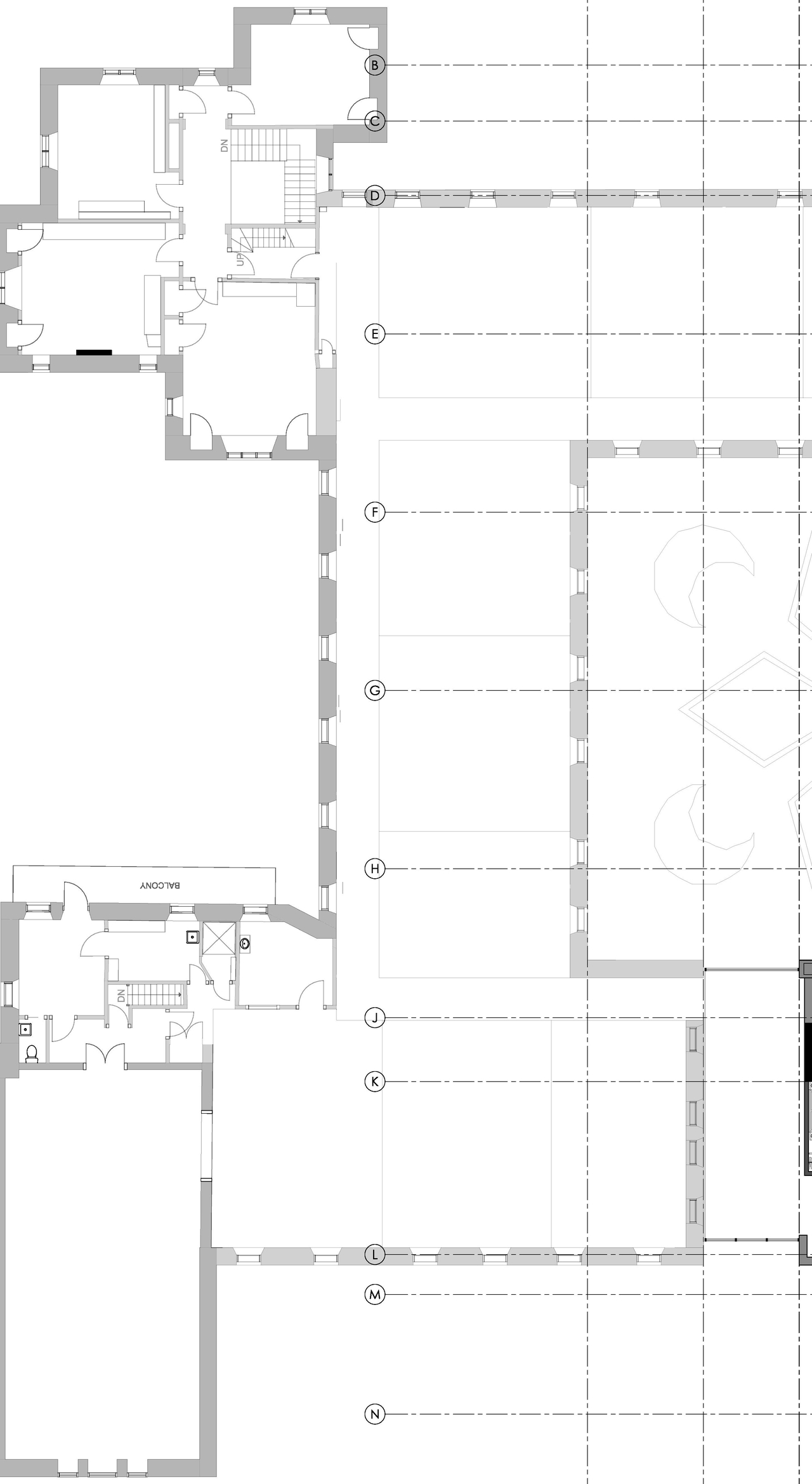
  • Construction site plan for project from page 6 of the file '2022-11-17 - Detail Site and Floor Plans - D07-12-18-0080'
  • Construction site plan for project from page 8 of the file '2023-05-09 - Architectural Design Brief - D07-12-18-0080'
  • Construction site plan for project from page 11 of the file '2023-05-09 - Architectural Design Brief - D07-12-18-0080'
  • Construction site plan for project from page 3 of the file '2023-05-09 - Floor Plans - D07-12-18-0080'
  • Construction site plan for project from page 22 of the file '2023-05-09 - Architectural Design Brief - D07-12-18-0080'
  • Construction site plan for project from page 27 of the file '2023-05-09 - Architectural Design Brief - D07-12-18-0080'
  • Construction site plan for project from page 12 of the file '2022-11-17 - Design Brief - D07-12-18-0080'
  • Construction site plan for project from page 8 of the file '2022-11-17 - Design Brief - D07-12-18-0080'
  • Construction site plan for project from page 4 of the file '2022-11-17 - Detail Site and Floor Plans - D07-12-18-0080'
  • Construction site plan for project from page 5 of the file '2022-11-17 - Detail Site and Floor Plans - D07-12-18-0080'
  • Construction site plan for project from page 9 of the file '2023-05-09 - Architectural Design Brief - D07-12-18-0080'
  • Construction site plan for project from page 23 of the file '2023-05-09 - Architectural Design Brief - D07-12-18-0080'
  • Construction site plan for project from page 1 of the file '2023-05-09 - Floor Plans - D07-12-18-0080'
  • Construction site plan for project from page 13 of the file '2023-05-09 - Architectural Design Brief - D07-12-18-0080'
  • Construction site plan for project from page 14 of the file '2023-05-09 - Architectural Design Brief - D07-12-18-0080'
  • Construction site plan for project from page 10 of the file '2023-05-09 - Architectural Design Brief - D07-12-18-0080'
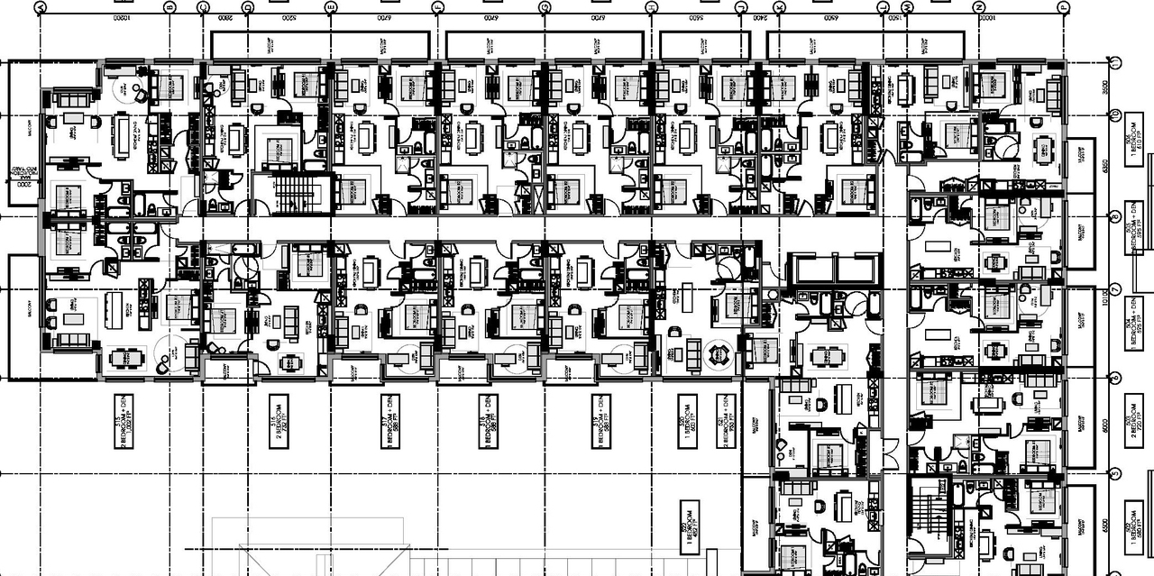
  • Floor plan for project from page 4 of the file '2022-11-17 - Detail Site and Floor Plans - D07-12-18-0080'
  • Floor plan for project from page 2 of the file '2023-05-09 - Floor Plans - D07-12-18-0080'
  • Floor plan for project from page 15 of the file '2023-05-09 - Architectural Design Brief - D07-12-18-0080'
  • Floor plan for project from page 7 of the file '2022-11-17 - Detail Site and Floor Plans - D07-12-18-0080'
  • Image from page 15 of the file '2022-11-17 - Detail Site and Floor Plans - D07-12-18-0080'
  • Image from page 21 of the file '2023-05-09 - Architectural Design Brief - D07-12-18-0080'
  • Construction site plan for project from page 7 of the file '2023-05-09 - Architectural Design Brief - D07-12-18-0080'
  • Construction site plan for project from page 7 of the file '2022-11-17 - Design Brief - D07-12-18-0080'
  • Construction site plan for project from page 22 of the file '2023-05-09 - Architectural Design Brief - D07-12-18-0080'
  • Construction site plan for project from page 8 of the file '2022-11-17 - Design Brief - D07-12-18-0080'
  • Construction site plan for project from page 12 of the file '2023-05-09 - Architectural Design Brief - D07-12-18-0080'
  • Construction site plan for project from page 22 of the file '2023-05-09 - Architectural Design Brief - D07-12-18-0080'
  • Construction site plan for project from page 2 of the file '2022-11-17 - Detail Site and Floor Plans - D07-12-18-0080'
  • Construction site plan for project from page 22 of the file '2023-05-09 - Architectural Design Brief - D07-12-18-0080'
  • Construction site plan for project from page 6 of the file '2022-11-17 - Detail Site and Floor Plans - D07-12-18-0080'
  • Construction site plan for project from page 8 of the file '2023-05-09 - Architectural Design Brief - D07-12-18-0080'
  • Construction site plan for project from page 11 of the file '2023-05-09 - Architectural Design Brief - D07-12-18-0080'
  • Construction site plan for project from page 3 of the file '2023-05-09 - Floor Plans - D07-12-18-0080'
  • Construction site plan for project from page 22 of the file '2023-05-09 - Architectural Design Brief - D07-12-18-0080'
  • Construction site plan for project from page 27 of the file '2023-05-09 - Architectural Design Brief - D07-12-18-0080'
  • Construction site plan for project from page 12 of the file '2022-11-17 - Design Brief - D07-12-18-0080'
  • Construction site plan for project from page 8 of the file '2022-11-17 - Design Brief - D07-12-18-0080'
  • Construction site plan for project from page 4 of the file '2022-11-17 - Detail Site and Floor Plans - D07-12-18-0080'
  • Construction site plan for project from page 5 of the file '2022-11-17 - Detail Site and Floor Plans - D07-12-18-0080'
  • Construction site plan for project from page 9 of the file '2023-05-09 - Architectural Design Brief - D07-12-18-0080'
  • Construction site plan for project from page 23 of the file '2023-05-09 - Architectural Design Brief - D07-12-18-0080'
  • Construction site plan for project from page 1 of the file '2023-05-09 - Floor Plans - D07-12-18-0080'
  • Construction site plan for project from page 13 of the file '2023-05-09 - Architectural Design Brief - D07-12-18-0080'
  • Construction site plan for project from page 14 of the file '2023-05-09 - Architectural Design Brief - D07-12-18-0080'
  • Construction site plan for project from page 10 of the file '2023-05-09 - Architectural Design Brief - D07-12-18-0080'
  • Floor plan for project from page 4 of the file '2022-11-17 - Detail Site and Floor Plans - D07-12-18-0080'
  • Floor plan for project from page 2 of the file '2023-05-09 - Floor Plans - D07-12-18-0080'
  • Floor plan for project from page 15 of the file '2023-05-09 - Architectural Design Brief - D07-12-18-0080'
  • Floor plan for project from page 7 of the file '2022-11-17 - Detail Site and Floor Plans - D07-12-18-0080'

Additional Information#

Date Initiated2018-05-16
WardWard 15 - Jeff Leiper

Documents#

TypeDocument
Architectural Plans2023-05-09 - Site Plan - D07-12-18-0080 (2)
Architectural Plans2023-05-09 - Site Plan - D07-12-18-0080 (2)
Architectural Plans2023-05-09 - Site Plan - D07-12-18-0080
Architectural Plans2022-11-17 - Site Plan - D07-12-18-0080
Architectural Plans2022-11-17 - Building Sections - D07-12-18-0080
Civil Engineering Report2023-09-27 - Civil Drawings - D07-12-18-0080
Design Brief2023-05-09 - Architectural Design Brief - D07-12-18-0080
Design Brief2022-11-17 - Design Brief - D07-12-18-0080
Environmental2019-09-26 - Environmental Site Assessment Phase 1 - D07-12-18-0080
Erosion And Sediment Control Plan2023-05-09 - Erosion Control Plan & Detail Sheet - D07-12-18-0080
Erosion And Sediment Control Plan2022-11-17 - Erosion Control Plan - D07-12-18-0080
Erosion And Sediment Control Plan2019-09-26 - Erosion and Sediment Control Plan - D07-12-18-0080
Existing Conditions2023-05-09 - Existing Conditions Plan - D07-12-18-0080
Floor Plan2023-05-09 - Floor Plans - D07-12-18-0080
Floor Plan2022-11-17 - Detail Site and Floor Plans - D07-12-18-0080
Geotechnical Report2023-05-09 - Grading Plan - D07-12-18-0080
Geotechnical Report2022-11-17 - Grading Plan - D07-12-18-0080
Geotechnical Report2022-11-17 - Geotechnical Report - D07-12-18-0080
Geotechnical Report2019-09-26 - Grading and Drainage Plan - D07-12-18-0080
Geotechnical Report2019-09-26 - Geotechnical Investigation - D07-12-18-0080
Landscape Plan2023-09-27 - Landscape Plan - D07-12-18-0080
Landscape Plan2023-05-09 - Landscape Plan - D07-12-18-0080
Landscape Plan2022-11-25 - Landscape Plan -D07-12-18-0080
Noise Study2023-09-27 - Traffic Noise Assessment - D07-12-18-0080
Noise Study2019-09-26 - Traffic Noise Study - D07-12-18-0080
Planning2023-05-09 - Planning Rationale - D07-12-18-0080
Planning2022-11-17 - Planning Rationale - D07-12-18-0080
Shadow Study2023-09-27 - TT-Fire-HSU - D07-12-18-0080
Shadow Study2023-09-27 - Fire Line Meter Chamber - D07-12-18-0080
Shadow Study2023-05-09 - Turning Template - Fire-Leighton - D07-12-18-0080 (2)
Shadow Study2023-05-09 - Turning Template - Fire-Leighton - D07-12-18-0080
Shadow Study2023-05-09 - Turning Template - Fire- - D07-12-18-0080
Shadow Study2019-09-26 - Sun and Shadow Study - D07-12-18-0080
Site Servicing2023-09-27 - Servicing and SWM Report - D07-12-18-0080
Site Servicing2023-05-09 - Site Servicing Plan - D07-12-18-0080
Site Servicing2023-05-09 - Servicing & Stormwater Management Report - D07-12-18-0080
Site Servicing2022-11-17 - Site Servicing Plan - D07-12-18-0080
Site Servicing2022-11-17 - Servicing and SWM Report - D07-12-18-0080
Site Servicing2019-09-26 - Site Servicing Plan - D07-12-18-0080
Site Servicing2019-09-26 - Servicing and Stormwater Management Report Appendices - D07-12-18-0080
Site Servicing2019-09-26 - Servicing and Stormwater Management Report - D07-12-18-0080
Stormwater Management2023-05-09 - Storm Drainage Area Plan - D07-12-18-0080
Stormwater Management2022-11-17 - Storm Drainage Area Plan - D07-12-18-0080
Stormwater Management2019-09-26 - Stormwater Management Plan - D07-12-18-0080
Surveying2022-11-17 - Topographic Survey - D07-12-18-0080
Tree Information and Conservation2022-11-25 - Tree Conservation Report -D07-12-18-0080
Tree Information and Conservation2019-09-26 - Tree Conservation Report - D07-12-18-0080
Wind Study2023-09-27 - Pedestrian Level Wind Study - D07-12-18-0080
Wind Study2022-11-17 - Pedestrian Level Wind Study - D07-12-18-0080
Wind Study2022-11-17 - Noise and Wind Study Addendum Letter - D07-12-18-0080
2023-09-27 - Phase 2 Driveway Consolidated TIA Reports - D07-12-18-0080
2023-09-27 - Architetural Drawings - D07-12-18-0080
2022-11-17 - Cultural Heritage Impact Statement - D07-12-18-0080
2020-01-20 - Updated Sunshadow Study - D07-12-18-0080
2019-09-26-Application Summary-D07-12-18-0080