1869 Trim Rd.#
Last updated: 2018-10-01 · ID: D07-12-17-0175
Summary#
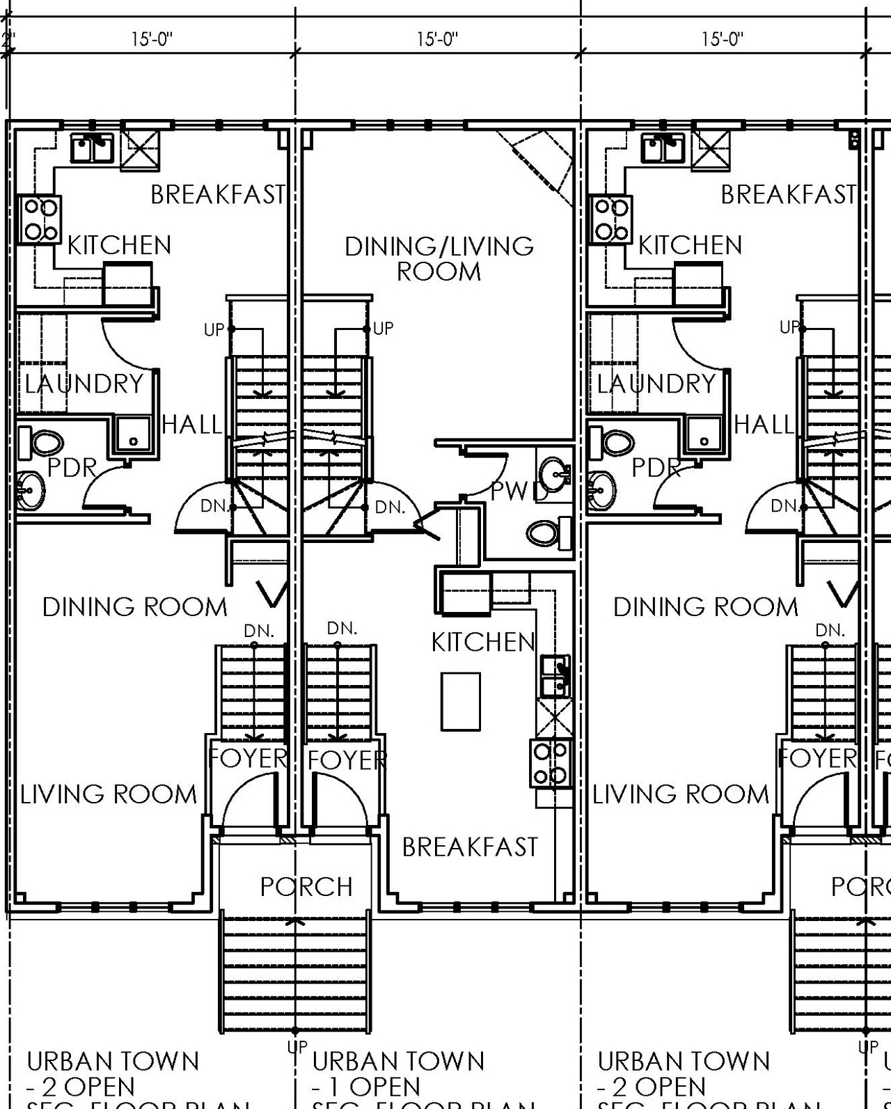
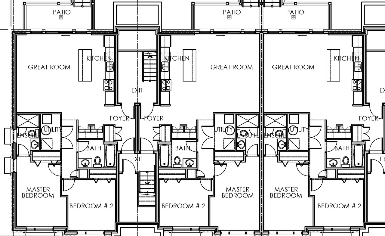
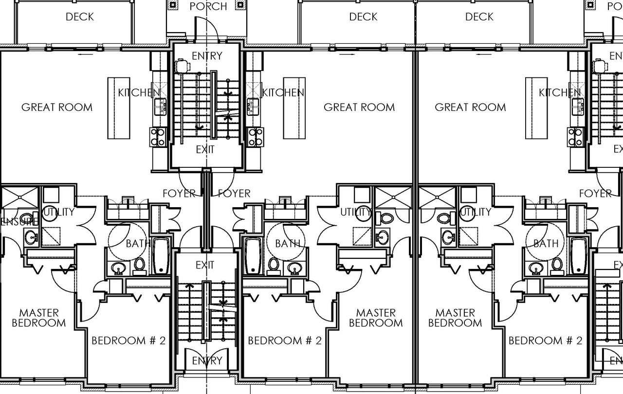
Development of 62 residential units, within 48 condominium units within 4 stacked, back to back buildings and 14 townhouse units within two blocks.
Status
File Pending (Application File Pending)
Building Scale (Max.)
Based on elevation drawings. Values may be approximate. See sources for exact figures.
Low-rise · 3 storeys
Data Quality Note
Text was extracted using optical character recognition. This may introduce artifacts or misreads.
Renders#
Location#
Select a marker to view the address.
Site Plans, Elevations and Floor Plans#
Additional Information#
| Date Initiated | 2017-12-21 |
| Ward | Ward 1 - Matthew Luloff |
Documents#
| Type | Document |
|---|---|
| Application Summary | Application Summary |
| Archaelogical Assessment | Archaeological Assessment |
| Architectural Plans | Site Plan28 |
| Architectural Plans | Notes, Legend and Detail Sheet |
| Architectural Plans | Elevations6 |
| Architectural Plans | Elevations Part 3 |
| Architectural Plans | Elevations Part 2 |
| Erosion And Sediment Control Plan | Erosion & Sediment Control Plan1 |
| Floor Plan | Floor Plans2 |
| Geotechnical Report | Geotechnical Report3 |
| Landscape Plan | Landscape Plan21 |
| Noise Study | Noise Study5 |
| Planning | Planning Rationale1 |
| Planning | Application Summary 1869 Trim - Zoning and Site Plan Control |
| Rendering | Rendering of stacked back to back |
| Site Servicing | Servicing Report5 |
| Surveying | Topographical Plan |
| Transportation Analysis | Traffic Impact Analysis Report |
| Site Grading Plan2 | |
| Site Grading Plan1 | |
| Phase 1 ESA6 | |
| Draft 4R-Plan1 | |
| 2018-08-28 - Location map - D07-12-17-0175 |








