3443 Innes Rd.#
Summary#
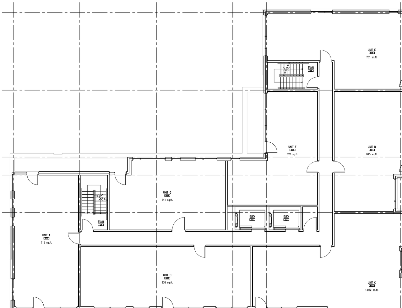
The proposed development is a six-storey, mixed-use building with commercial uses at grade and residential units above. A total of six commercial units are being proposed on the ground floor with four units facing Innes Road and two units facing Page Road. A total of 35 residential units are proposed from the remainder of the storeys.
Status
File Pending (Application File Pending)
Building Scale (Max.)
Based on elevation drawings. Values may be approximate. See sources for exact figures.
Mid-rise · 6 storeys
Data Quality Note
Text was extracted using optical character recognition. This may introduce artifacts or misreads.
· 19 m
Data Quality Note
Text was extracted using optical character recognition. This may introduce artifacts or misreads.
Renders#
Location#
Site Plans, Elevations and Floor Plans#
Additional Information#
| Date Initiated | 2017-12-20 |
| Ward | Ward 2 - Laura Dudas |






