210-220 Maple Creek Ct.#
Last updated: 2021-02-12 ยท ID: D07-12-17-0112
Summary#
Phased warehouse development
Status
File Pending (Application File Pending)
Location#
Select a marker to view the address.
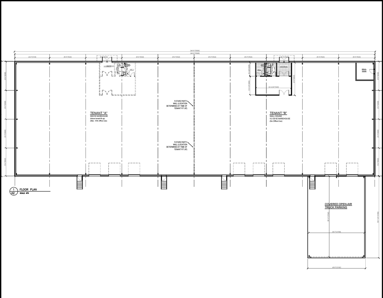
Site Plans, Elevations and Floor Plans#
Additional Information#
| Date Initiated | 2017-08-23 |
| Ward | Ward 5 - Clarke Kelly |
| All Addresses | 210 Maple Creek Ct. 220 Maple Creek Ct. |

