231 Cobourg St.#
Last updated: 2026-04-01 · ID: D07-12-17-0047
Summary#
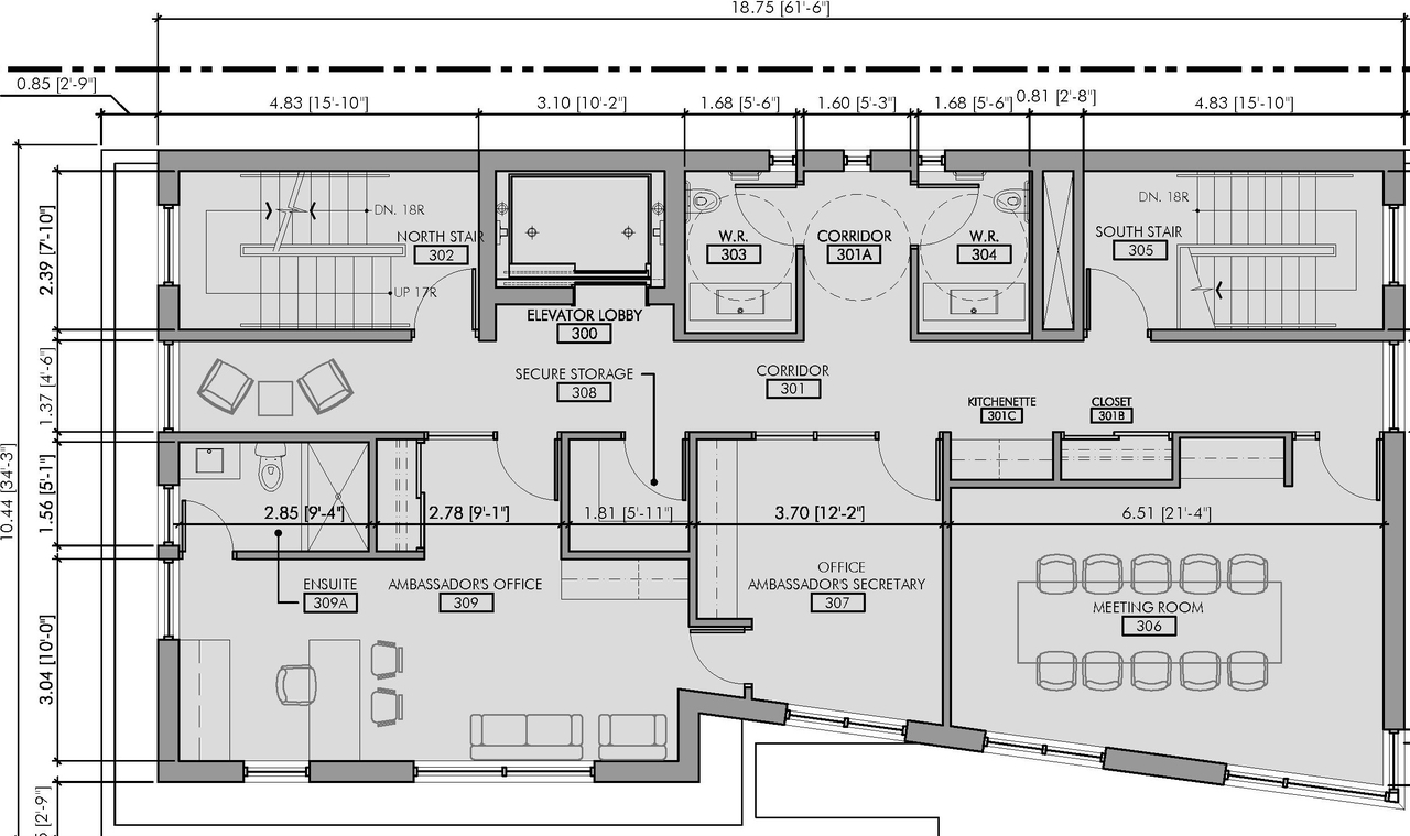
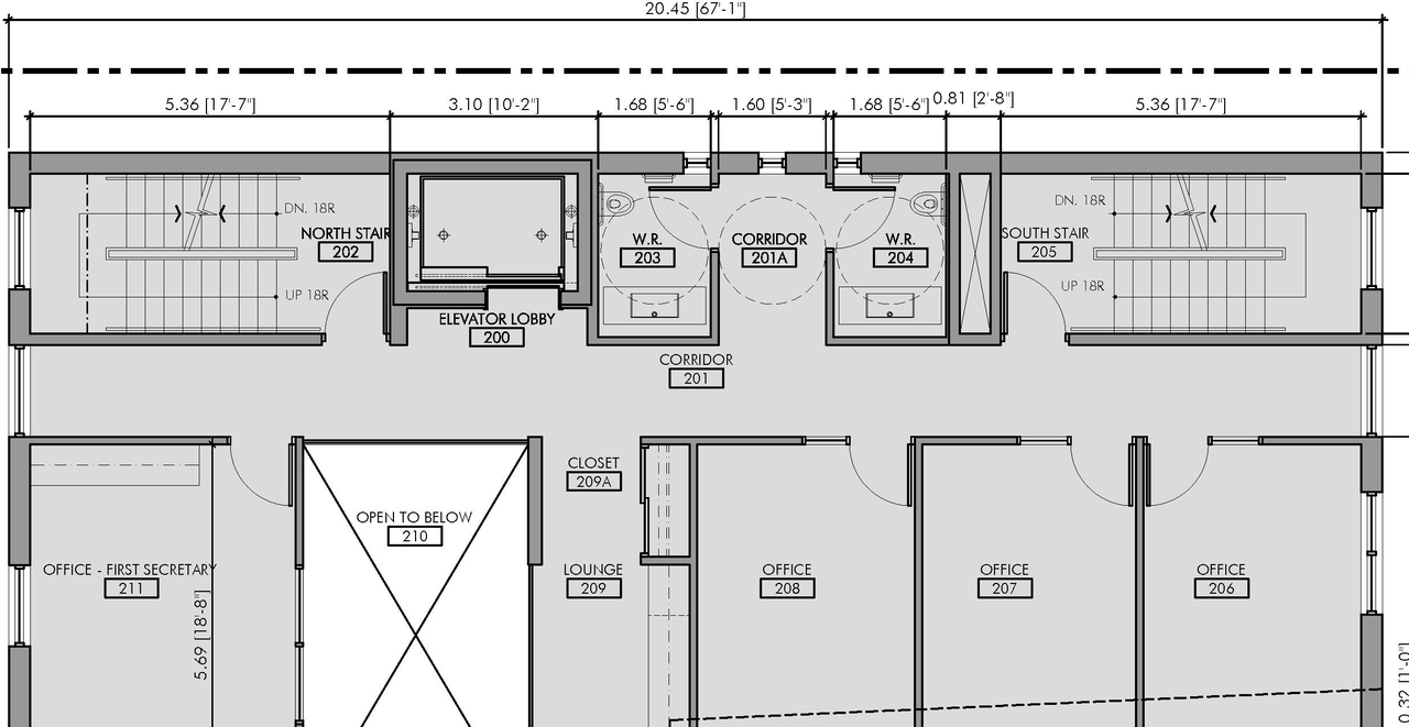
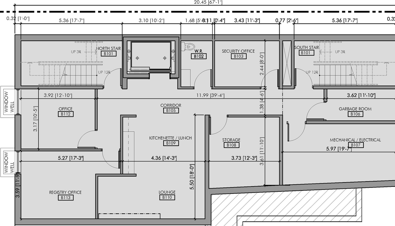
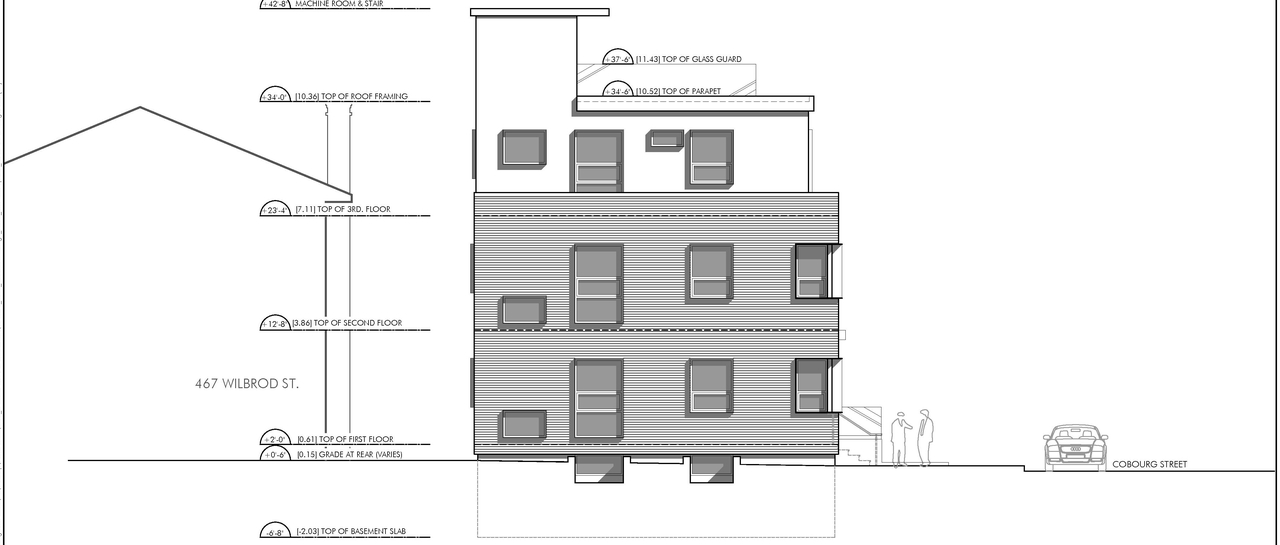
To demolish existing two storey and basement building and build new three storey building and basement within the relative footprint of the existing building. The new building is to be used for office of Urganga High Commission. Number of units and tenancy not applicabe.
Status
File Pending (Application File Pending)
Building Scale (Max.)
Based on elevation drawings. Values may be approximate. See sources for exact figures.
Low-rise · 3 storeys
· 11.4 m
Data Quality Note
Height was partially estimated using visual scale. This may be approximate.
Data Quality Note
Text was extracted using optical character recognition. This may introduce artifacts or misreads.
Location#
Select a marker to view the address.
Site Plans, Elevations and Floor Plans#
Additional Information#
| Date Initiated | 2017-04-19 |
| Ward | Ward 12 - Stéphanie Plante |





