261-277 King Edward Ave./260 Murray St.#
Last updated: 2016-06-14 · ID: D07-12-16-0045
Summary#
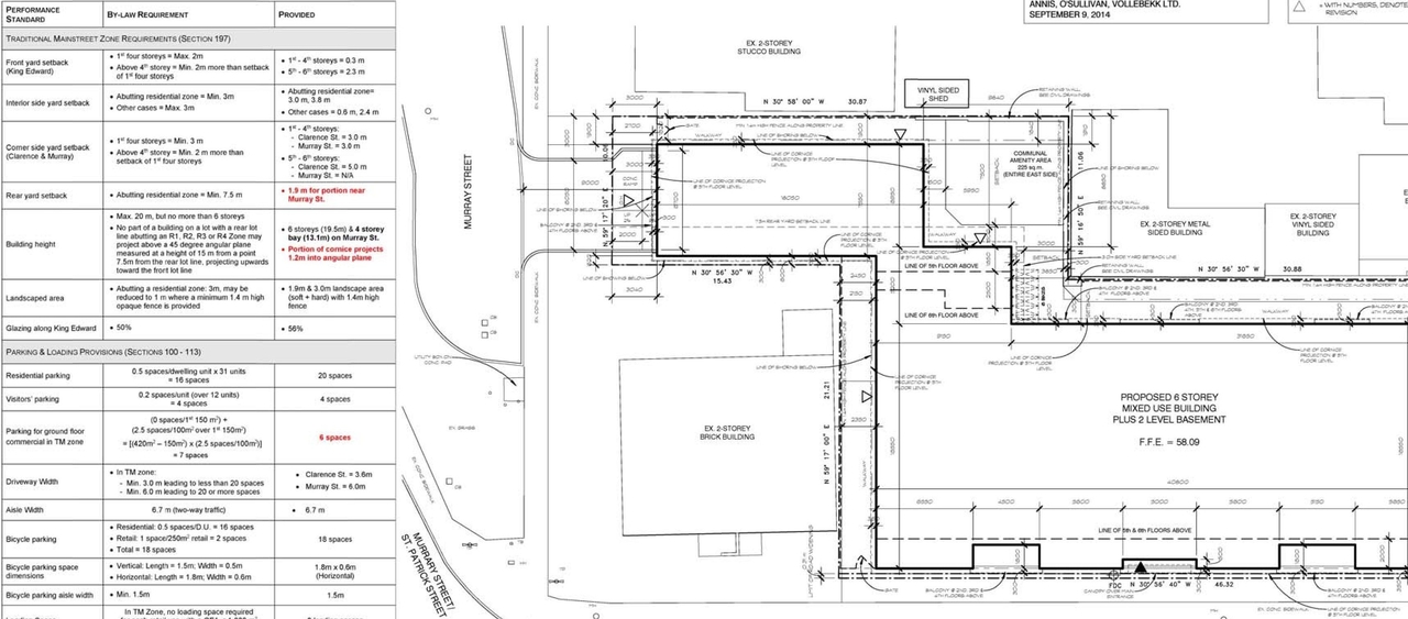
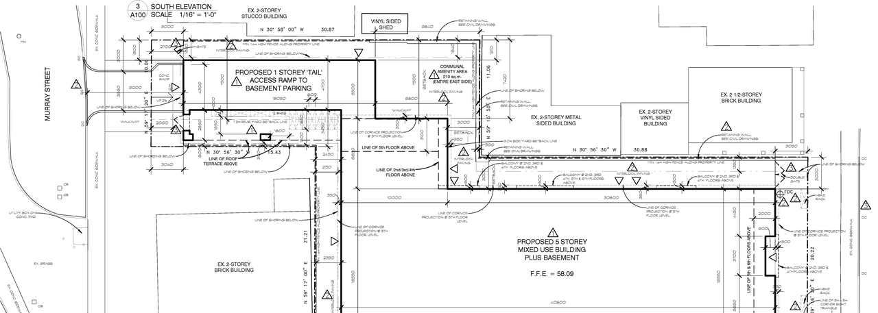
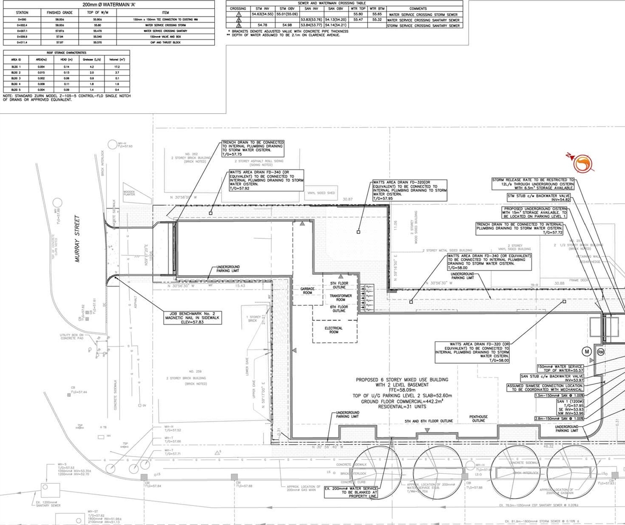
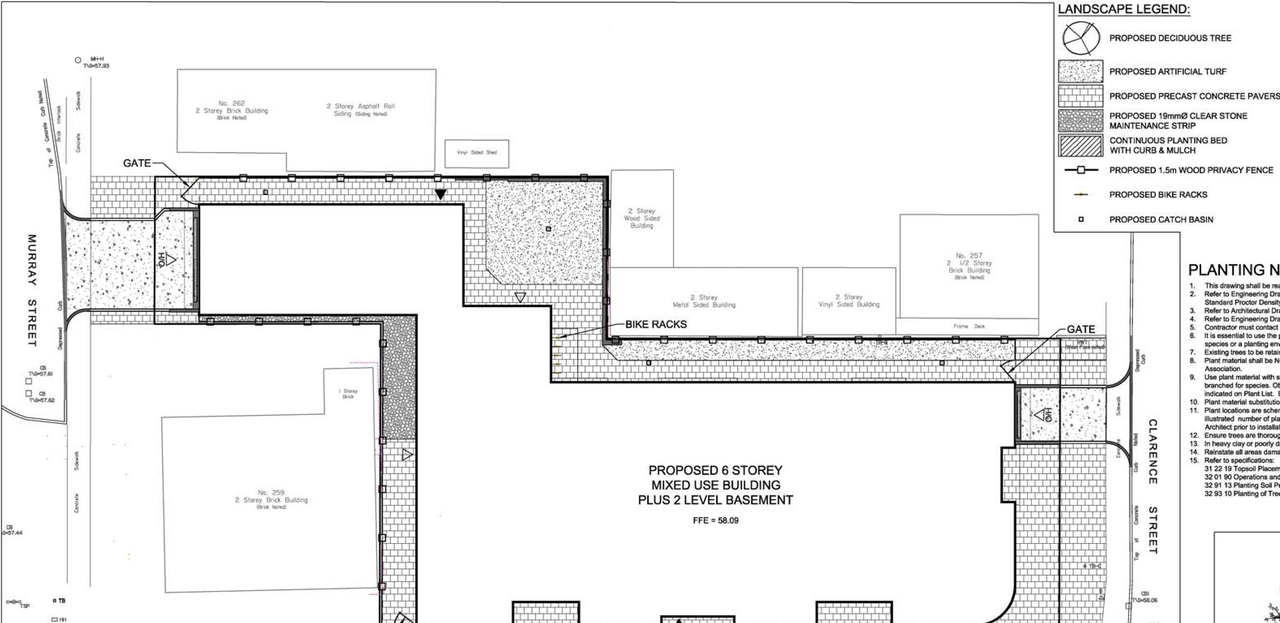
Part of Lots B and 7 North Clarence Street (formerly Parry Street) on Registered Plan 43586, in the City of Ottawa. The site is currently vacant.
Status
File Pending (Application File Pending)
Building Scale (Max.)
Based on elevation drawings. Values may be approximate. See sources for exact figures.
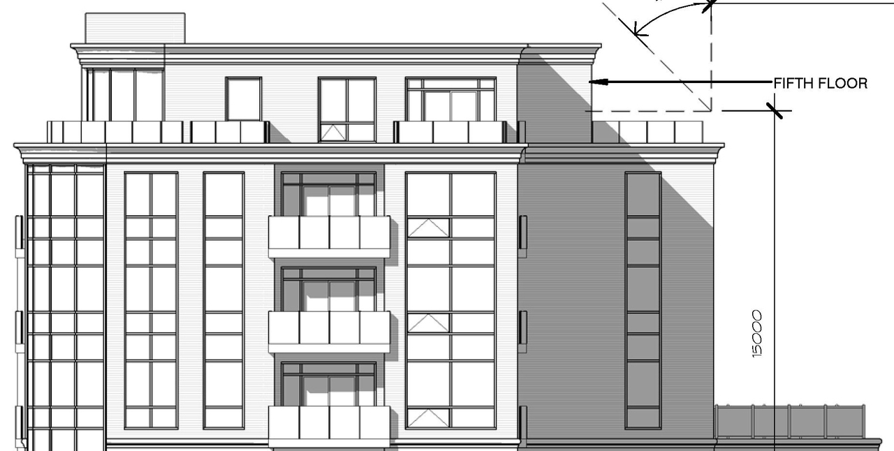
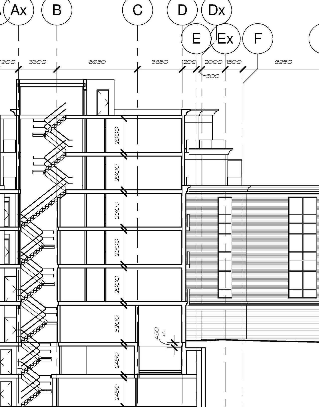
Mid-rise · 6 storeys
Renders#
Location#
Select a marker to view the address.
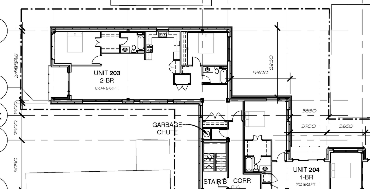
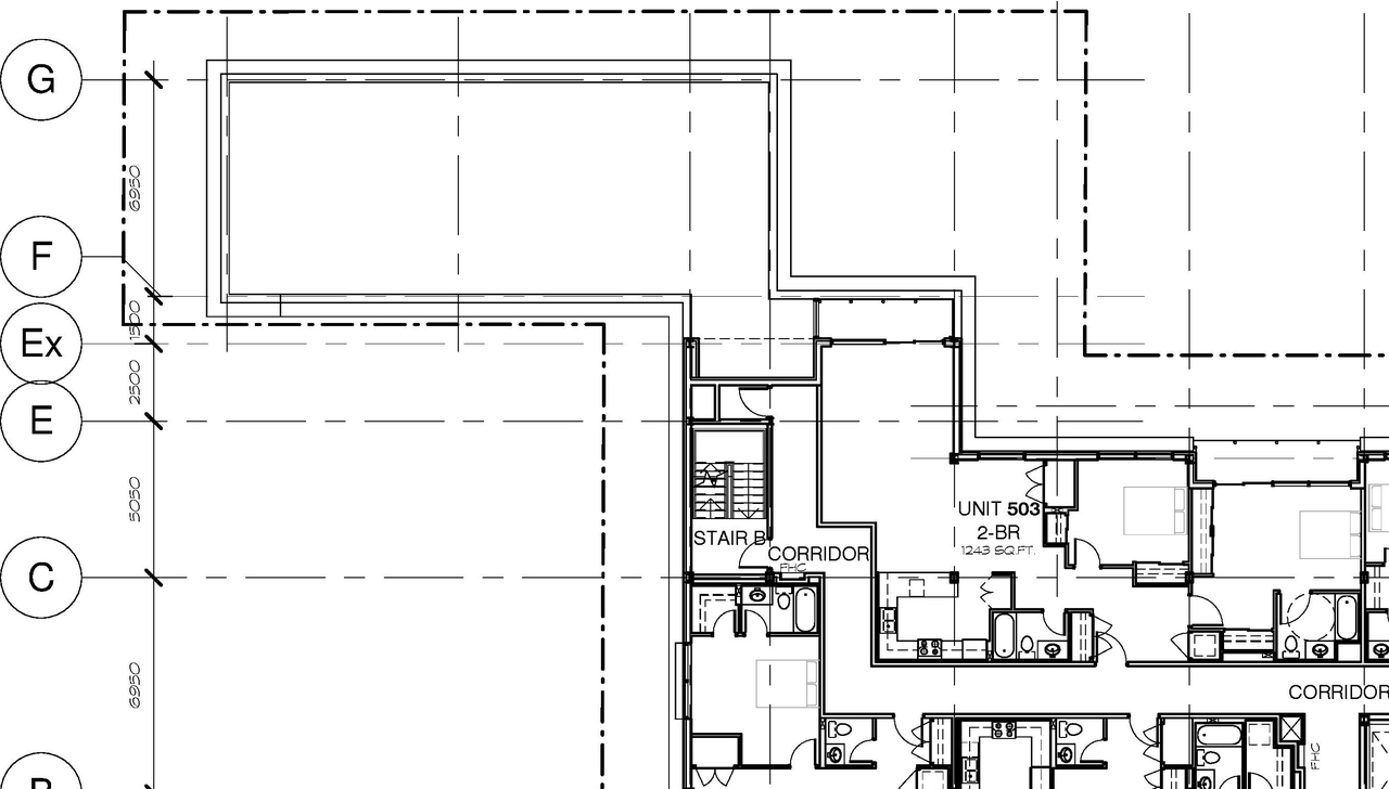
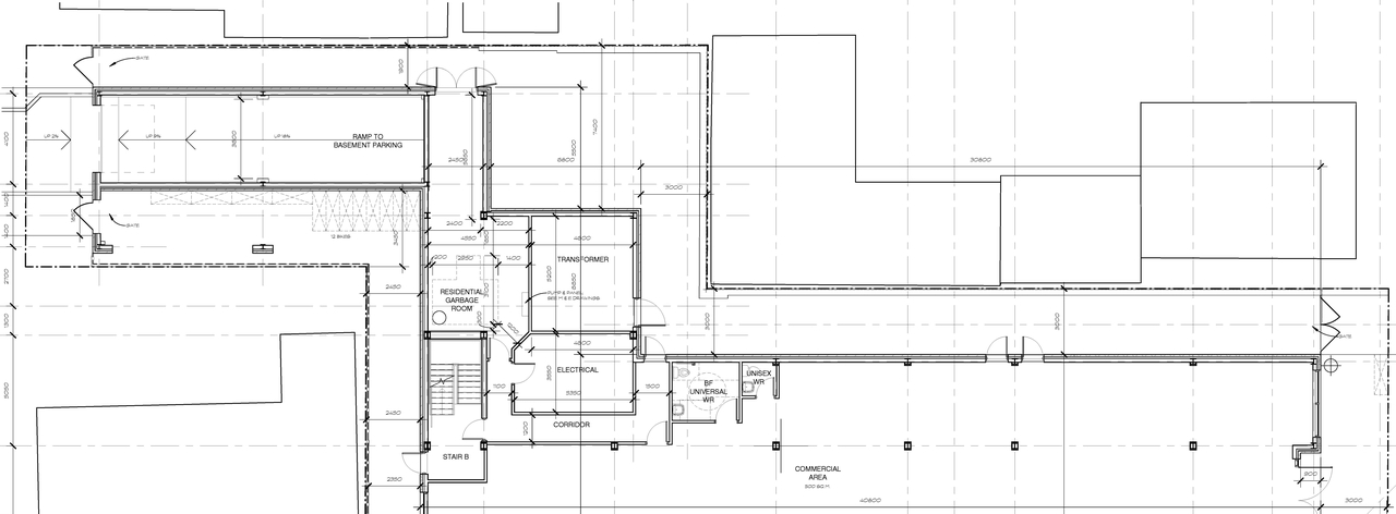
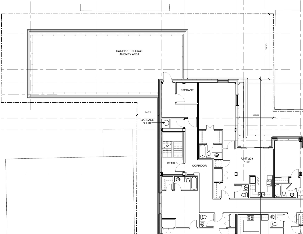
Site Plans, Elevations and Floor Plans#
Additional Information#
| Date Initiated | 2016-04-12 |
| Ward | Ward 12 - Stéphanie Plante |
| All Addresses | 261 King Edward Ave. 269 King Edward Ave. 277 King Edward Ave. 260 Murray St. |









































