137 Bay St./350 Sparks St.#
Summary#
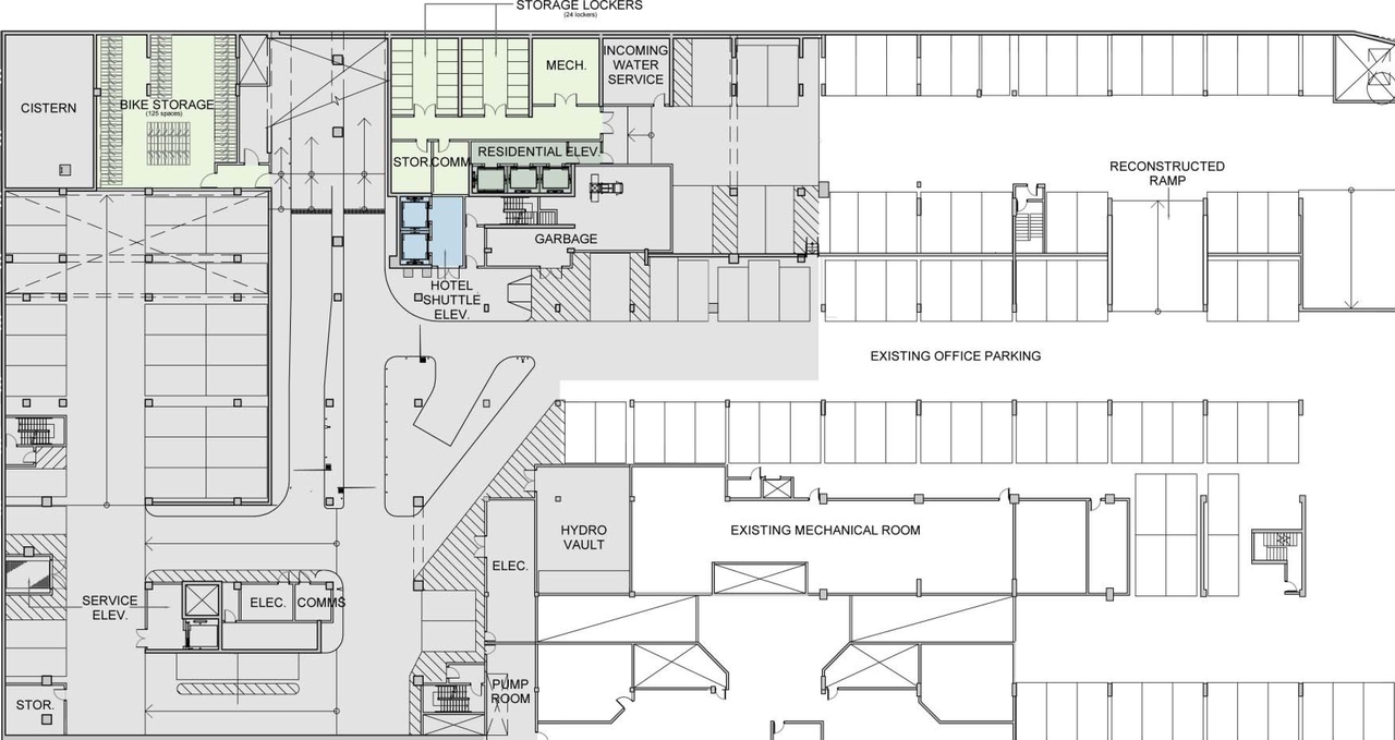
The City of Ottawa has received applications for Zoning By-law Amendment, Site Plan Control, and Demolition Control to permit the development of a 27-storey hotel and a 23-storey residential apartment building with ground level commercial space, an addition to the existing office building, and underground garage with 348 parking spaces.
Status
File Pending (Application File Pending)
Building Scale (Max.)
Based on elevation drawings. Values may be approximate. See sources for exact figures.
High-rise · 23 storeys
Data Quality Note
Text was extracted using optical character recognition. This may introduce artifacts or misreads.
· 48.4 m
Data Quality Note
Height was partially estimated using visual scale. This may be approximate.
Data Quality Note
Text was extracted using optical character recognition. This may introduce artifacts or misreads.
Renders#
Location#
Site Plans, Elevations and Floor Plans#
Additional Information#
| Date Initiated | 2015-06-30 |
| Ward | Ward 14 - Ariel Troster |


















































