215 McLeod St.#
Last updated: 2012-11-15 · ID: D07-12-12-0156
Summary#
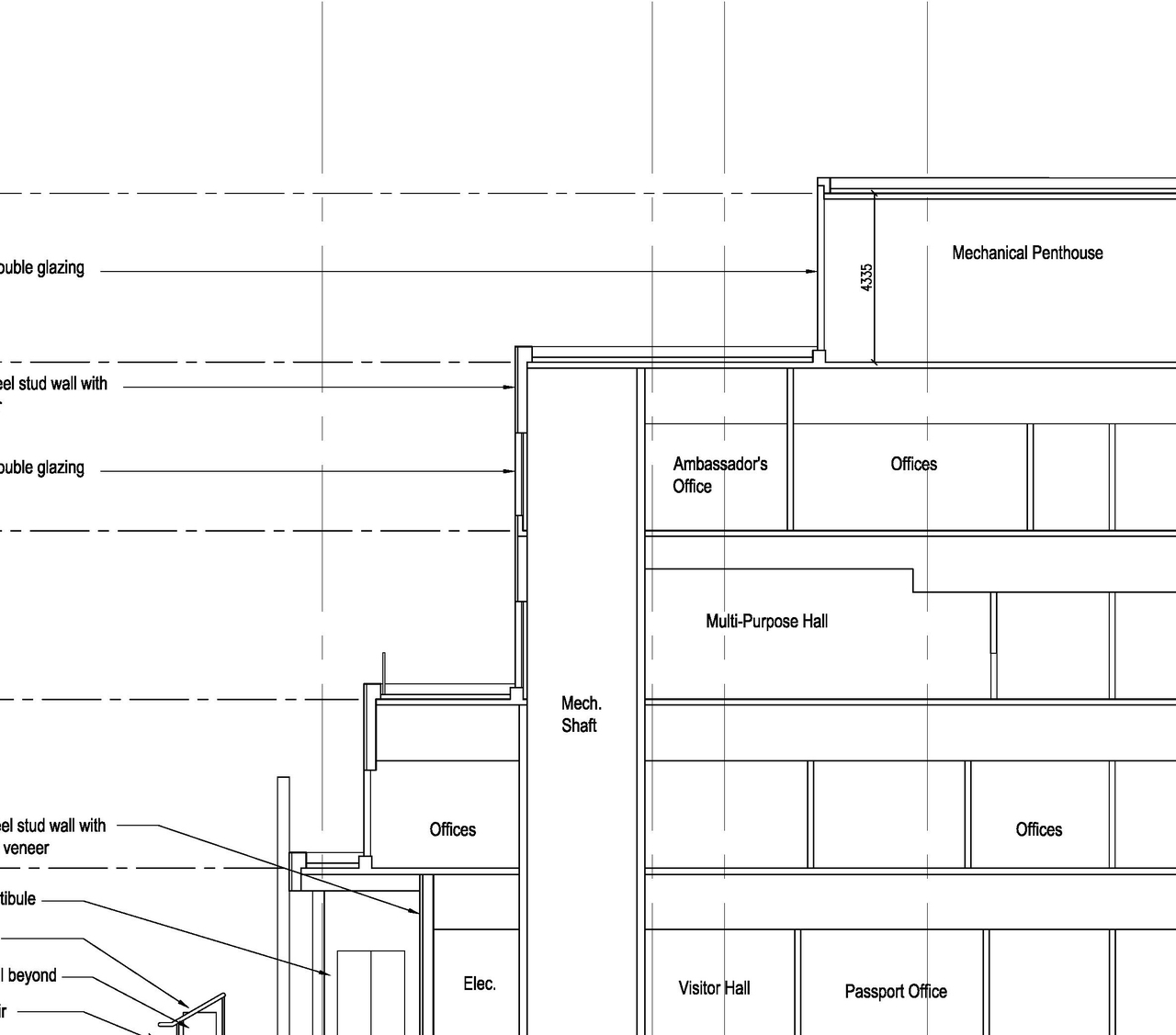
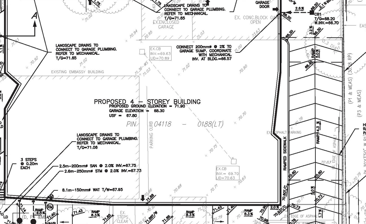
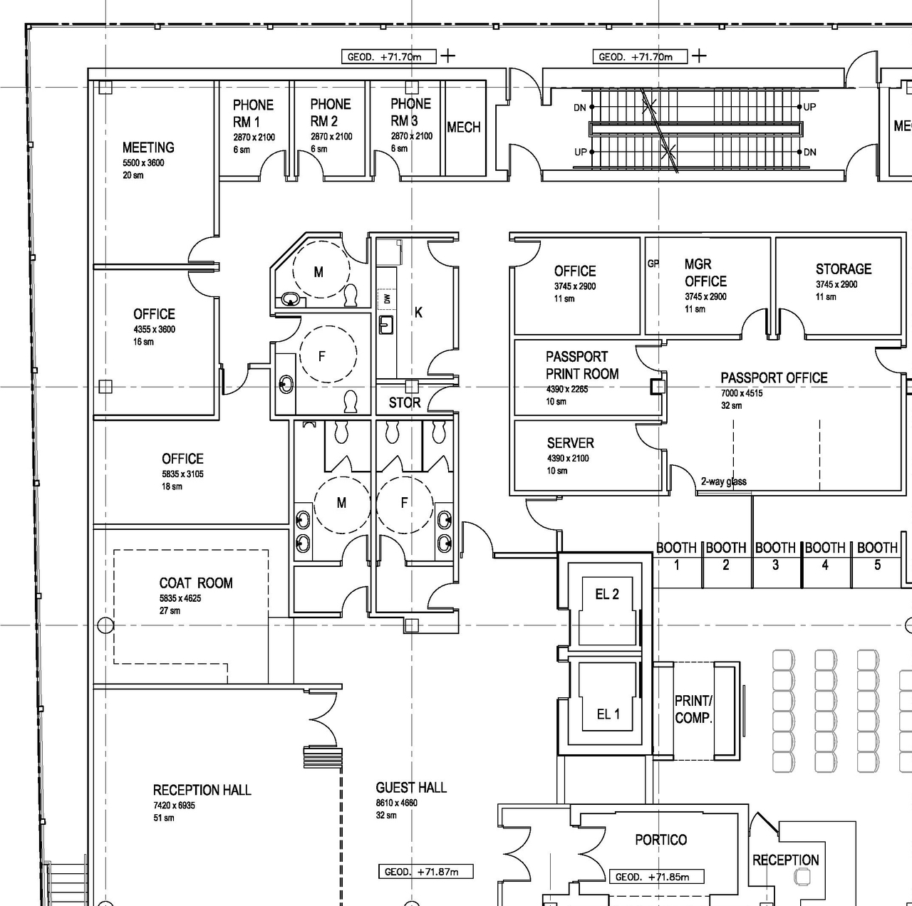
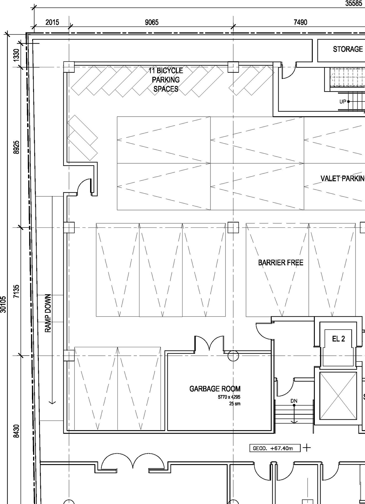
New 4 storey embassy building with a 1 sty below grade
Status
File Pending (Application File Pending)
Building Scale (Max.)
Based on elevation drawings. Values may be approximate. See sources for exact figures.
Mid-rise · 4 storeys
Data Quality Note
Text was extracted using optical character recognition. This may introduce artifacts or misreads.
· 19.47 m
Data Quality Note
Text was extracted using optical character recognition. This may introduce artifacts or misreads.
Renders#
Location#
Select a marker to view the address.
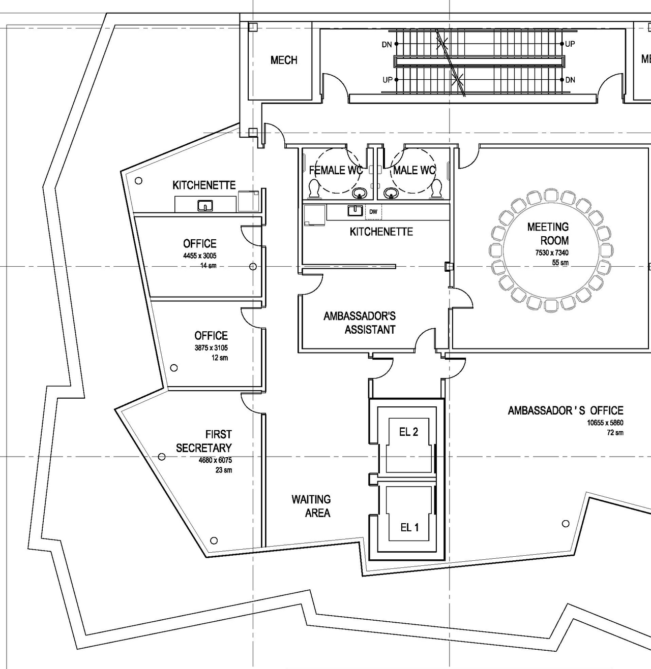
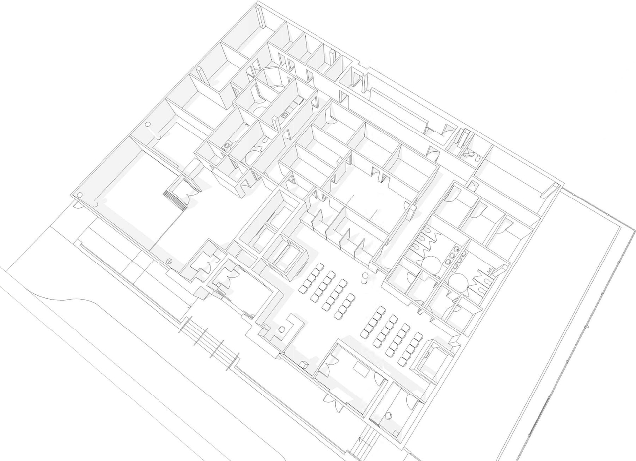
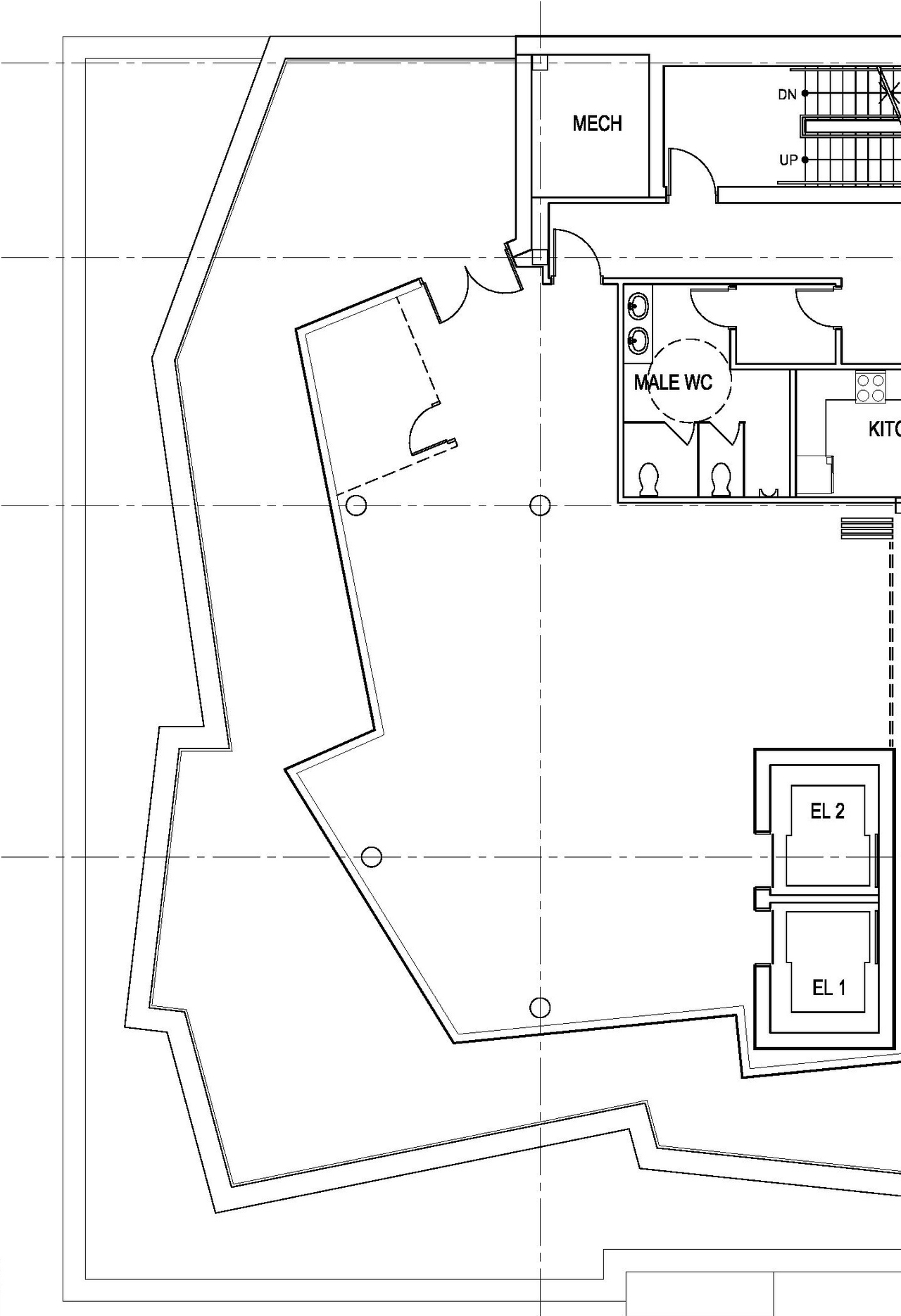
Site Plans, Elevations and Floor Plans#
Additional Information#
| Date Initiated | 2012-09-19 |
| Ward | Ward 14 - Ariel Troster |
Documents#
| Type | Document |
|---|---|
| Architectural Plans | Site and Landscape Plan Proposal |
| Architectural Plans | Proposed Embassy Elevations |
| Design Brief | Formal Design Review Submission. |
| Geotechnical Report | Geotechnical and Slope Stability Study for Embassy |
| Noise Study | Noise and Vibration Study for Embassy |
| Planning | Planning Rationale for Embassy |
| Shadow Study | Sun Shadow Study for Proposed Embassy |
| Site Servicing | Servicing and Erosion Control Report 215 McLeod Street |
| Transportation Analysis | Transportation Report for Embassy |
| Cultural Heritage Impact Study for Embassy |






















