485 Richmond Rd.#
Last updated: 2015-02-09 · ID: D07-12-12-0131
Summary#
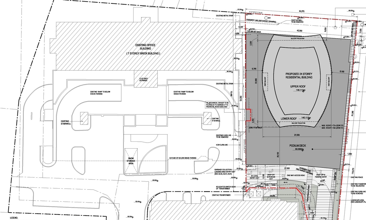
24-storey residential building with 4 levels of above and below grade parking
Status
Post Approval (Agreement Registered - Securities Held)
Building Scale (Max.)
Based on elevation drawings. Values may be approximate. See sources for exact figures.
Mid-rise · 9 storeys
Data Quality Note
Text was extracted using optical character recognition. This may introduce artifacts or misreads.
· 24.73 m
Data Quality Note
Text was extracted using optical character recognition. This may introduce artifacts or misreads.
Renders#
Location#
Select a marker to view the address.
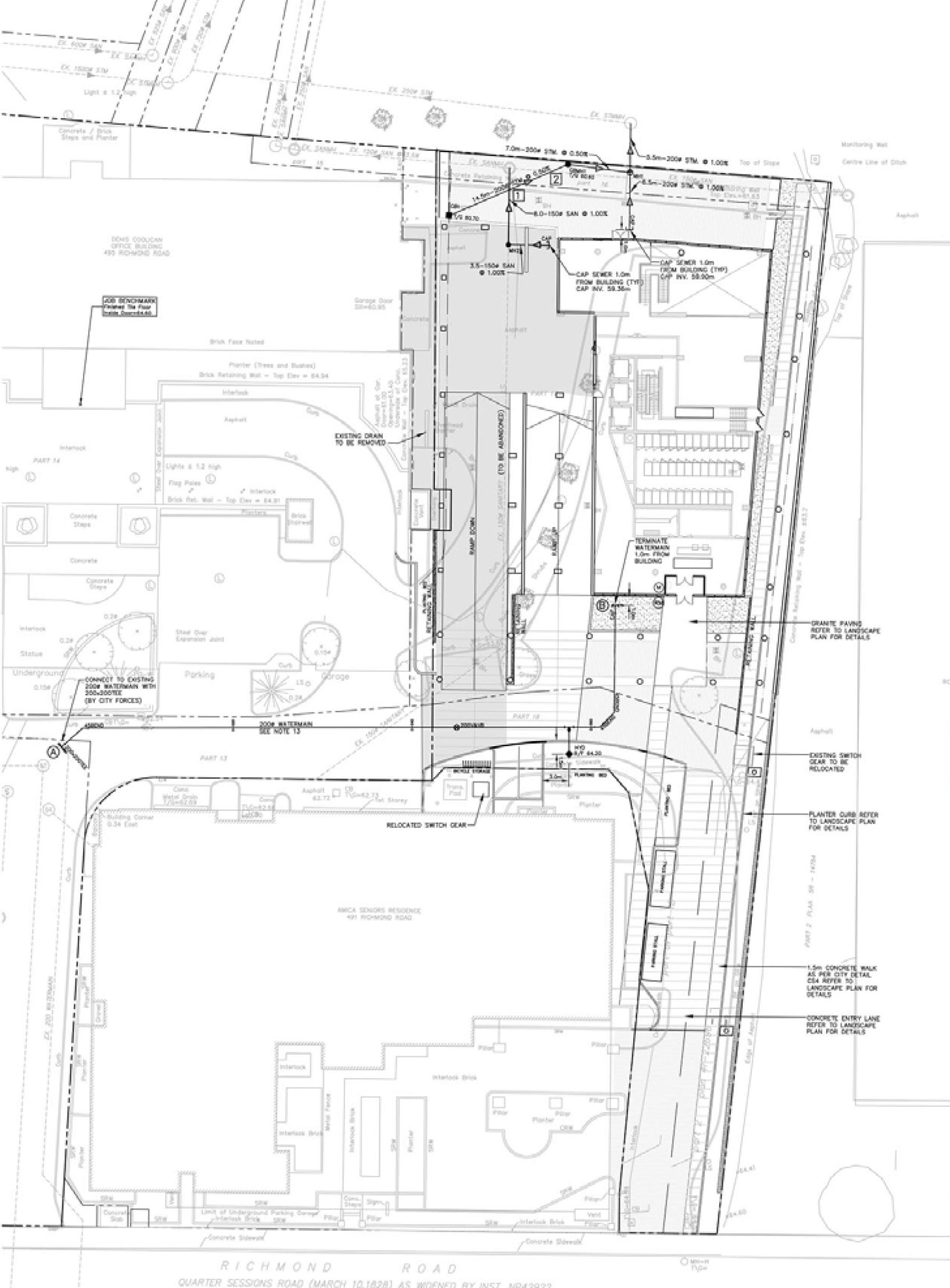
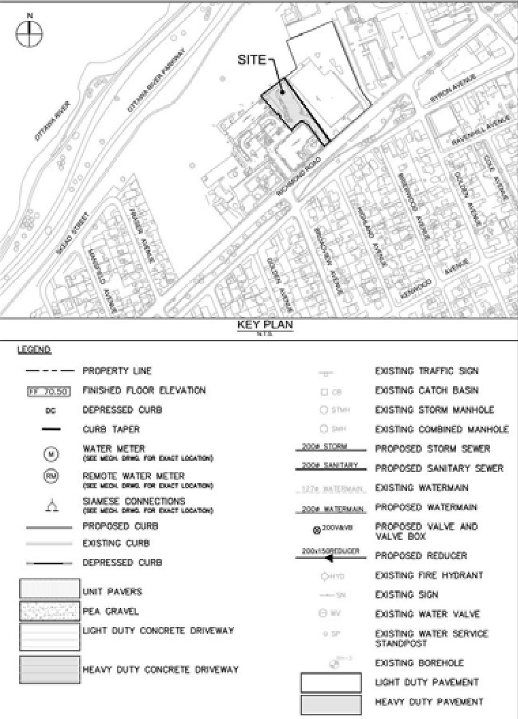
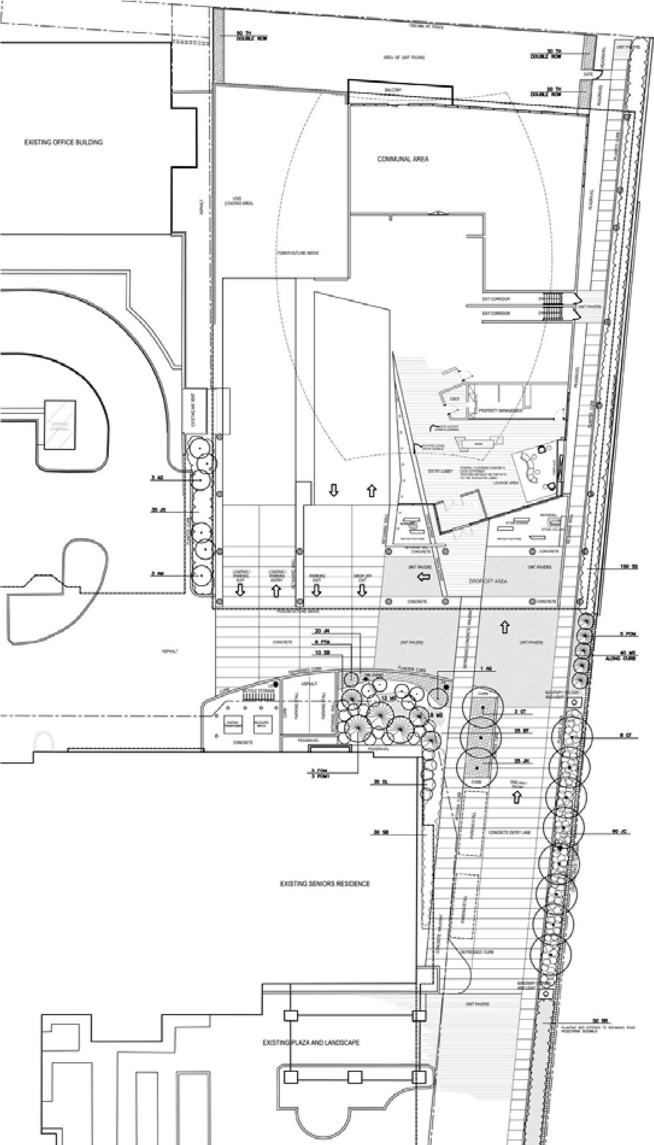
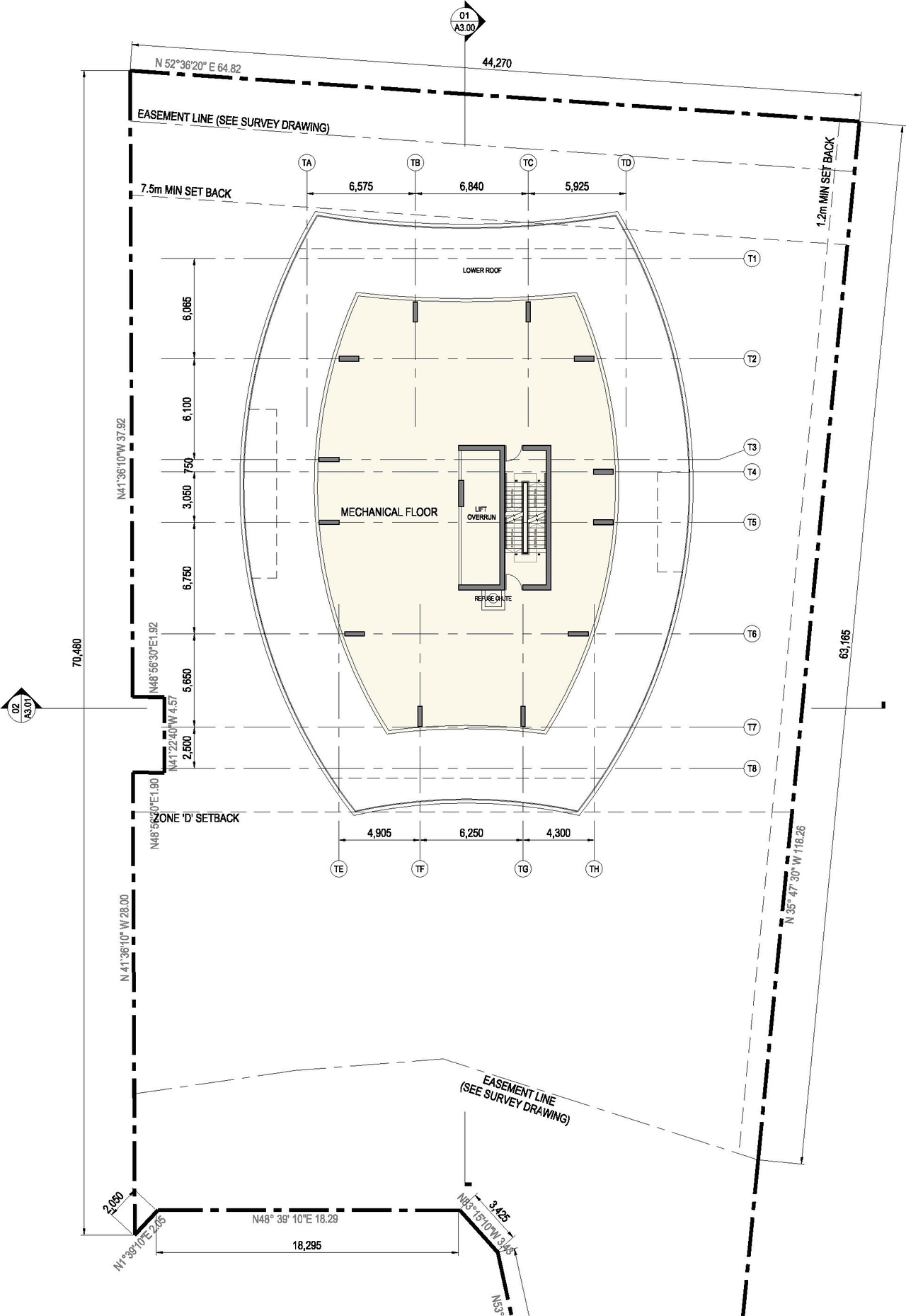
Site Plans, Elevations and Floor Plans#
Additional Information#
| Date Initiated | 2012-07-27 |
| Ward | Ward 7 - Theresa Kavanagh |





















