1050 Somerset St.#
Last updated: 2012-03-22 ยท ID: D07-12-12-0017
Summary#
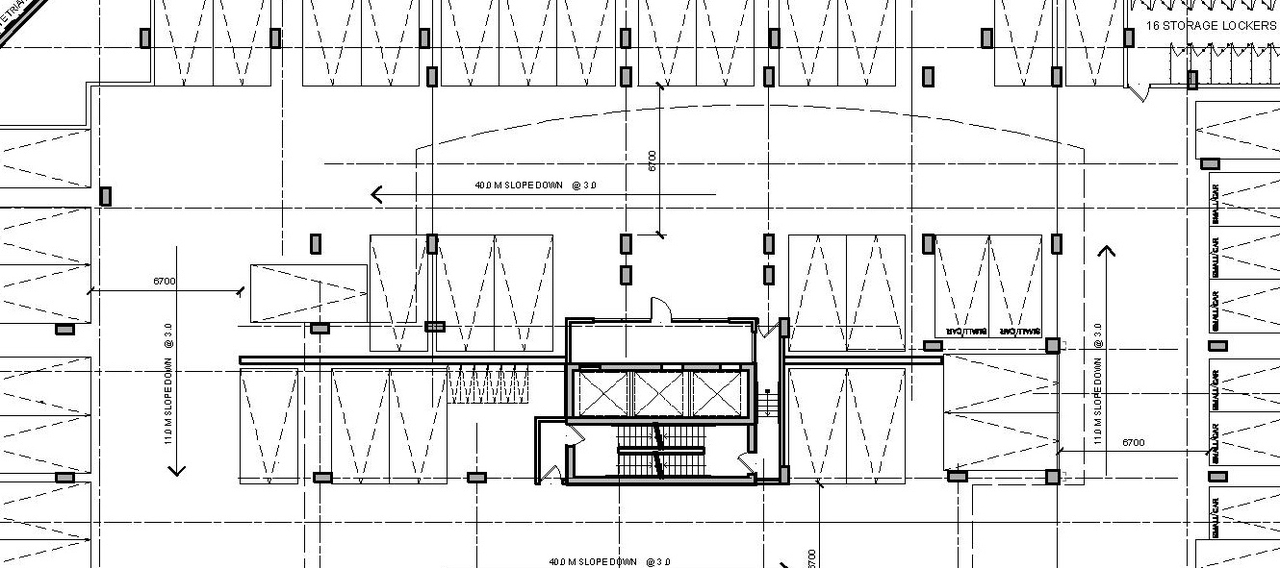
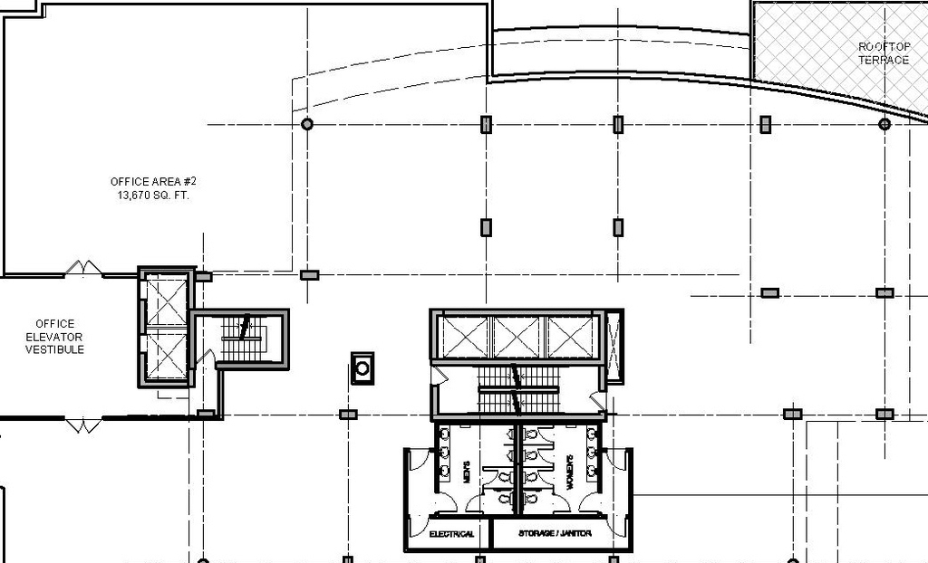
The proposed development includes a 28-storey mixed-use condominium tower with a total height of 86 metres. The development proposes 271 residential units, including seven ground-oriented attached dwellings, and 567 square metres of ground-oriented commercial space. Commercial entrances are proposed to front onto Somerset Street West, while the main residential entrance is proposed along Breezehill Avenue North. Five levels of underground parking, containing 244 parking spaces, are proposed to be accessed from the laneway along the western edge of the property.
Status
File Pending (Application File Pending)
Renders#
Location#
Select a marker to view the address.
Site Plans, Elevations and Floor Plans#
Additional Information#
| Date Initiated | 2012-02-08 |
| Ward | Ward 15 - Jeff Leiper |



































