288 Booth St.#
Last updated: 2012-01-23 ยท ID: D07-12-11-0166
Summary#
New 7-storey Mixed Use Building with 54 Residential units on all upper floors and Commercial on ground floor.
Status
File Pending (Application File Pending)
Renders#
Location#
Select a marker to view the address.
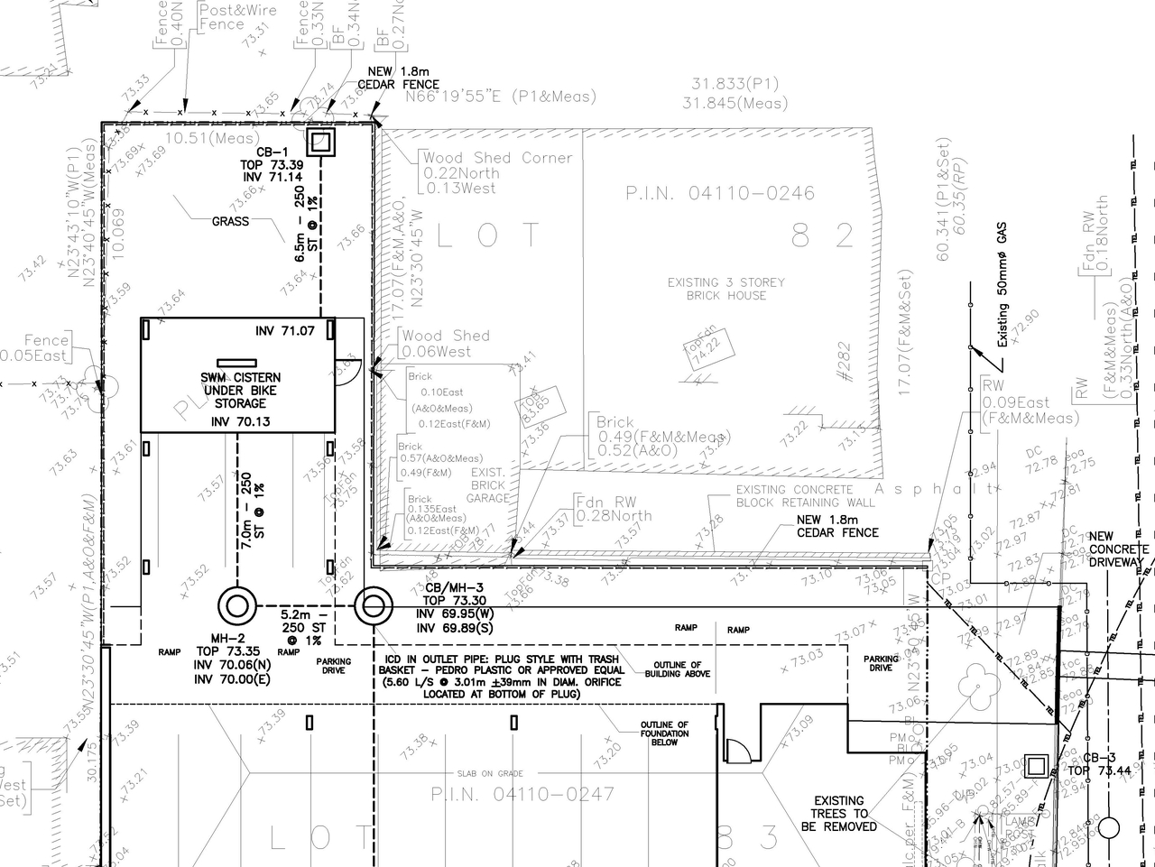
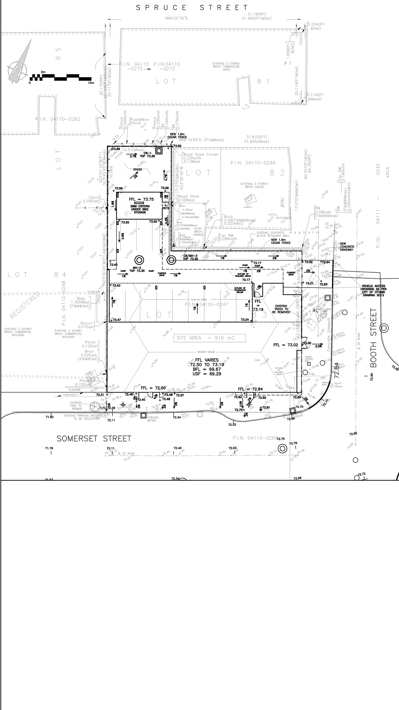
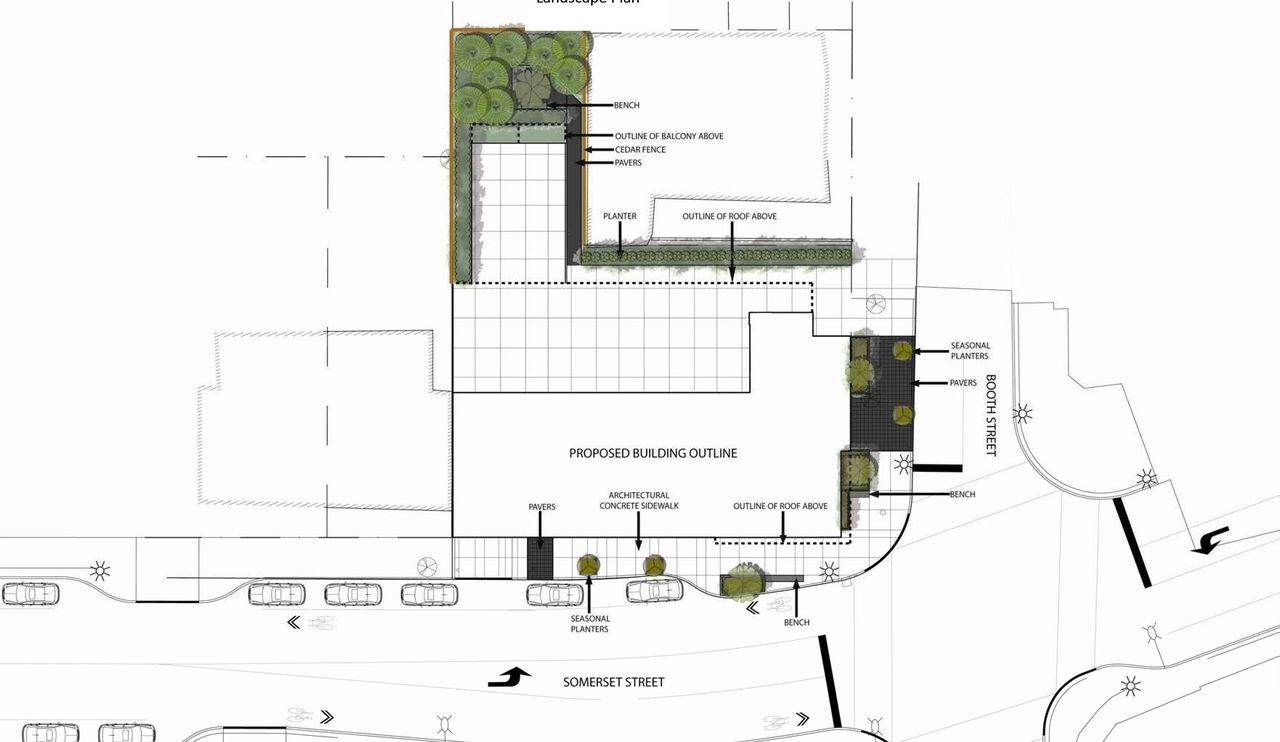
Site Plans, Elevations and Floor Plans#
Additional Information#
| Date Initiated | 2011-08-25 |
| Ward | Ward 14 - Ariel Troster |
Documents#
| Type | Document |
|---|---|
| Architectural Plans | D07-12-11-0166 Site Plan |
| Design Brief | Urban Design Brief D07-12-11-0166 |
| Landscape Plan | Landscape Plan D07-12-11-0166 |
| Stormwater Management | D07-12-11-0166 Stormwater Management Report |
| D07-12-11-0166 Servicing Brief | |
| D07-12-11-0166 Phase I & II Environmental Site Assessment | |
| D07-12-11-0166 Geotechnical Investigation |









