300 Central Park Dr.#
Last updated: 2013-08-06 · ID: D07-12-11-0136
Summary#
To construct a new private road within the site running north-south flanked by a series of seven new buildings to create a main street design concept. Building will consist of a two-storey retail podium with a residential condominium bar bauilding above/ or a residential condominum tower. One bar building will be intended for office use. Total number of new residential units to be approx 752
Status
File Pending (Application File Pending)
Renders#
Location#
Select a marker to view the address.
Project Updates#
Added description, 19 images and 1 document
- Status: File Pending (Application File Pending)
- To construct a new private road within the site running north-south flanked by a series of seven new buildings to create a main street desi…
- 8 renders
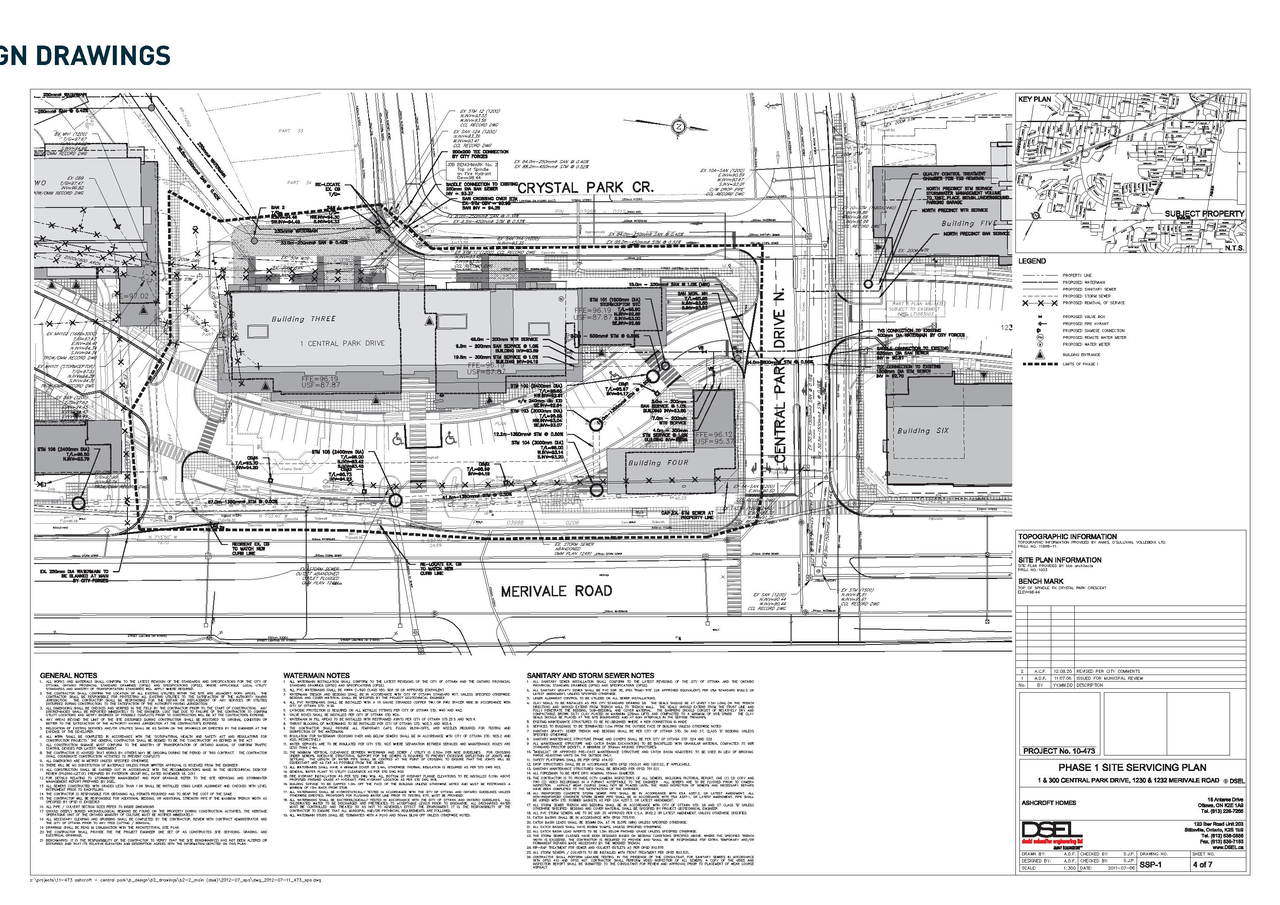
- 5 site plans
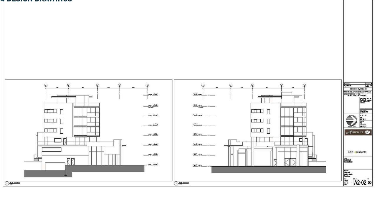
- 4 elevations
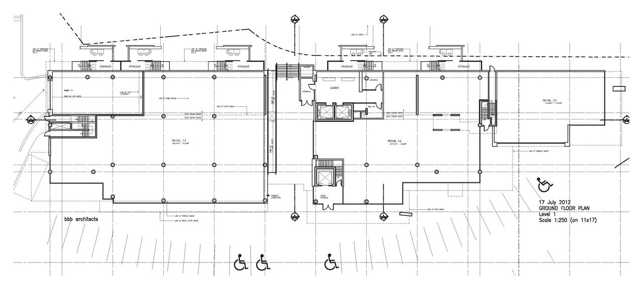
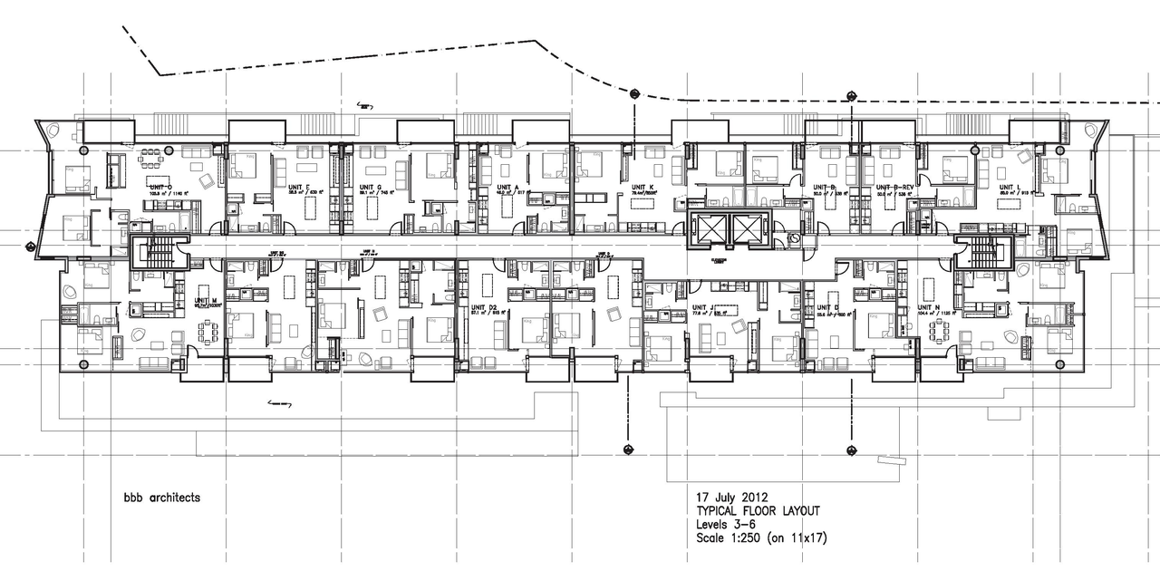
- 2 floor plans
Site Plans, Elevations and Floor Plans#
Additional Information#
| Date Initiated | 2011-07-06 |
| Ward | Ward 16 - Riley Brockington |
Documents#
| Type | Document |
|---|---|
| Architectural Plans | Nov 2012 Elevation |
| Architectural Plans | April 2013 REV site plan Phs 1 |
| Architectural Plans | April 2013 REV site plan overall |
| Design Brief | Urban Design Panel - Formal Submission |
| Erosion And Sediment Control Plan | Erosion Control Plan D07-12-11-0136 |
| Existing Conditions | Existing Conditions Plan D07-12-11-0136 |
| Geotechnical Report | Phase I Grading Plan D07-12-11-0136 |
| Geotechnical Report | Master Grading Plan D07-12-11-0136 |
| Landscape Plan | Phase I Landscape Plan D07-12-11-0136 |
| Landscape Plan | Overall Landscape Plan D07-12-11-0136 |
| Landscape Plan | April 2013 REV landscape plan L2 |
| Landscape Plan | April 2013 REV landscape plan L1 |
| Site Servicing | Servicing & Stormwater Management Plan D07-12-11-0136 |
| Site Servicing | Phase I Site Servicing Plan D07-12-11-0136 |
| Site Servicing | Master Servicing Plan D07-12-11-0136 |
| Transportation Analysis | Transportation Impact Study D07-12-11-0136 |


















