8415 Campeau Dr.#
Last updated: 2025-08-22 · ID: D07-04-22-0009
Summary#
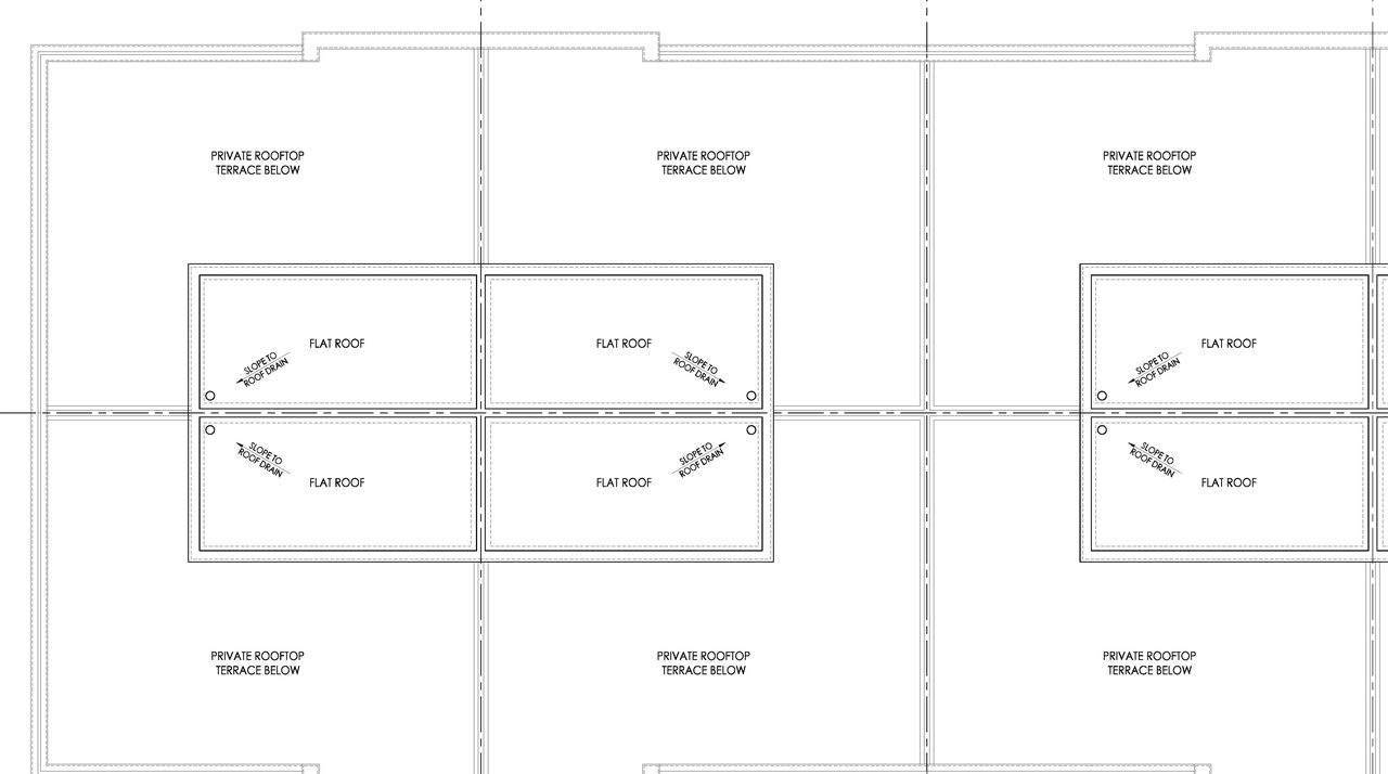
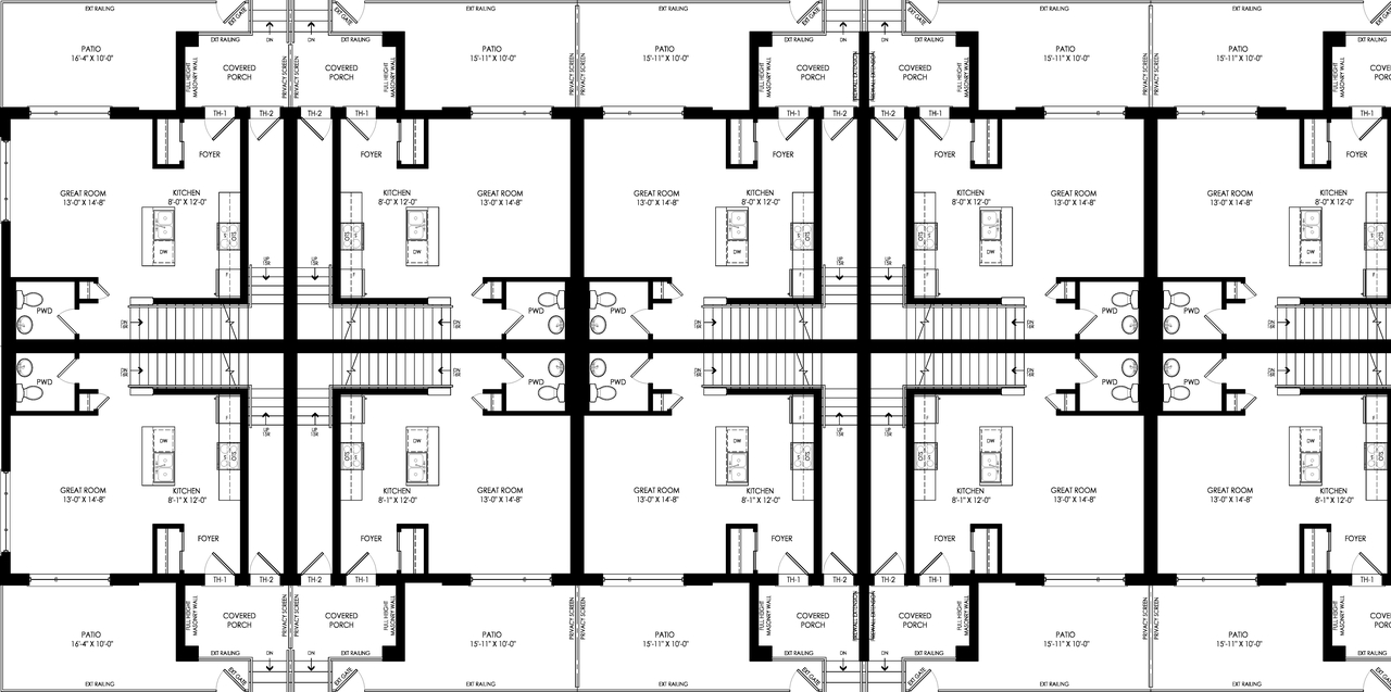
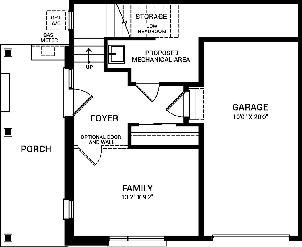
264 stacked townhouse dwelings; 104 townhouse dwellings; 314 parking spaces for stocked dwellings (above and below ground); and 208 parking spaces for the townhouse dwellings (1 in the garage and 1 on the driveway). One (1) 0.56 ho park block and two outdoor amenity areas
Status
Inactive (Agreement Registered - Securities Held)
Building Scale (Max.)
Based on elevation drawings. Values may be approximate. See sources for exact figures.
Low-rise · 3 storeys
· 17.7 m
Data Quality Note
Height was partially estimated using visual scale. This may be approximate.
Data Quality Note
Text was extracted using optical character recognition. This may introduce artifacts or misreads.
Renders#
Location#
Select a marker to view the address.
Site Plans, Elevations and Floor Plans#
Additional Information#
| Date Initiated | 2022-07-21 |
| Ward | Ward 4 - Cathy Curry |































































