596 Via Campanale Ave.#
Summary#
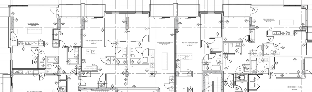
The proponent seeks to develop the subject site with a 9-storey mixed use, mid-rise building. The proposed development will be predominantly residential In nature with commercial retail uses at grade fronting onto the public realm. The proposed development will contain 99 dwelling units.
Status
Active (Comment Period in Progress)
Building Scale (Max.)
Based on elevation drawings. Values may be approximate. See sources for exact figures.
Mid-rise · 9 storeys
Data Quality Note
Text was extracted using optical character recognition. This may introduce artifacts or misreads.
· 28.8 m
Data Quality Note
Height was partially estimated using visual scale. This may be approximate.
Data Quality Note
Text was extracted using optical character recognition. This may introduce artifacts or misreads.
Renders#
Location#
Site Plans, Elevations and Floor Plans#
Additional Information#
| Date Initiated | 2026-03-11 |
| Ward | Ward 24 - Wilson Lo |











