71 Russell Ave.#
Summary#
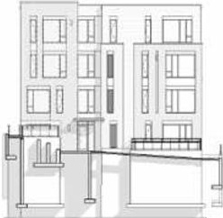
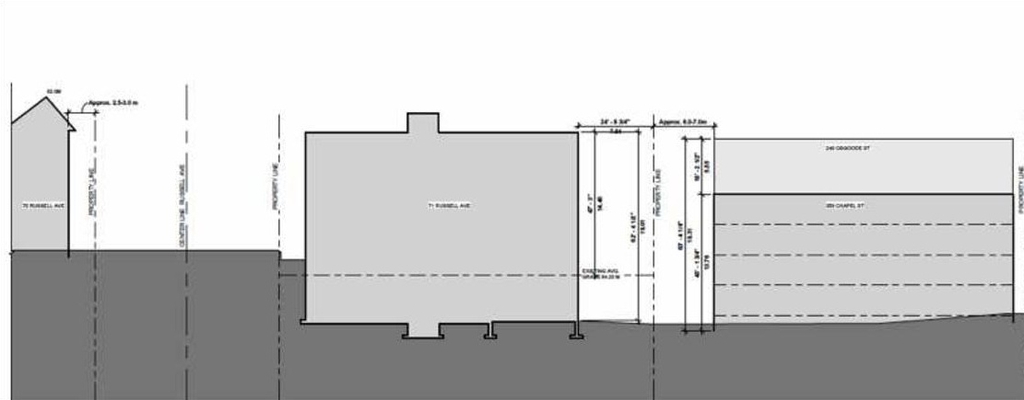
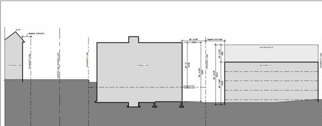
The proposed development is to demolish the existing 1-storey dwelling along with the existing 2 accessory structures in the rear and construct a 4-storey, 28-unit low-rise apartment dwelling. The proposed development proposes 28 bicycle parking spaces, zero vehicular parking spaces, a 1.8 m walkway from the sidewalk directly to the front door.
Status
Active (Comment Period in Progress)
Building Scale (Max.)
Based on elevation drawings. Values may be approximate. See sources for exact figures.
Mid-rise · 4 storeys
Data Quality Note
Text was extracted using optical character recognition. This may introduce artifacts or misreads.
· 14.4 m
Data Quality Note
Text was extracted using optical character recognition. This may introduce artifacts or misreads.
Renders#
Location#
Site Plans, Elevations and Floor Plans#
Additional Information#
| Date Initiated | 2026-02-11 |
| Ward | Ward 12 - Stéphanie Plante |





















