1746 Carling Ave.#
Last updated: 2026-03-07 · ID: D02-02-26-0011
Summary#
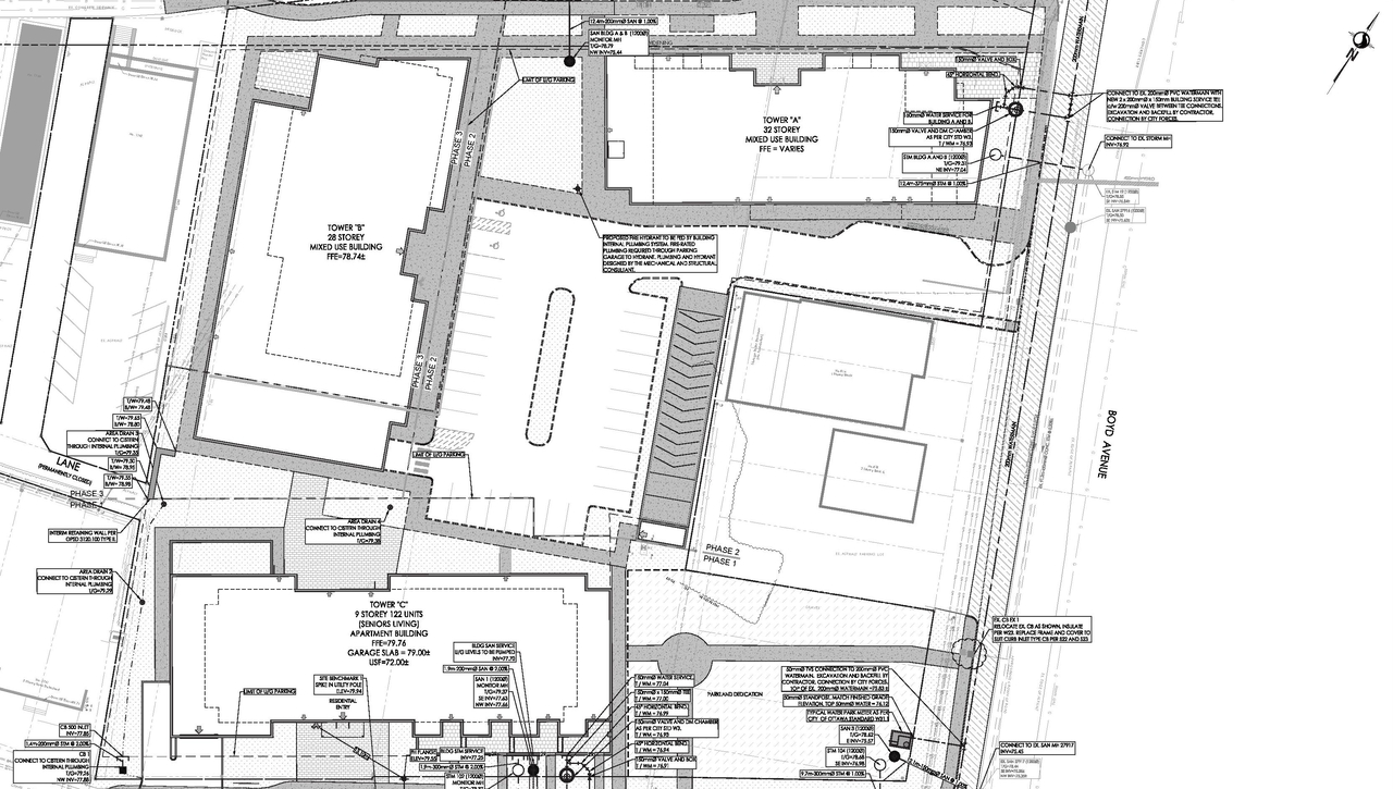
The City of Ottawa has received Zoning By-law Amendment and Site Plan Control applications to permit two high-rise buildings along Carling Avenue, a mid-rise building along Kerr Avenue and a park at the northwest corner of Boyd and Kerr Avenue.
Status
Active (Comment Period in Progress)
Building Scale (Max.)
Based on elevation drawings. Values may be approximate. See sources for exact figures.
High-rise · 32 storeys
· 96.5 m
Renders#
Location#
Select a marker to view the address.
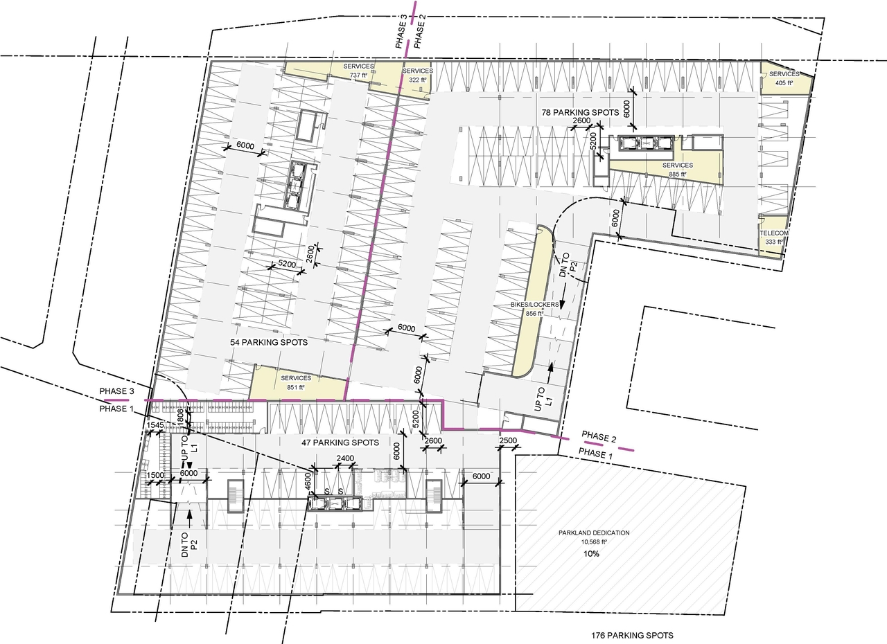
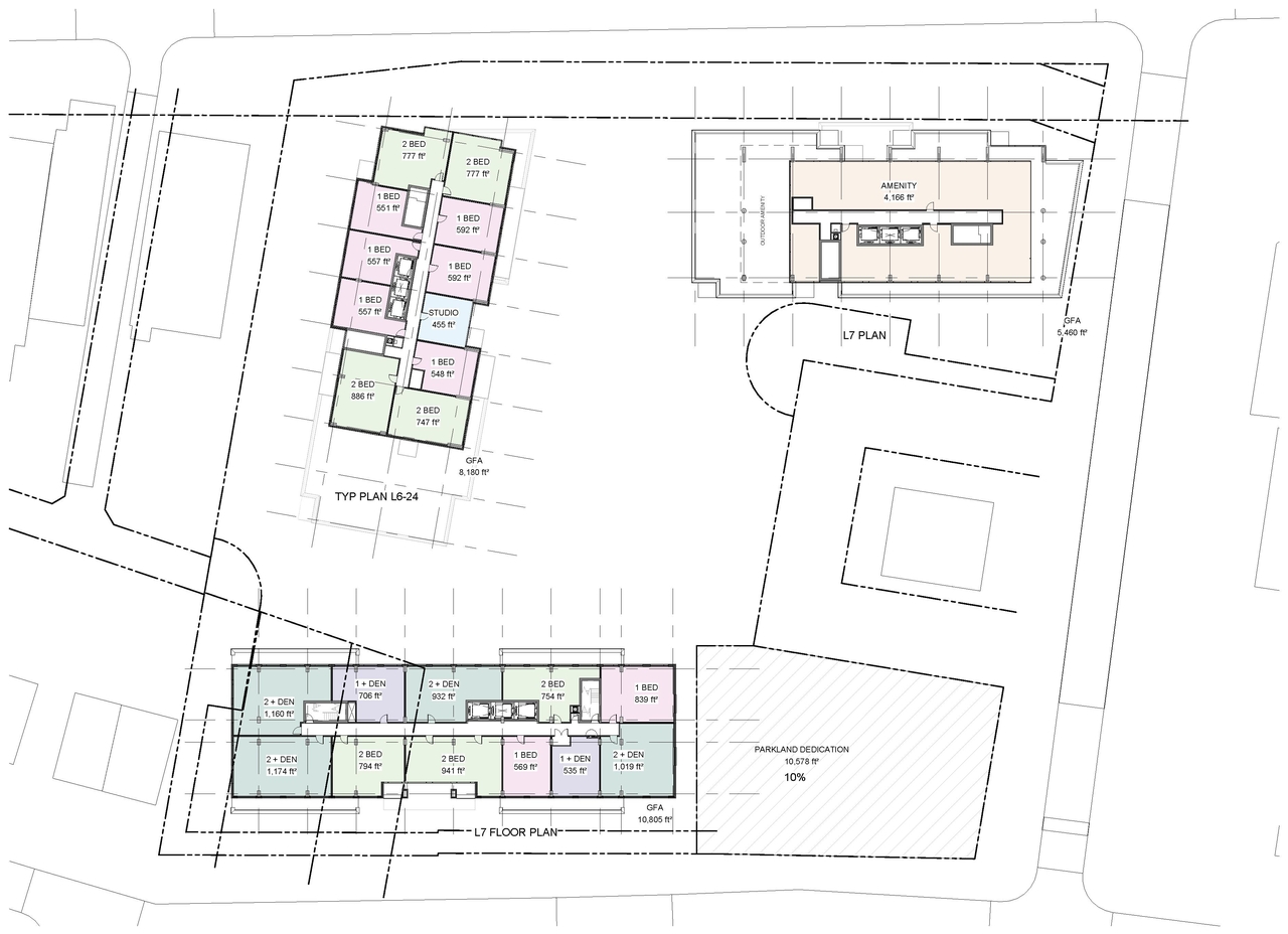
Site Plans, Elevations and Floor Plans#
Additional Information#
| Date Initiated | 2026-02-10 |
| Ward | Ward 7 - Theresa Kavanagh |




















