1767-1773 Baseline Rd.#
Last updated: 2026-03-03 · ID: D02-02-25-0098
Summary#
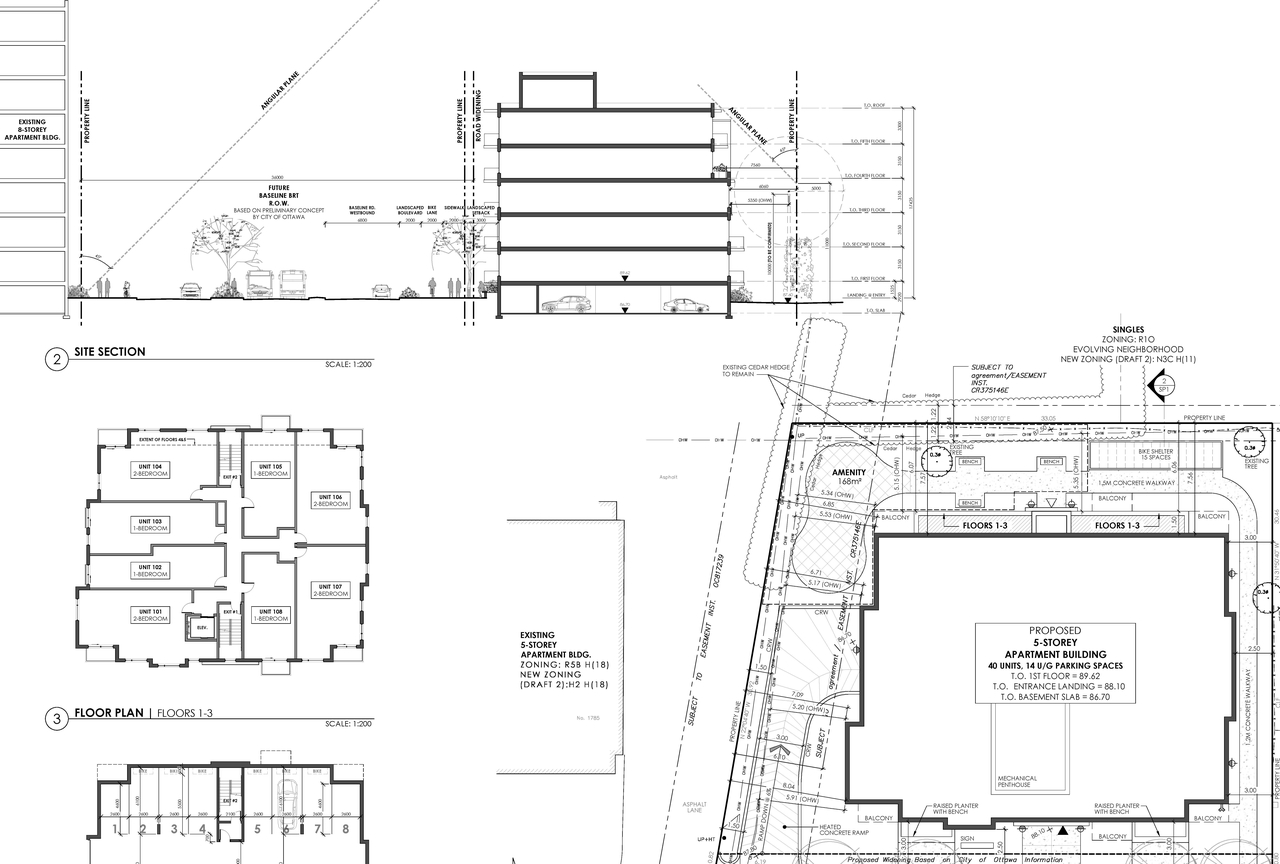
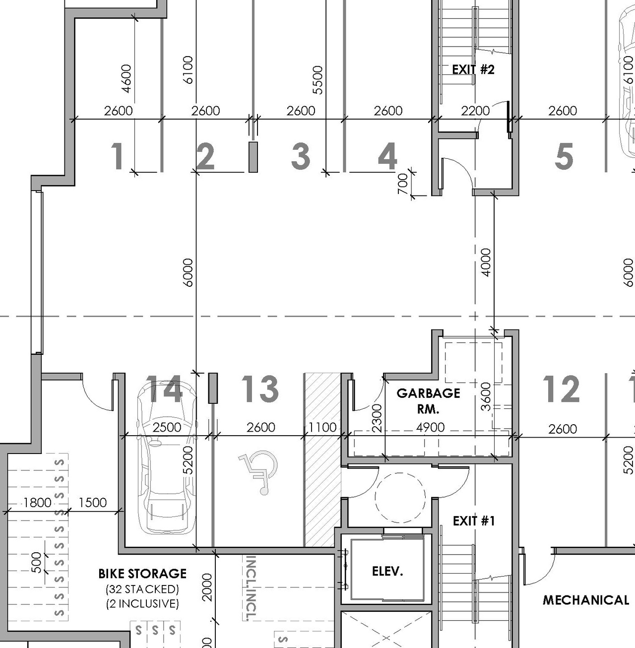
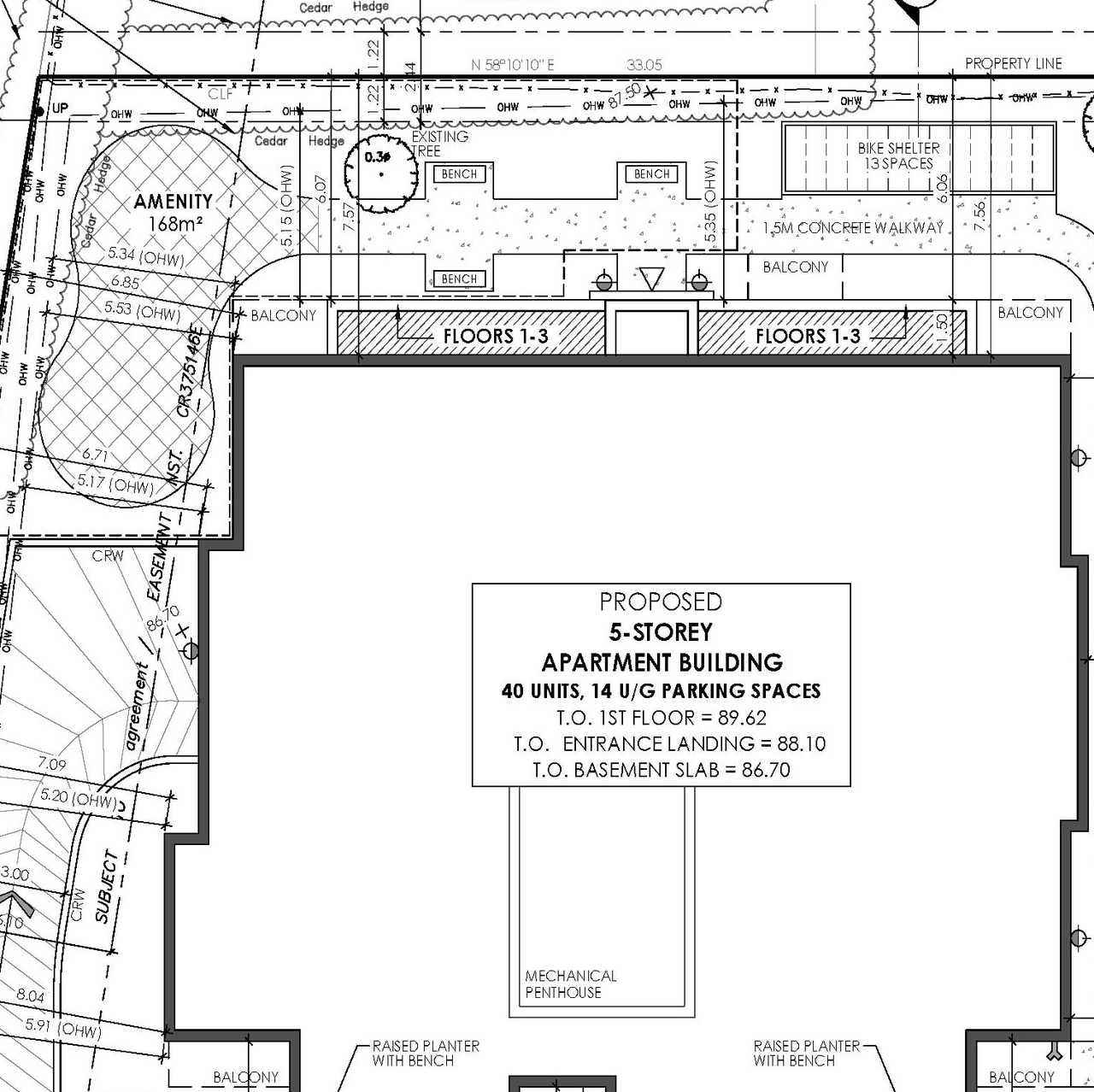
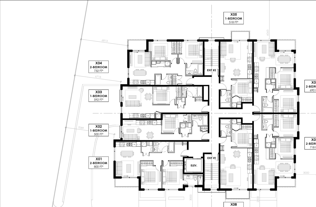
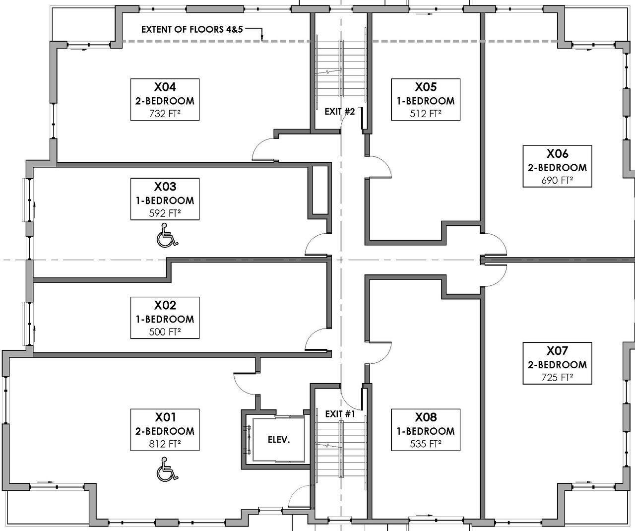
A 5-storey residential apartment building with 40 units and 14 underground parking spaces.
Status
Active (Comment Period in Progress)
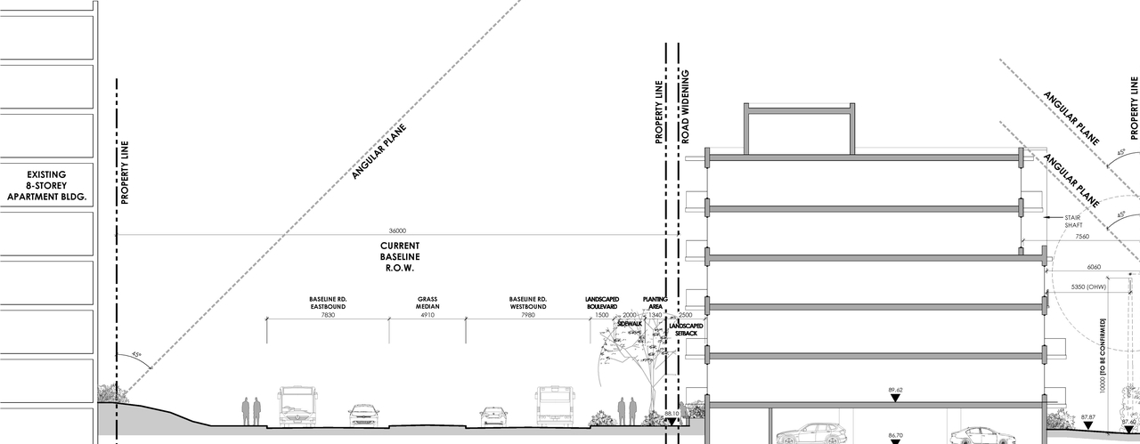
Building Scale (Max.)
Based on elevation drawings. Values may be approximate. See sources for exact figures.
Mid-rise · 5 storeys
· 20.7 m
Data Quality Note
Height was partially estimated using visual scale. This may be approximate.
Renders#
Location#
Select a marker to view the address.
Site Plans, Elevations and Floor Plans#
Additional Information#
| Date Initiated | 2025-12-16 |
| Ward | Ward 8 - Laine Johnson |
| All Addresses | 1767 Baseline Rd. 1773 Baseline Rd. |





















