15-17 Oblats#
Last updated: 2026-04-01 · ID: D02-02-25-0094
Summary#
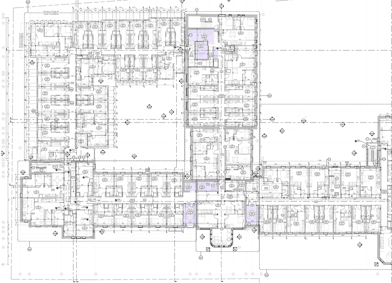
The City of Ottawa has received a Zoning By-law Amendment application to reduce the total required amenity area of 1,776.0 m² by removing the previously proposed rooftop amenity area of 633.06 m², resulting in a new total of 1,316.3 m² of amenity area, 459.7 m² below the total required by the zoning by-law.
Status
Active (Councillor Concurs)
Location#
Select a marker to view the address.
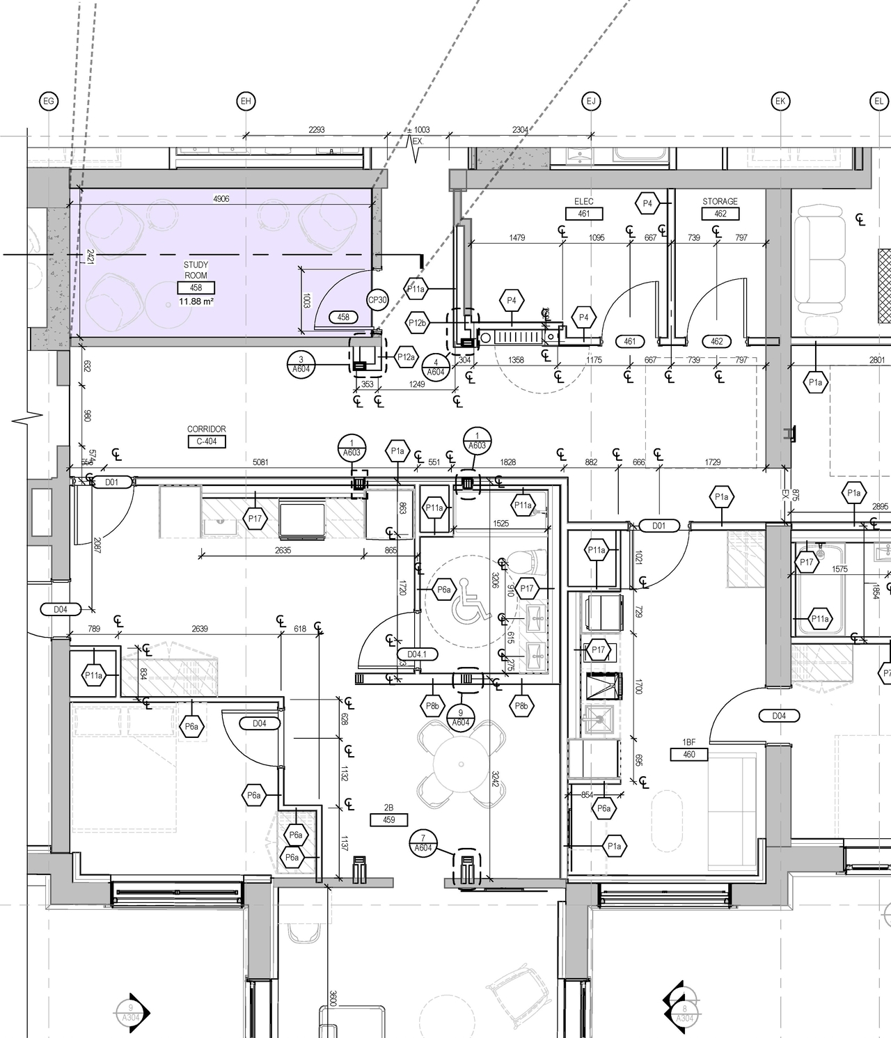
Site Plans, Elevations and Floor Plans#
Additional Information#
| Date Initiated | 2025-12-10 |
| Ward | Ward 17 - Shawn Menard |
| All Addresses | 15 Oblats 17 Oblats |
Documents#
| Type | Document |
|---|---|
| Architectural Plans | 2026-01-08 - Site Plan - D02-02-25-0094 |
| Architectural Plans | 2026-01-08 - Floor and Elevation Plans - D02-02-25-0094 |
| Architectural Plans | 2025-12-10 - Landscape Plan - D02-02-25-0094 |
| Architectural Plans | 2026-02-26 - Site Plan - D02-02-25-0094 |
| Architectural Plans | 2026-02-26 - Landscape Plan ASK 5 - D02-02-25-0094 |
| Floor Plan | 2026-02-26 - Floor Plans Amenity Area - D02-02-25-0094 |
| 2026-01-18 - Application Summary - D02-02-25-0094 | |
| 2026-01-08 - Planning Rationale and Zoning Confirmation Report - D02-02-0094 | |
| 2026-02-26 - Amenity Area Breakdown Stats - D02-02-25-0094 |
Related Projects#
| Project | Last Updated | Date Initiated |
|---|---|---|
15-17 Oblats
D07-12-22-0124 | 2025-09-09 | 2022-08-23 |
15-17 Oblats
D02-02-22-0083 | 2023-11-09 | 2022-08-23 |













