Ottawa Development Projects

6310-6320 Hazeldean Rd.#

Last updated: 2026-03-24 · ID: D02-02-25-0063

Summary#

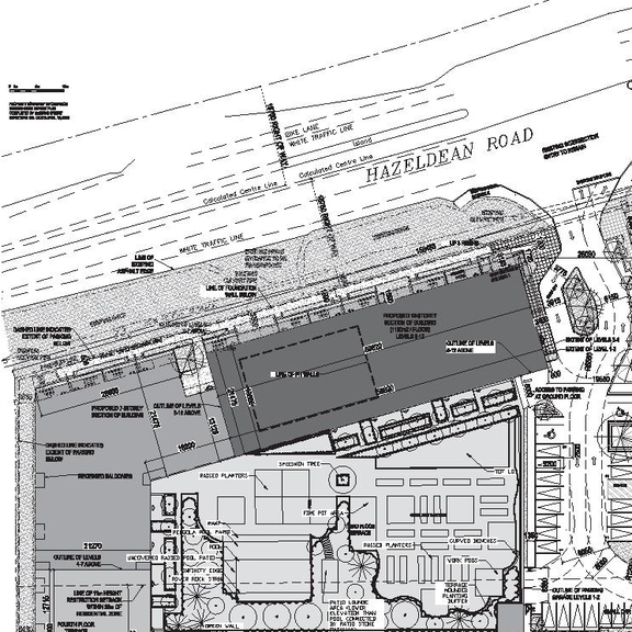
The City of Ottawa has received Minor Zoning By-law Amendment and Site Plan Control applications to develop two high-rise buildings, 12 and 21 storeys in height. The development proposes to include 457 residential units, 553 vehicle parking spaces and 462 bicycle parking spaces.

Status
Active (Application Reactivated)

Building Scale (Max.) Based on elevation drawings. Values may be approximate. See sources for exact figures.
High-rise · 21 storeys · 67.07 m

Renders#

  • Rendering of building from page 13 of the file '2025-09-02 - Urban Design Review Panel Report - D02-02-25-0063'
  • Rendering of building from page 40 of the file '2025-09-02 - Design Brief - D02-02-25-0063'
  • Rendering of building from page 41 of the file '2025-09-02 - Urban Design Review Panel Report - D02-02-25-0063'
  • Rendering of building from page 21 of the file '2025-09-02 - Urban Design Review Panel Report - D02-02-25-0063'
  • Rendering of building from page 32 of the file '2025-09-02 - Design Brief - D02-02-25-0063'
  • Rendering of building from page 6 of the file '2025-09-02 - Design Brief - D02-02-25-0063'
  • Rendering of building from page 13 of the file '2025-09-02 - Urban Design Review Panel Report - D02-02-25-0063'
  • Rendering of building from page 47 of the file '2025-09-02 - Urban Design Review Panel Report - D02-02-25-0063'
  • Rendering of building from page 32 of the file '2025-09-02 - Design Brief - D02-02-25-0063'
  • Rendering of building from page 1 of the file '2025-11-07 - RENDERS - D02-02-25-0063'
  • Rendering of building from page 41 of the file '2025-09-02 - Design Brief - D02-02-25-0063'
  • Rendering of building from page 45 of the file '2025-09-02 - Urban Design Review Panel Report - D02-02-25-0063'
  • Rendering of building from page 44 of the file '2025-09-02 - Urban Design Review Panel Report - D02-02-25-0063'
  • Rendering of building from page 6 of the file '2025-09-02 - Design Brief - D02-02-25-0063'
  • Rendering of building from page 21 of the file '2025-09-02 - Urban Design Review Panel Report - D02-02-25-0063'
  • Rendering of building from page 2 of the file '2025-11-07 - RENDERS - D02-02-25-0063'
  • Rendering of building from page 5 of the file '2025-11-07 - RENDERS - D02-02-25-0063'
  • Rendering of building from page 47 of the file '2025-09-02 - Design Brief - D02-02-25-0063'
  • Rendering of building from page 8 of the file '2025-11-07 - RENDERS - D02-02-25-0063'
  • Rendering of building from page 4 of the file '2025-11-07 - RENDERS - D02-02-25-0063'
  • Rendering of building from page 46 of the file '2025-09-02 - Urban Design Review Panel Report - D02-02-25-0063'
  • Rendering of building from page 48 of the file '2025-09-02 - Urban Design Review Panel Report - D02-02-25-0063'
  • Rendering of building from page 44 of the file '2025-09-02 - Design Brief - D02-02-25-0063'
  • Rendering of building from page 45 of the file '2025-09-02 - Design Brief - D02-02-25-0063'
  • Rendering of building from page 48 of the file '2025-09-02 - Design Brief - D02-02-25-0063'
  • Rendering of building from page 49 of the file '2025-09-02 - Design Brief - D02-02-25-0063'
  • Rendering of building from page 6 of the file '2025-11-07 - RENDERS - D02-02-25-0063'
  • Rendering of building from page 43 of the file '2025-09-02 - Design Brief - D02-02-25-0063'
  • Rendering of building from page 49 of the file '2025-09-02 - Urban Design Review Panel Report - D02-02-25-0063'
  • Rendering of building from page 46 of the file '2025-09-02 - Design Brief - D02-02-25-0063'
  • Rendering of building from page 51 of the file '2025-09-02 - Urban Design Review Panel Report - D02-02-25-0063'
  • Rendering of building from page 7 of the file '2025-11-07 - RENDERS - D02-02-25-0063'
  • Rendering of building from page 43 of the file '2025-09-02 - Urban Design Review Panel Report - D02-02-25-0063'
  • Rendering of building from page 10 of the file '2025-11-07 - RENDERS - D02-02-25-0063'
  • Rendering of building from page 42 of the file '2025-09-02 - Design Brief - D02-02-25-0063'
  • Rendering of building from page 33 of the file '2025-09-02 - Design Brief - D02-02-25-0063'
  • Rendering of building from page 3 of the file '2025-11-07 - RENDERS - D02-02-25-0063'
  • Rendering of building from page 9 of the file '2025-11-07 - RENDERS - D02-02-25-0063'
  • Rendering of building from page 50 of the file '2025-09-02 - Urban Design Review Panel Report - D02-02-25-0063'
  • Rendering of building from page 97 of the file '2025-09-02 - Urban Design Review Panel Report - D02-02-25-0063'
  • Rendering of building from page 3 of the file '2025-11-07 - RENDERS - D02-02-25-0063'
  • Rendering of building from page 13 of the file '2025-09-02 - Urban Design Review Panel Report - D02-02-25-0063'
  • Rendering of building from page 40 of the file '2025-09-02 - Design Brief - D02-02-25-0063'
  • Rendering of building from page 41 of the file '2025-09-02 - Urban Design Review Panel Report - D02-02-25-0063'
  • Rendering of building from page 21 of the file '2025-09-02 - Urban Design Review Panel Report - D02-02-25-0063'
  • Rendering of building from page 32 of the file '2025-09-02 - Design Brief - D02-02-25-0063'
  • Rendering of building from page 6 of the file '2025-09-02 - Design Brief - D02-02-25-0063'
  • Rendering of building from page 13 of the file '2025-09-02 - Urban Design Review Panel Report - D02-02-25-0063'
  • Rendering of building from page 47 of the file '2025-09-02 - Urban Design Review Panel Report - D02-02-25-0063'
  • Rendering of building from page 32 of the file '2025-09-02 - Design Brief - D02-02-25-0063'
  • Rendering of building from page 1 of the file '2025-11-07 - RENDERS - D02-02-25-0063'
  • Rendering of building from page 41 of the file '2025-09-02 - Design Brief - D02-02-25-0063'
  • Rendering of building from page 45 of the file '2025-09-02 - Urban Design Review Panel Report - D02-02-25-0063'
  • Rendering of building from page 44 of the file '2025-09-02 - Urban Design Review Panel Report - D02-02-25-0063'
  • Rendering of building from page 6 of the file '2025-09-02 - Design Brief - D02-02-25-0063'
  • Rendering of building from page 21 of the file '2025-09-02 - Urban Design Review Panel Report - D02-02-25-0063'
  • Rendering of building from page 2 of the file '2025-11-07 - RENDERS - D02-02-25-0063'
  • Rendering of building from page 5 of the file '2025-11-07 - RENDERS - D02-02-25-0063'
  • Rendering of building from page 47 of the file '2025-09-02 - Design Brief - D02-02-25-0063'
  • Rendering of building from page 8 of the file '2025-11-07 - RENDERS - D02-02-25-0063'
  • Rendering of building from page 4 of the file '2025-11-07 - RENDERS - D02-02-25-0063'
  • Rendering of building from page 46 of the file '2025-09-02 - Urban Design Review Panel Report - D02-02-25-0063'
  • Rendering of building from page 48 of the file '2025-09-02 - Urban Design Review Panel Report - D02-02-25-0063'
  • Rendering of building from page 44 of the file '2025-09-02 - Design Brief - D02-02-25-0063'
  • Rendering of building from page 45 of the file '2025-09-02 - Design Brief - D02-02-25-0063'
  • Rendering of building from page 48 of the file '2025-09-02 - Design Brief - D02-02-25-0063'
  • Rendering of building from page 49 of the file '2025-09-02 - Design Brief - D02-02-25-0063'
  • Rendering of building from page 6 of the file '2025-11-07 - RENDERS - D02-02-25-0063'
  • Rendering of building from page 43 of the file '2025-09-02 - Design Brief - D02-02-25-0063'
  • Rendering of building from page 49 of the file '2025-09-02 - Urban Design Review Panel Report - D02-02-25-0063'
  • Rendering of building from page 46 of the file '2025-09-02 - Design Brief - D02-02-25-0063'
  • Rendering of building from page 51 of the file '2025-09-02 - Urban Design Review Panel Report - D02-02-25-0063'
  • Rendering of building from page 7 of the file '2025-11-07 - RENDERS - D02-02-25-0063'
  • Rendering of building from page 43 of the file '2025-09-02 - Urban Design Review Panel Report - D02-02-25-0063'
  • Rendering of building from page 10 of the file '2025-11-07 - RENDERS - D02-02-25-0063'
  • Rendering of building from page 42 of the file '2025-09-02 - Design Brief - D02-02-25-0063'
  • Rendering of building from page 33 of the file '2025-09-02 - Design Brief - D02-02-25-0063'
  • Rendering of building from page 3 of the file '2025-11-07 - RENDERS - D02-02-25-0063'
  • Rendering of building from page 9 of the file '2025-11-07 - RENDERS - D02-02-25-0063'
  • Rendering of building from page 50 of the file '2025-09-02 - Urban Design Review Panel Report - D02-02-25-0063'
  • Rendering of building from page 97 of the file '2025-09-02 - Urban Design Review Panel Report - D02-02-25-0063'
  • Rendering of building from page 3 of the file '2025-11-07 - RENDERS - D02-02-25-0063'

Location#

Select a marker to view the address.

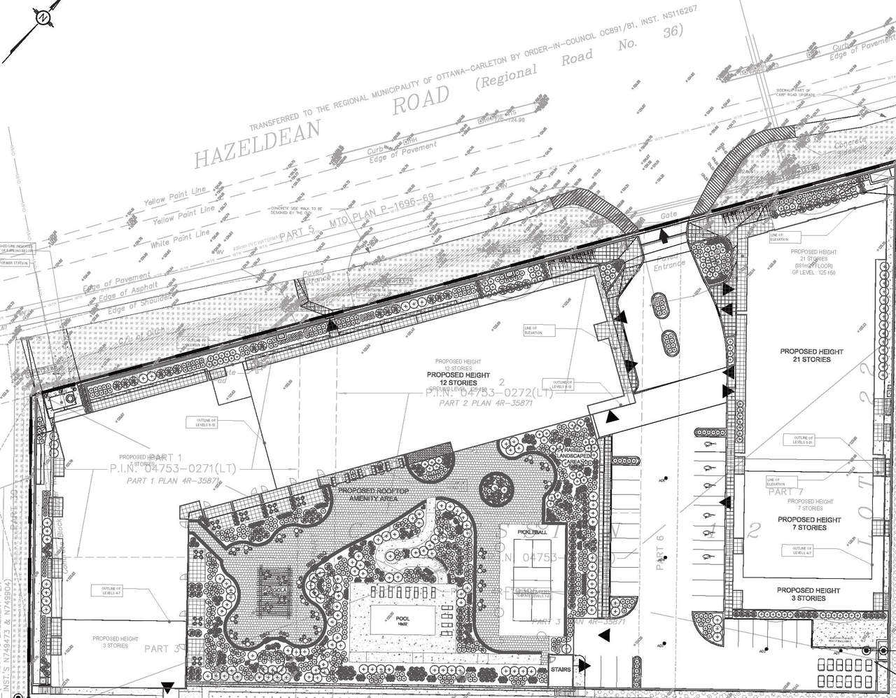
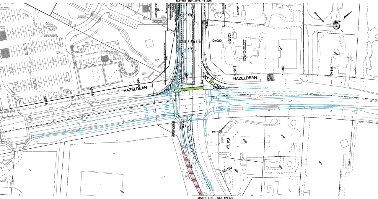
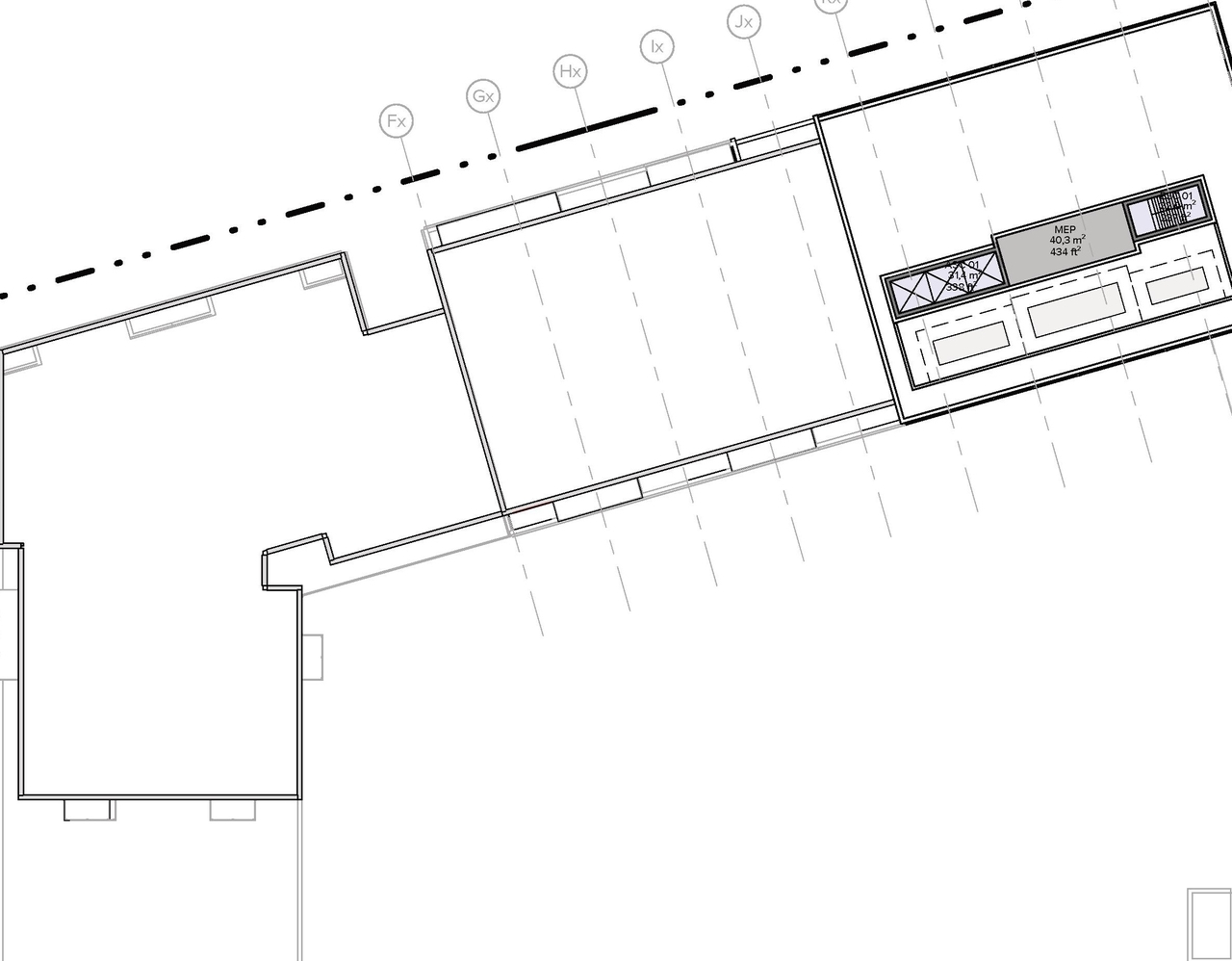
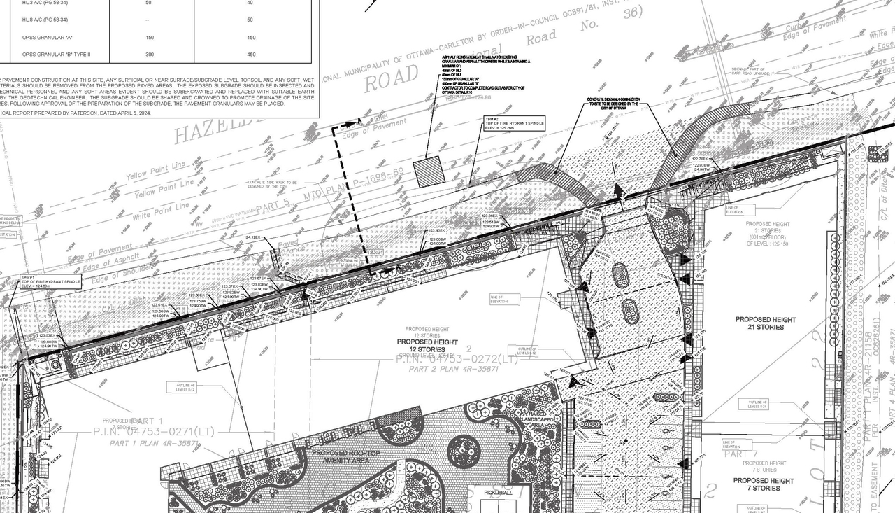
Site Plans, Elevations and Floor Plans#

  • Image from page 50 of the file '2025-09-02 - Design Brief - D02-02-25-0063'
  • Image from page 53 of the file '2025-09-02 - Design Brief - D02-02-25-0063'
  • Image from page 55 of the file '2025-09-02 - Urban Design Review Panel Report - D02-02-25-0063'
  • Image from page 53 of the file '2025-09-02 - Design Brief - D02-02-25-0063'
  • Image from page 68 of the file '2025-09-02 - Design Brief - D02-02-25-0063'
  • Image from page 55 of the file '2025-09-02 - Urban Design Review Panel Report - D02-02-25-0063'
  • Image from page 70 of the file '2025-09-02 - Design Brief - D02-02-25-0063'
  • Image from page 53 of the file '2025-09-02 - Design Brief - D02-02-25-0063'
  • Image from page 76 of the file '2025-09-02 - Design Brief - D02-02-25-0063'
  • Image from page 74 of the file '2025-09-02 - Urban Design Review Panel Report - D02-02-25-0063'
  • Image from page 75 of the file '2025-09-02 - Urban Design Review Panel Report - D02-02-25-0063'
  • Image from page 51 of the file '2025-09-02 - Design Brief - D02-02-25-0063'
  • Image from page 50 of the file '2025-09-02 - Design Brief - D02-02-25-0063'
  • Image from page 73 of the file '2025-09-02 - Urban Design Review Panel Report - D02-02-25-0063'
  • Image from page 52 of the file '2025-09-02 - Urban Design Review Panel Report - D02-02-25-0063'
  • Image from page 52 of the file '2025-09-02 - Urban Design Review Panel Report - D02-02-25-0063'
  • Image from page 76 of the file '2025-09-02 - Design Brief - D02-02-25-0063'
  • Image from page 53 of the file '2025-09-02 - Urban Design Review Panel Report - D02-02-25-0063'
  • Image from page 67 of the file '2025-09-02 - Design Brief - D02-02-25-0063'
  • Construction site plan for project from page 58 of the file '2025-09-02 - Urban Design Review Panel Report - D02-02-25-0063'
  • Construction site plan for project from page 83 of the file '2025-09-02 - Urban Design Review Panel Report - D02-02-25-0063'
  • Construction site plan for project from page 80 of the file '2025-09-02 - Design Brief - D02-02-25-0063'
  • Construction site plan for project from page 56 of the file '2025-09-02 - Design Brief - D02-02-25-0063'
  • Construction site plan for project from page 82 of the file '2025-09-02 - Urban Design Review Panel Report - D02-02-25-0063'
  • Construction site plan for project from page 60 of the file '2025-09-02 - Urban Design Review Panel Report - D02-02-25-0063'
  • Construction site plan for project from page 93 of the file '2025-09-02 - Urban Design Review Panel Report - D02-02-25-0063'
  • Construction site plan for project from page 78 of the file '2025-09-02 - Design Brief - D02-02-25-0063'
  • Construction site plan for project from page 35 of the file '2025-09-02 - Urban Design Review Panel Report - D02-02-25-0063'
  • Construction site plan for project from page 57 of the file '2025-09-02 - Design Brief - D02-02-25-0063'
  • Construction site plan for project from page 59 of the file '2025-09-02 - Urban Design Review Panel Report - D02-02-25-0063'
  • Construction site plan for project from page 32 of the file '2025-09-02 - Urban Design Review Panel Report - D02-02-25-0063'
  • Construction site plan for project from page 79 of the file '2025-09-02 - Design Brief - D02-02-25-0063'
  • Construction site plan for project from page 75 of the file '2025-09-02 - Design Brief - D02-02-25-0063'
  • Construction site plan for project from page 40 of the file '2025-09-02 - Urban Design Review Panel Report - D02-02-25-0063'
  • Construction site plan for project from page 39 of the file '2025-09-02 - Urban Design Review Panel Report - D02-02-25-0063'
  • Construction site plan for project from page 95 of the file '2025-09-02 - Urban Design Review Panel Report - D02-02-25-0063'
  • Construction site plan for project from page 16 of the file '2025-09-02 - Urban Design Review Panel Report - D02-02-25-0063'
  • Construction site plan for project from page 33 of the file '2025-09-02 - Urban Design Review Panel Report - D02-02-25-0063'
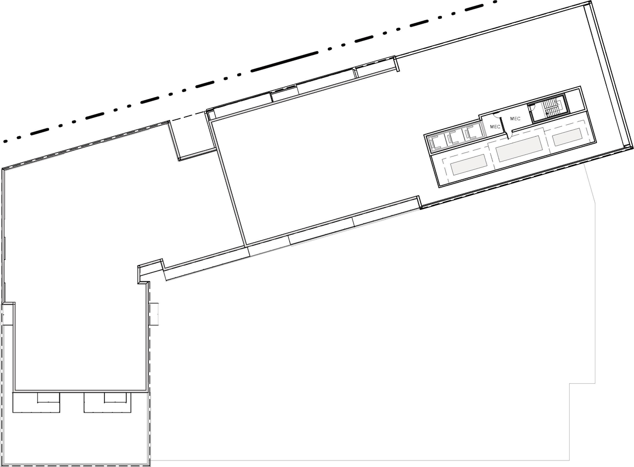
  • Floor plan for project from page 65 of the file '2025-09-02 - Urban Design Review Panel Report - D02-02-25-0063'
  • Floor plan for project from page 67 of the file '2025-09-02 - Urban Design Review Panel Report - D02-02-25-0063'
  • Floor plan for project from page 67 of the file '2025-09-02 - Design Brief - D02-02-25-0063'
  • Floor plan for project from page 66 of the file '2025-09-02 - Urban Design Review Panel Report - D02-02-25-0063'
  • Floor plan for project from page 68 of the file '2025-09-02 - Urban Design Review Panel Report - D02-02-25-0063'
  • Floor plan for project from page 64 of the file '2025-09-02 - Urban Design Review Panel Report - D02-02-25-0063'
  • Floor plan for project from page 70 of the file '2025-09-02 - Urban Design Review Panel Report - D02-02-25-0063'
  • Floor plan for project from page 66 of the file '2025-09-02 - Design Brief - D02-02-25-0063'
  • Floor plan for project from page 65 of the file '2025-09-02 - Design Brief - D02-02-25-0063'
  • Floor plan for project from page 67 of the file '2025-09-02 - Urban Design Review Panel Report - D02-02-25-0063'
  • Image from page 50 of the file '2025-09-02 - Design Brief - D02-02-25-0063'
  • Image from page 53 of the file '2025-09-02 - Design Brief - D02-02-25-0063'
  • Image from page 55 of the file '2025-09-02 - Urban Design Review Panel Report - D02-02-25-0063'
  • Image from page 53 of the file '2025-09-02 - Design Brief - D02-02-25-0063'
  • Image from page 68 of the file '2025-09-02 - Design Brief - D02-02-25-0063'
  • Image from page 55 of the file '2025-09-02 - Urban Design Review Panel Report - D02-02-25-0063'
  • Image from page 70 of the file '2025-09-02 - Design Brief - D02-02-25-0063'
  • Image from page 53 of the file '2025-09-02 - Design Brief - D02-02-25-0063'
  • Image from page 76 of the file '2025-09-02 - Design Brief - D02-02-25-0063'
  • Image from page 74 of the file '2025-09-02 - Urban Design Review Panel Report - D02-02-25-0063'
  • Image from page 75 of the file '2025-09-02 - Urban Design Review Panel Report - D02-02-25-0063'
  • Image from page 51 of the file '2025-09-02 - Design Brief - D02-02-25-0063'
  • Image from page 50 of the file '2025-09-02 - Design Brief - D02-02-25-0063'
  • Image from page 73 of the file '2025-09-02 - Urban Design Review Panel Report - D02-02-25-0063'
  • Image from page 52 of the file '2025-09-02 - Urban Design Review Panel Report - D02-02-25-0063'
  • Image from page 52 of the file '2025-09-02 - Urban Design Review Panel Report - D02-02-25-0063'
  • Image from page 76 of the file '2025-09-02 - Design Brief - D02-02-25-0063'
  • Image from page 53 of the file '2025-09-02 - Urban Design Review Panel Report - D02-02-25-0063'
  • Image from page 67 of the file '2025-09-02 - Design Brief - D02-02-25-0063'
  • Construction site plan for project from page 58 of the file '2025-09-02 - Urban Design Review Panel Report - D02-02-25-0063'
  • Construction site plan for project from page 83 of the file '2025-09-02 - Urban Design Review Panel Report - D02-02-25-0063'
  • Construction site plan for project from page 80 of the file '2025-09-02 - Design Brief - D02-02-25-0063'
  • Construction site plan for project from page 56 of the file '2025-09-02 - Design Brief - D02-02-25-0063'
  • Construction site plan for project from page 82 of the file '2025-09-02 - Urban Design Review Panel Report - D02-02-25-0063'
  • Construction site plan for project from page 60 of the file '2025-09-02 - Urban Design Review Panel Report - D02-02-25-0063'
  • Construction site plan for project from page 93 of the file '2025-09-02 - Urban Design Review Panel Report - D02-02-25-0063'
  • Construction site plan for project from page 78 of the file '2025-09-02 - Design Brief - D02-02-25-0063'
  • Construction site plan for project from page 35 of the file '2025-09-02 - Urban Design Review Panel Report - D02-02-25-0063'
  • Construction site plan for project from page 57 of the file '2025-09-02 - Design Brief - D02-02-25-0063'
  • Construction site plan for project from page 59 of the file '2025-09-02 - Urban Design Review Panel Report - D02-02-25-0063'
  • Construction site plan for project from page 32 of the file '2025-09-02 - Urban Design Review Panel Report - D02-02-25-0063'
  • Construction site plan for project from page 79 of the file '2025-09-02 - Design Brief - D02-02-25-0063'
  • Construction site plan for project from page 75 of the file '2025-09-02 - Design Brief - D02-02-25-0063'
  • Construction site plan for project from page 40 of the file '2025-09-02 - Urban Design Review Panel Report - D02-02-25-0063'
  • Construction site plan for project from page 39 of the file '2025-09-02 - Urban Design Review Panel Report - D02-02-25-0063'
  • Construction site plan for project from page 95 of the file '2025-09-02 - Urban Design Review Panel Report - D02-02-25-0063'
  • Construction site plan for project from page 16 of the file '2025-09-02 - Urban Design Review Panel Report - D02-02-25-0063'
  • Construction site plan for project from page 33 of the file '2025-09-02 - Urban Design Review Panel Report - D02-02-25-0063'
  • Floor plan for project from page 65 of the file '2025-09-02 - Urban Design Review Panel Report - D02-02-25-0063'
  • Floor plan for project from page 67 of the file '2025-09-02 - Urban Design Review Panel Report - D02-02-25-0063'
  • Floor plan for project from page 67 of the file '2025-09-02 - Design Brief - D02-02-25-0063'
  • Floor plan for project from page 66 of the file '2025-09-02 - Urban Design Review Panel Report - D02-02-25-0063'
  • Floor plan for project from page 68 of the file '2025-09-02 - Urban Design Review Panel Report - D02-02-25-0063'
  • Floor plan for project from page 64 of the file '2025-09-02 - Urban Design Review Panel Report - D02-02-25-0063'
  • Floor plan for project from page 70 of the file '2025-09-02 - Urban Design Review Panel Report - D02-02-25-0063'
  • Floor plan for project from page 66 of the file '2025-09-02 - Design Brief - D02-02-25-0063'
  • Floor plan for project from page 65 of the file '2025-09-02 - Design Brief - D02-02-25-0063'
  • Floor plan for project from page 67 of the file '2025-09-02 - Urban Design Review Panel Report - D02-02-25-0063'

Additional Information#

Date Initiated2025-09-02
WardWard 6 - Glen Gower
All Addresses6310 Hazeldean Rd.
6320 Hazeldean Rd.

Documents#

TypeDocument
Application Summary2025-11-27 - Application Summary - D02-02-25-0063
Architectural Plans2025-11-07 - ARCHITECTURAL PLANS - D02-02-25-0063
Architectural Plans2025-09-02 - Preliminary Construction Management Plan - D02-02-25-0063
Architectural Plans2025-09-02 - Architectural Drawings - D02-02-25-0063
Architectural Plans2026-03-23 - Site Plan - D02-02-25-0063
Architectural Plans2026-03-23 - Civil Plans - D02-02-25-0063
Civil Engineering Report2025-11-07 - Civil Drawings - D02-02-25-0063
Civil Engineering Report2025-09-02 - Civil Plans - D02-02-25-0063
Design Brief2025-09-02 - Urban Design Review Panel Report - D02-02-25-0063
Design Brief2025-09-02 - Design Brief - D02-02-25-0063
Environmental2025-11-07 - Environmental Noise - D02-02-25-0063
Environmental2025-09-02 - Phase II Environmental Site Assessment Update - D02-02-25-0063
Environmental2025-09-02 - Phase I Environmental Site Assessment Update - D02-02-25-0063
Environmental2025-09-02 - Environmental Noise Assessment - D02-02-25-0063
Geotechnical Report2025-11-07 - Geotechnical Investigation - D02-02-25-0063
Geotechnical Report2025-09-02 - Geotechnical Investigation - D02-02-25-0063
Landscape Plan2025-09-24 - Landscape Details - D02-02-25-0063
Landscape Plan2025-09-24 - Landscape Concept Plan - D02-02-25-0063
Planning2025-11-07 - Zoning Confirmation Report - D02-02-25-0063
Planning2025-11-07 - Planning Rationale - D02-02-25-0063
Planning2025-09-02 - Zoning Confirmation Report - D02-02-25-0063
Planning2025-09-02 - Planning Rationale - D02-02-25-0063
Rendering2025-11-07 - RENDERS - D02-02-25-0063
Stormwater Management2025-11-07 - Stormwater Management Report and and Servicing Brief - D02-02-25-0063
Stormwater Management2025-09-02 - SWM Report and Servicing Brief - D02-02-25-0063
Stormwater Management2026-01-29 - Stormwater Management Report & Servicing Brief - D02-02-25-0063
Stormwater Management2026-03-23 - Stormwater Management Report & Servicing Brief - D02-02-25-0063
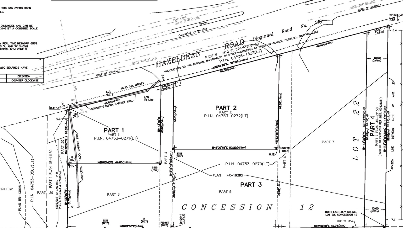
Surveying2025-09-02 - Topo Plan - D02-02-25-0063
Surveying2025-09-02 - Survey Plan - D02-02-25-0063
Transportation Analysis2025-11-07 - Transportation Impact Assessment - D02-02-25-0063
Transportation Analysis2025-09-02 - Transportation Impact Assessment - D02-02-25-0063
Tree Information and Conservation2025-11-07 - Tree Conservation Report - D02-02-25-0063
Tree Information and Conservation2025-09-24 - Landscape Plan and TCR - D02-02-25-0063
Tree Information and Conservation2025-09-02 - Tree Conservation Report - D02-02-25-0063
Tree Information and Conservation2026-01-29 - Tree Conservation Report & Landscape Plan - D02-02-25-0063
Tree Information and Conservation2026-03-23 - Tree Conservation Report & Landscape Plan - D02-02-25-0063
Wind Study2025-09-02 - Pedestrian Level Wind Study Addendum - D02-02-25-0063
Wind Study2025-09-02 - Pedestrian Level Wind Study - D02-02-25-0063
2025-11-07 - Turning Movement Analysis - D02-02-25-0063
2026-01-29 - Zoning Confirmation Report - D02-02-25-0063
2026-01-29 - Sun Study - D02-02-25-0063
2026-01-29 - Geotechnical Investigation - D02-02-25-0063
2026-01-29 - Civil Set - D02-02-25-0063
2026-01-29 - Architectural Set - D02-02-25-0063