Ottawa Development Projects

1015 Tweddle Rd.#

Last updated: 2026-03-25 · ID: D02-02-25-0038

Summary#

The City of Ottawa has received a Zoning By-law Amendment application to permit the development of four podium-style mixed-use, high-rise towers ranging from 24 to 32 storeys, and a total of 1,257 dwelling units, a commercial ground floor and underground parking.

Status
File Pending (Application File Pending)

Building Scale (Max.) Based on elevation drawings. Values may be approximate. See sources for exact figures.
High-rise · 32 storeys · 109 m

Renders#

  • Rendering of building from page 70 of the file '2025-10-07 - Design Brief - D02-02-25-0038'
  • Rendering of building from page 55 of the file '2025-06-02 - Design Brief - D02-02-25-0038'
  • Rendering of building from page 68 of the file '2026-03-23 - SPA Design Brief - D02-02-25-0038'
  • Rendering of building from page 80 of the file '2026-03-23 - SPA Design Brief - D02-02-25-0038'
  • Rendering of building from page 72 of the file '2025-10-07 - Design Brief - D02-02-25-0038'
  • Rendering of building from page 67 of the file '2025-10-07 - Design Brief - D02-02-25-0038'
  • Rendering of building from page 73 of the file '2025-10-07 - Design Brief - D02-02-25-0038'
  • Rendering of building from page 65 of the file '2025-10-07 - Design Brief - D02-02-25-0038'
  • Rendering of building from page 71 of the file '2025-10-07 - Design Brief - D02-02-25-0038'
  • Rendering of building from page 78 of the file '2026-03-23 - SPA Design Brief - D02-02-25-0038'
  • Rendering of building from page 79 of the file '2026-03-23 - SPA Design Brief - D02-02-25-0038'
  • Rendering of building from page 69 of the file '2025-10-07 - Design Brief - D02-02-25-0038'
  • Rendering of building from page 30 of the file '2025-10-07 - Design Brief - D02-02-25-0038'
  • Rendering of building from page 68 of the file '2025-10-07 - Design Brief - D02-02-25-0038'
  • Rendering of building from page 77 of the file '2026-03-23 - SPA Design Brief - D02-02-25-0038'
  • Rendering of building from page 31 of the file '2025-10-07 - Design Brief - D02-02-25-0038'
  • Rendering of building from page 75 of the file '2026-03-23 - SPA Design Brief - D02-02-25-0038'
  • Rendering of building from page 67 of the file '2025-06-02 - Design Brief - D02-02-25-0038'
  • Rendering of building from page 29 of the file '2025-10-07 - Design Brief - D02-02-25-0038'
  • Rendering of building from page 66 of the file '2025-10-07 - Design Brief - D02-02-25-0038'
  • Rendering of building from page 27 of the file '2026-03-23 - SPA Design Brief - D02-02-25-0038'
  • Rendering of building from page 20 of the file '2026-03-23 - SPA Design Brief - D02-02-25-0038'
  • Rendering of building from page 27 of the file '2025-10-07 - Design Brief - D02-02-25-0038'
  • Rendering of building from page 82 of the file '2025-10-07 - Design Brief - D02-02-25-0038'
  • Rendering of building from page 16 of the file '2025-10-07 - Design Brief - D02-02-25-0038'
  • Rendering of building from page 15 of the file '2025-10-07 - Design Brief - D02-02-25-0038'
  • Rendering of building from page 82 of the file '2025-10-07 - Design Brief - D02-02-25-0038'
  • Rendering of building from page 70 of the file '2025-10-07 - Design Brief - D02-02-25-0038'
  • Rendering of building from page 55 of the file '2025-06-02 - Design Brief - D02-02-25-0038'
  • Rendering of building from page 68 of the file '2026-03-23 - SPA Design Brief - D02-02-25-0038'
  • Rendering of building from page 80 of the file '2026-03-23 - SPA Design Brief - D02-02-25-0038'
  • Rendering of building from page 72 of the file '2025-10-07 - Design Brief - D02-02-25-0038'
  • Rendering of building from page 67 of the file '2025-10-07 - Design Brief - D02-02-25-0038'
  • Rendering of building from page 73 of the file '2025-10-07 - Design Brief - D02-02-25-0038'
  • Rendering of building from page 65 of the file '2025-10-07 - Design Brief - D02-02-25-0038'
  • Rendering of building from page 71 of the file '2025-10-07 - Design Brief - D02-02-25-0038'
  • Rendering of building from page 78 of the file '2026-03-23 - SPA Design Brief - D02-02-25-0038'
  • Rendering of building from page 79 of the file '2026-03-23 - SPA Design Brief - D02-02-25-0038'
  • Rendering of building from page 69 of the file '2025-10-07 - Design Brief - D02-02-25-0038'
  • Rendering of building from page 30 of the file '2025-10-07 - Design Brief - D02-02-25-0038'
  • Rendering of building from page 68 of the file '2025-10-07 - Design Brief - D02-02-25-0038'
  • Rendering of building from page 77 of the file '2026-03-23 - SPA Design Brief - D02-02-25-0038'
  • Rendering of building from page 31 of the file '2025-10-07 - Design Brief - D02-02-25-0038'
  • Rendering of building from page 75 of the file '2026-03-23 - SPA Design Brief - D02-02-25-0038'
  • Rendering of building from page 67 of the file '2025-06-02 - Design Brief - D02-02-25-0038'
  • Rendering of building from page 29 of the file '2025-10-07 - Design Brief - D02-02-25-0038'
  • Rendering of building from page 66 of the file '2025-10-07 - Design Brief - D02-02-25-0038'
  • Rendering of building from page 27 of the file '2026-03-23 - SPA Design Brief - D02-02-25-0038'
  • Rendering of building from page 20 of the file '2026-03-23 - SPA Design Brief - D02-02-25-0038'
  • Rendering of building from page 27 of the file '2025-10-07 - Design Brief - D02-02-25-0038'
  • Rendering of building from page 82 of the file '2025-10-07 - Design Brief - D02-02-25-0038'
  • Rendering of building from page 16 of the file '2025-10-07 - Design Brief - D02-02-25-0038'
  • Rendering of building from page 15 of the file '2025-10-07 - Design Brief - D02-02-25-0038'
  • Rendering of building from page 82 of the file '2025-10-07 - Design Brief - D02-02-25-0038'

Location#

Select a marker to view the address.

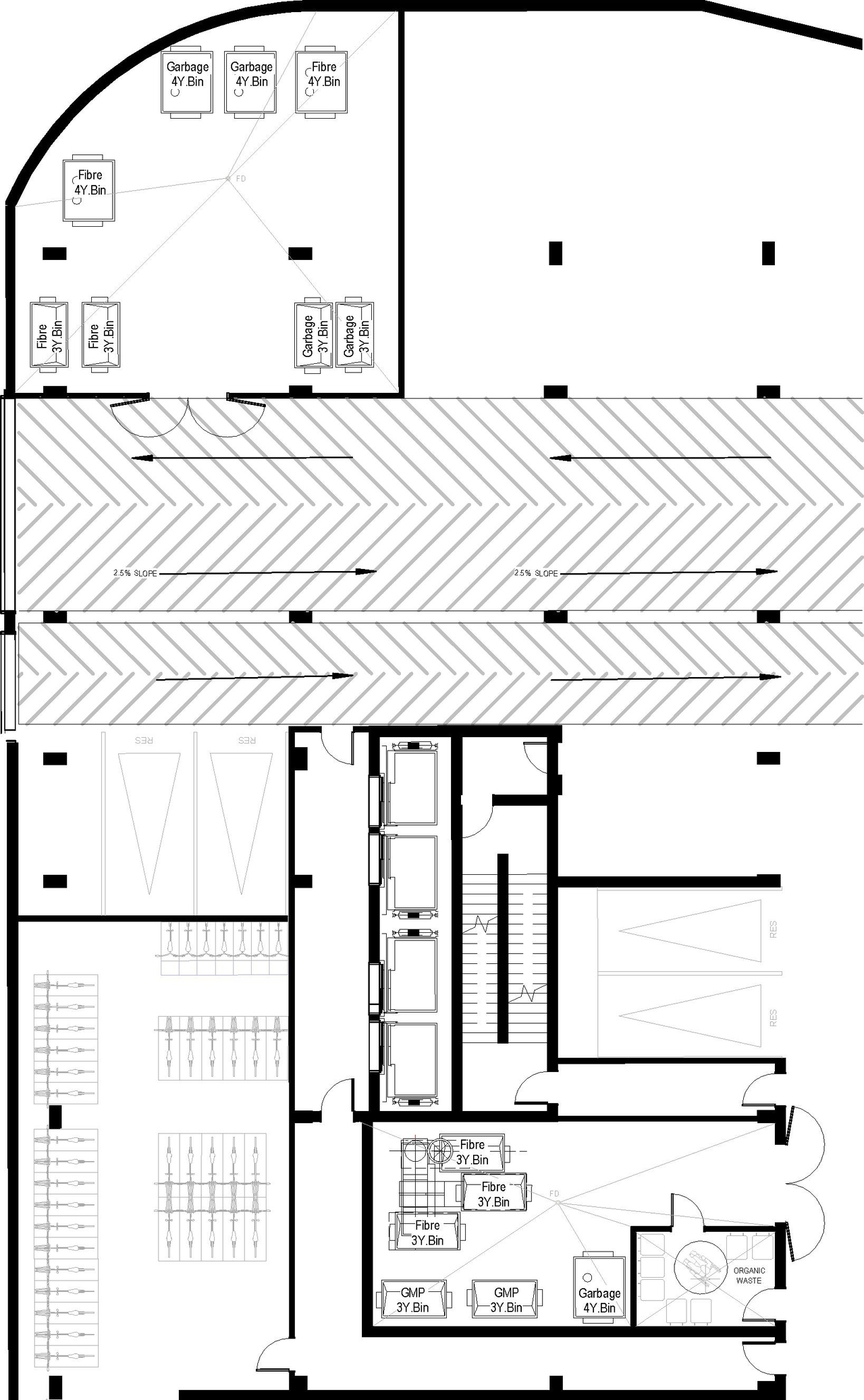
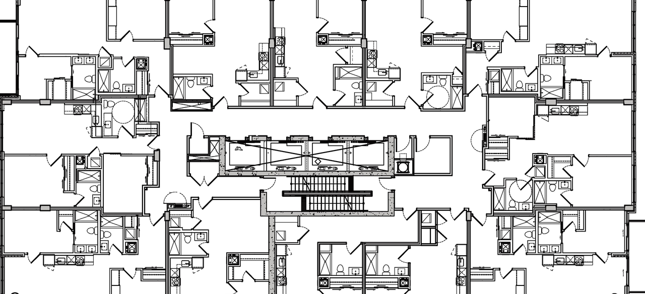
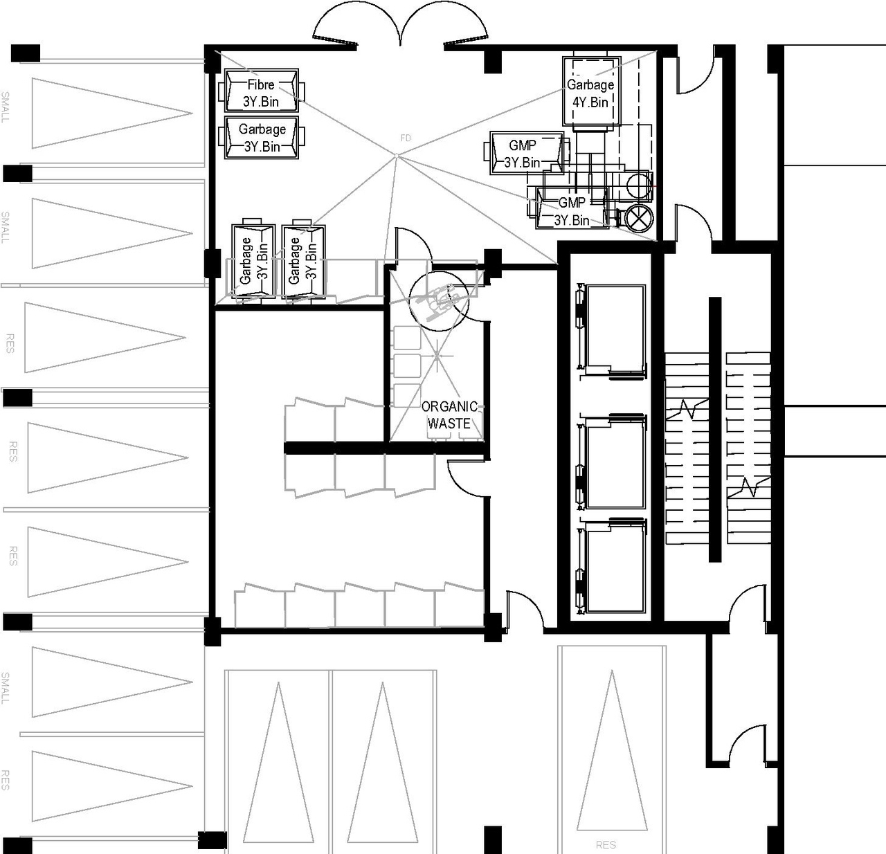
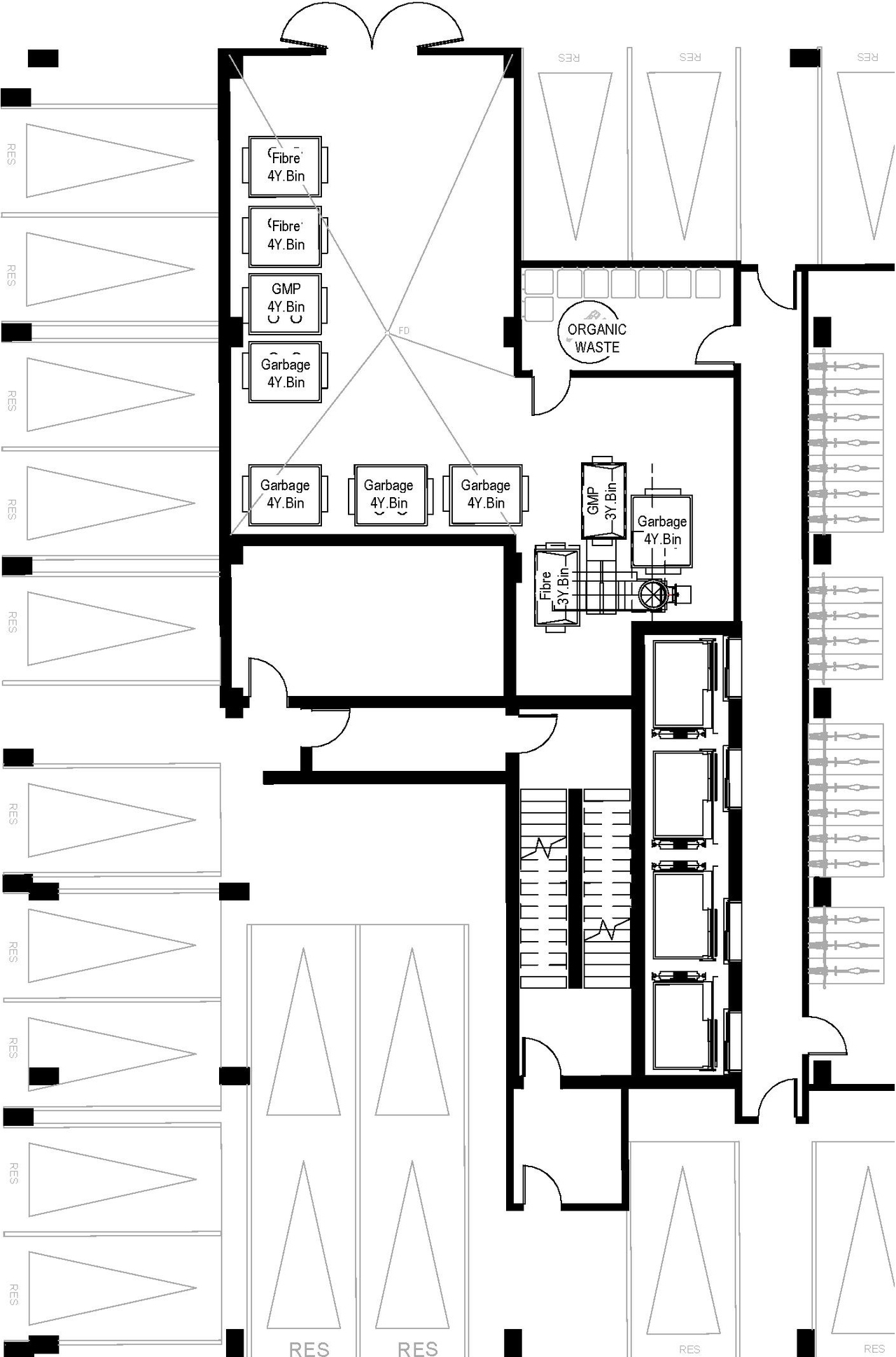
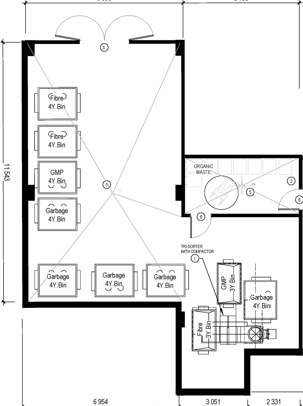
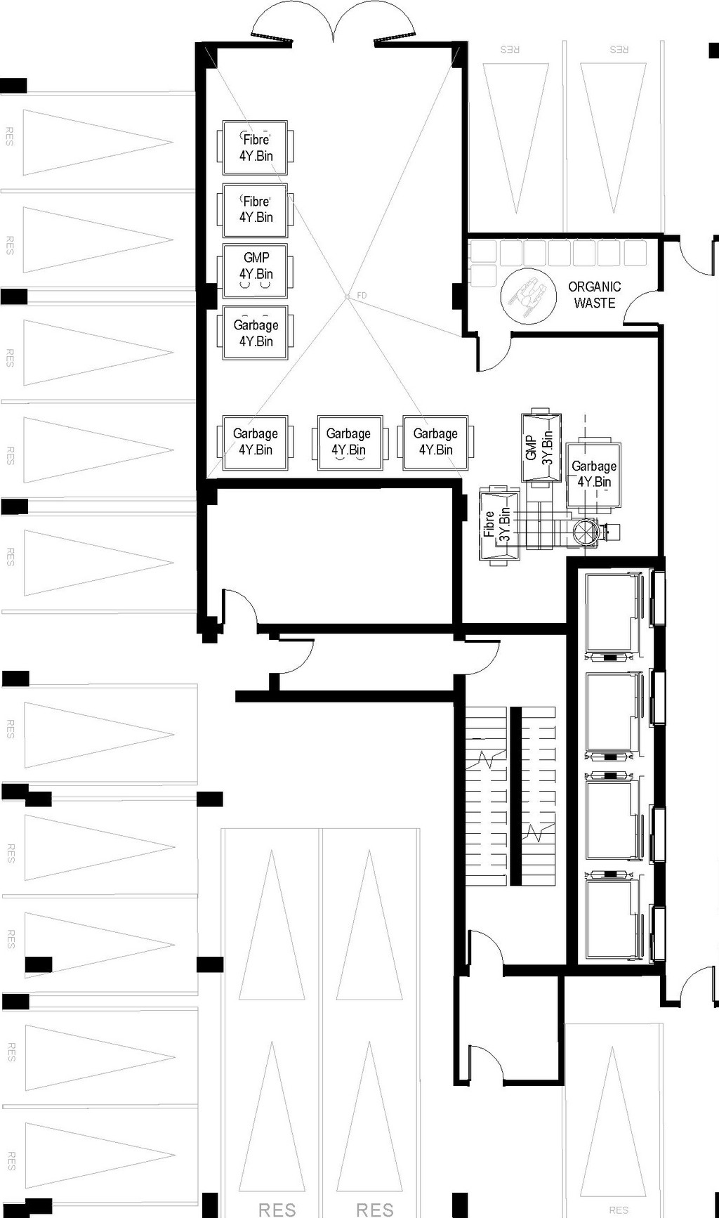
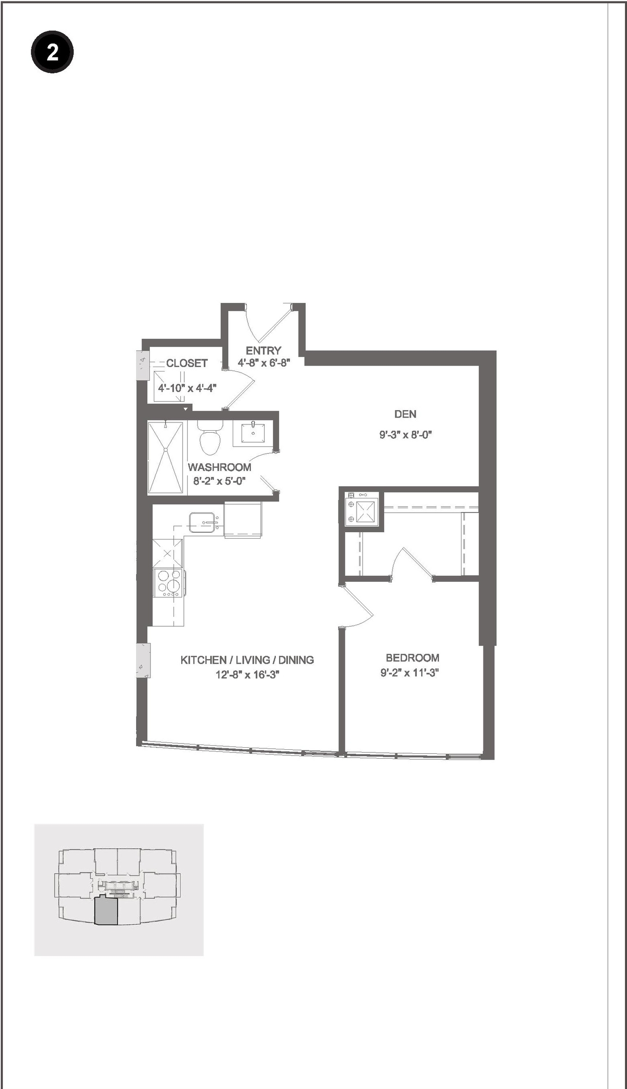
Site Plans, Elevations and Floor Plans#

  • Image from page 78 of the file '2025-10-07 - Design Brief - D02-02-25-0038'
  • Image from page 59 of the file '2025-10-07 - Design Brief - D02-02-25-0038'
  • Image from page 79 of the file '2025-10-07 - Design Brief - D02-02-25-0038'
  • Image from page 77 of the file '2025-10-07 - Design Brief - D02-02-25-0038'
  • Image from page 60 of the file '2026-03-23 - SPA Design Brief - D02-02-25-0038'
  • Image from page 80 of the file '2025-10-07 - Design Brief - D02-02-25-0038'
  • Image from page 76 of the file '2026-03-23 - SPA Design Brief - D02-02-25-0038'
  • Image from page 74 of the file '2025-10-07 - Design Brief - D02-02-25-0038'
  • Image from page 81 of the file '2025-10-07 - Design Brief - D02-02-25-0038'
  • Image from page 26 of the file '2025-10-07 - Design Brief - D02-02-25-0038'
  • Image from page 74 of the file '2025-10-07 - Design Brief - D02-02-25-0038'
  • Image from page 75 of the file '2025-10-07 - Design Brief - D02-02-25-0038'
  • Image from page 73 of the file '2025-06-02 - Design Brief - D02-02-25-0038'
  • Image from page 76 of the file '2025-10-07 - Design Brief - D02-02-25-0038'
  • Image from page 74 of the file '2025-06-02 - Design Brief - D02-02-25-0038'
  • Image from page 73 of the file '2025-06-02 - Design Brief - D02-02-25-0038'
  • Image from page 74 of the file '2025-06-02 - Design Brief - D02-02-25-0038'
  • Image from page 81 of the file '2025-10-07 - Design Brief - D02-02-25-0038'
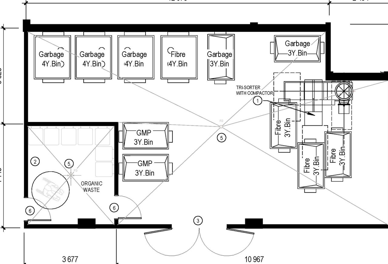
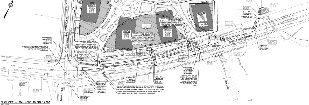
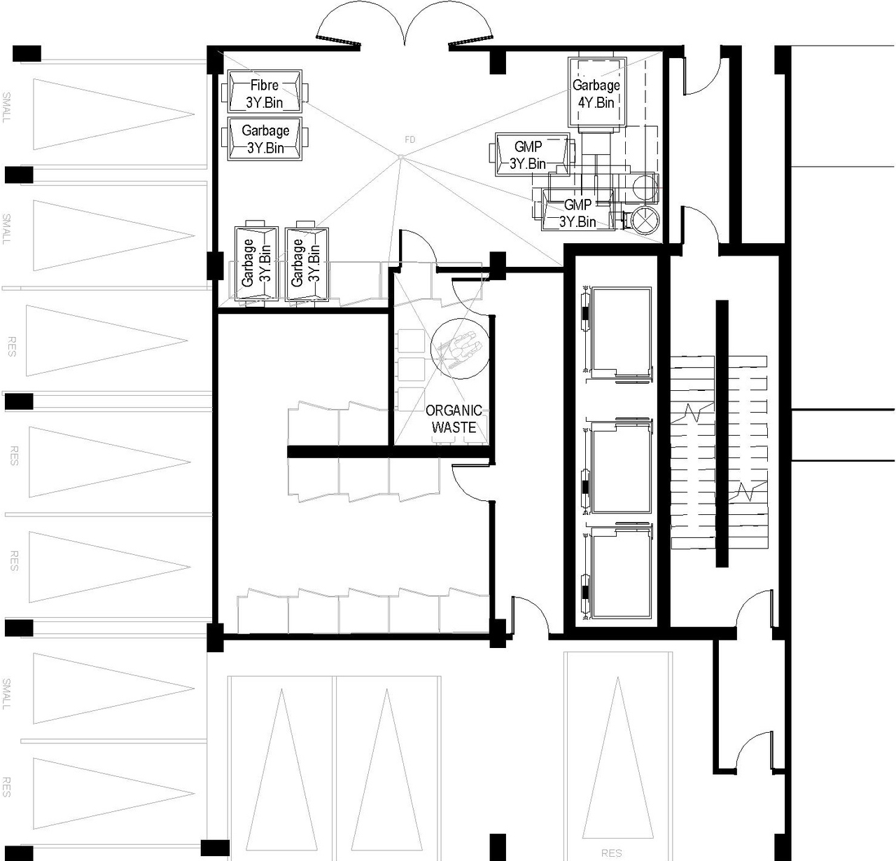
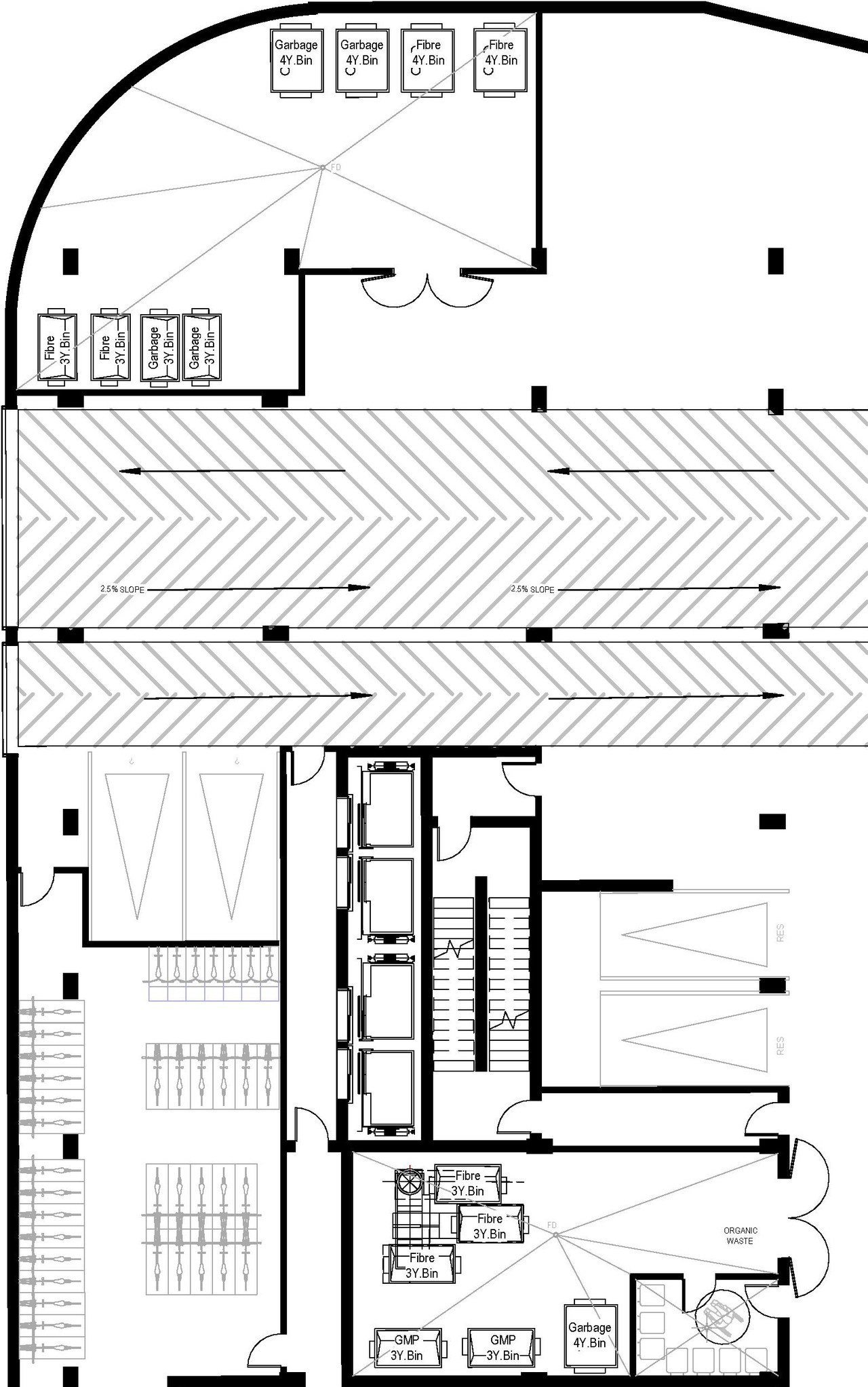
  • Construction site plan for project from page 34 of the file '2026-03-23 - SPA Design Brief - D02-02-25-0038'
  • Construction site plan for project from page 1 of the file '2026-03-23 - Plan View C101 PP1 - D02-02-25-0038'
  • Construction site plan for project from page 34 of the file '2026-03-23 - SPA Design Brief - D02-02-25-0038'
  • Construction site plan for project from page 34 of the file '2026-03-23 - SPA Design Brief - D02-02-25-0038'
  • Construction site plan for project from page 87 of the file '2025-10-07 - Design Brief - D02-02-25-0038'
  • Construction site plan for project from page 15 of the file '2025-10-07 - Design Brief - D02-02-25-0038'
  • Construction site plan for project from page 34 of the file '2025-10-07 - Design Brief - D02-02-25-0038'
  • Construction site plan for project from page 38 of the file '2025-10-07 - Design Brief - D02-02-25-0038'
  • Construction site plan for project from page 34 of the file '2025-10-07 - Design Brief - D02-02-25-0038'
  • Construction site plan for project from page 16 of the file '2025-10-07 - Design Brief - D02-02-25-0038'
  • Construction site plan for project from page 87 of the file '2025-10-07 - Design Brief - D02-02-25-0038'
  • Construction site plan for project from page 87 of the file '2025-10-07 - Design Brief - D02-02-25-0038'
  • Construction site plan for project from page 88 of the file '2026-03-23 - SPA Design Brief - D02-02-25-0038'
  • Construction site plan for project from page 49 of the file '2026-03-23 - SPA Design Brief - D02-02-25-0038'
  • Construction site plan for project from page 88 of the file '2026-03-23 - SPA Design Brief - D02-02-25-0038'
  • Construction site plan for project from page 34 of the file '2025-10-07 - Design Brief - D02-02-25-0038'
  • Construction site plan for project from page 34 of the file '2026-03-23 - SPA Design Brief - D02-02-25-0038'
  • Construction site plan for project from page 49 of the file '2026-03-23 - SPA Design Brief - D02-02-25-0038'
  • Construction site plan for project from page 51 of the file '2026-03-23 - SPA Design Brief - D02-02-25-0038'
  • Construction site plan for project from page 50 of the file '2026-03-23 - SPA Design Brief - D02-02-25-0038'
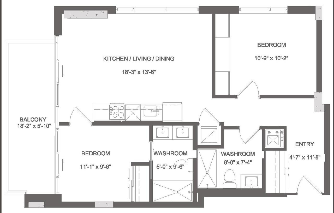
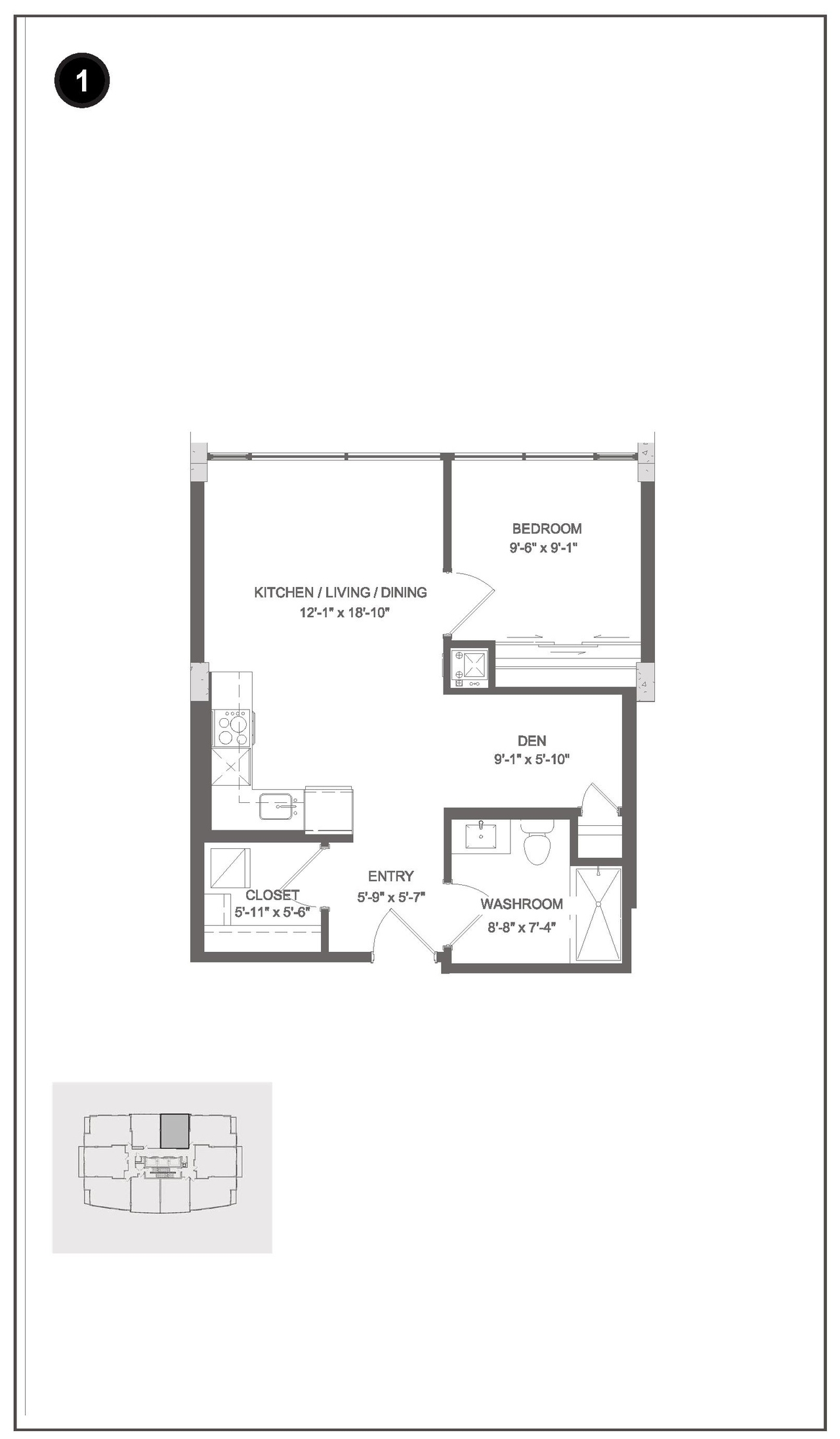
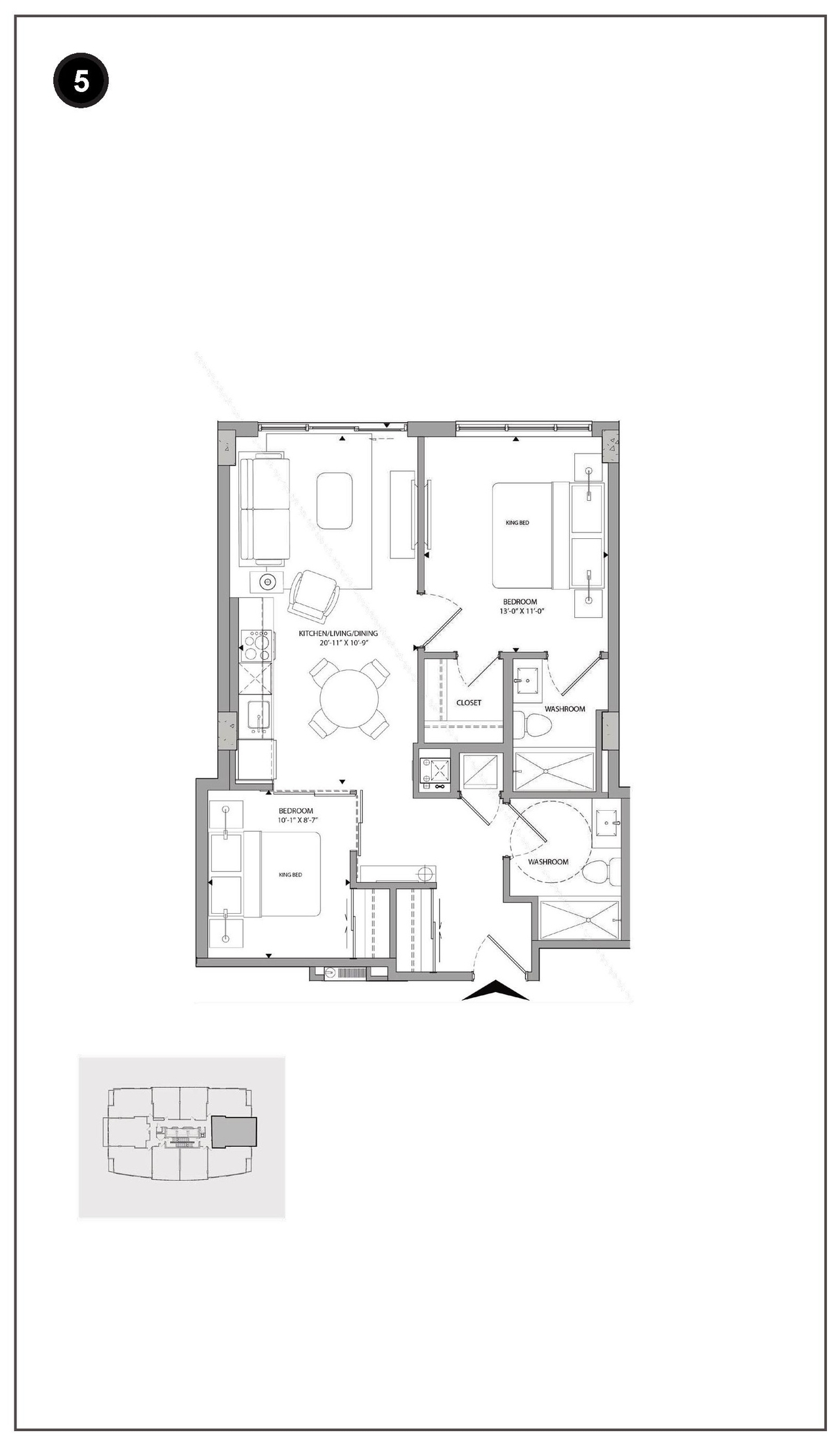
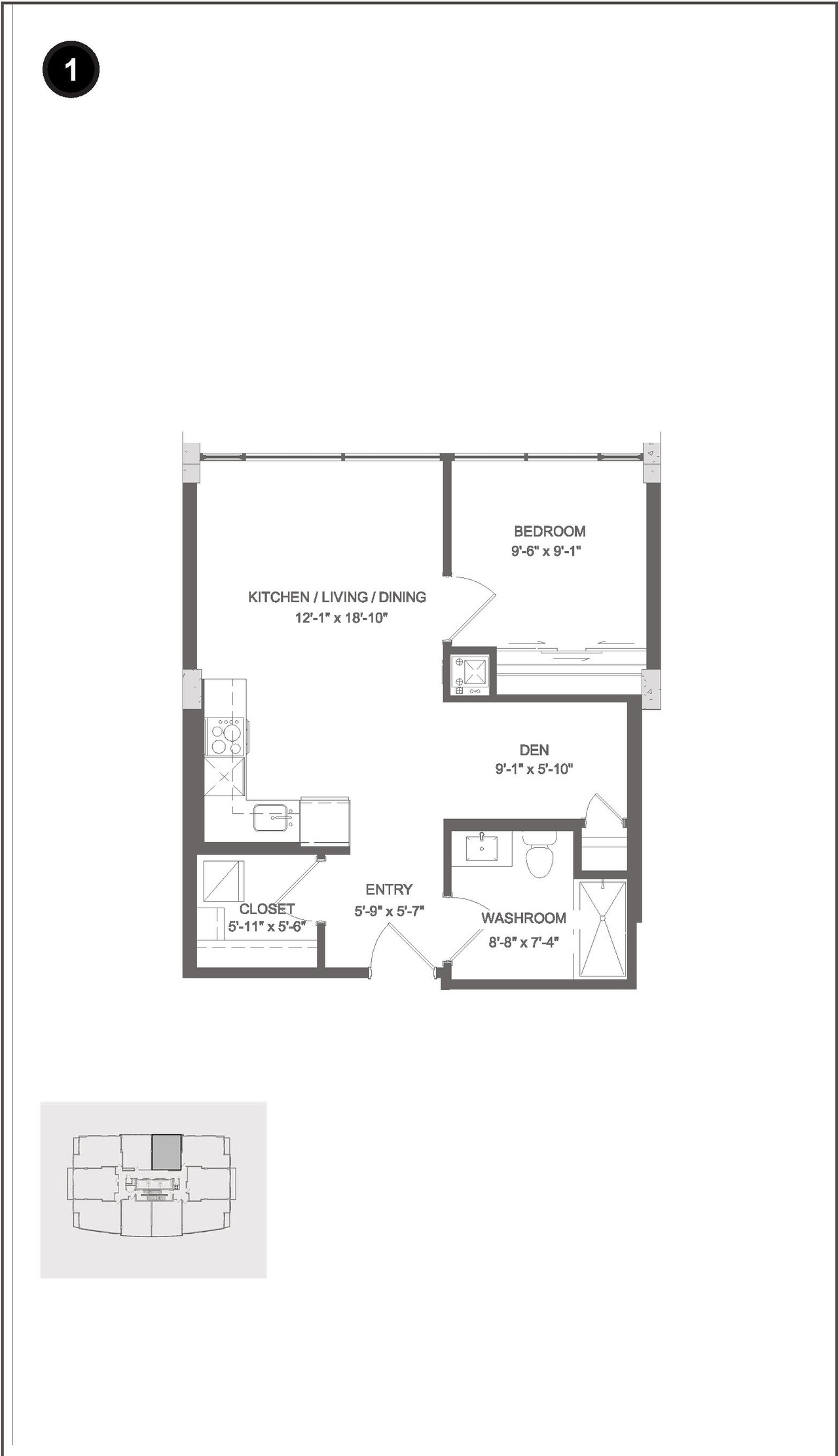
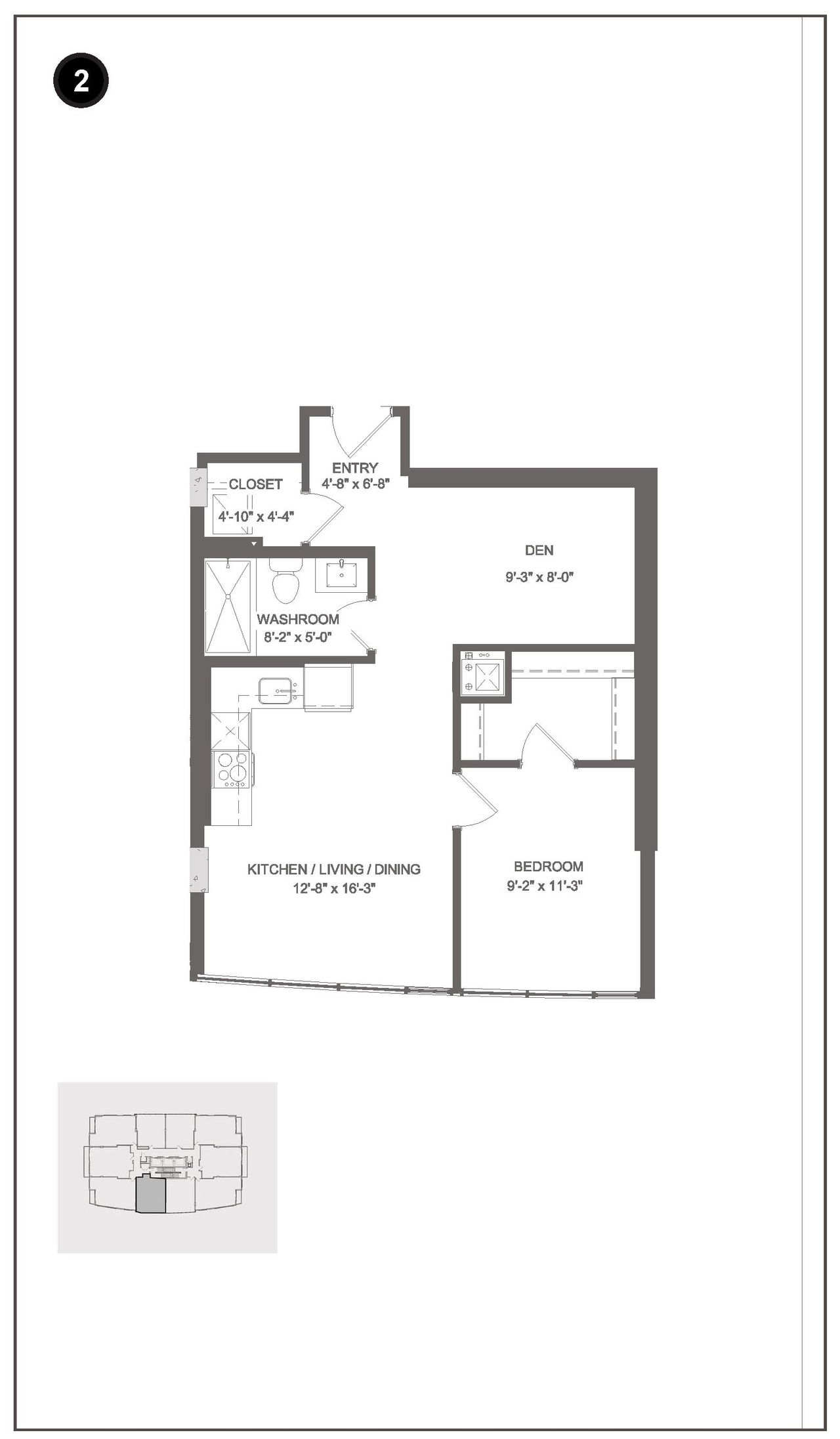
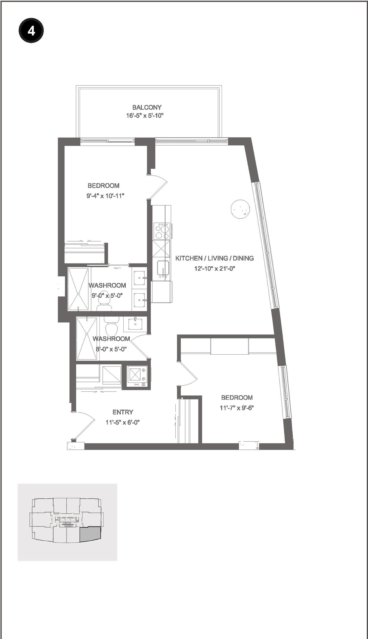
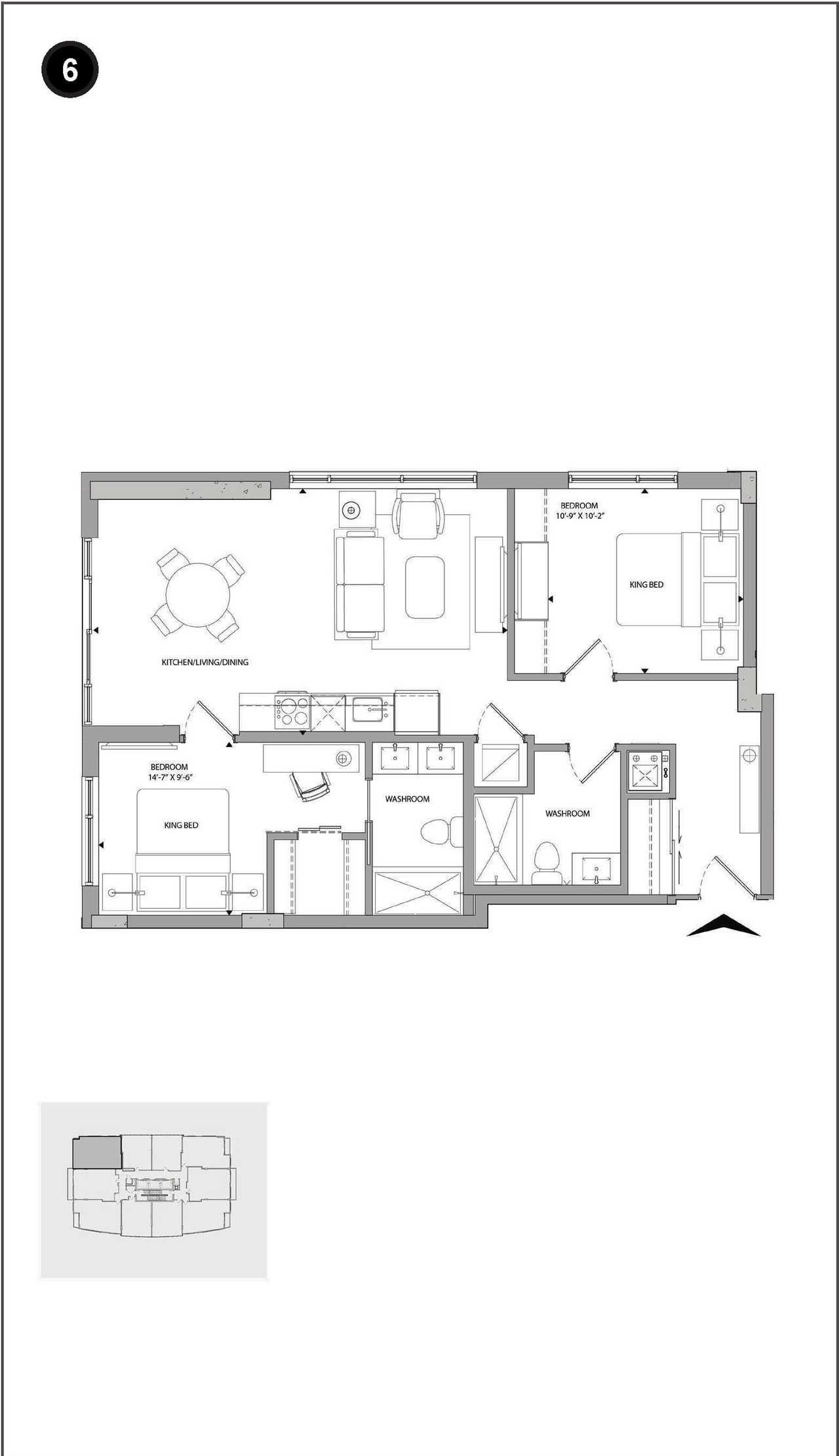
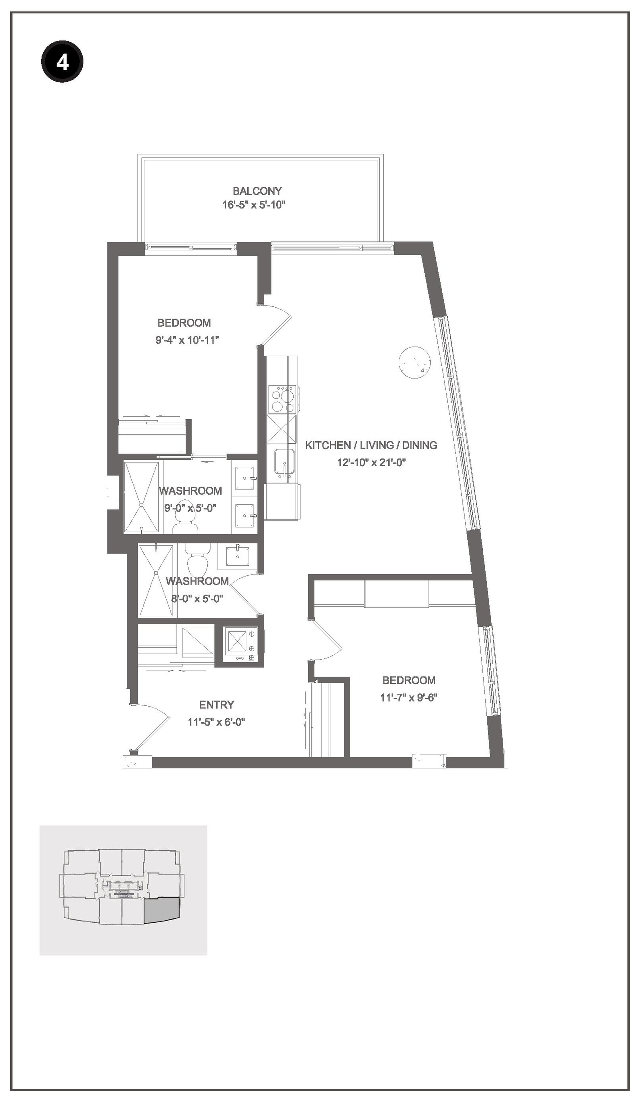
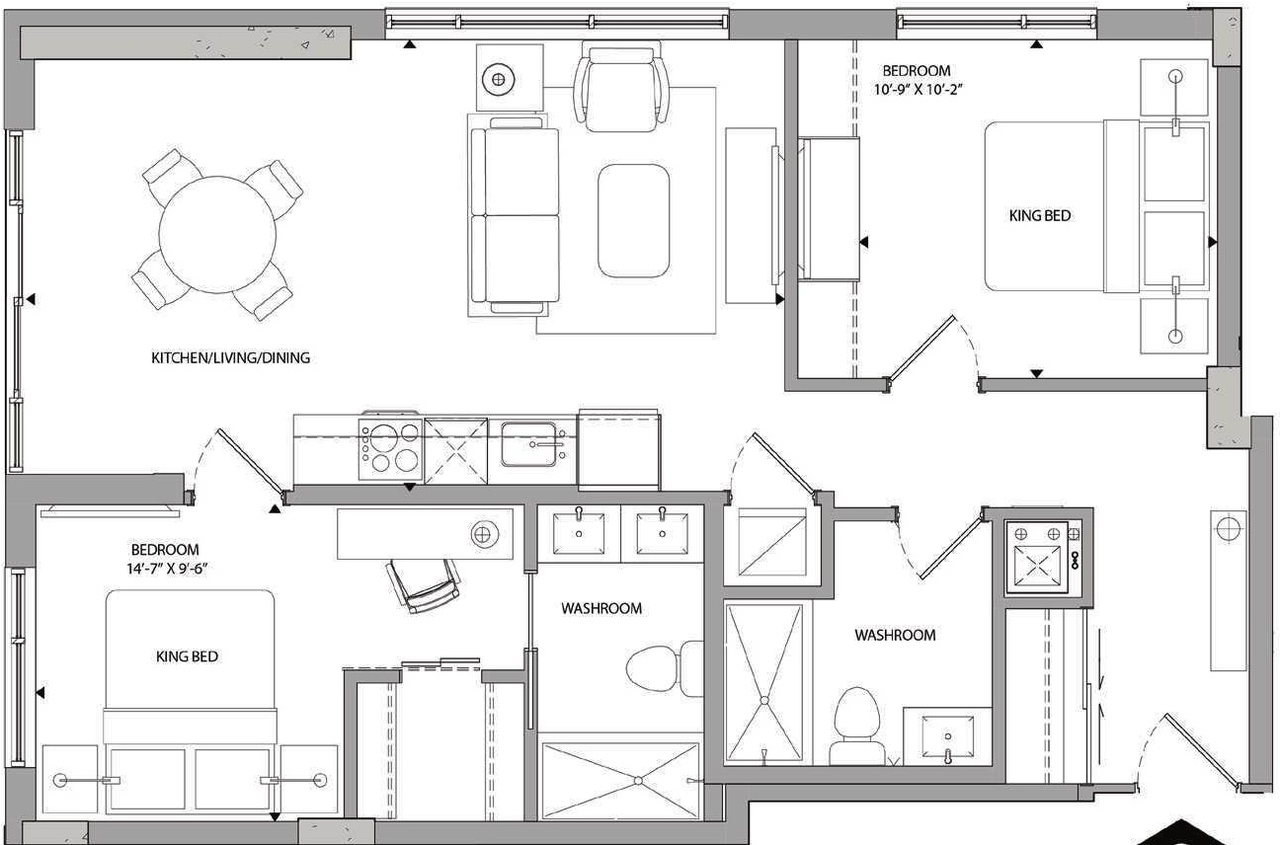
  • Floor plan for project from page 55 of the file '2025-10-07 - Design Brief - D02-02-25-0038'
  • Floor plan for project from page 55 of the file '2025-10-07 - Design Brief - D02-02-25-0038'
  • Floor plan for project from page 53 of the file '2025-06-02 - Design Brief - D02-02-25-0038'
  • Floor plan for project from page 53 of the file '2025-06-02 - Design Brief - D02-02-25-0038'
  • Floor plan for project from page 54 of the file '2025-06-02 - Design Brief - D02-02-25-0038'
  • Floor plan for project from page 56 of the file '2025-10-07 - Design Brief - D02-02-25-0038'
  • Floor plan for project from page 56 of the file '2025-10-07 - Design Brief - D02-02-25-0038'
  • Floor plan for project from page 54 of the file '2025-06-02 - Design Brief - D02-02-25-0038'
  • Floor plan for project from page 56 of the file '2026-03-23 - SPA Design Brief - D02-02-25-0038'
  • Floor plan for project from page 54 of the file '2025-06-02 - Design Brief - D02-02-25-0038'
  • Floor plan for project from page 55 of the file '2026-03-23 - SPA Design Brief - D02-02-25-0038'
  • Floor plan for project from page 49 of the file '2026-03-23 - SPA Design Brief - D02-02-25-0038'
  • Floor plan for project from page 55 of the file '2026-03-23 - SPA Design Brief - D02-02-25-0038'
  • Floor plan for project from page 53 of the file '2025-10-07 - Design Brief - D02-02-25-0038'
  • Floor plan for project from page 56 of the file '2025-10-07 - Design Brief - D02-02-25-0038'
  • Floor plan for project from page 49 of the file '2025-10-07 - Design Brief - D02-02-25-0038'
  • Floor plan for project from page 55 of the file '2025-10-07 - Design Brief - D02-02-25-0038'
  • Floor plan for project from page 54 of the file '2025-10-07 - Design Brief - D02-02-25-0038'
  • Floor plan for project from page 50 of the file '2026-03-23 - SPA Design Brief - D02-02-25-0038'
  • Floor plan for project from page 50 of the file '2025-10-07 - Design Brief - D02-02-25-0038'
  • Floor plan for project from page 51 of the file '2026-03-23 - SPA Design Brief - D02-02-25-0038'
  • Floor plan for project from page 51 of the file '2025-10-07 - Design Brief - D02-02-25-0038'
  • Floor plan for project from page 51 of the file '2025-10-07 - Design Brief - D02-02-25-0038'
  • Floor plan for project from page 52 of the file '2026-03-23 - SPA Design Brief - D02-02-25-0038'
  • Floor plan for project from page 49 of the file '2025-10-07 - Design Brief - D02-02-25-0038'
  • Floor plan for project from page 52 of the file '2025-10-07 - Design Brief - D02-02-25-0038'
  • Floor plan for project from page 50 of the file '2025-10-07 - Design Brief - D02-02-25-0038'
  • Floor plan for project from page 52 of the file '2025-10-07 - Design Brief - D02-02-25-0038'
  • Floor plan for project from page 52 of the file '2026-03-23 - SPA Design Brief - D02-02-25-0038'
  • Image from page 78 of the file '2025-10-07 - Design Brief - D02-02-25-0038'
  • Image from page 59 of the file '2025-10-07 - Design Brief - D02-02-25-0038'
  • Image from page 79 of the file '2025-10-07 - Design Brief - D02-02-25-0038'
  • Image from page 77 of the file '2025-10-07 - Design Brief - D02-02-25-0038'
  • Image from page 60 of the file '2026-03-23 - SPA Design Brief - D02-02-25-0038'
  • Image from page 80 of the file '2025-10-07 - Design Brief - D02-02-25-0038'
  • Image from page 76 of the file '2026-03-23 - SPA Design Brief - D02-02-25-0038'
  • Image from page 74 of the file '2025-10-07 - Design Brief - D02-02-25-0038'
  • Image from page 81 of the file '2025-10-07 - Design Brief - D02-02-25-0038'
  • Image from page 26 of the file '2025-10-07 - Design Brief - D02-02-25-0038'
  • Image from page 74 of the file '2025-10-07 - Design Brief - D02-02-25-0038'
  • Image from page 75 of the file '2025-10-07 - Design Brief - D02-02-25-0038'
  • Image from page 73 of the file '2025-06-02 - Design Brief - D02-02-25-0038'
  • Image from page 76 of the file '2025-10-07 - Design Brief - D02-02-25-0038'
  • Image from page 74 of the file '2025-06-02 - Design Brief - D02-02-25-0038'
  • Image from page 73 of the file '2025-06-02 - Design Brief - D02-02-25-0038'
  • Image from page 74 of the file '2025-06-02 - Design Brief - D02-02-25-0038'
  • Image from page 81 of the file '2025-10-07 - Design Brief - D02-02-25-0038'
  • Construction site plan for project from page 34 of the file '2026-03-23 - SPA Design Brief - D02-02-25-0038'
  • Construction site plan for project from page 1 of the file '2026-03-23 - Plan View C101 PP1 - D02-02-25-0038'
  • Construction site plan for project from page 34 of the file '2026-03-23 - SPA Design Brief - D02-02-25-0038'
  • Construction site plan for project from page 34 of the file '2026-03-23 - SPA Design Brief - D02-02-25-0038'
  • Construction site plan for project from page 87 of the file '2025-10-07 - Design Brief - D02-02-25-0038'
  • Construction site plan for project from page 15 of the file '2025-10-07 - Design Brief - D02-02-25-0038'
  • Construction site plan for project from page 34 of the file '2025-10-07 - Design Brief - D02-02-25-0038'
  • Construction site plan for project from page 38 of the file '2025-10-07 - Design Brief - D02-02-25-0038'
  • Construction site plan for project from page 34 of the file '2025-10-07 - Design Brief - D02-02-25-0038'
  • Construction site plan for project from page 16 of the file '2025-10-07 - Design Brief - D02-02-25-0038'
  • Construction site plan for project from page 87 of the file '2025-10-07 - Design Brief - D02-02-25-0038'
  • Construction site plan for project from page 87 of the file '2025-10-07 - Design Brief - D02-02-25-0038'
  • Construction site plan for project from page 88 of the file '2026-03-23 - SPA Design Brief - D02-02-25-0038'
  • Construction site plan for project from page 49 of the file '2026-03-23 - SPA Design Brief - D02-02-25-0038'
  • Construction site plan for project from page 88 of the file '2026-03-23 - SPA Design Brief - D02-02-25-0038'
  • Construction site plan for project from page 34 of the file '2025-10-07 - Design Brief - D02-02-25-0038'
  • Construction site plan for project from page 34 of the file '2026-03-23 - SPA Design Brief - D02-02-25-0038'
  • Construction site plan for project from page 49 of the file '2026-03-23 - SPA Design Brief - D02-02-25-0038'
  • Construction site plan for project from page 51 of the file '2026-03-23 - SPA Design Brief - D02-02-25-0038'
  • Construction site plan for project from page 50 of the file '2026-03-23 - SPA Design Brief - D02-02-25-0038'
  • Floor plan for project from page 55 of the file '2025-10-07 - Design Brief - D02-02-25-0038'
  • Floor plan for project from page 55 of the file '2025-10-07 - Design Brief - D02-02-25-0038'
  • Floor plan for project from page 53 of the file '2025-06-02 - Design Brief - D02-02-25-0038'
  • Floor plan for project from page 53 of the file '2025-06-02 - Design Brief - D02-02-25-0038'
  • Floor plan for project from page 54 of the file '2025-06-02 - Design Brief - D02-02-25-0038'
  • Floor plan for project from page 56 of the file '2025-10-07 - Design Brief - D02-02-25-0038'
  • Floor plan for project from page 56 of the file '2025-10-07 - Design Brief - D02-02-25-0038'
  • Floor plan for project from page 54 of the file '2025-06-02 - Design Brief - D02-02-25-0038'
  • Floor plan for project from page 56 of the file '2026-03-23 - SPA Design Brief - D02-02-25-0038'
  • Floor plan for project from page 54 of the file '2025-06-02 - Design Brief - D02-02-25-0038'
  • Floor plan for project from page 55 of the file '2026-03-23 - SPA Design Brief - D02-02-25-0038'
  • Floor plan for project from page 49 of the file '2026-03-23 - SPA Design Brief - D02-02-25-0038'
  • Floor plan for project from page 55 of the file '2026-03-23 - SPA Design Brief - D02-02-25-0038'
  • Floor plan for project from page 53 of the file '2025-10-07 - Design Brief - D02-02-25-0038'
  • Floor plan for project from page 56 of the file '2025-10-07 - Design Brief - D02-02-25-0038'
  • Floor plan for project from page 49 of the file '2025-10-07 - Design Brief - D02-02-25-0038'
  • Floor plan for project from page 55 of the file '2025-10-07 - Design Brief - D02-02-25-0038'
  • Floor plan for project from page 54 of the file '2025-10-07 - Design Brief - D02-02-25-0038'
  • Floor plan for project from page 50 of the file '2026-03-23 - SPA Design Brief - D02-02-25-0038'
  • Floor plan for project from page 50 of the file '2025-10-07 - Design Brief - D02-02-25-0038'
  • Floor plan for project from page 51 of the file '2026-03-23 - SPA Design Brief - D02-02-25-0038'
  • Floor plan for project from page 51 of the file '2025-10-07 - Design Brief - D02-02-25-0038'
  • Floor plan for project from page 51 of the file '2025-10-07 - Design Brief - D02-02-25-0038'
  • Floor plan for project from page 52 of the file '2026-03-23 - SPA Design Brief - D02-02-25-0038'
  • Floor plan for project from page 49 of the file '2025-10-07 - Design Brief - D02-02-25-0038'
  • Floor plan for project from page 52 of the file '2025-10-07 - Design Brief - D02-02-25-0038'
  • Floor plan for project from page 50 of the file '2025-10-07 - Design Brief - D02-02-25-0038'
  • Floor plan for project from page 52 of the file '2025-10-07 - Design Brief - D02-02-25-0038'
  • Floor plan for project from page 52 of the file '2026-03-23 - SPA Design Brief - D02-02-25-0038'

Additional Information#

Date Initiated2025-06-02
WardWard 1 - Matthew Luloff

Documents#

TypeDocument
Application Summary2026-01-06 - Application Summary - D02-02-25-0038
Archaelogical Assessment2025-06-02 - Step 1 Archaeological Assessment - D02-02-25-0038
Architectural Plans2025-11-28 - Site Plan - D02-02-25-0038
Architectural Plans2025-11-28 - Site Grading Plan - D02-02-25-0038
Architectural Plans2025-11-28 - Plan & Profile 02 - D02-02-25-0038
Architectural Plans2025-11-28 - Plan & Profile 01 - D02-02-25-0038
Architectural Plans2025-11-28 - Elevations - D02-02-25-0038
Architectural Plans2025-10-28 - Roll Plan - D02-02-25-0038
Architectural Plans2025-10-07 - Site Plan - D02-02-25-0038
Architectural Plans2025-10-07 - Site Grading Plan - D02-02-25-0038
Architectural Plans2025-10-07 - Sanitary Drainage Area Plan - D02-02-25-0038
Architectural Plans2025-10-07 - Preliminary Plan - D02-02-25-0038
Architectural Plans2025-10-07 - Plan & Profile 01 - D02-02-25-0038
Architectural Plans2025-10-07 - Plan & Profile - D02-02-25-0038
Architectural Plans2025-10-07 - Elevations - D02-02-25-0038
Architectural Plans2025-06-02 - Site Plan - D02-02-25-0038
Architectural Plans2025-06-02 - Site Grading Plan - D02-02-25-0038
Architectural Plans2025-06-02 - Sanitary Drainage Area Plan - D02-02-25-0038
Architectural Plans2025-06-02 - Roll Plan - D02-02-25-0038
Architectural Plans2025-06-02 - Plan and Profile PP2 - D02-02-25-0038
Architectural Plans2025-06-02 - Plan and Profile PP1 - D02-02-25-0038
Architectural Plans2026-03-23 - Site Servicing Plan - D02-02-25-0038
Architectural Plans2026-03-23 - Site Plan - D02-02-25-0038
Architectural Plans2026-03-23 - Site Grading Plan - D02-02-25-0038
Architectural Plans2026-03-23 - Sanitary Drainage Area Plan - D02-02-25-0038
Architectural Plans2026-03-23 - Existing Conditions Plan - D02-02-25-0038
Architectural Plans2026-03-23 - Erosion & Sediment Control Plan - D02-02-25-0038
Architectural Plans2026-03-23 - Elevations - D02-02-25-0038
Cover Letter2025-10-07 - Cover Sheet - D02-02-25-0038
Design Brief2025-10-07 - Design Brief - D02-02-25-0038
Design Brief2025-06-02 - Design Brief - D02-02-25-0038
Design Brief2026-03-23 - SPA Design Brief - D02-02-25-0038
Environmental2025-06-02 - Phase II ESA Update - D02-02-25-0038
Environmental2025-06-02 - Phase I ESA Update - D02-02-25-0038
Environmental2025-06-02 - Environmental Impact Statement - D02-02-25-0038
Erosion And Sediment Control Plan2025-10-07 - Erosion & Sediment Control Plan - D02-02-25-0038
Erosion And Sediment Control Plan2025-06-02 - Erosion and Sediment Control Plan - D02-02-25-0038
Existing Conditions2025-11-28 - Existing Conditions Plan - D02-02-25-0038
Existing Conditions2025-10-07 - Existing Conditions Plan - D02-02-25-0038
Existing Conditions2025-06-02 - Existing Conditions Plan - D02-02-25-0038
Geotechnical Report2025-11-28 - Soil Specifications - D02-02-25-0038
Geotechnical Report2025-10-07 - Geotechnical Investigation - D02-02-25-0038
Geotechnical Report2025-06-02 - Geotechnical Investigation - D02-02-25-0038
Geotechnical Report2025-06-02 - Geotechnical Assessment - Grading Plan Review - D02-02-25-0038
Landscape Plan2025-11-28 - Landscape Achitecture - D02-02-25-0038
Landscape Plan2025-10-07 - Landscape Architecture - D02-02-25-0038
Landscape Plan2025-06-02 - Landscape Package - D02-02-25-0038
Noise Study2025-06-02 - Roadway Traffic Noise Feasibility Assessment - D02-02-25-0038
Planning2025-11-28 - Planning Rationale - D02-02-25-0038
Planning2025-10-07 - Planning Rationale - D02-02-25-0038
Planning2025-06-02 - Zoning Confirmation Report - D02-02-25-0038
Planning2025-06-02 - Planning Rationale - D02-02-25-0038
Rendering2026-03-23 - Plan View C102 PP2 - D02-02-25-0038
Rendering2026-03-23 - Plan View C101 PP1 - D02-02-25-0038
Shadow Study2025-06-02 - Sun Shadow Study - D02-02-25-0038
Site Servicing2025-11-28 - Site Servicing Plan - D02-02-25-0038
Site Servicing2025-11-28 - Site Servicing & Stormwater Management Report - D02-02-25-0038
Site Servicing2025-11-28 - Servicing Tables - D02-02-25-0038
Site Servicing2025-10-07 - Site Servicing Plan - D02-02-25-0038
Site Servicing2025-10-07 - Site Servicing & Stormwater Management Report - D02-02-25-0038
Site Servicing2025-10-07 - Servicing Tables - D02-02-25-0038
Site Servicing2025-06-02 - Site Servicing Plan - D02-02-25-0038
Site Servicing2025-06-02 - Servicing Tables - D02-02-25-0038
Site Servicing2025-06-02 - Servicing & SWM Report - D02-02-25-0038
Stormwater Management2025-11-28 - Post Development Storm Drainage Area Plan - D02-02-25-0038
Stormwater Management2025-10-07 - Storm Drainage Area Plan - D02-02-25-0038
Stormwater Management2025-10-07 - Post Development Storm Drainage Area Plan - D02-02-25-0038
Stormwater Management2025-06-02 - Post Development Storm Drainage Area Plan - D02-02-25-0038
Stormwater Management2026-03-23 - Site Servicing & Stormwater Management Report - D02-02-25-0038
Stormwater Management2026-03-23 - Post Development Storm Drainage Area Plan - D02-02-25-0038
Surveying2025-06-02 - TOPO Plan of Survey - D02-02-25-0038
Transportation Analysis2025-10-28 - TIA Step 4 Report - D02-02-25-0038
Transportation Analysis2025-06-02 - TIA Step 3 Strategy Report - D02-02-25-0038
Tree Information and Conservation2025-11-28 - Tree Conservation Report - D02-02-25-0038
Tree Information and Conservation2025-10-07 - Tree Conservation Report - D02-02-25-0038
Tree Information and Conservation2025-06-02 - Tree Conservation Report - D02-02-25-0038
Wind Study2025-06-02 - Pedestrian Level Wind Study - D02-02-25-0038
Wind Study2026-03-23 - Pedestrian Level Wind Study Addendum - D02-02-25-0038
2025-11-28 - Notes & Legends Sheet - D02-02-25-0038
2025-11-28 - Cover Page - D02-02-25-0038
2025-10-07 - Notes & Legend Sheet - D02-02-25-0038
2025-06-02 - Slope Stability Review and Landslide Risk Assessment - D02-02-25-0038
2025-06-02 - RMA-2025-TPD-026-B - D02-02-25-0038
2025-06-02 - RMA-2025-TPD-026-A - D02-02-25-0038
2025-06-02 - Retaining Wall Global Stability Analysis - D02-02-25-0038
2025-06-02 - Notes and Legend Sheet - D02-02-25-0038
2026-03-23 - Zoning Confirmation Report - D02-02-25-0038
2026-03-23 - Servicing Tables - D02-02-25-0038
2026-03-23 - Planning Rationale - D02-02-25-0038
2026-03-23 - Notes & Legend Sheet - D02-02-25-0038
2026-03-23 - Landscape Architecture - D02-02-25-0038
2026-03-23 - Global Stability Analysis - D02-02-25-0038
2026-03-23 - Geotechnical Investigation - D02-02-25-0038
2026-03-23 - Cover Page - D02-02-25-0038
2026-03-23 - Amenity Table - D02-02-25-0038