4159 Obsidian St.#
Last updated: 2026-01-03 · ID: D02-02-25-0031
Summary#
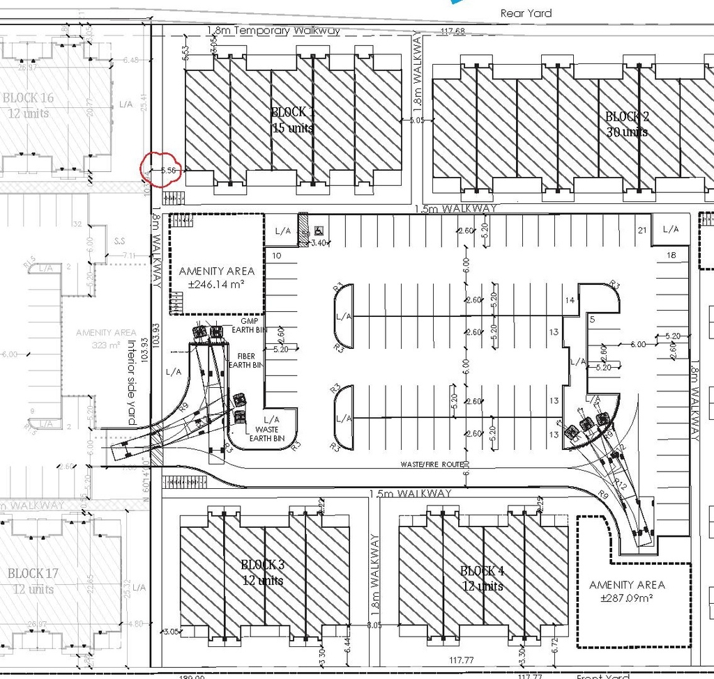
93 stacked, back-to-back townhouse dwellings in six (6) blocks. The blocks range in size from 12 units to 30 units.
Status
Inactive (Zoning By-law in Effect)
Building Scale (Max.)
Based on elevation drawings. Values may be approximate. See sources for exact figures.
Low-rise · 3 storeys
· 10.3 m
Data Quality Note
Height was partially estimated using visual scale. This may be approximate.
Renders#
Location#
Select a marker to view the address.
Site Plans, Elevations and Floor Plans#
Additional Information#
| Date Initiated | 2025-05-16 |
| Ward | Ward 3 - David Hill |





