240 Presland Rd.#
Last updated: 2025-08-22 · ID: D02-02-25-0027
Summary#
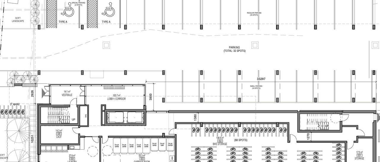
The City of Ottawa has received an Official Plan and Zoning By-law Amendment application to permit the construction of a six-storey apartment building with 62 affordable units, 32 parking spaces and 76 bicycle parking spaces.
Status
Inactive (Zoning By-law in Effect)
Building Scale (Max.)
Based on elevation drawings. Values may be approximate. See sources for exact figures.
Mid-rise · 6 storeys
· 23.14 m
Location#
Select a marker to view the address.
Site Plans, Elevations and Floor Plans#
Additional Information#
| Date Initiated | 2025-04-29 |
| Ward | Ward 13 - Rawlson King |
Documents#
Related Projects#
| Project | Last Updated | Date Initiated |
|---|---|---|
240 Presland Rd.
D07-12-25-0057 | 2025-12-24 | 2025-04-29 |
240 Presland Rd.
D01-01-25-0011 | 2025-08-22 | 2025-04-29 |




