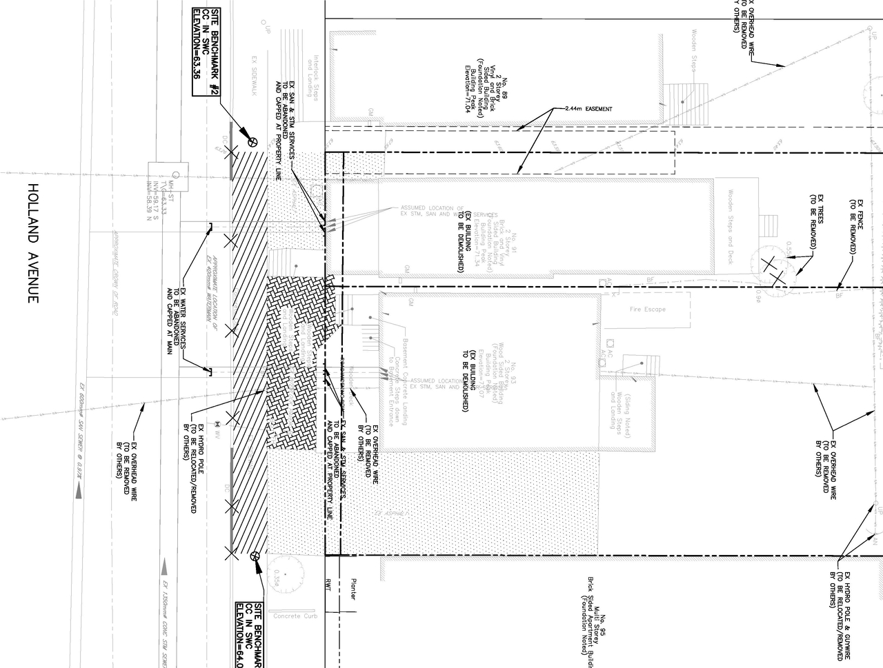
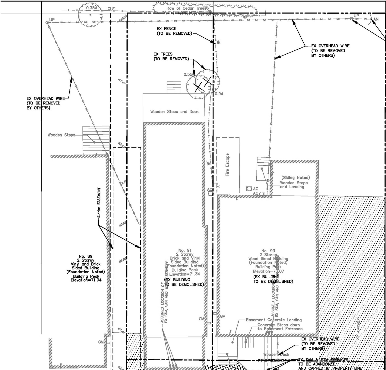
91-93 Holland Ave.#
Last updated: 2026-03-26 · ID: D02-02-25-0026
Summary#
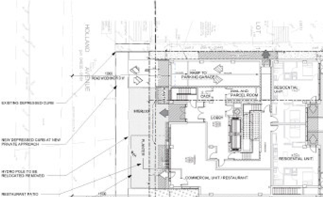
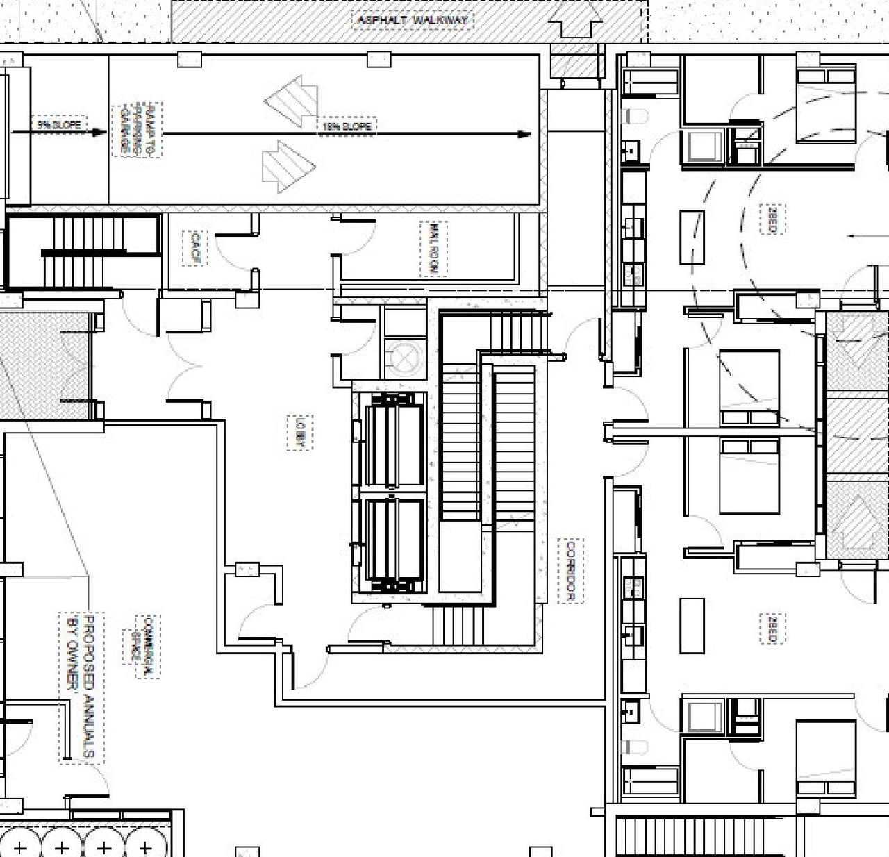
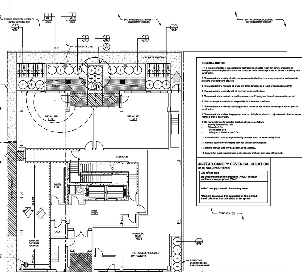
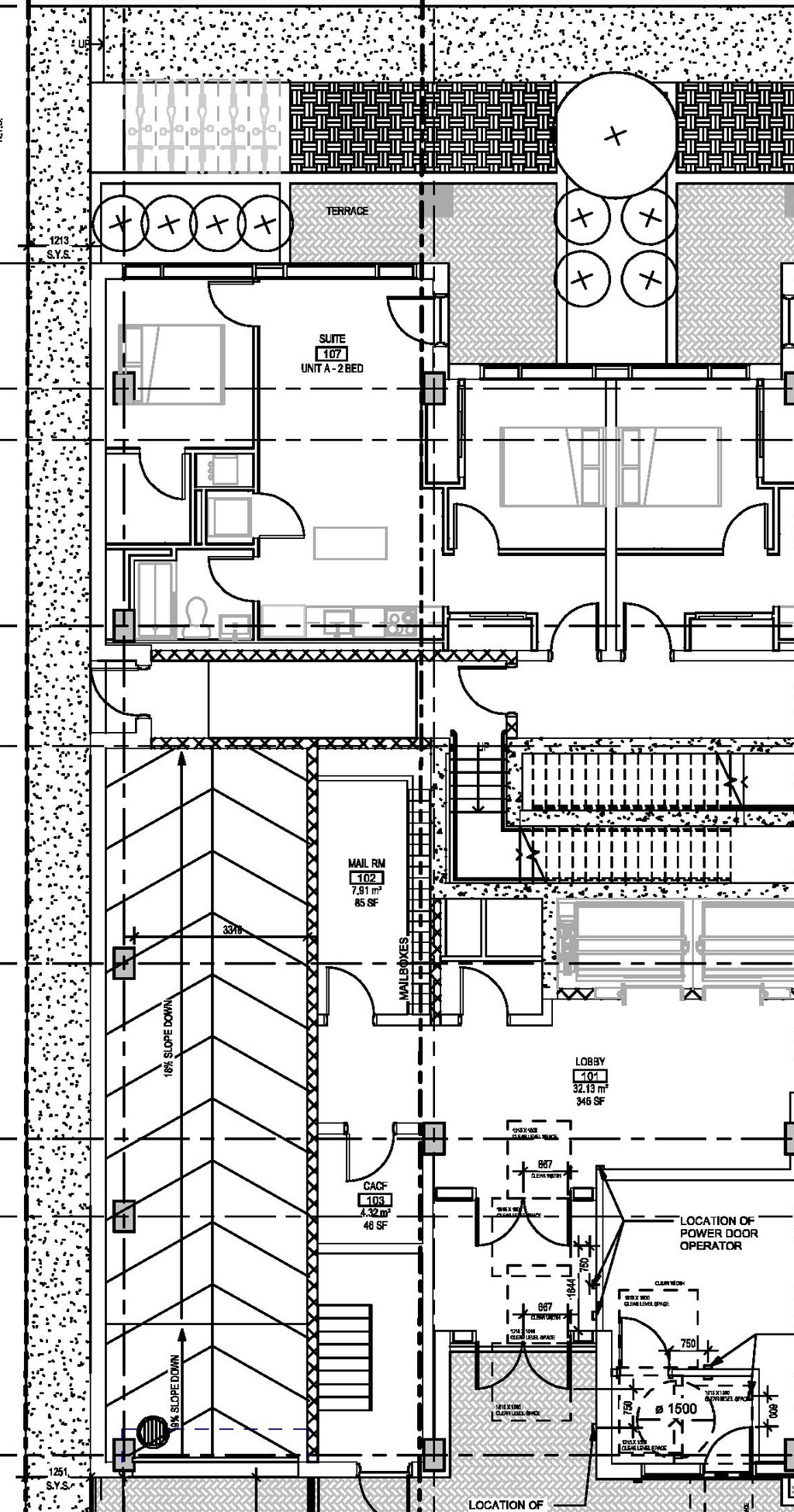
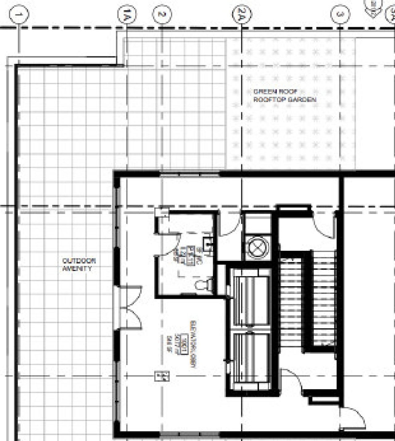
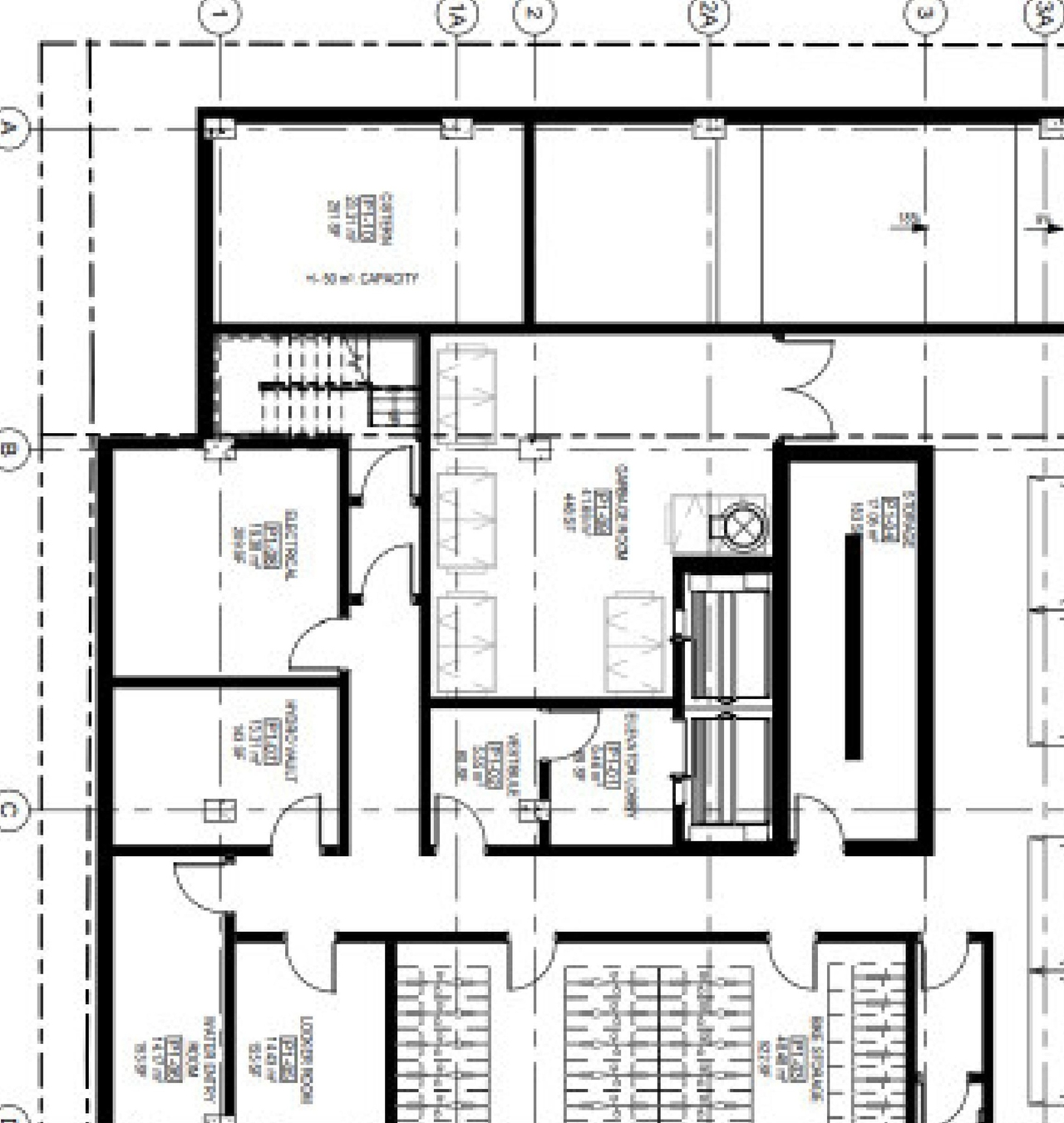
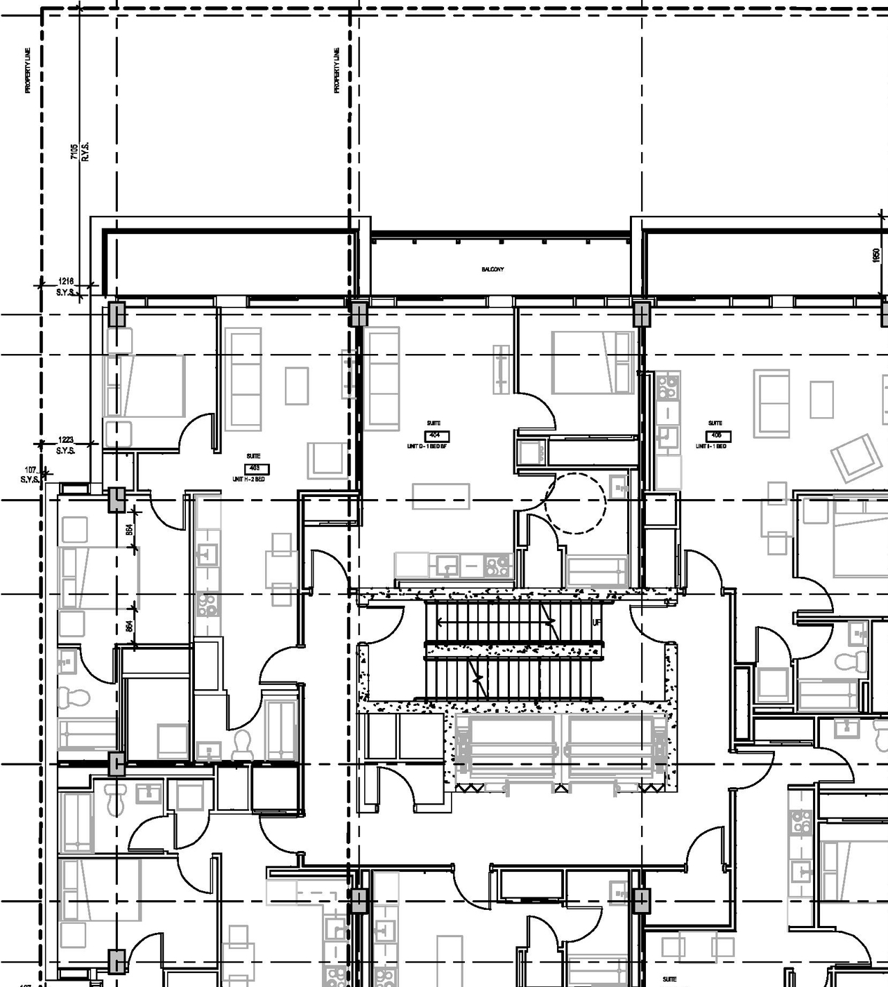
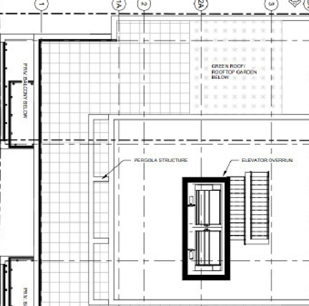
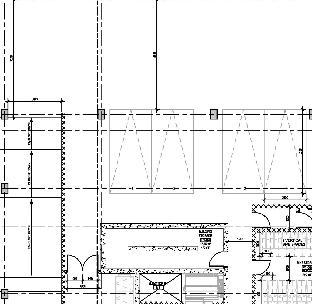
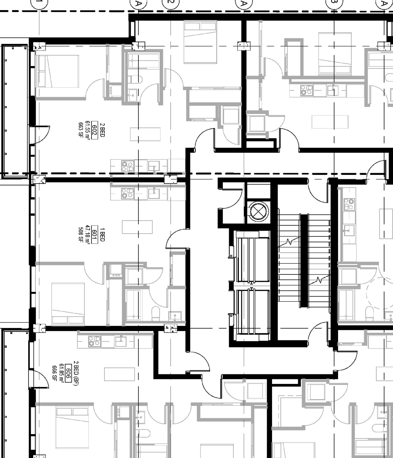
9 storey Apartment Building with rooftop terrace with 1 level of below grade visitor parking, bicycle storage & garbage. 50 dwelling units, 3,032m2 residential GFA, 96.23m2 non-residential GFA, 4 visitor parking talls, 28 bicycle parking stalls.
Status
Active (Comment Period in Progress)
Building Scale (Max.)
Based on elevation drawings. Values may be approximate. See sources for exact figures.
Mid-rise · 8 storeys
· 28.5 m
Renders#
Location#
Select a marker to view the address.
Site Plans, Elevations and Floor Plans#
Additional Information#
| Date Initiated | 2025-04-24 |
| Ward | Ward 15 - Jeff Leiper |
| All Addresses | 91 Holland Ave. 93 Holland Ave. |






















































