1146 Snow St.#
Last updated: 2026-03-25 · ID: D02-02-25-0016
Summary#
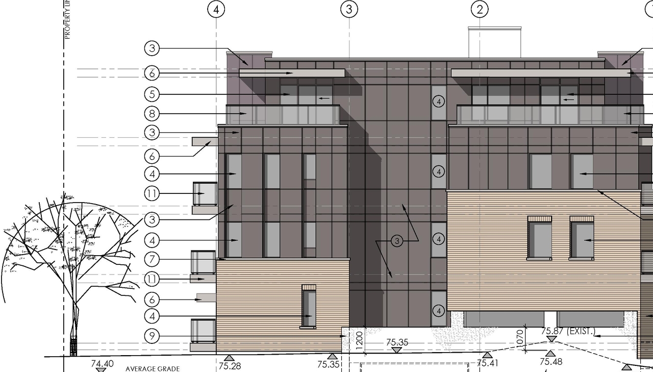
Zoning By-law Amendment application to construct a four-storey, low rise apartment building. A total of 43 units and 19 underground vehicle parking spaces are proposed with 26 bicycle parking spaces.
Status
Inactive (Zoning By-law in Effect)
Building Scale (Max.)
Based on elevation drawings. Values may be approximate. See sources for exact figures.
Mid-rise · 4 storeys
· 13 m
Data Quality Note
Height was partially estimated using visual scale. This may be approximate.
Renders#
Location#
Select a marker to view the address.
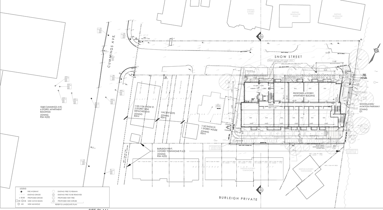
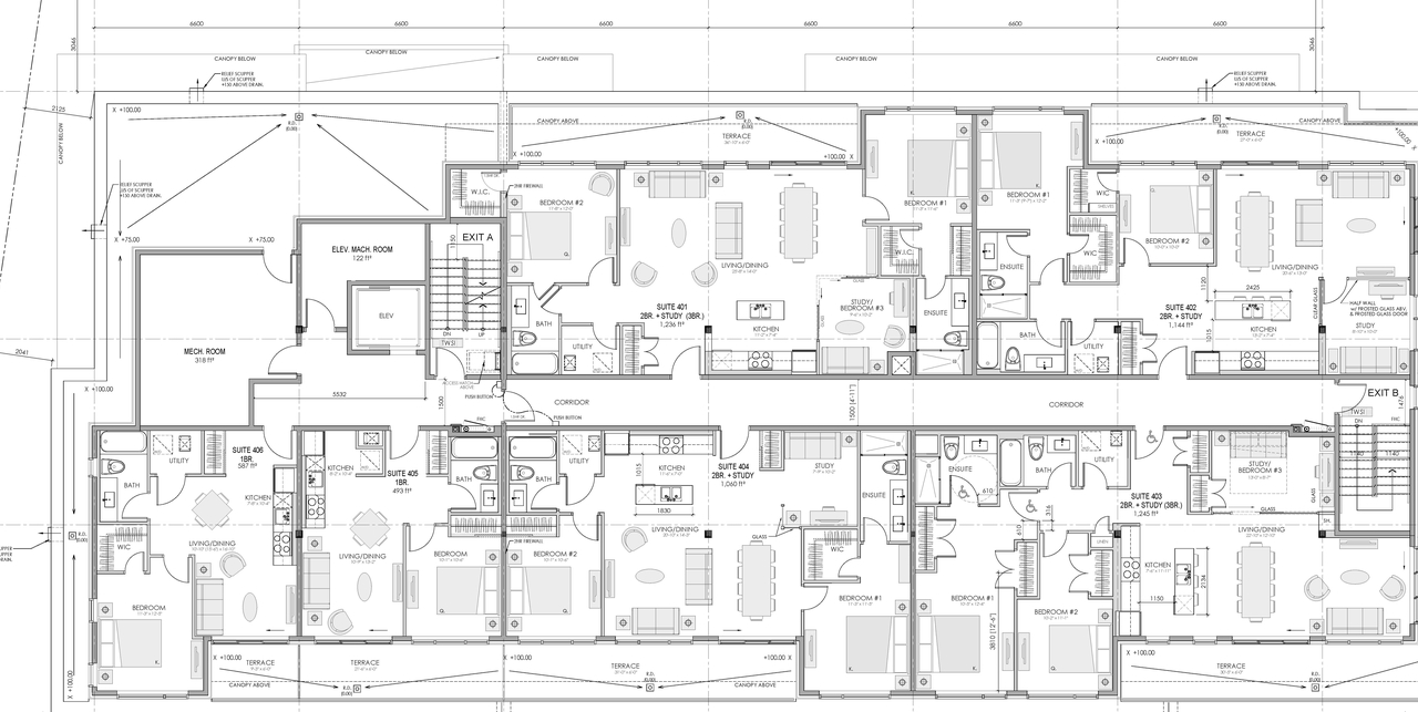
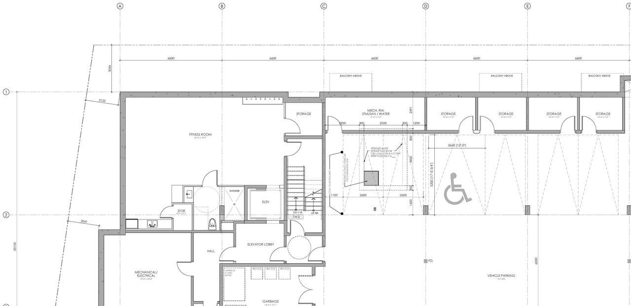
Site Plans, Elevations and Floor Plans#
Additional Information#
| Date Initiated | 2025-03-07 |
| Ward | Ward 11 - Tim Tierney |















