150 Dun Skipper Dr.#
Last updated: 2025-10-02 · ID: D02-02-25-0005
Summary#
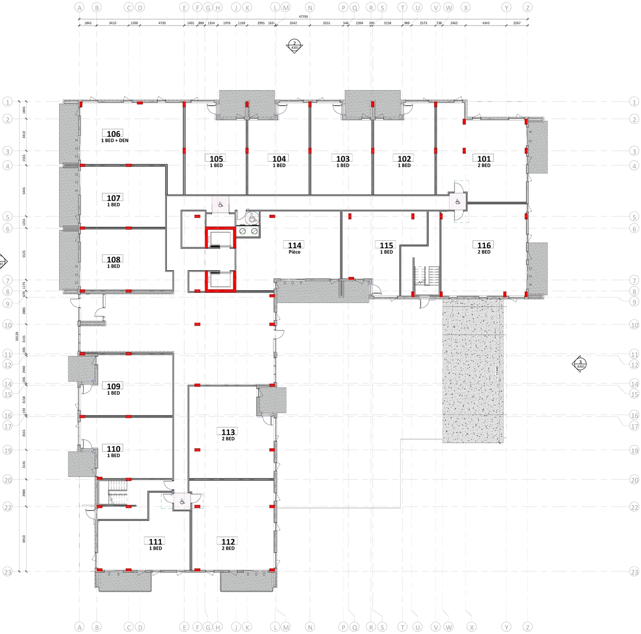
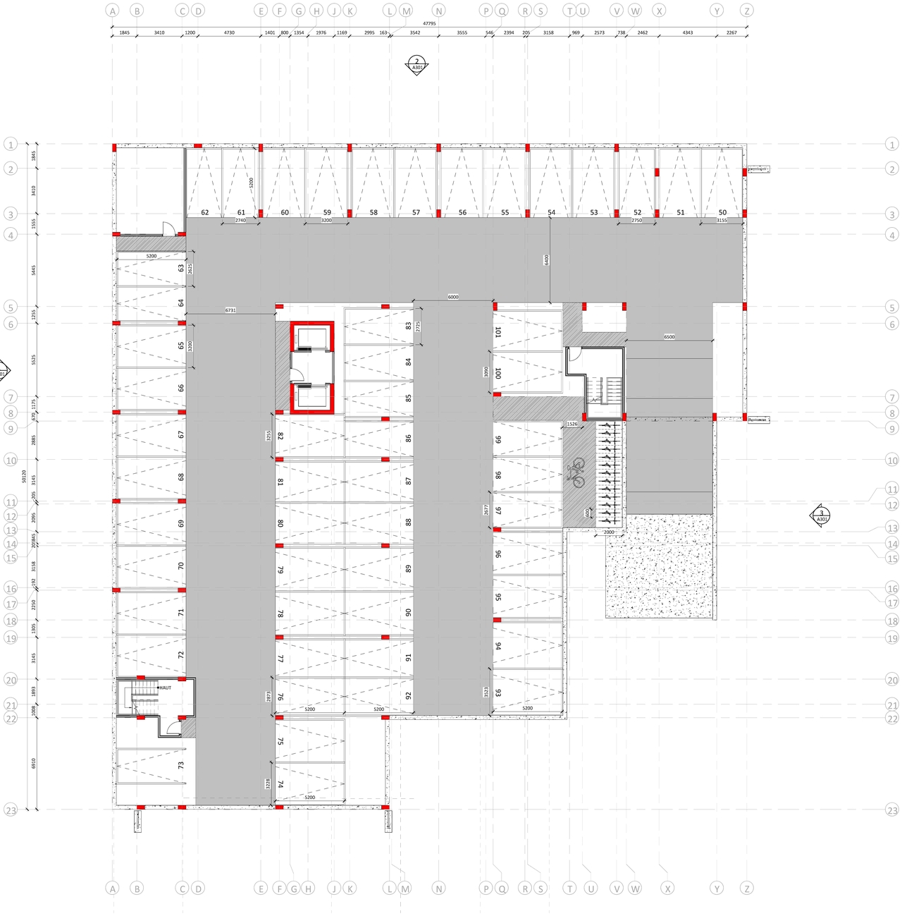
The City of Ottawa has received a Zoning By-law Amendment and Site Plan Control application to construct a Planned Unit Development consisting of two six-storey residential buildings with 237 dwelling units and a gross floor area of 17,075 square metres.
Status
Inactive (Zoning By-law in Effect)
Building Scale (Max.)
Based on elevation drawings. Values may be approximate. See sources for exact figures.
Mid-rise · 6 storeys
· 18.18 m
Renders#
Location#
Select a marker to view the address.
Site Plans, Elevations and Floor Plans#
Additional Information#
| Date Initiated | 2025-01-22 |
| Ward | Ward 22 - Steve Desroches |




































































