1815 Montreal#
Last updated: 2026-02-05 · ID: D02-02-24-0091
Summary#
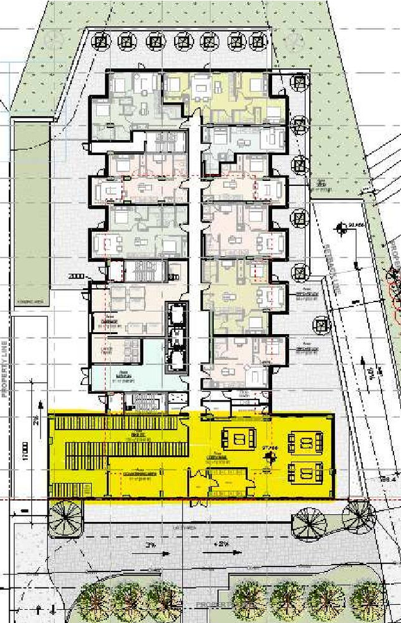
The City of Ottawa has received a Zoning By-law Amendment application to permit a 21-storey high-rise apartment dwelling with 191 units.
Status
File Pending (Application File Pending)
File Pending (Application File Pending)
Type
Zoning By-law Amendment
Zoning By-law Amendment
Building Scale (Max.)
Based on elevation drawings. Values may be approximate. See sources for exact figures.
High-rise · 19 storeys
· 64.5 m
Renders#
Location#
Select a marker to view the address.
Project Updates#
Status Updated
- Status: File Pending (Application File Pending)
Status Updated
- Status: Active (Application Reactivated)
Added 9 documents
- 2025-10-07 - Zoning Confirmation Report - D02-02-24-0091
- 2025-10-07 - Tree Conservation Report - D02-02-24-0091
- 2025-10-07 - Transportation Impact Assessment - Strategy Report - D02-02-24-0091
- 2025-10-07 - Site Plan SP-2 - D02-02-24-0091
- 2025-10-07 - Site Plan SP-1 - D02-02-24-0091
- 2025-10-07 - Servicing Report - D02-02-24-0091
- 2025-10-07 - Planning Rationale Addendum - D02-02-24-0091
- 2025-10-07 - Landscape Plan - D02-02-24-0091
- 2025-10-07 - Architectural Package - D02-02-24-0091
Status Updated
- Status: File Pending (Application File Pending)
Status Updated
- Status: Active (Comment Period in Progress)
Added description and 1 document
- Updated description: The City of Ottawa has received a Zoning By-law Amendment application to permit a 21-storey high-rise apartment dwelling with 191 units.
Added description, height, 15 images and 2 documents
- Status: Active (Community Heads Up - supporting documents to be posted later during circulation period)
- A 21 storey high-rise with 191 units, 160 vehicle parking spaces, and 156 bicycle parking spaces is proposed.
- Height: 64.5 m
- Storeys: 19 storeys
- 4 renders
- 3 elevations
Site Plans, Elevations and Floor Plans#
Additional Information#
| Date Initiated | 2024-12-24 |
| Ward | Ward 11 - Tim Tierney |















