1815 Montreal#
Last updated: 2026-02-05 · ID: D02-02-24-0091
Summary#
The City of Ottawa has received a Zoning By-law Amendment application to permit a 21-storey high-rise apartment dwelling with 191 units.
Status
File Pending (Application File Pending)
Building Scale (Max.)
Based on elevation drawings. Values may be approximate. See sources for exact figures.
High-rise · 19 storeys
· 64.5 m
Renders#
Location#
Select a marker to view the address.
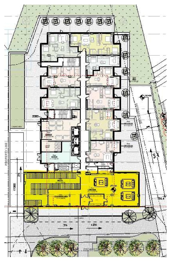
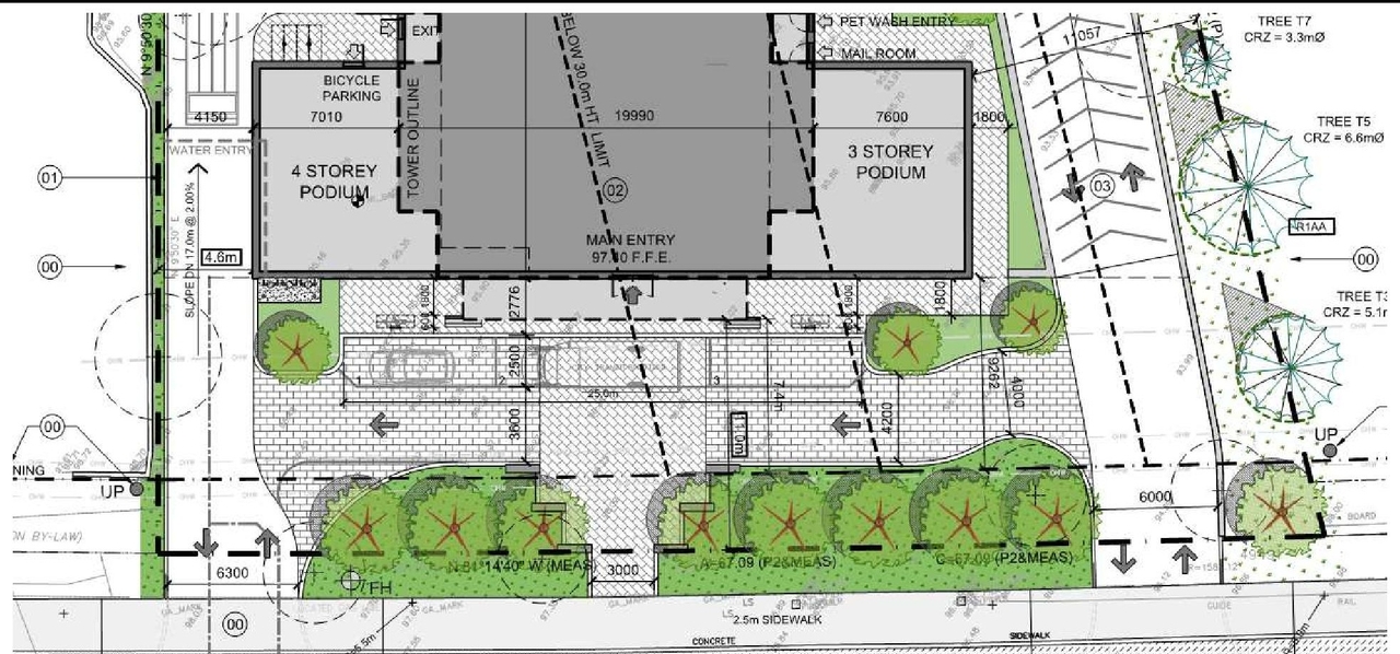
Site Plans, Elevations and Floor Plans#
Additional Information#
| Date Initiated | 2024-12-24 |
| Ward | Ward 11 - Tim Tierney |
Documents#
Related Projects#
| Project | Last Updated | Date Initiated |
|---|---|---|
1815 Montreal
D07-12-23-0071 | 2024-08-29 | 2023-06-05 |








































