593-601 Laurier Ave. W.#
Last updated: 2026-04-01 · ID: D02-02-24-0079
Summary#
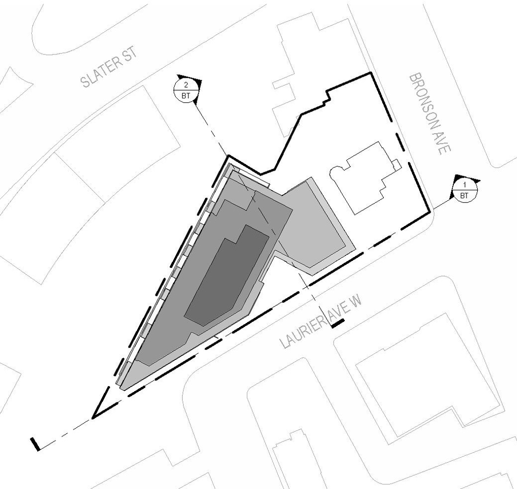
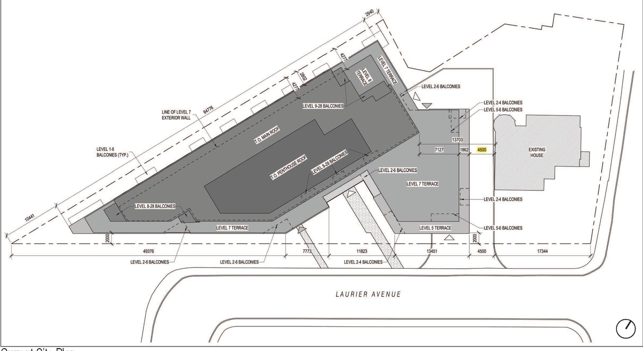
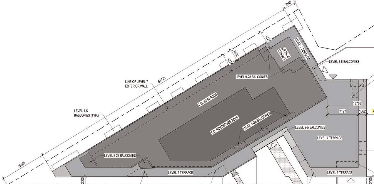
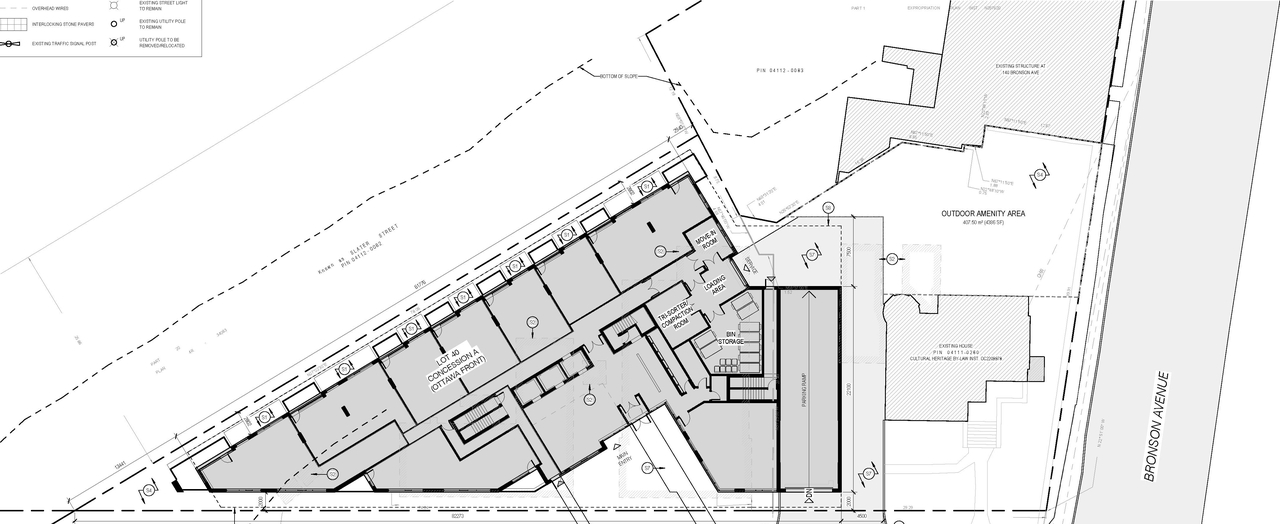
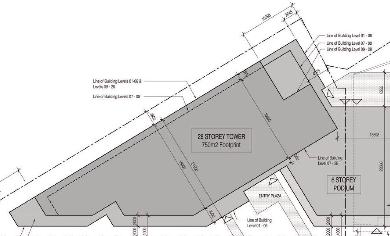
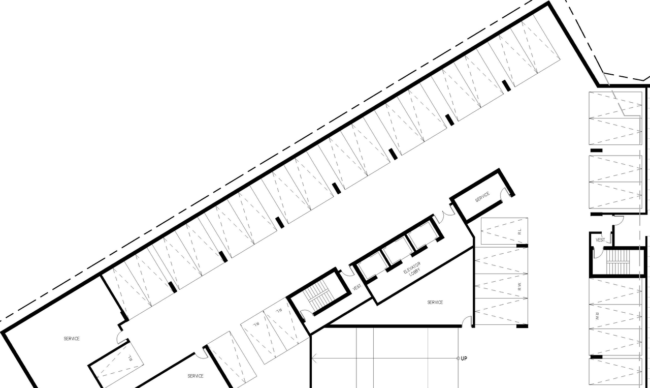
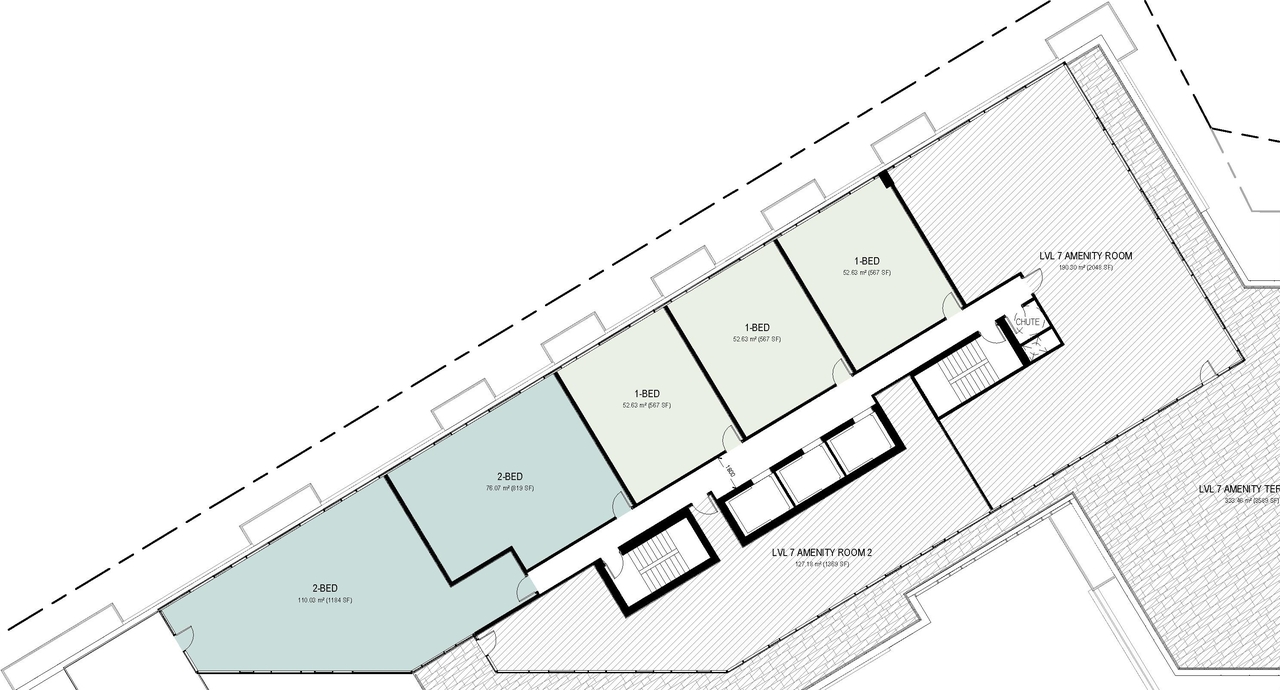
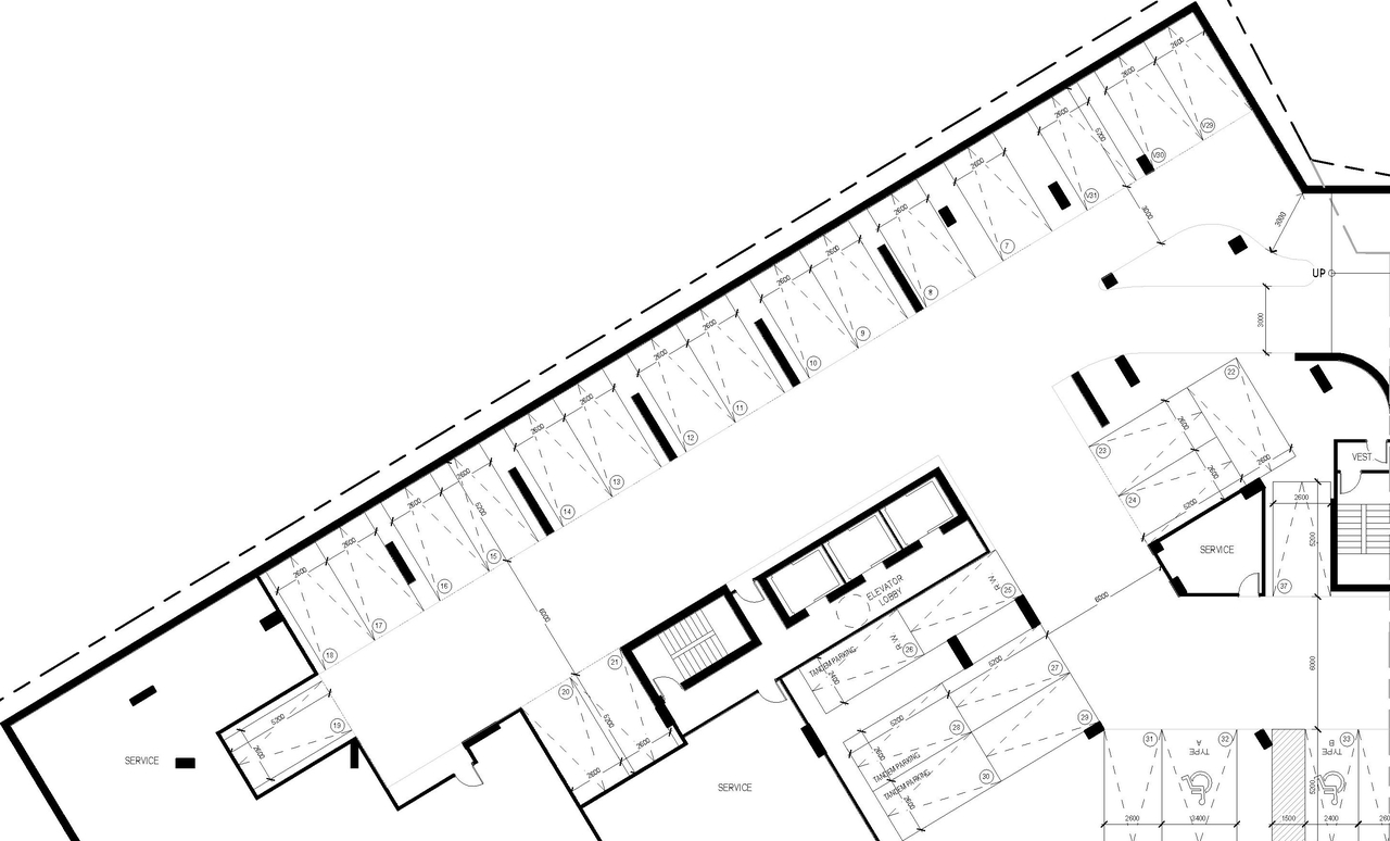
The City of Ottawa has received an Official Plan and Zoning By-law Amendment application to permit the construction of a 28-storey high-rise apartment building comprising of 326 residential units and 94 underground vehicular parking spaces adjacent to the existing heritage building (Alexander Fleck House).
Status
File Pending (Application File Pending)
Building Scale (Max.)
Based on elevation drawings. Values may be approximate. See sources for exact figures.
High-rise · 28 storeys
· 92.4 m
Renders#
Location#
Select a marker to view the address.
Site Plans, Elevations and Floor Plans#
Additional Information#
| Date Initiated | 2024-12-17 |
| Ward | Ward 14 - Ariel Troster |
| All Addresses | 593 Laurier Ave. W. 601 Laurier Ave. W. |














































