640 Compass St.#
Last updated: 2025-09-03 · ID: D02-02-24-0068
Summary#
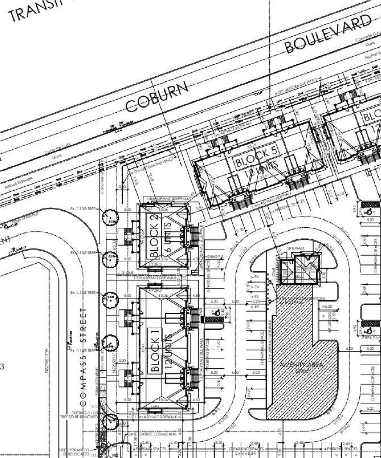
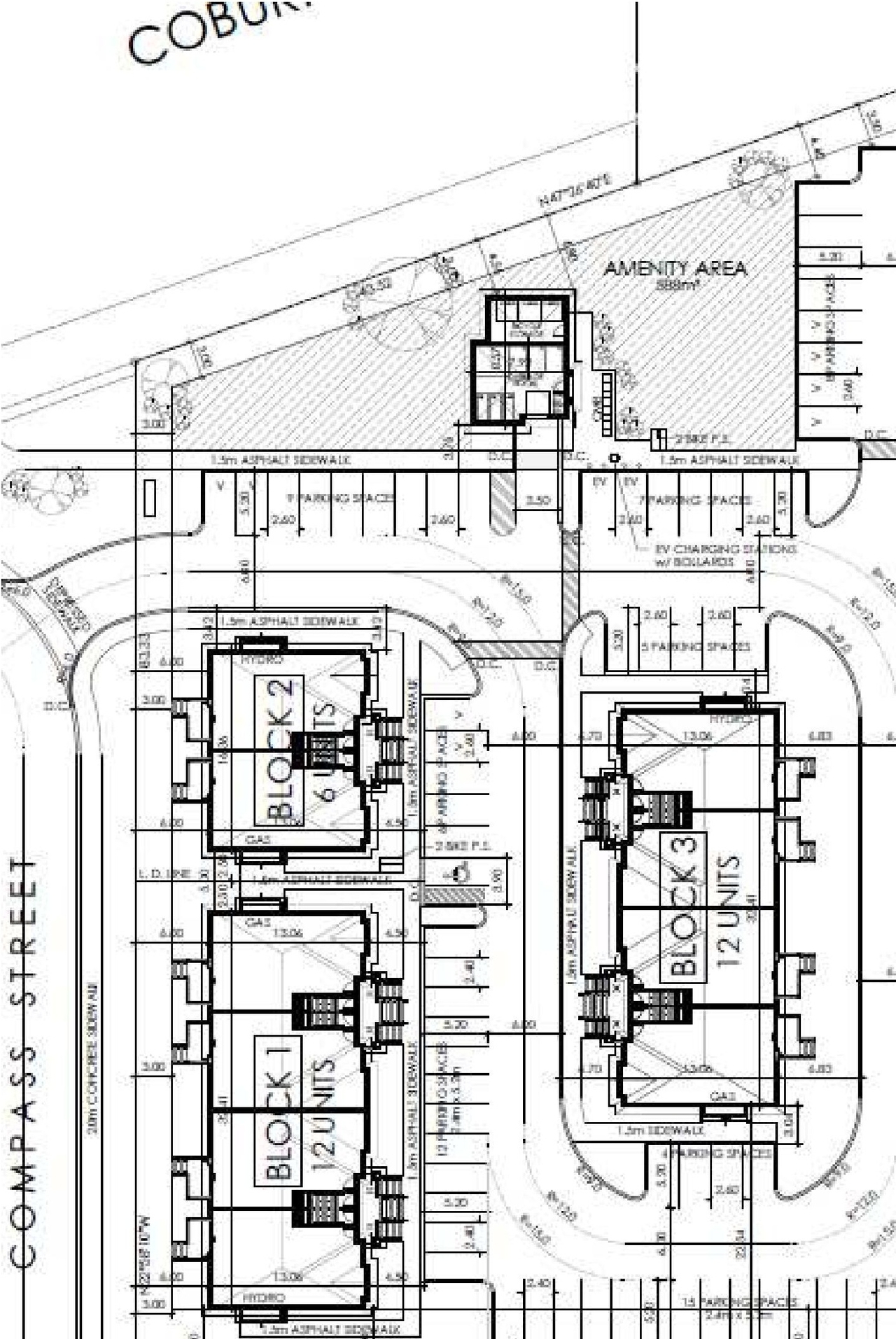
The City of Ottawa has received a Zoning By-law Amendment application to rezone the site from “Development Reserve” (DR) to “Residential Fourth Density Subzone Z with exceptions (R4Z [XXXX]) to permit a planned unit development of six stacked dwelling blocks with a total of 66 units plus associated parking and amenity area.
Status
Inactive (Application Refused by OMB)
Building Scale (Max.)
Based on elevation drawings. Values may be approximate. See sources for exact figures.
Low-rise · 1 storey
· 1.35 m
Location#
Select a marker to view the address.
Site Plans, Elevations and Floor Plans#
Additional Information#
| Date Initiated | 2024-11-12 |
| Ward | Ward 19 - Catherine Kitts |
Documents#
| Type | Document |
|---|---|
| Architectural Plans | 2025-01-13 - Site Plan - D02-02-24-0068 |
| Architectural Plans | 2025-01-13 - Elevations - D02-02-24-0068 |
| Design Brief | 2024-11-12 - Urban Design Brief - D02-02-24-0068 |
| Environmental | 2025-01-13 - Phase 1 ESA Update - D02-02-24-0068 |
| Environmental | 2024-11-12 - Phase 1 Environmental Site Assessment Letter - D02-02-24-0068 |
| Geotechnical Report | 2024-11-12 - Geotechnical Report - D02-02-24-0068 |
| Landscape Plan | 2025-01-13 - Landscape Plans - D02-02-24-0068 |
| Planning | 2025-01-13 - Planning Rationale - D02-02-24-0068 |
| Site Servicing | 2025-01-13 - Servicing and SWM Report - D02-02-24-0068 |
| Surveying | 2024-11-12 - Plan of Survey - D02-02-24-0068 |
| 2025-02-05 - Final Application Summary ZBLA - D02-02-24-0068 |
Related Projects#
| Project | Last Updated | Date Initiated |
|---|---|---|
640 Compass St.
D07-12-24-0146 | 2026-01-28 | 2024-11-12 |







