535 Legget Dr.#
Last updated: 2025-07-11 · ID: D02-02-24-0058
Summary#
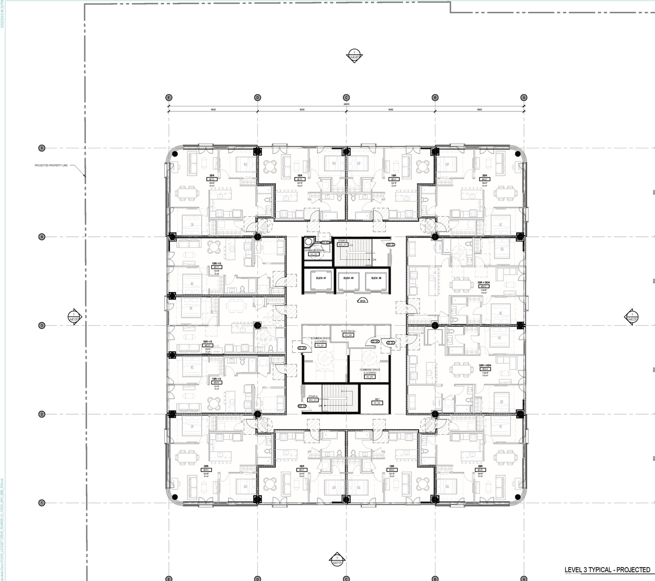
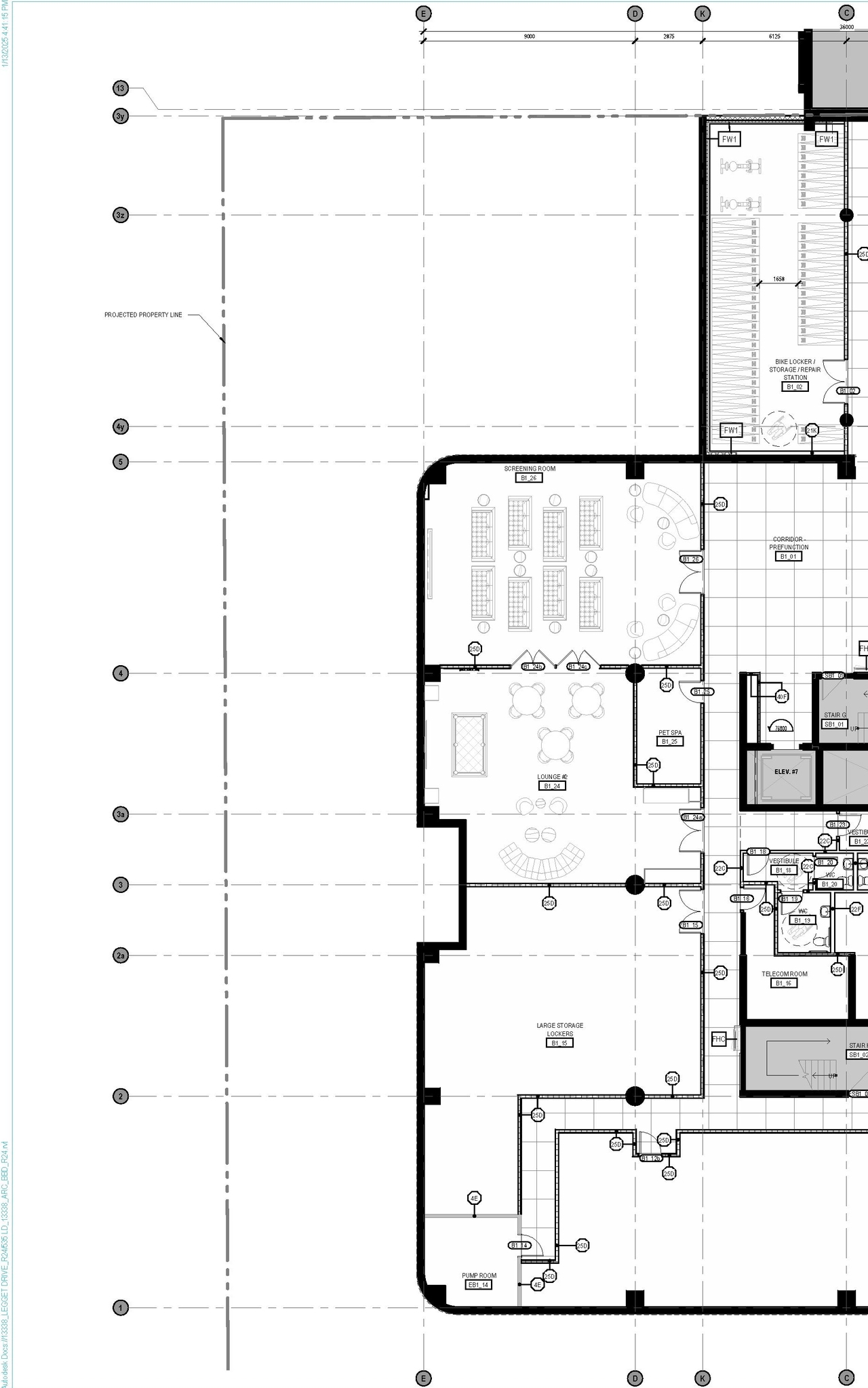
Office to residential Conversion to 115 residential apartments with 400m2 ground floor office.
Status
Inactive (Zoning By-law in Effect)
Building Scale (Max.)
Based on elevation drawings. Values may be approximate. See sources for exact figures.
High-rise · 10 storeys
· 43.54 m
Renders#
Location#
Select a marker to view the address.
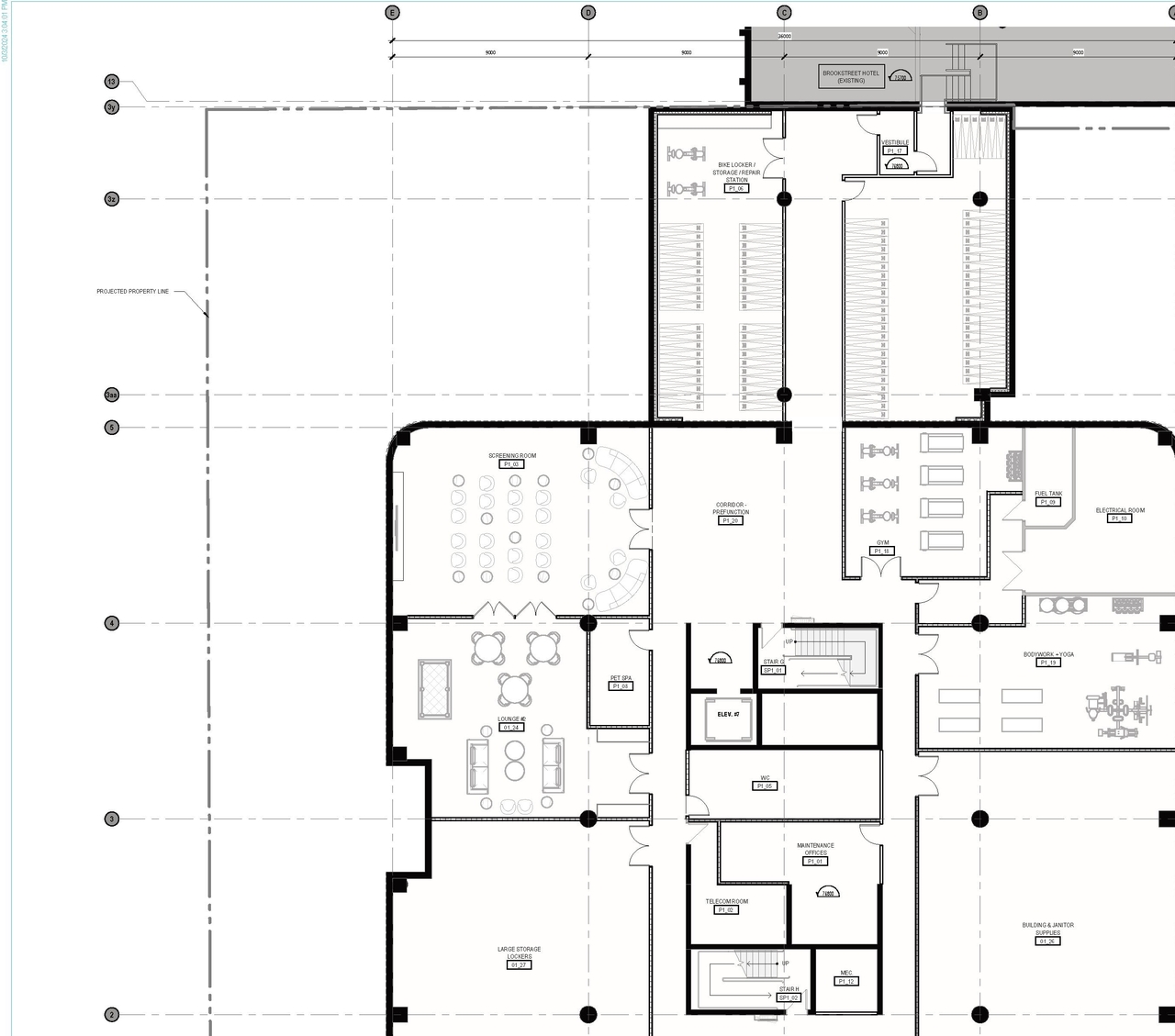
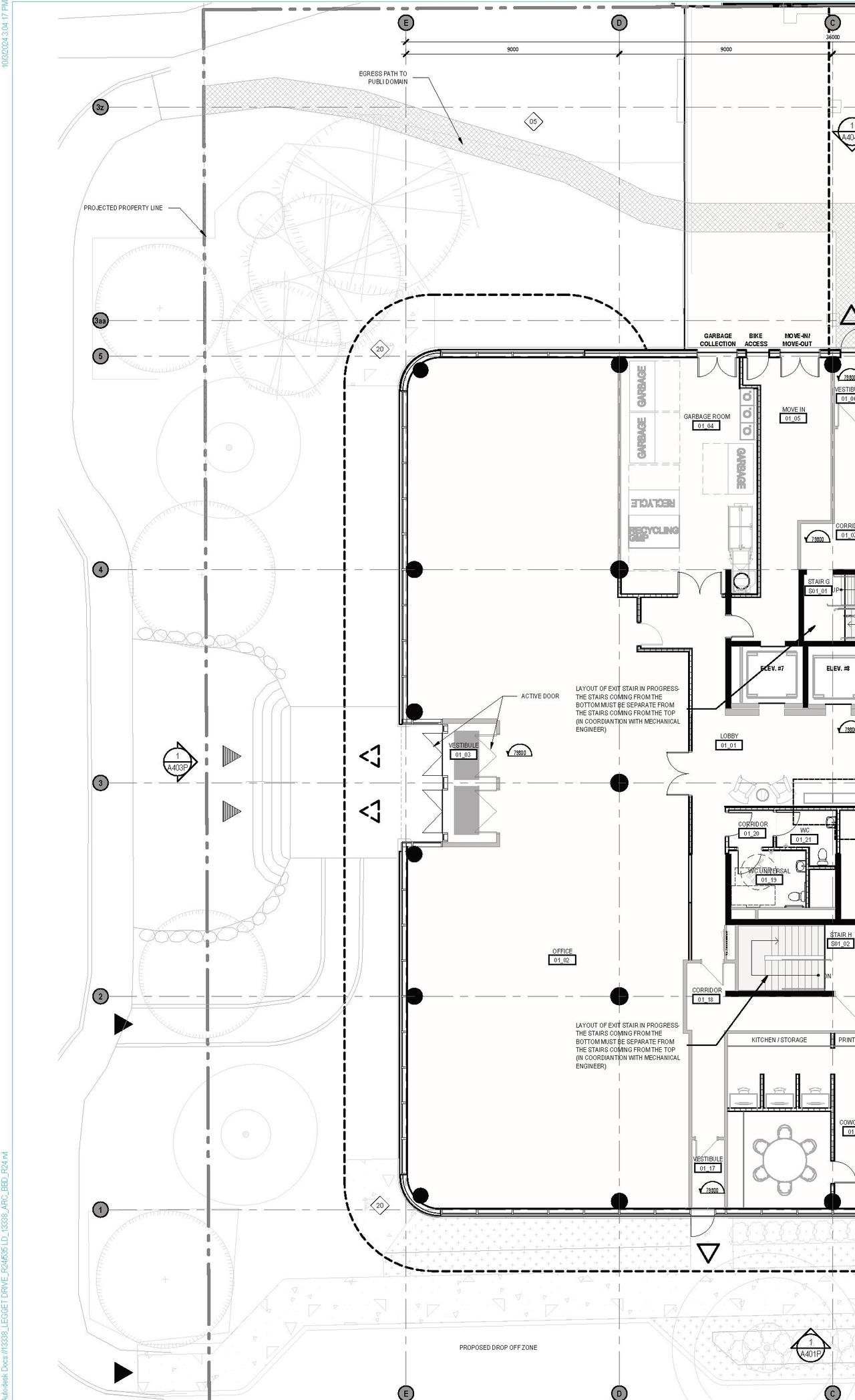
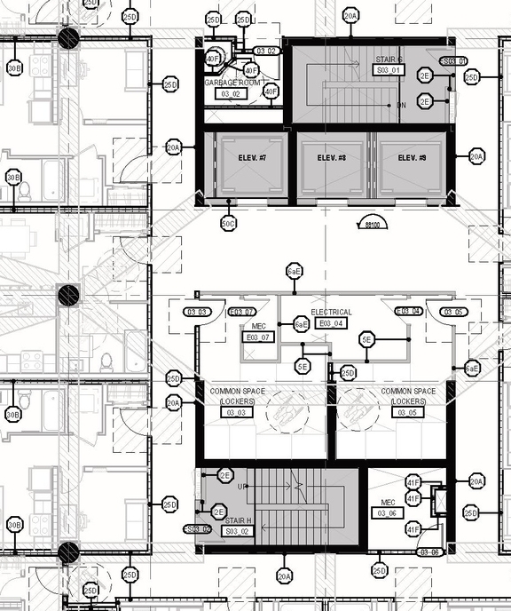
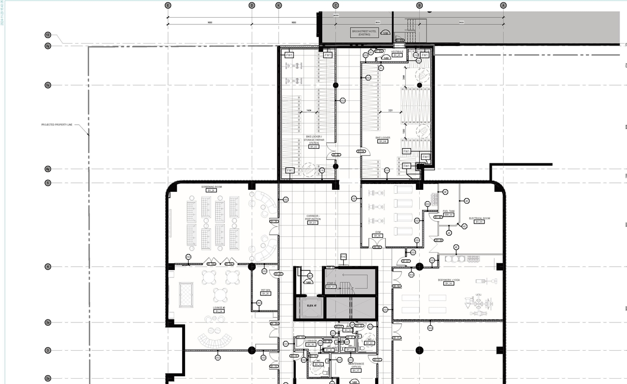
Site Plans, Elevations and Floor Plans#
Additional Information#
| Date Initiated | 2024-10-09 |
| Ward | Ward 4 - Cathy Curry |




















