312-314 Clifton Rd./1950 Scott St.#
Last updated: 2025-08-29 · ID: D02-02-24-0054
Summary#
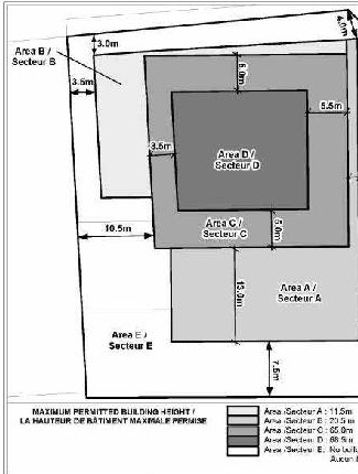
Relief from maximum building height and rear yard setback are requested to reflect that additional density is proposed to better align with the policies of the Official Plan and associated Secondary Plan to provide residential units at a rate that is planned for an area in close proximity to a rapid transit station. 104 additional units to be added. PC2021-0383 and Site Plan Submisssion August 1, 2024 - City File: D07-12-24-0072 and City Planning #19152
Status
Inactive (Zoning By-law in Effect)
Building Scale (Max.)
Based on elevation drawings. Values may be approximate. See sources for exact figures.
High-rise · 22 storeys
· 72.5 m
Renders#
Location#
Select a marker to view the address.
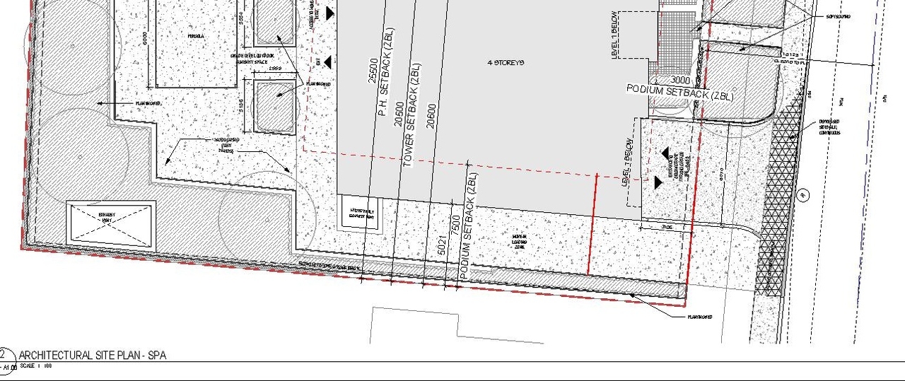
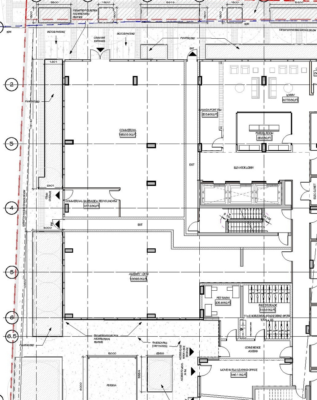
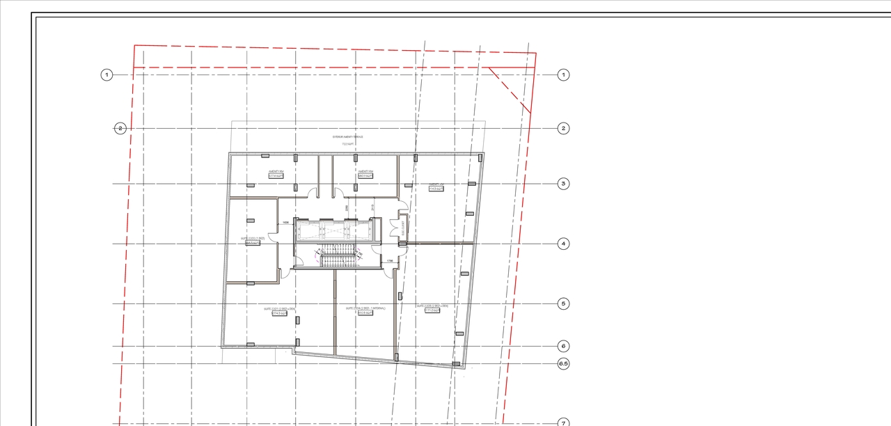
Site Plans, Elevations and Floor Plans#
Additional Information#
| Date Initiated | 2024-09-26 |
| Ward | Ward 15 - Jeff Leiper |
| All Addresses | 312 Clifton Rd. 314 Clifton Rd. 1950 Scott St. |

















