254 Argyle Ave.#
Last updated: 2025-07-30 ยท ID: D02-02-24-0051
Summary#
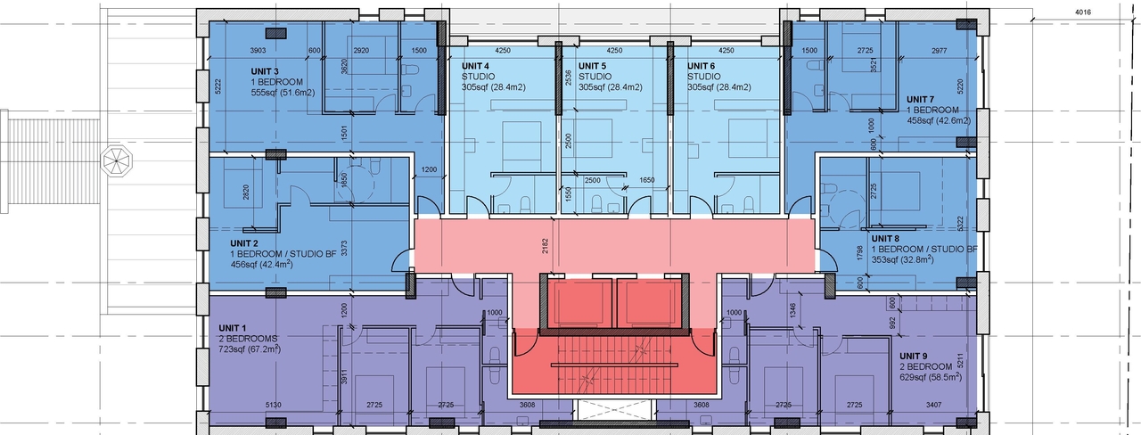
Reduced lot width, increased permitted height, reduced front yard setback, reduced rear yard setback, reduced interior side yard setbacks reduced landscaped area, reduced parking rate, to exclude subject site from Heritage Overlay, and to permit two mezzanine levels as part of the first story. Approximately 84 Dwelling Units.
Status
Inactive (Zoning By-law in Effect)
Renders#
Location#
Select a marker to view the address.
Site Plans, Elevations and Floor Plans#
Additional Information#
| Date Initiated | 2024-09-20 |
| Ward | Ward 14 - Ariel Troster |
































