50 Bayswater Ave./1088 Somerset St.#
Last updated: 2025-05-14 · ID: D02-02-24-0038
Summary#
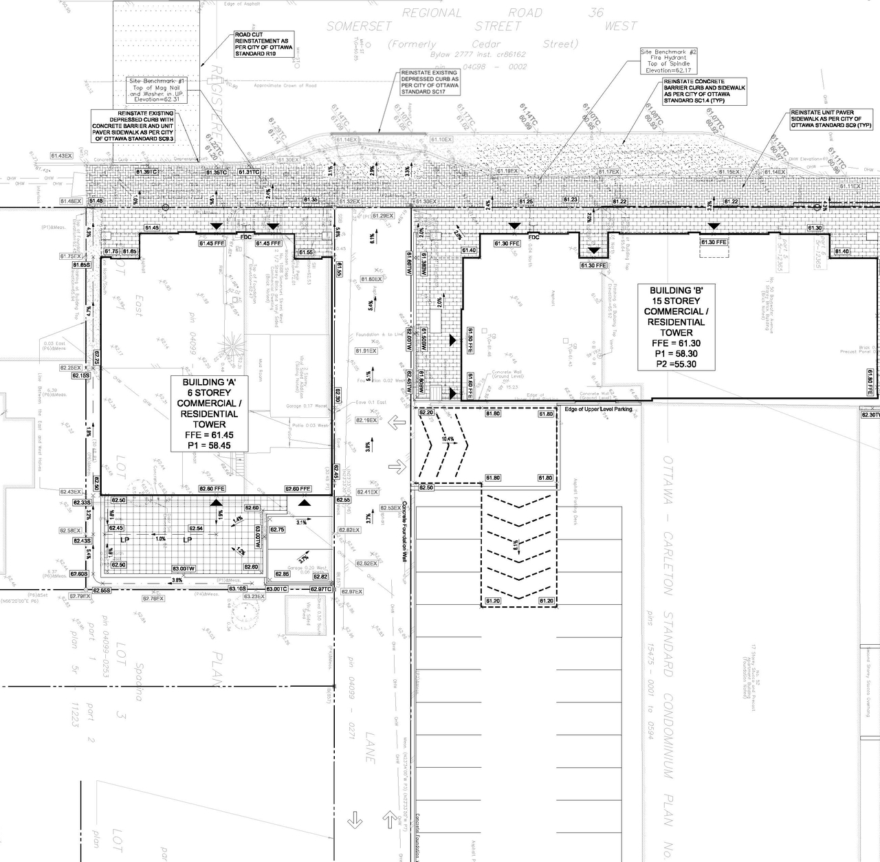
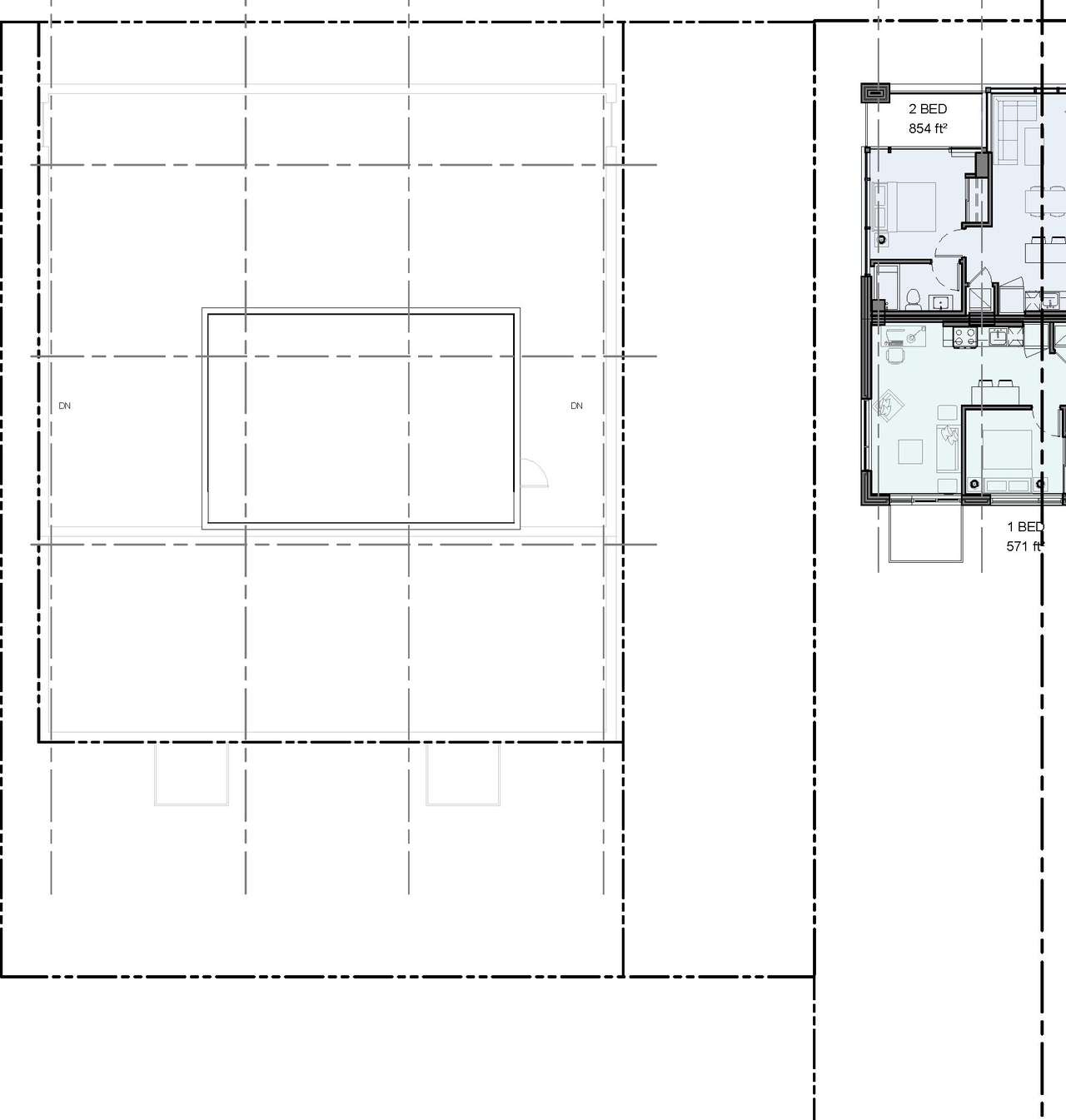
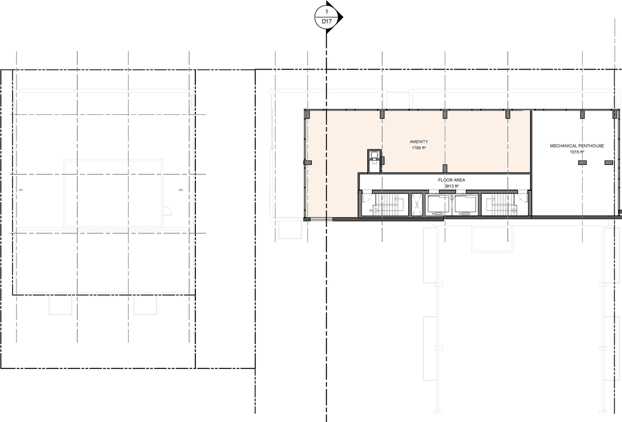
Mixed use 16-storey building (50 Bayswater) Mixed use 6-storey building (1066 Somerset) with 21 residential dwelling units and 2 visitor parking spaces, and a 16-storey building with 80 residential dwelling units and 2 visitor parking spaces at 50 Bayswater Avenue.
Status
Inactive (Zoning By-law in Effect)
Building Scale (Max.)
Based on elevation drawings. Values may be approximate. See sources for exact figures.
High-rise · 16 storeys
· 50.1 m
Renders#
Location#
Select a marker to view the address.
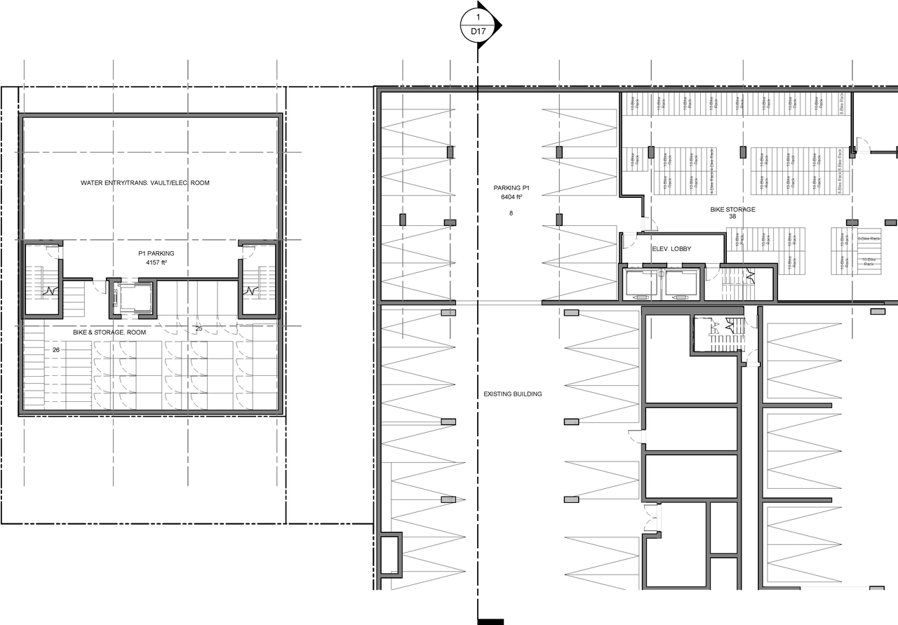
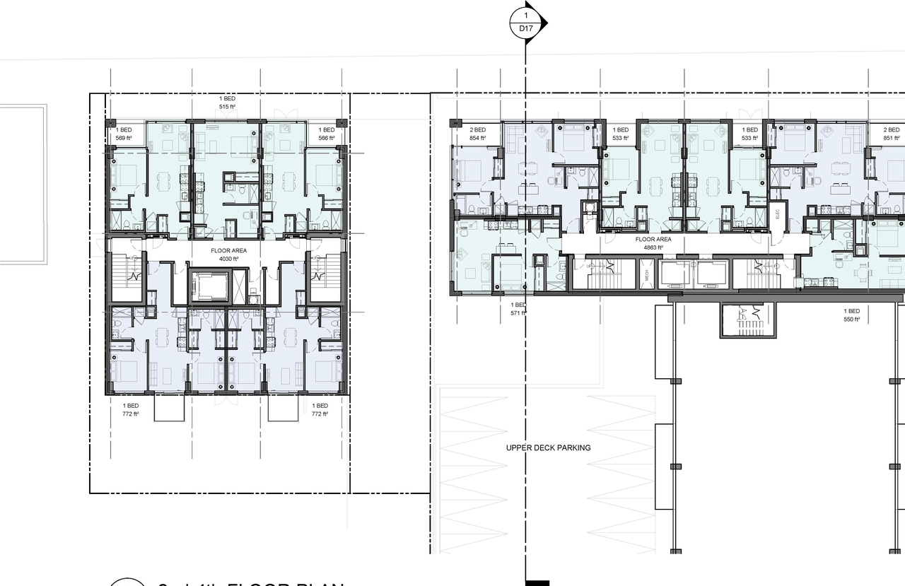
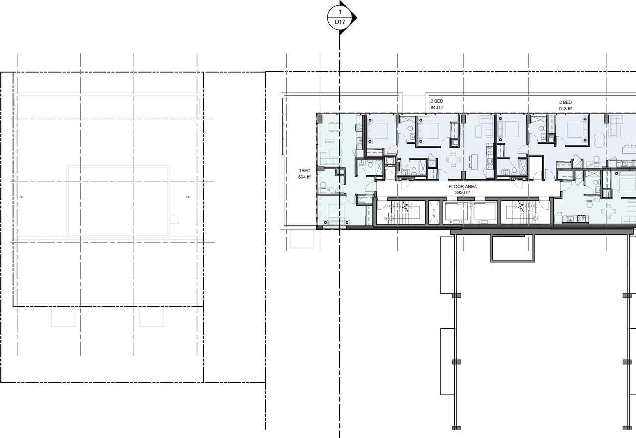
Site Plans, Elevations and Floor Plans#
Additional Information#
| Date Initiated | 2024-08-09 |
| Ward | Ward 15 - Jeff Leiper |





















