10 Garrison St.#
Summary#
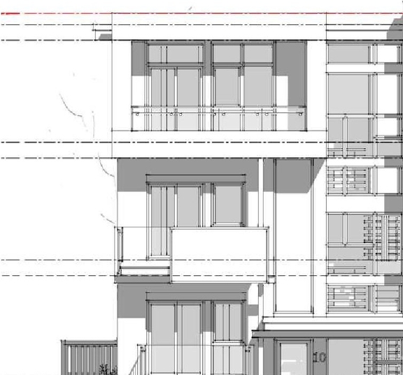
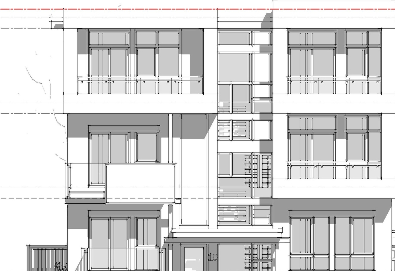
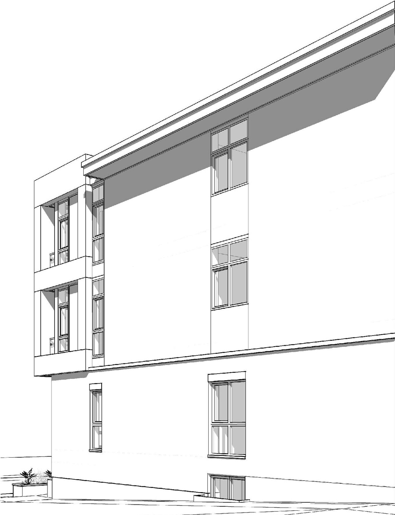
The proposal is to construct a 3 storey plus basement 10 unit low-rise rental apartment building. Setbacks will be 3.07 m from the front lot line, 1.5 m to each of the side lot lines and 9.15 m to the rear lot line. The rear yard will contain bike parking and a garbage structure. The building will be 11 m in height. The 10 dwelling units will consist of 6 one bedroom units and 4 two bedroom units. Two of the ground floor units will be barrier free units. The basement will contain one unit, a gym and a storage area.
Status
Inactive (Zoning By-law in Effect)
Building Scale (Max.)
Based on elevation drawings. Values may be approximate. See sources for exact figures.
Low-rise · 3 storeys
Data Quality Note
Text was extracted using optical character recognition. This may introduce artifacts or misreads.
Renders#
Location#
Site Plans, Elevations and Floor Plans#
Additional Information#
| Date Initiated | 2024-08-08 |
| Ward | Ward 15 - Jeff Leiper |
















