1657 Carling Ave./386 Tillbury Ave.#
Last updated: 2025-11-06 · ID: D02-02-24-0032
Summary#
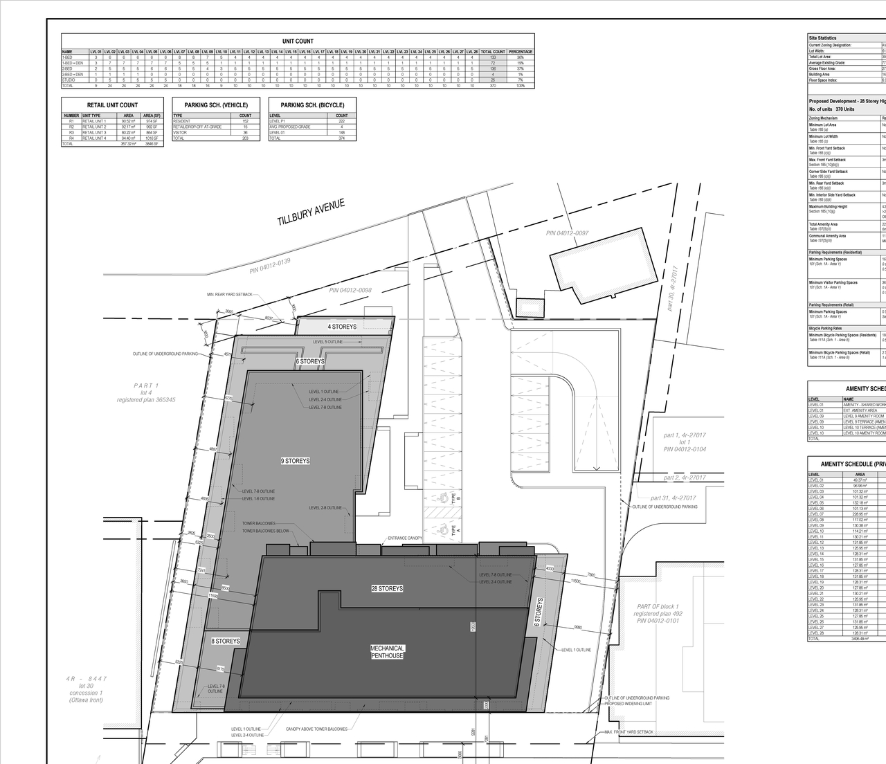
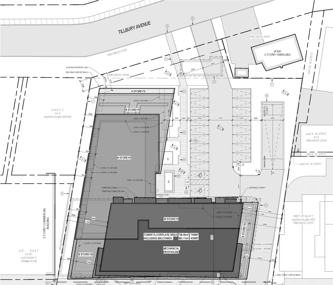
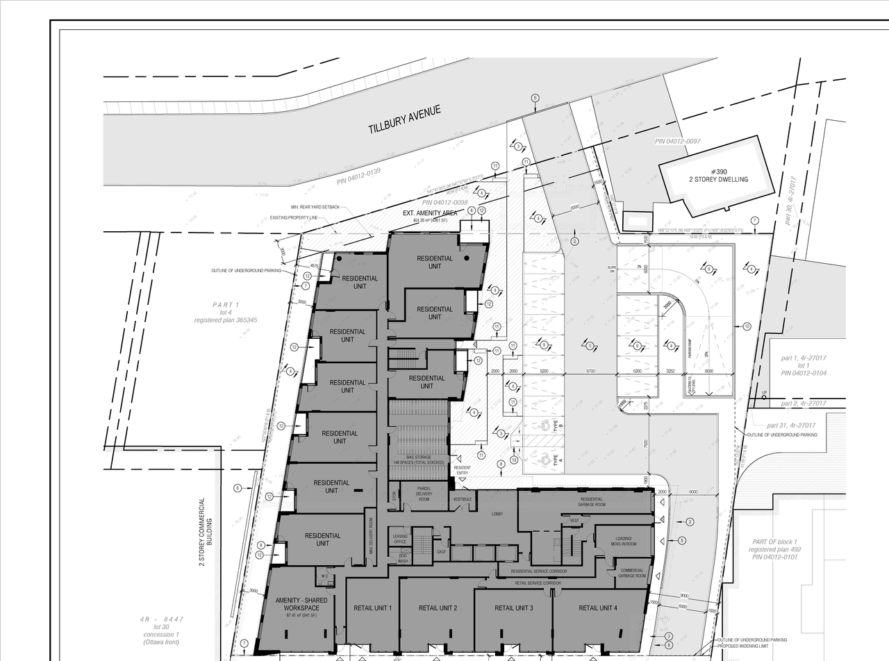
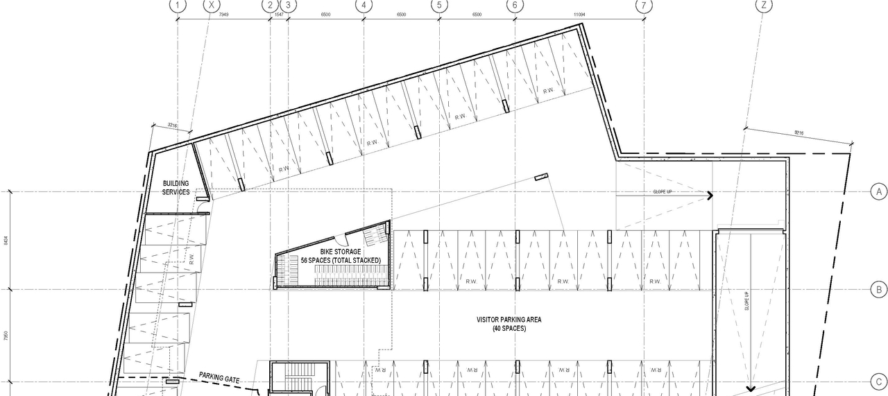
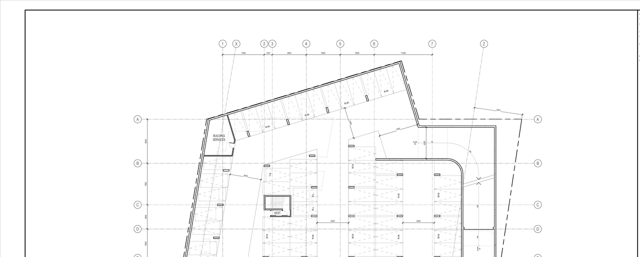
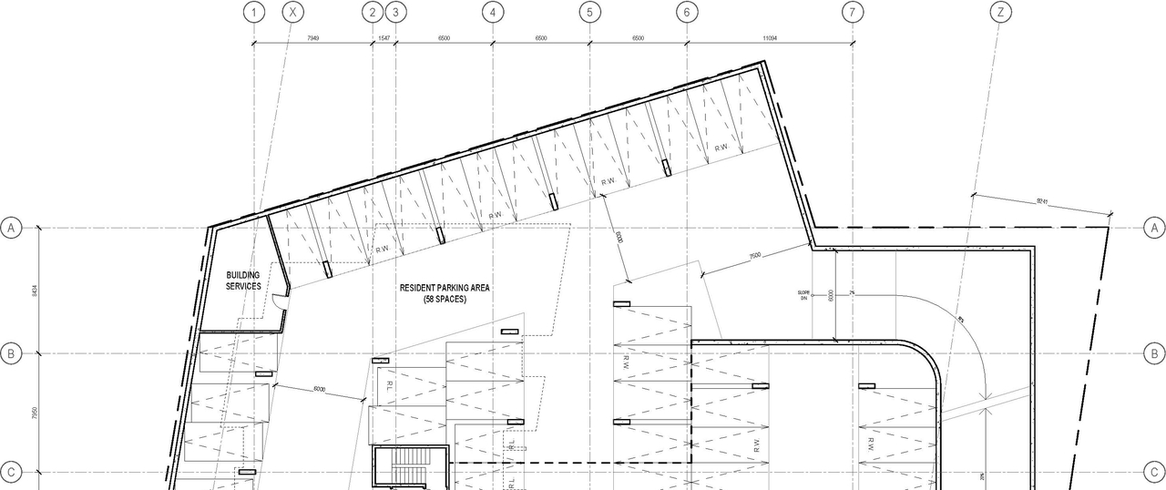
The applicant is proposing a 28-storey high-rise residential tower with 370 dwelling units massed to Carling Avenue. It will be sited on a 6 storey podium which rises to 9 storeys internal to the site and transitions down to 4 storeys towards Tillbury Ave. Greenspace is proposed fronting directly onto Tillbury Avenue.
Status
Inactive (Zoning By-law in Effect)
Building Scale (Max.)
Based on elevation drawings. Values may be approximate. See sources for exact figures.
High-rise · 28 storeys
· 90.1 m
Renders#
Location#
Select a marker to view the address.
Site Plans, Elevations and Floor Plans#
Additional Information#
| Date Initiated | 2024-07-29 |
| Ward | Ward 15 - Jeff Leiper |























































