1111 Cummings Ave./1137 Ogilvie Rd.#
Summary#
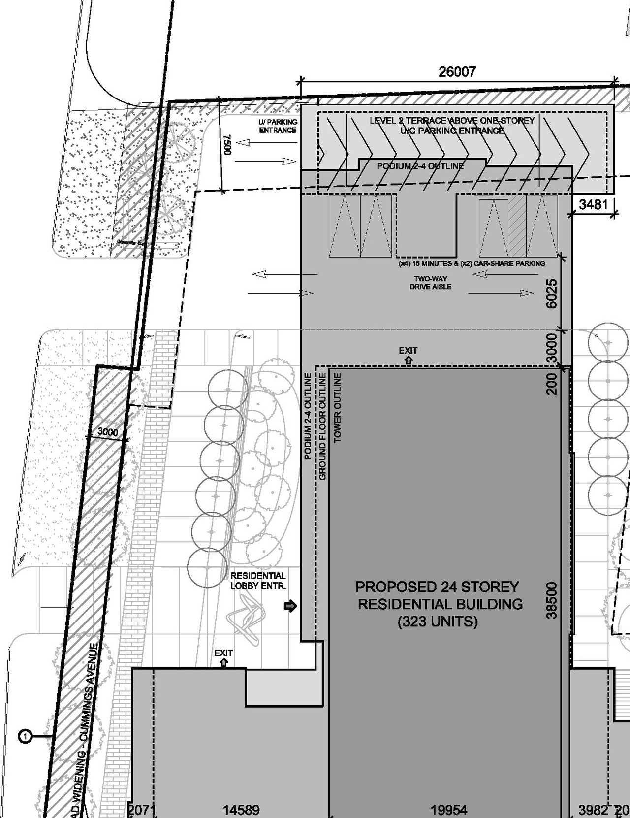
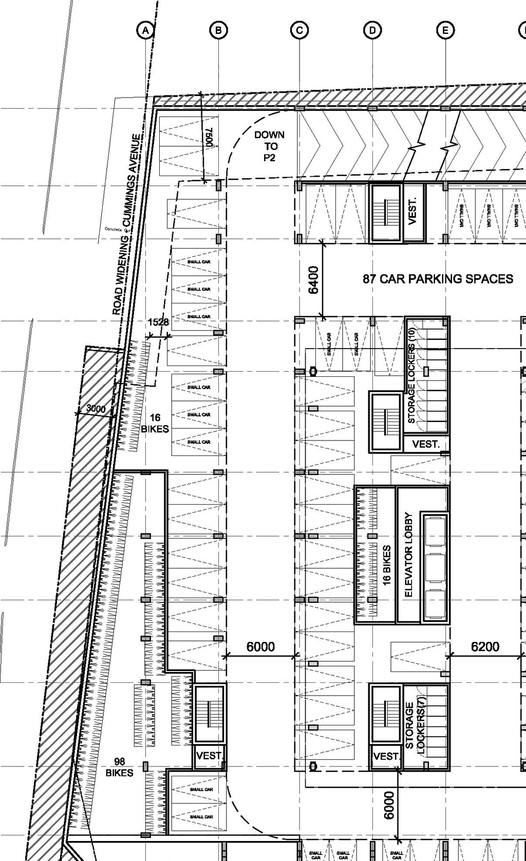
The City of Ottawa has received a revised Zoning By-law Amendment application to construct two 30-storey high-rise mixed-use buildings with a total of 825 residential units, ground floor commercial, 477 vehicular parking spaces, and 413 bicycle parking spaces.
Status
Inactive (Zoning By-law in Effect)
Building Scale (Max.)
Based on elevation drawings. Values may be approximate. See sources for exact figures.
High-rise · 30 storeys
Data Quality Note
Text was extracted using optical character recognition. This may introduce artifacts or misreads.
· 100.5 m
Data Quality Note
Height was partially estimated using visual scale. This may be approximate.
Data Quality Note
Text was extracted using optical character recognition. This may introduce artifacts or misreads.
Renders#
Location#
Site Plans, Elevations and Floor Plans#
Additional Information#
| Date Initiated | 2024-07-18 |
| Ward | Ward 11 - Tim Tierney |
Documents#
Related Projects#
| Project | Last Updated | Date Initiated |
|---|---|---|
1111 Cummings Ave.1137 Ogilvie Rd.
D07-12-25-0054 | 2026-03-19 | 2025-04-24 |























