Ottawa Development Projects

1280 Trim Rd.#

Last updated: 2024-12-14 ยท ID: D02-02-24-0024

Summary#

The City of Ottawa has received a Zoning By-law Amendment application to establish site-specific zone provisions via an urban exception to increase the permitted Gross Floor Area (GFA) for personal service, restaurant, and automobile service uses, to decrease required setbacks, and permit outdoor storage to enable a commercial development.

Status
Inactive (Zoning By-law in Effect)

Renders#

Location#

Select a marker to view the address.

Site Plans, Elevations and Floor Plans#

Additional Information#

Date Initiated2024-07-05
WardWard 1 - Matthew Luloff

Documents#

TypeDocument
Application Summary2024-08-13 - Application Summary - D02-02-24-0024
Architectural Plans2024-08-12 -Plan C301, Grading and Drainage Plan - D02-02-24-0024
Architectural Plans2024-08-12 - Plan C901, Construction Detail Plan - D02-02-24-0024
Architectural Plans2024-08-12 - Plan C702, Post-Development Watershed Plan - D02-02-24-0024
Architectural Plans2024-08-12 - Plan C401, Servicing Plan - D02-02-24-0024
Architectural Plans2024-08-12 - Plan C102, Demolition Plan - D02-02-24-0024
Architectural Plans2024-08-12 - Plan C101, Erosion and Sediment Control Plan - D02-02-24-0024
Architectural Plans2024-08-12 - Plan C001 - General Notes - D02-02-24-0024
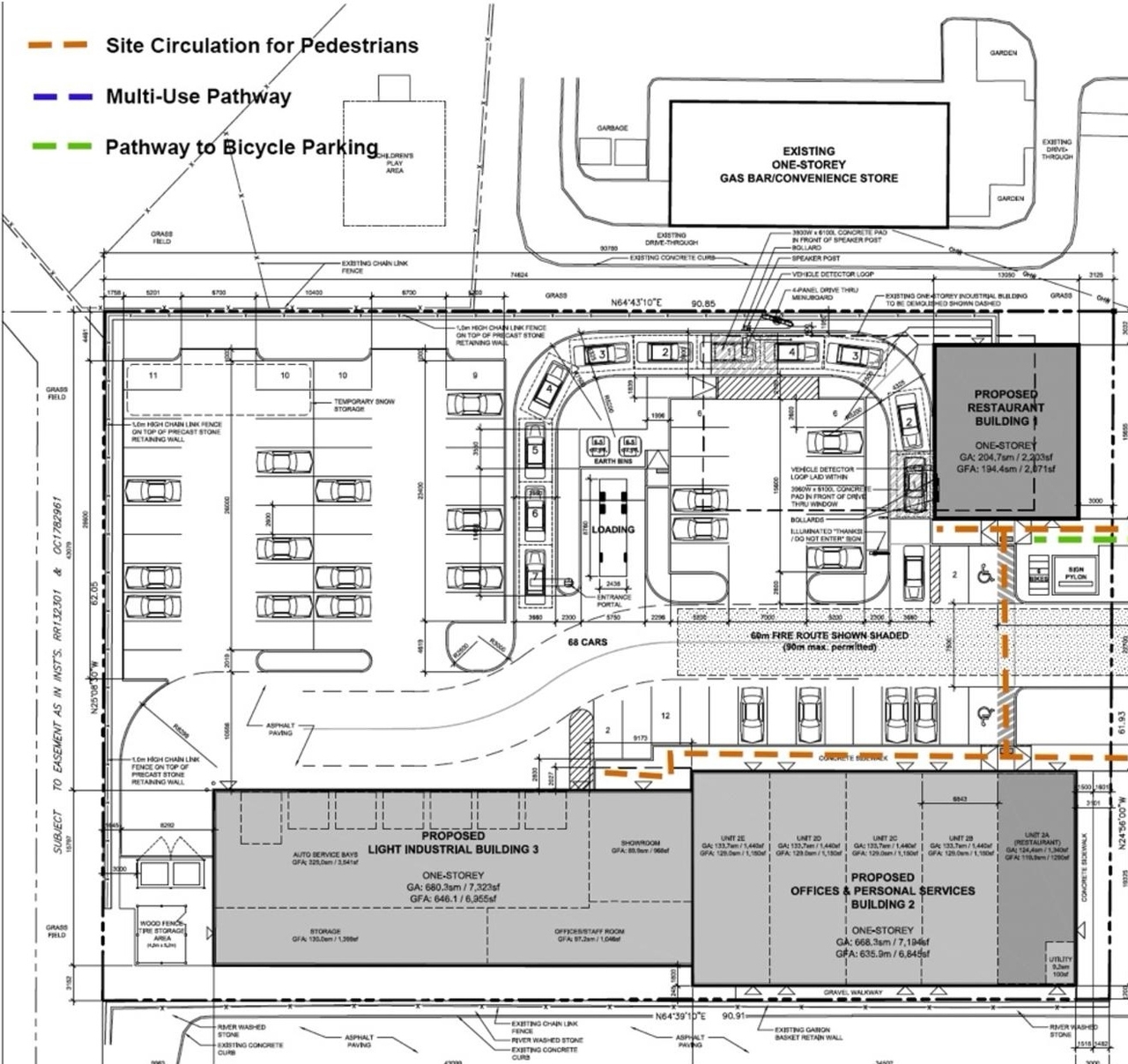
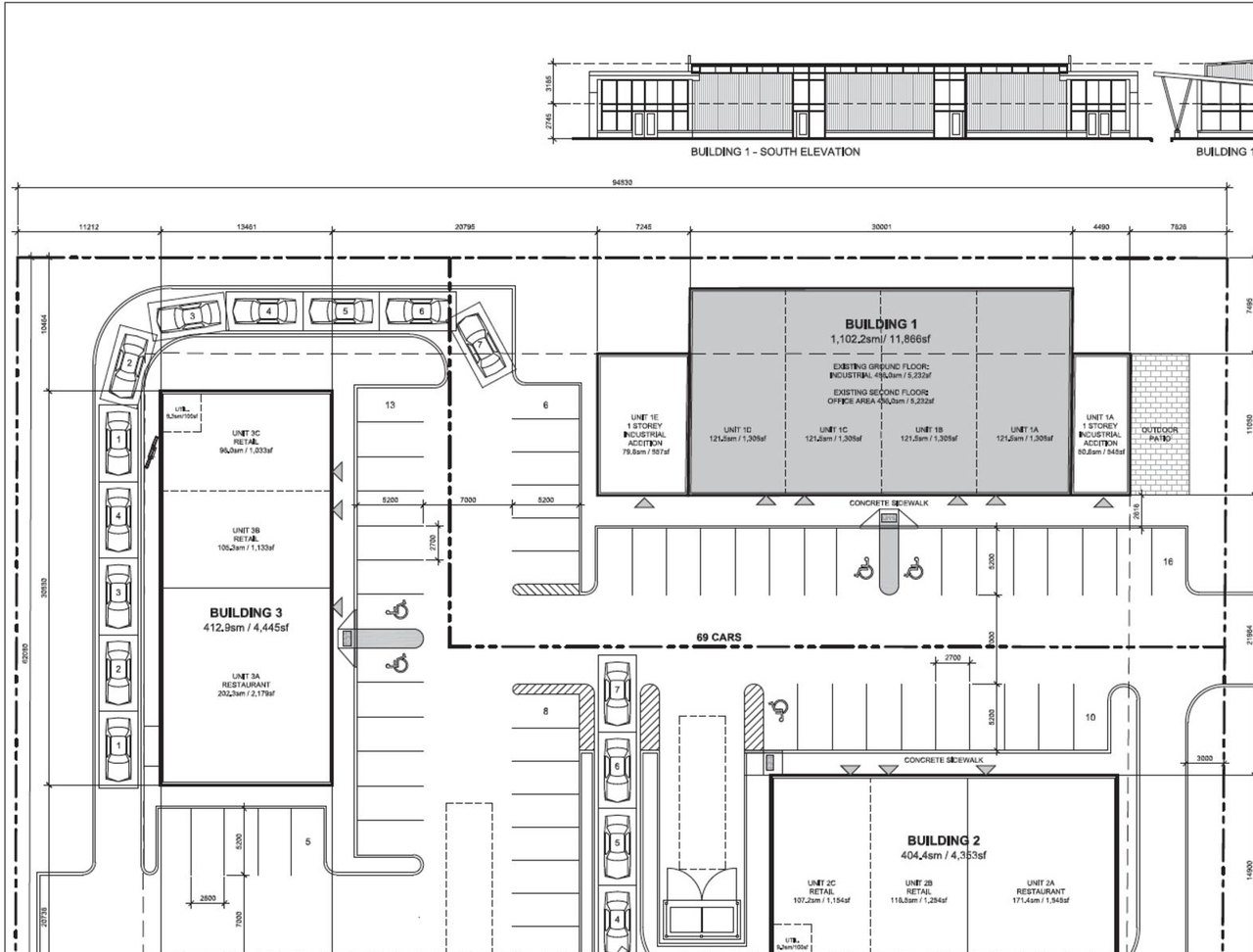
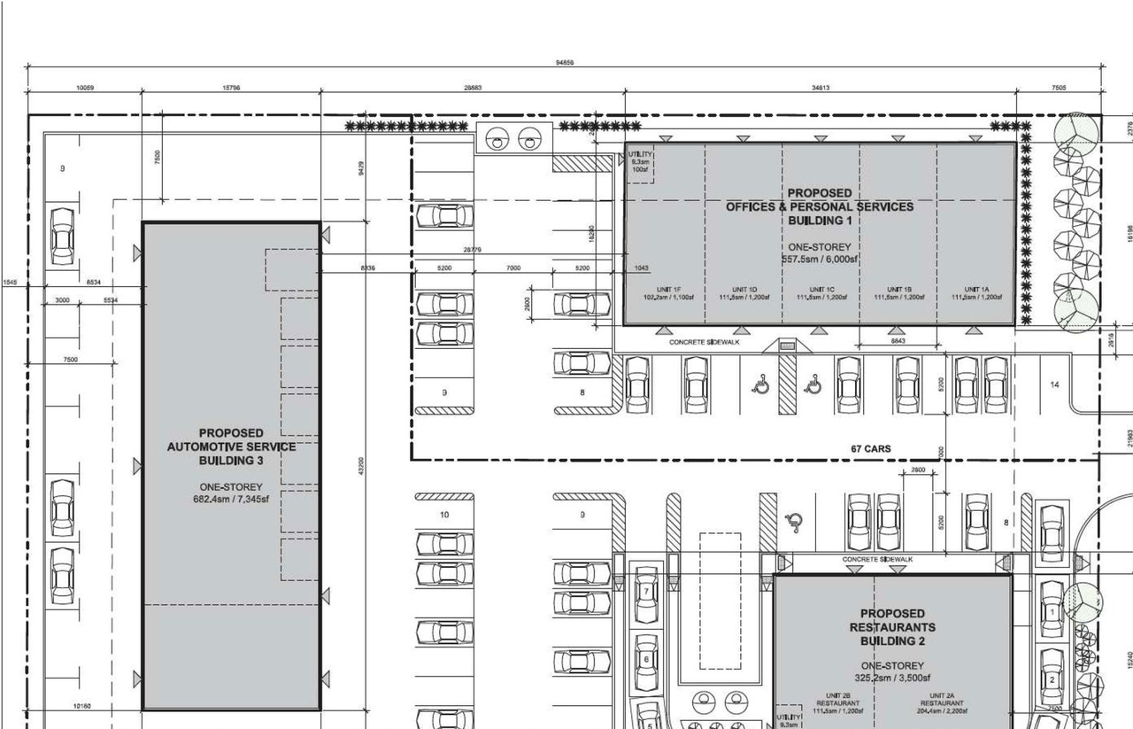
Architectural Plans2024-08-02 - Site Plan - D02-02-24-0024
Architectural Plans2024-07-03 - Site Plan with Truck Turning Plan - D02-02-24-0024
Architectural Plans2024-07-03 - Retaining Wall Design, Plan S100 - D02-02-24-0024
Architectural Plans2024-02-12 -Plan C701, Pre-Development Watershed Plan - D02-02-24-0024
Architectural Plans2024-10-11 - Pre-Development Watershed Plan - C701 - D02-02-24-0024
Architectural Plans2024-10-11 - Post-Development Watershed Plan - C702 - D02-02-24-0024
Architectural Plans2024-10-11 - Demolition Plan, C102 - D02-02-24-0024
Architectural Plans2024-10-31-Pre-Development Watershed Plan C701 - D02-02-24-0024
Architectural Plans2024-10-31-Construction Detail Plan,C901 - D02-02-24-0024
Architectural Plans2024-10-31 - Site Plan - D02-02-24-0024
Architectural Plans2024-10-31 - Elevations - D02-02-24-0024
Architectural Plans2024-10-31 - Demolition Plan, C102 - D02-02-24-0024
Design Brief2024-07-03 - Urban Design Brief - D02-02-24-0024
Environmental2024-07-03 - Environmental Site Assessment Phase 1 - D02-02-24-0024
Erosion And Sediment Control Plan2024-10-11 - Erosion and Sediment Control Plan, C101- D02-02-24-0024
Erosion And Sediment Control Plan2024-10-31 - Erosion and Sediment Control Plan, C101 - D02-02-24-0024
Geotechnical Report2024-07-29 - Geotechnical Investigation - D02-02-24-0024
Geotechnical Report2024-10-11 - Grading and Servicing Plan, C301 - D02-02-24-0024
Geotechnical Report2024-10-31 - Grading and Servicing Plan, C301 - D02-02-24-0024
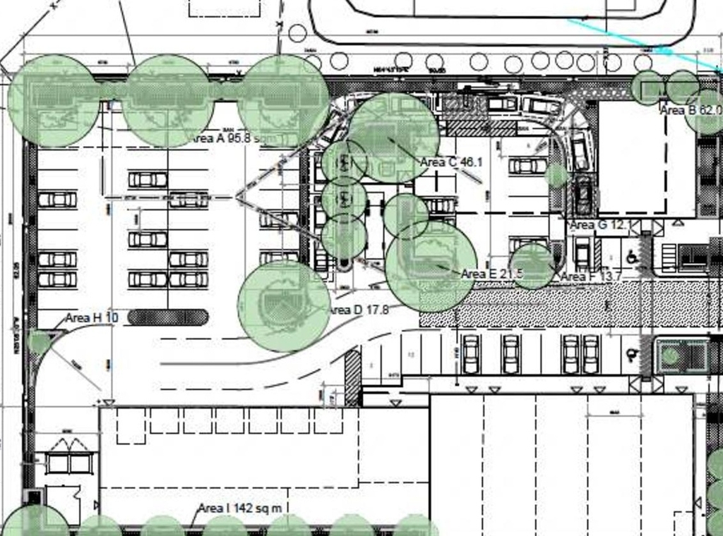
Landscape Plan2024-07-29 - Landscape Plans - Plan L1 and L2 - D02-02-24-0024
Landscape Plan2024-07-03 - Landscape Plan, Plan L-03 - D02-02-24-0024
Landscape Plan2024-10-31 - Landscape Plan, L-01 - D02-02-24-0024
Planning2024-08-06 - Planning Rationale - D02-02-24-0024
Planning2024-08-02 - Zoning Confirmation Report - D02-02-24-0024
Site Servicing2024-10-11 - Servicing Plan, C401 - D02-02-24-0024
Site Servicing2024-10-31 - Servicing Plan, C401 - D02-02-24-0024
Stormwater Management2024-08-12-Plan C601 - Stormwater Management Plan - D02-24-24-0024
Stormwater Management2024-08-12 - Stormwater Management Report and Servicing Brief - D02-02-24-0024
Stormwater Management2024-10-11 - SWM and Servicing Brief - D02-02-24-0024
Stormwater Management2024-10-11 - Stormwater Management Plan, C601 - D02-02-24-0024
Stormwater Management2024-10-31 - SWM Plan, C601 - D02-02-24-0024
Surveying2024-07-03 - Survey - D02-02-24-0024
Transportation Analysis2024-07-03 - Transportation Impact Assessment - D02-02-24-0024
Transportation Analysis2024-10-31 - TIA Addendum 1 - D02-02-24-0024
Tree Information and Conservation2024-07-03 - Tree Information Report, D02-02-24-0024
2024-08-12 - Response to Engineering Comments - D02-02-24-0024
2024-07-03- Transportation Impact Assessment - Addendum 1 Letter - D02-02-24-0024
2024-10-11 - General Notes, C001 - D02-02-24-0024
2024-10-31 - ZCR - D02-02-24-0024
2024-10-31 - Retaining Wall, S100, D02-02-24-0024
2024-10-31 - Response Letter - D02-02-24-0024
2024-10-31 - General Notes, C001 - D02-02-24-0024
2024-10-31 - Canopy Coverage L02 - D02-02-24-0024