315-321 Chapel St./8 Blackburn Ave.#
Last updated: 2024-10-18 · ID: D02-02-24-0003
Summary#
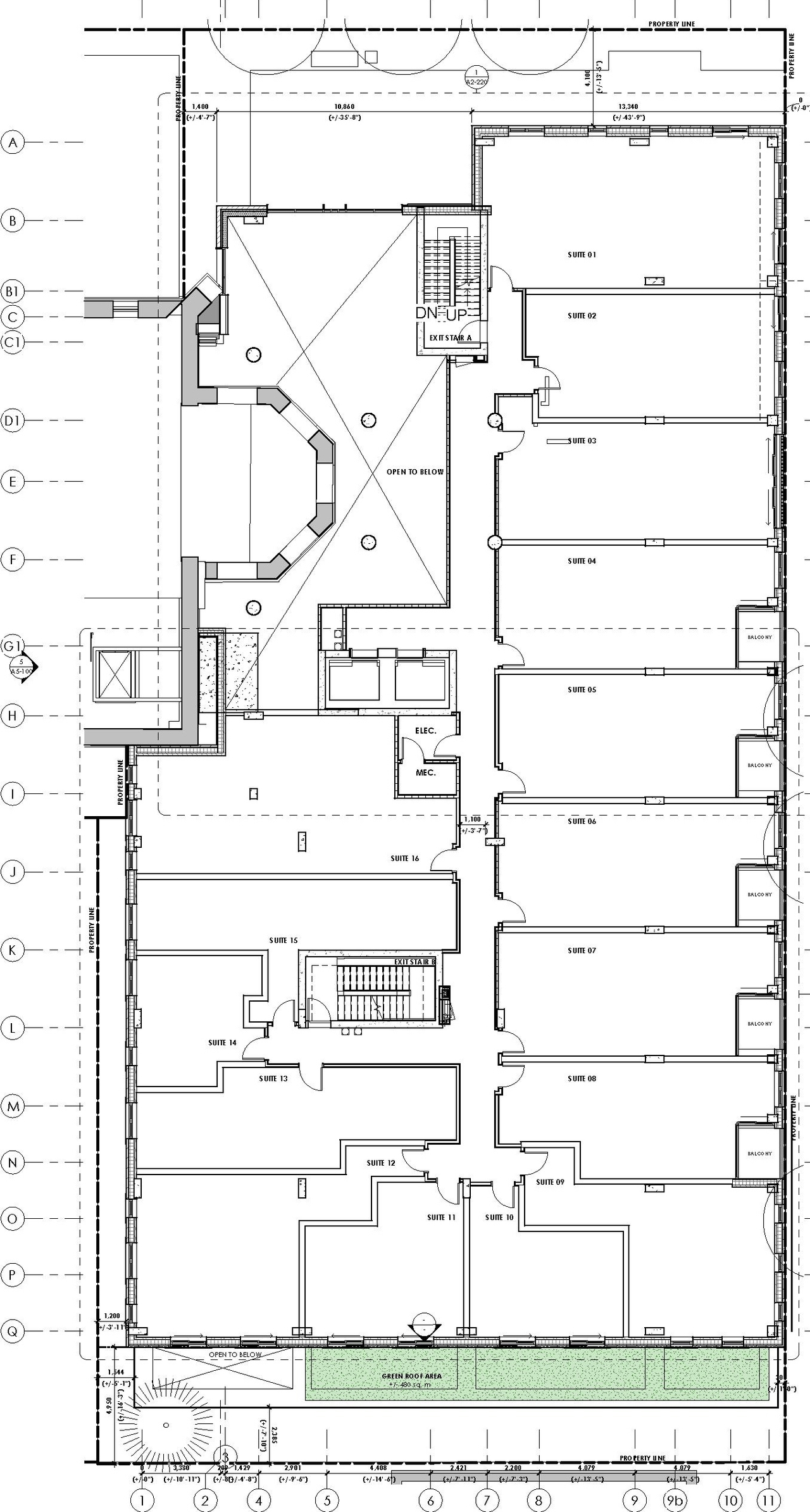
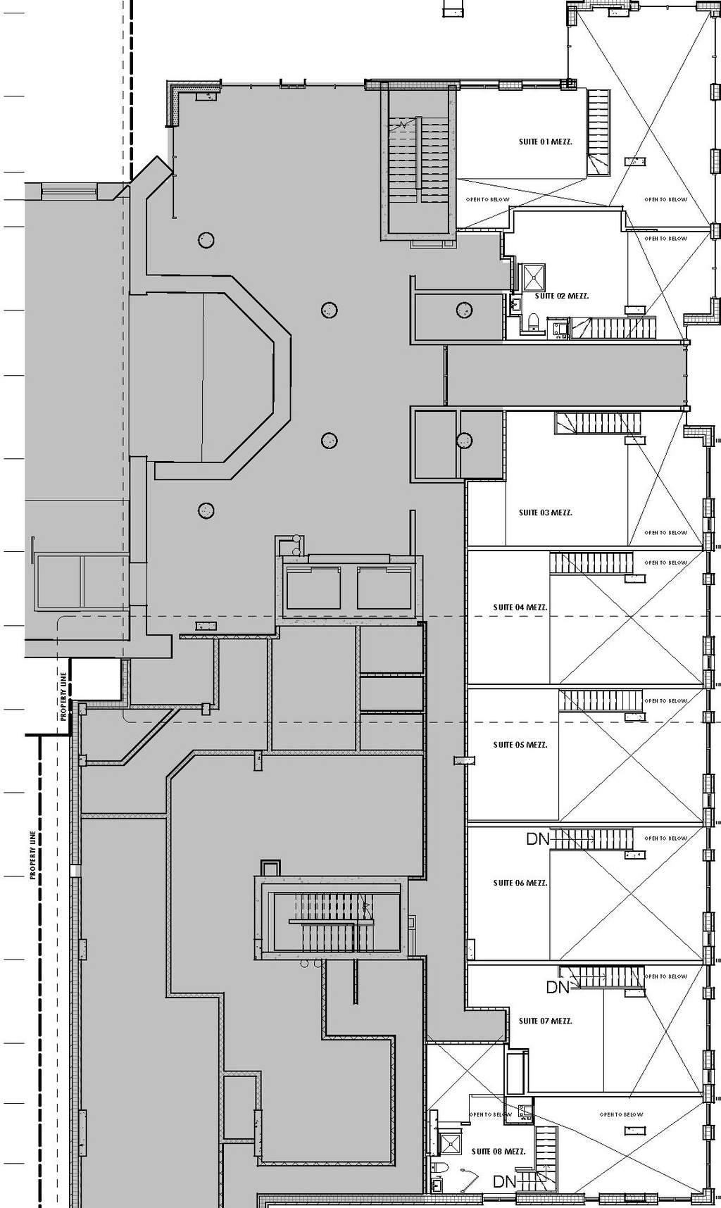
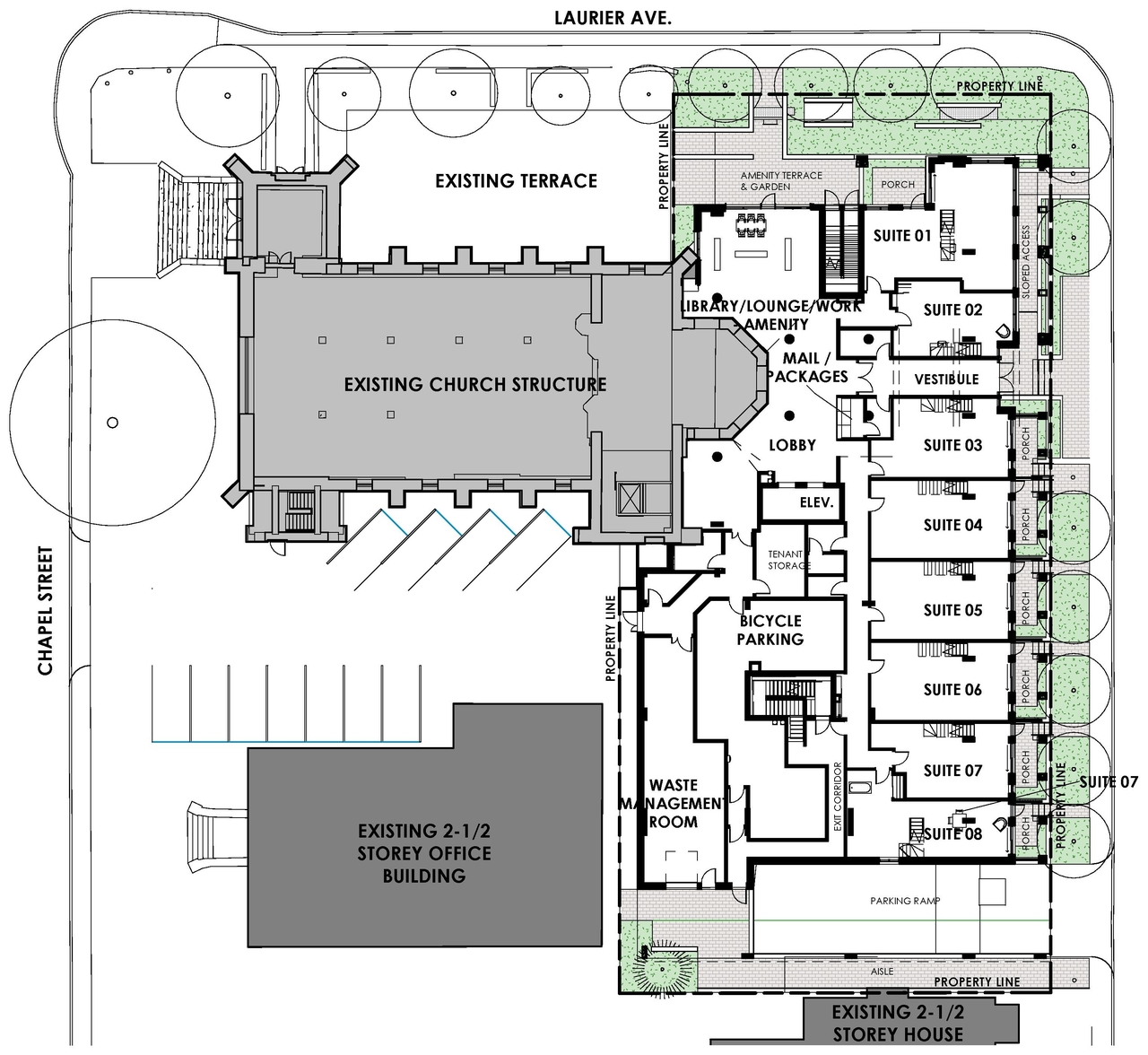
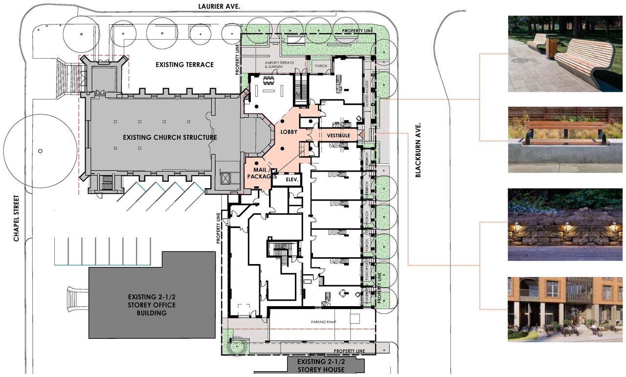
The City of Ottawa has received a Zoning By-law Amendment application to redevelop the site retaining All Saints Anglican Church building and adding a nine-storey residential building with 113 dwelling units and underground parking garage. Some adjustments to Schedule 379 are proposed to facilitate the proposal.
Status
Inactive (Zoning By-law in Effect)
Building Scale (Max.)
Based on elevation drawings. Values may be approximate. See sources for exact figures.
Mid-rise · 9 storeys
Data Quality Note
Text was extracted using optical character recognition. This may introduce artifacts or misreads.
· 33 m
Data Quality Note
Height was partially estimated using visual scale. This may be approximate.
Renders#
Location#
Select a marker to view the address.
Site Plans, Elevations and Floor Plans#
Additional Information#
| Date Initiated | 2024-02-12 |
| Ward | Ward 12 - Stéphanie Plante |
| All Addresses | 315 Chapel St. 321 Chapel St. 8 Blackburn Ave. |






















































































