56-58 Capilano Dr.#
Last updated: 2024-03-18 · ID: D02-02-23-0075
Summary#
To permit “Office” as a permitted use, to support Salus operation of the residential use, and to permit relocation of their existing office use from another site to the subject property. To permit drive aisle within 5 metres To recognize the entirety of the subject property (which is currently subject to a provisional consent) as One Lot for Zoning purposes.
Status
Inactive (Zoning By-law in Effect)
Building Scale (Max.)
Based on elevation drawings. Values may be approximate. See sources for exact figures.
Mid-rise · 4 storeys
· 13.43 m
Location#
Select a marker to view the address.
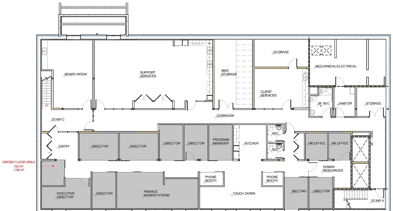
Site Plans, Elevations and Floor Plans#
Additional Information#
| Date Initiated | 2023-11-17 |
| Ward | Ward 9 - Sean Devine |
| All Addresses | 56 Capilano Dr. 58 Capilano Dr. |
Documents#
| Type | Document |
|---|---|
| Application Summary | 2024-01-05 - Application Summary - D02-02-23-0075 |
| Architectural Plans | 2024-01-04 - Site Plan Phase 2 - D02-02-23-0075 |
| Architectural Plans | 2024-01-04 - Plan 4R - D02-02-23-0075 |
| Architectural Plans | 2024-01-04 - Exterior Elevations - D02-02-23-0075 |
| Environmental | 2024-01-04 - Phase Two Environmental Site Assessment - D02-02-23-0075 |
| Environmental | 2024-01-04 - Phase One Environmental Site Assessment - D02-02-23-0075 |
| Environmental | 2024-01-04 - Environmental Noise Control Study - D02-02-23-0075 |
| Floor Plan | 2024-01-04 - Basement Office Floor Plan - D02-02-23-0075 |
| Geotechnical Report | 2024-01-04 - Geotechnical Investigation - D02-02-23-0075 |
| Planning | 2024-01-04 - Planning Rationale - D02-02-23-0075 |
| Site Servicing | 2024-01-04 - Servicing Report - D02-02-23-0075 |
| Surveying | 2024-01-04 - Survey Plan - D02-02-23-0075 |
| Tree Information and Conservation | 2024-01-04 - Tree Conservation Report - D02-02-23-0075 |
Related Projects#
| Project | Last Updated | Date Initiated |
|---|---|---|
56 Capilano Dr.
D07-12-23-0028 | 2024-07-05 | 2023-03-13 |

