8 Withrow Ave.#
Last updated: 2024-07-18 ยท ID: D02-02-23-0062
Summary#
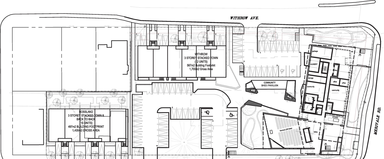
The City of Ottawa has received a Zoning By-law Amendment and Site Plan Control application to permit the construction of a new place of worship, an 8-storey apartment building with 57 affordable housing units, and 27 townhouse units.
Status
Inactive (Zoning By-law in Effect)
Renders#
Location#
Select a marker to view the address.
Site Plans, Elevations and Floor Plans#
Additional Information#
| Date Initiated | 2023-06-30 |
| Ward | Ward 8 - Laine Johnson |


















