Ottawa Development Projects

1531 St-Laurent Blvd.#

Last updated: 2026-03-28 · ID: D02-02-23-0056

Summary#

The City of Ottawa has received a Zoning By-law amendment and Site Plan Control application to construct two high-rise towers with modifications to the zoning provisions.

Status
File Pending (Application File Pending)

Building Scale (Max.) Based on elevation drawings. Values may be approximate. See sources for exact figures.
High-rise · 26 storeys · 82.03 m

Renders#

  • Rendering of building from page 11 of the file '2024-07-23 - UDRP Design Brief - D02-02-23-0056'
  • Rendering of building from page 14 of the file '2026-03-26 - UDRP Presentation Drawing Set - D02-02-23-0056'
  • Rendering of building from page 18 of the file '2026-03-26 - UDRP Presentation Drawing Set - D02-02-23-0056'
  • Rendering of building from page 15 of the file '2026-03-26 - UDRP Presentation Drawing Set - D02-02-23-0056'
  • Rendering of building from page 15 of the file '2024-07-23 - UDRP Design Brief - D02-02-23-0056'
  • Rendering of building from page 14 of the file '2024-07-23 - UDRP Design Brief - D02-02-23-0056'
  • Rendering of building from page 12 of the file '2024-07-23 - UDRP Design Brief - D02-02-23-0056'
  • Rendering of building from page 7 of the file '2024-07-23 - UDRP Design Brief - D02-02-23-0056'
  • Rendering of building from page 13 of the file '2024-07-23 - UDRP Design Brief - D02-02-23-0056'
  • Rendering of building from page 17 of the file '2024-07-23 - UDRP Design Brief - D02-02-23-0056'
  • Rendering of building from page 16 of the file '2024-07-23 - UDRP Design Brief - D02-02-23-0056'
  • Rendering of building from page 7 of the file '2024-07-23 - UDRP Design Brief - D02-02-23-0056'
  • Rendering of building from page 7 of the file '2024-07-23 - UDRP Design Brief - D02-02-23-0056'
  • Rendering of building from page 16 of the file '2026-03-26 - UDRP Presentation Drawing Set - D02-02-23-0056'
  • Rendering of building from page 17 of the file '2026-03-26 - UDRP Presentation Drawing Set - D02-02-23-0056'
  • Rendering of building from page 7 of the file '2024-07-23 - UDRP Design Brief - D02-02-23-0056'
  • Rendering of building from page 8 of the file '2026-03-26 - UDRP Presentation Drawing Set - D02-02-23-0056'
  • Rendering of building from page 9 of the file '2026-03-26 - UDRP Presentation Drawing Set - D02-02-23-0056'
  • Rendering of building from page 8 of the file '2026-03-26 - UDRP Presentation Drawing Set - D02-02-23-0056'
  • Rendering of building from page 9 of the file '2026-03-26 - UDRP Presentation Drawing Set - D02-02-23-0056'
  • Rendering of building from page 8 of the file '2026-03-26 - UDRP Presentation Drawing Set - D02-02-23-0056'
  • Rendering of building from page 11 of the file '2024-07-23 - UDRP Design Brief - D02-02-23-0056'
  • Rendering of building from page 14 of the file '2026-03-26 - UDRP Presentation Drawing Set - D02-02-23-0056'
  • Rendering of building from page 18 of the file '2026-03-26 - UDRP Presentation Drawing Set - D02-02-23-0056'
  • Rendering of building from page 15 of the file '2026-03-26 - UDRP Presentation Drawing Set - D02-02-23-0056'
  • Rendering of building from page 15 of the file '2024-07-23 - UDRP Design Brief - D02-02-23-0056'
  • Rendering of building from page 14 of the file '2024-07-23 - UDRP Design Brief - D02-02-23-0056'
  • Rendering of building from page 12 of the file '2024-07-23 - UDRP Design Brief - D02-02-23-0056'
  • Rendering of building from page 7 of the file '2024-07-23 - UDRP Design Brief - D02-02-23-0056'
  • Rendering of building from page 13 of the file '2024-07-23 - UDRP Design Brief - D02-02-23-0056'
  • Rendering of building from page 17 of the file '2024-07-23 - UDRP Design Brief - D02-02-23-0056'
  • Rendering of building from page 16 of the file '2024-07-23 - UDRP Design Brief - D02-02-23-0056'
  • Rendering of building from page 7 of the file '2024-07-23 - UDRP Design Brief - D02-02-23-0056'
  • Rendering of building from page 7 of the file '2024-07-23 - UDRP Design Brief - D02-02-23-0056'
  • Rendering of building from page 16 of the file '2026-03-26 - UDRP Presentation Drawing Set - D02-02-23-0056'
  • Rendering of building from page 17 of the file '2026-03-26 - UDRP Presentation Drawing Set - D02-02-23-0056'
  • Rendering of building from page 7 of the file '2024-07-23 - UDRP Design Brief - D02-02-23-0056'
  • Rendering of building from page 8 of the file '2026-03-26 - UDRP Presentation Drawing Set - D02-02-23-0056'
  • Rendering of building from page 9 of the file '2026-03-26 - UDRP Presentation Drawing Set - D02-02-23-0056'
  • Rendering of building from page 8 of the file '2026-03-26 - UDRP Presentation Drawing Set - D02-02-23-0056'
  • Rendering of building from page 9 of the file '2026-03-26 - UDRP Presentation Drawing Set - D02-02-23-0056'
  • Rendering of building from page 8 of the file '2026-03-26 - UDRP Presentation Drawing Set - D02-02-23-0056'

Location#

Select a marker to view the address.

Site Plans, Elevations and Floor Plans#

  • Image from page 9 of the file '2026-03-26 - UDRP Presentation Drawing Set - D02-02-23-0056'
  • Image from page 9 of the file '2026-03-26 - UDRP Presentation Drawing Set - D02-02-23-0056'
  • Image from page 32 of the file '2024-07-23 - UDRP Design Brief - D02-02-23-0056'
  • Image from page 37 of the file '2026-03-26 - UDRP Presentation Drawing Set - D02-02-23-0056'
  • Image from page 34 of the file '2026-03-26 - UDRP Presentation Drawing Set - D02-02-23-0056'
  • Image from page 29 of the file '2024-07-23 - UDRP Design Brief - D02-02-23-0056'
  • Image from page 9 of the file '2026-03-26 - UDRP Presentation Drawing Set - D02-02-23-0056'
  • Image from page 36 of the file '2026-03-26 - UDRP Presentation Drawing Set - D02-02-23-0056'
  • Image from page 36 of the file '2026-03-26 - UDRP Presentation Drawing Set - D02-02-23-0056'
  • Image from page 31 of the file '2024-07-23 - UDRP Design Brief - D02-02-23-0056'
  • Image from page 32 of the file '2024-07-23 - UDRP Design Brief - D02-02-23-0056'
  • Image from page 31 of the file '2024-07-23 - UDRP Design Brief - D02-02-23-0056'
  • Image from page 37 of the file '2026-03-26 - UDRP Presentation Drawing Set - D02-02-23-0056'
  • Image from page 33 of the file '2024-07-23 - UDRP Design Brief - D02-02-23-0056'
  • Image from page 35 of the file '2026-03-26 - UDRP Presentation Drawing Set - D02-02-23-0056'
  • Image from page 35 of the file '2026-03-26 - UDRP Presentation Drawing Set - D02-02-23-0056'
  • Image from page 28 of the file '2024-07-23 - UDRP Design Brief - D02-02-23-0056'
  • Image from page 12 of the file '2023-06-15 - Floor Plans - D02-02-23-0056'
  • Image from page 8 of the file '2023-06-15 - Floor Plans - D02-02-23-0056'
  • Image from page 30 of the file '2024-07-23 - UDRP Design Brief - D02-02-23-0056'
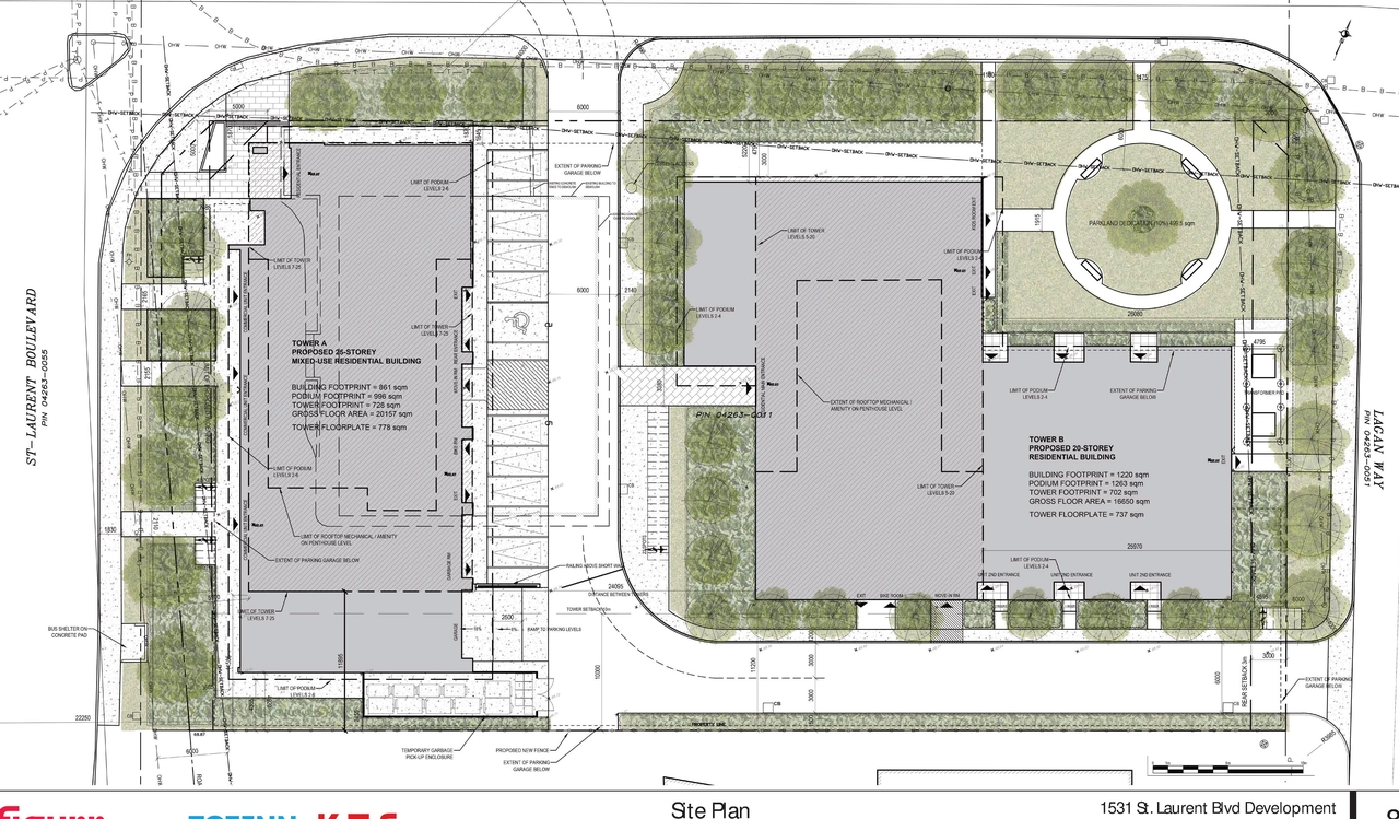
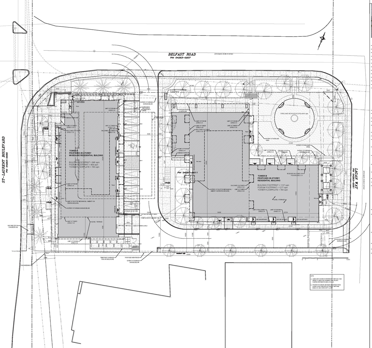
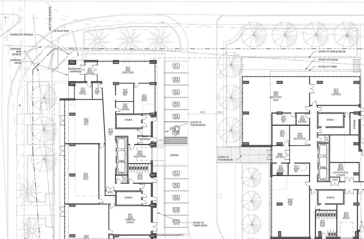
  • Construction site plan for project from page 11 of the file '2026-03-26 - UDRP Presentation Drawing Set - D02-02-23-0056'
  • Construction site plan for project from page 10 of the file '2026-03-26 - UDRP Presentation Drawing Set - D02-02-23-0056'
  • Construction site plan for project from page 8 of the file '2024-07-23 - UDRP Design Brief - D02-02-23-0056'
  • Construction site plan for project from page 34 of the file '2024-07-23 - UDRP Design Brief - D02-02-23-0056'
  • Construction site plan for project from page 10 of the file '2024-07-23 - UDRP Design Brief - D02-02-23-0056'
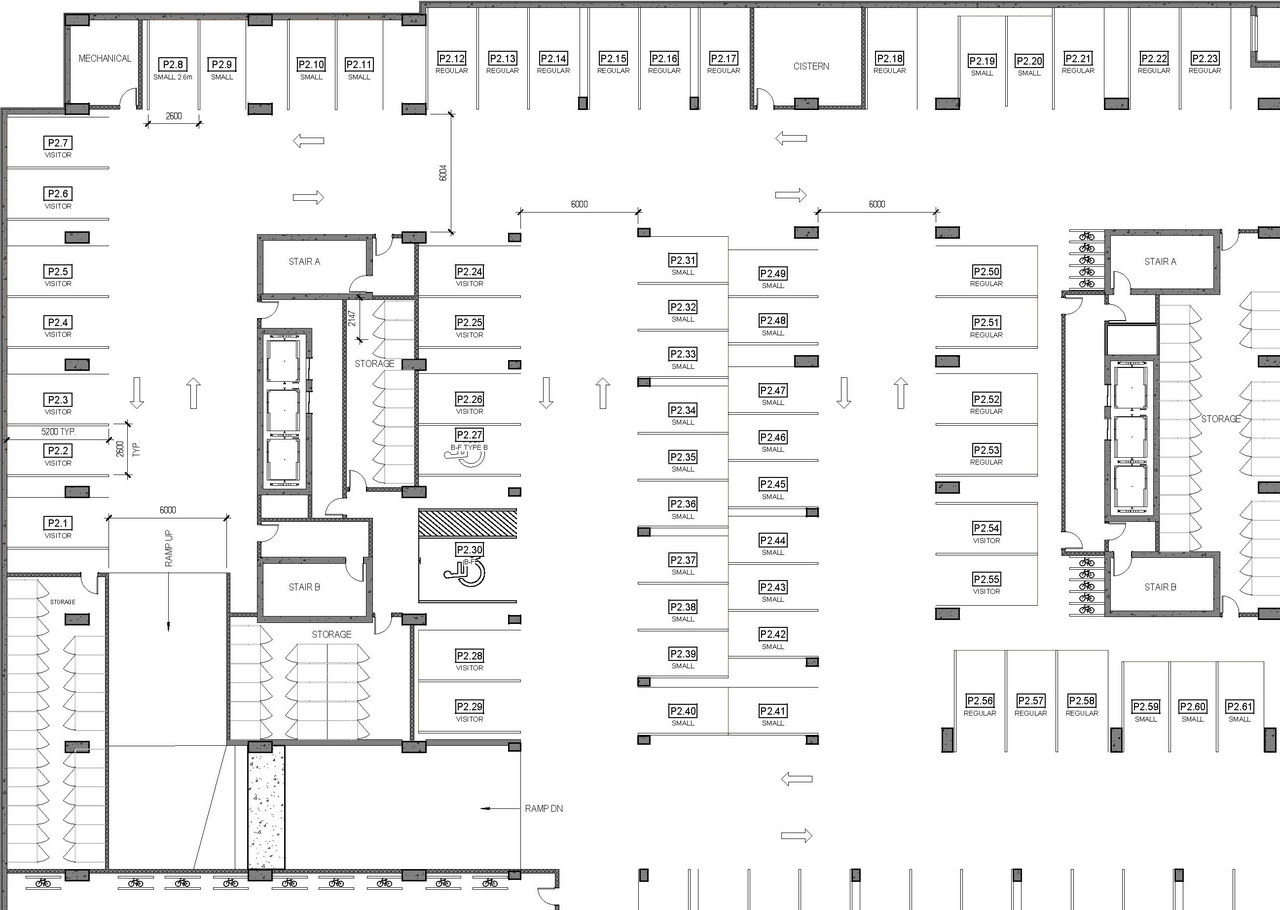
  • Construction site plan for project from page 3 of the file '2024-07-23 - Parking & Floor Plans - D02-02-23-0056'
  • Construction site plan for project from page 20 of the file '2024-07-23 - UDRP Design Brief - D02-02-23-0056'
  • Construction site plan for project from page 4 of the file '2024-07-23 - UDRP Design Brief - D02-02-23-0056'
  • Construction site plan for project from page 5 of the file '2023-06-15 - Floor Plans - D02-02-23-0056'
  • Construction site plan for project from page 6 of the file '2023-06-15 - Floor Plans - D02-02-23-0056'
  • Construction site plan for project from page 9 of the file '2024-07-23 - UDRP Design Brief - D02-02-23-0056'
  • Construction site plan for project from page 4 of the file '2026-03-26 - UDRP Presentation Drawing Set - D02-02-23-0056'
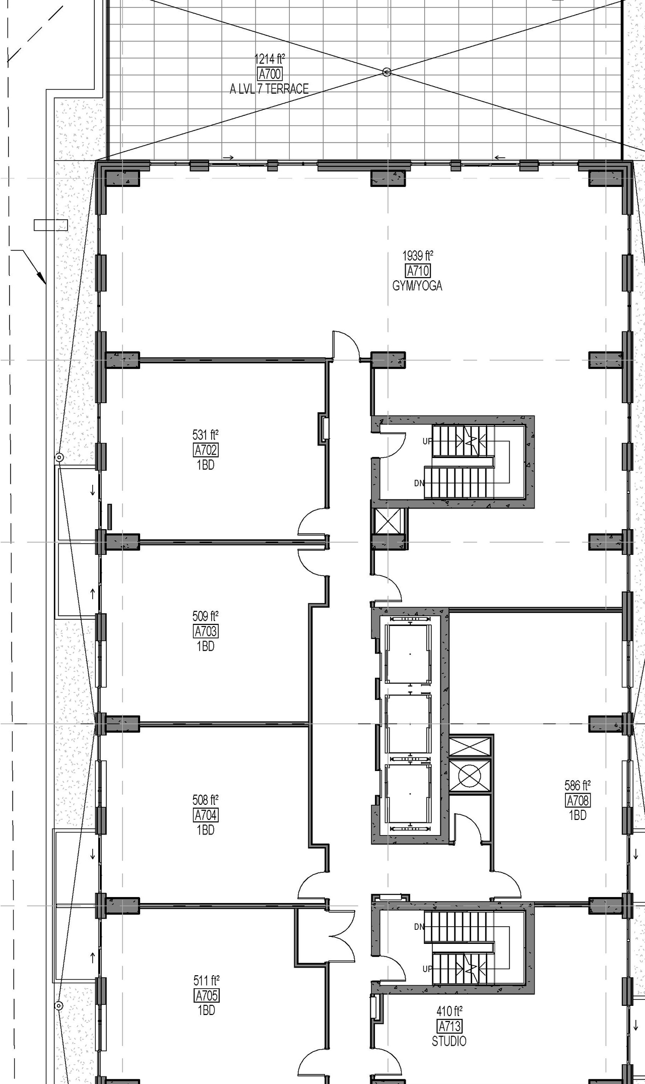
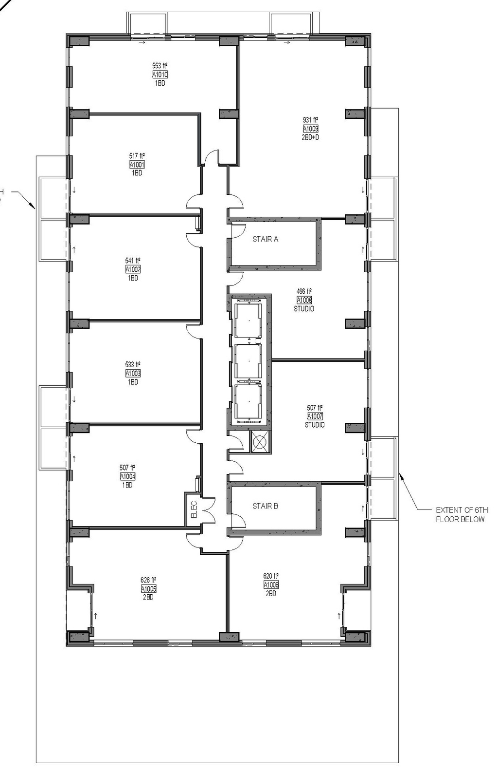
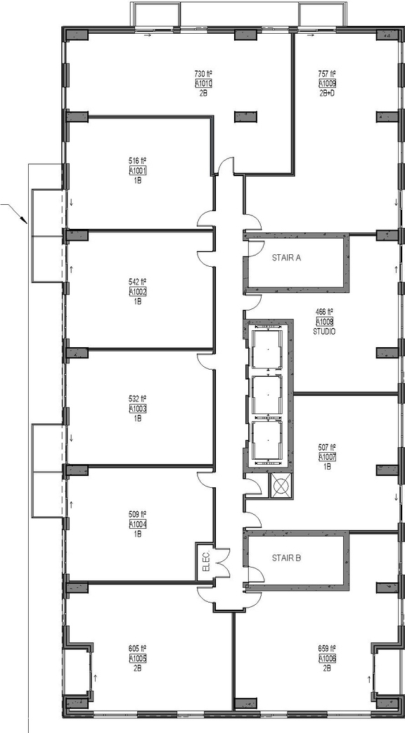
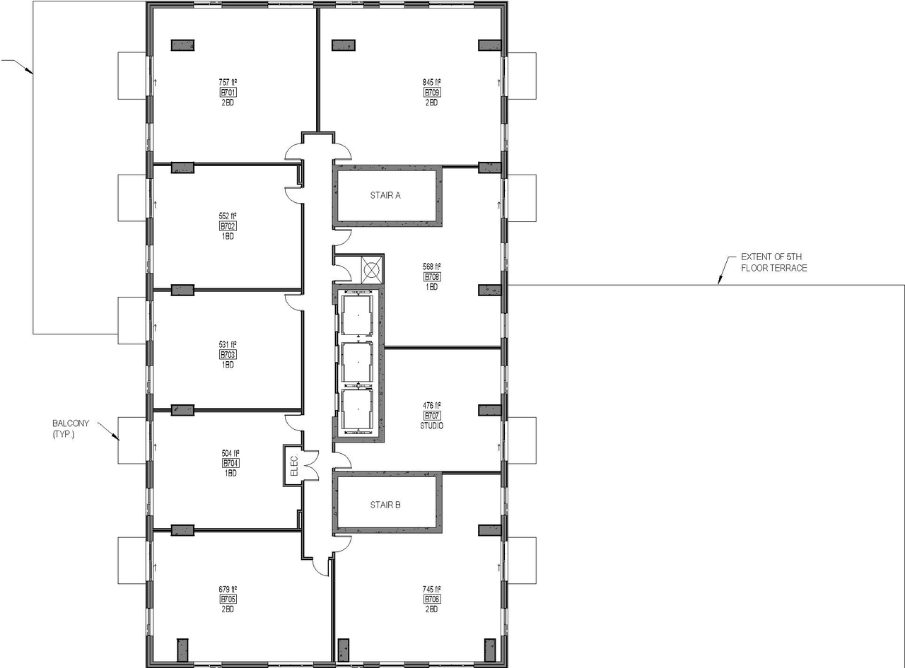
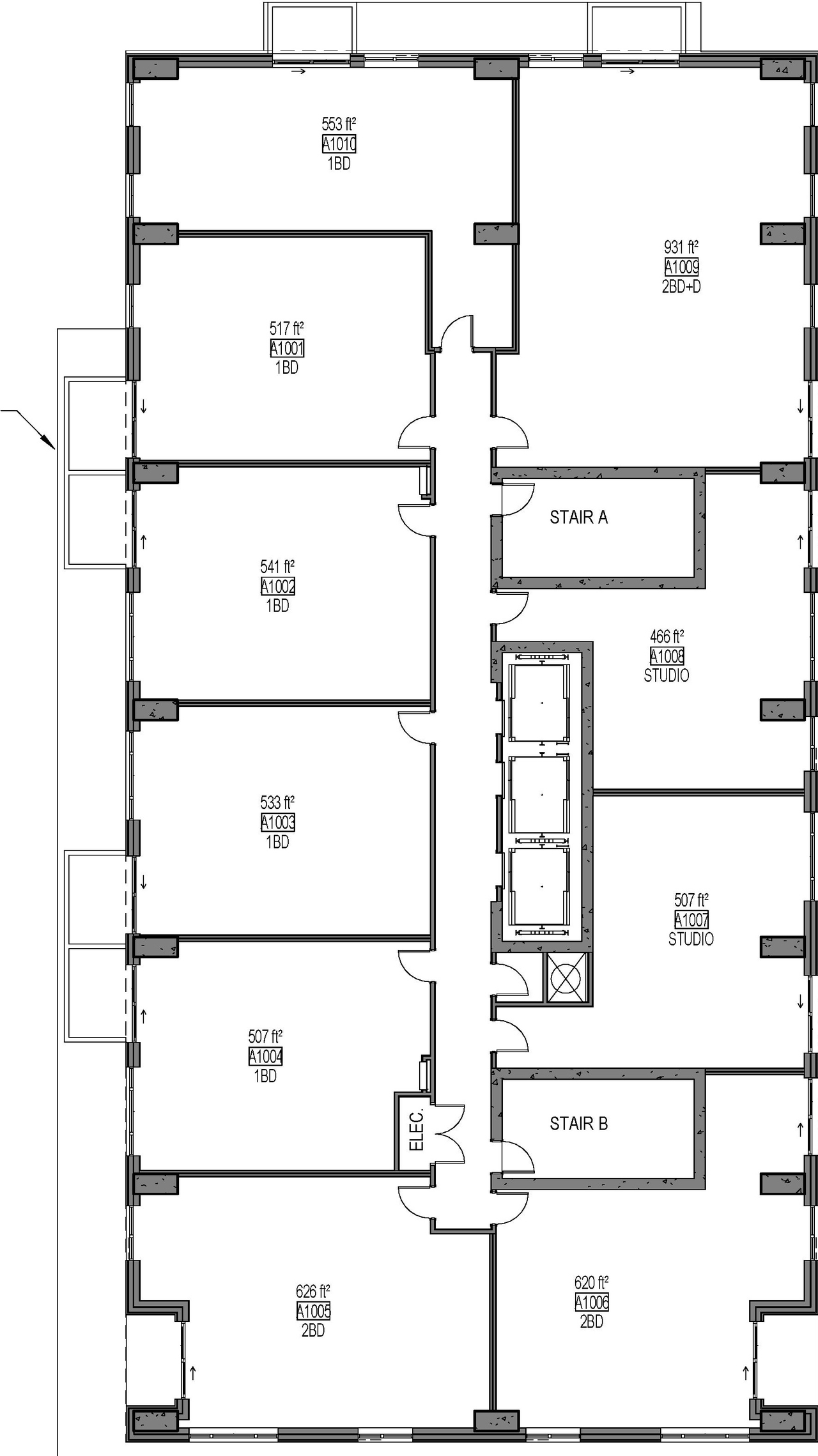
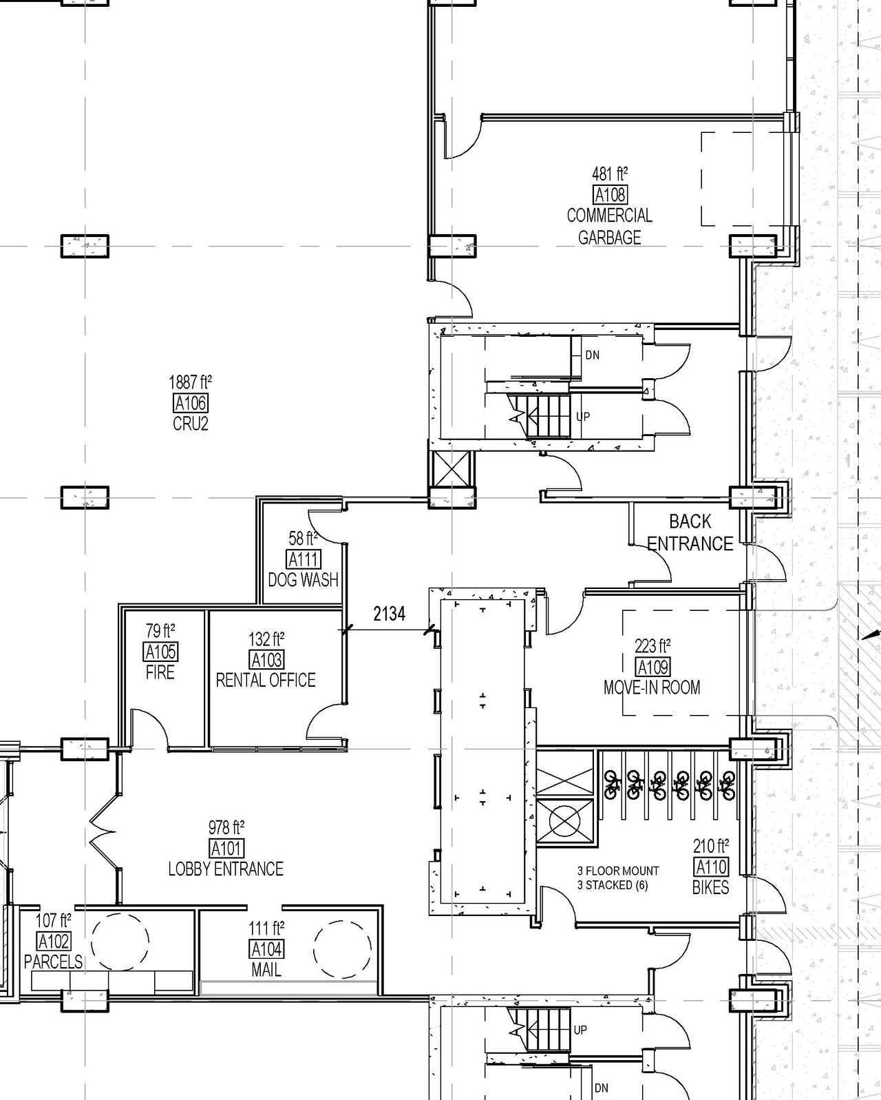
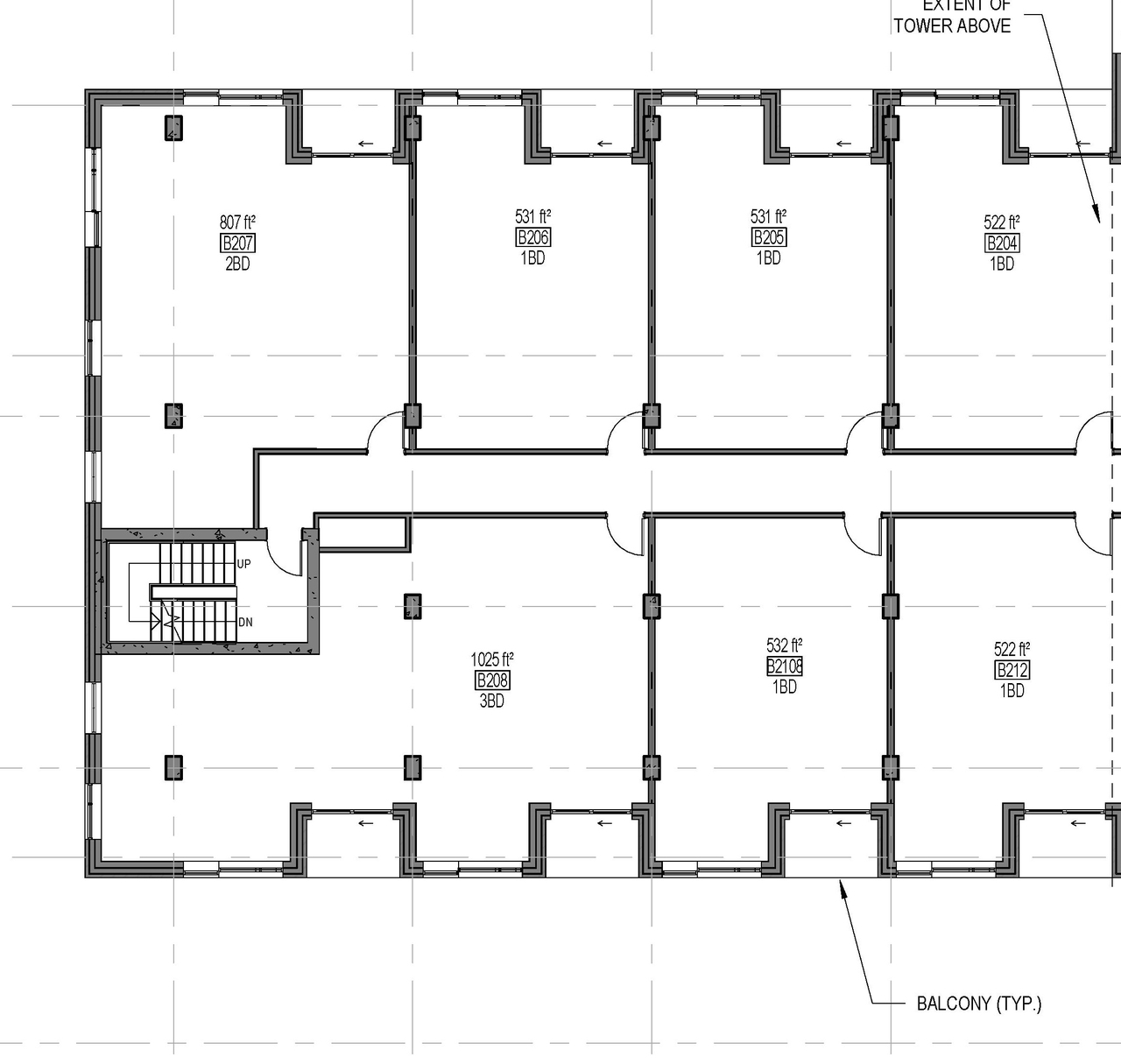
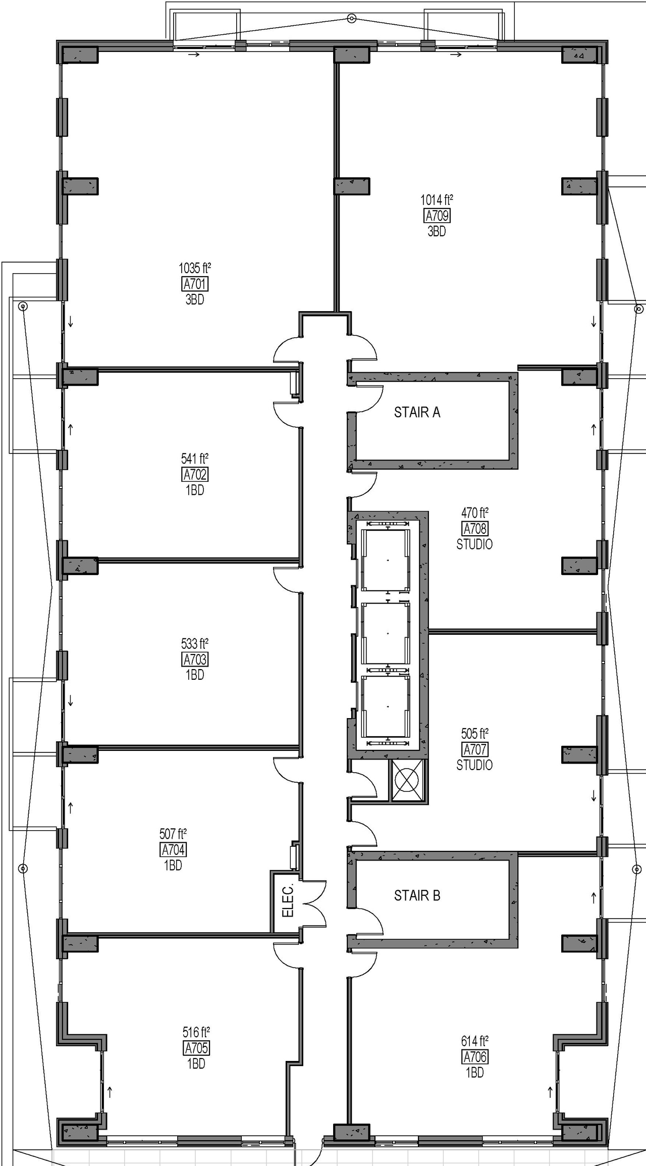
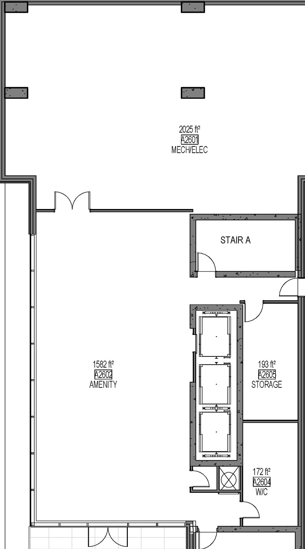
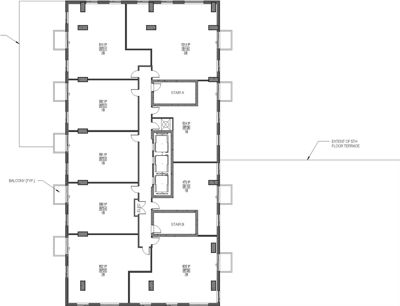
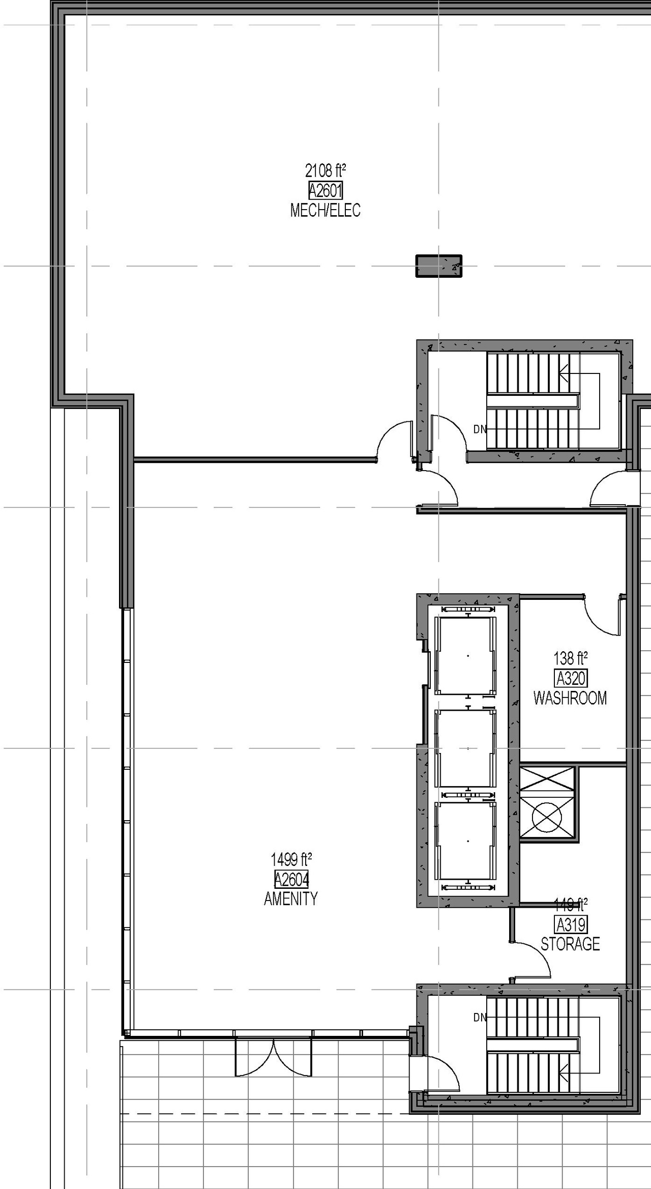
  • Floor plan for project from page 21 of the file '2026-03-26 - UDRP Presentation Drawing Set - D02-02-23-0056'
  • Floor plan for project from page 13 of the file '2023-06-15 - Floor Plans - D02-02-23-0056'
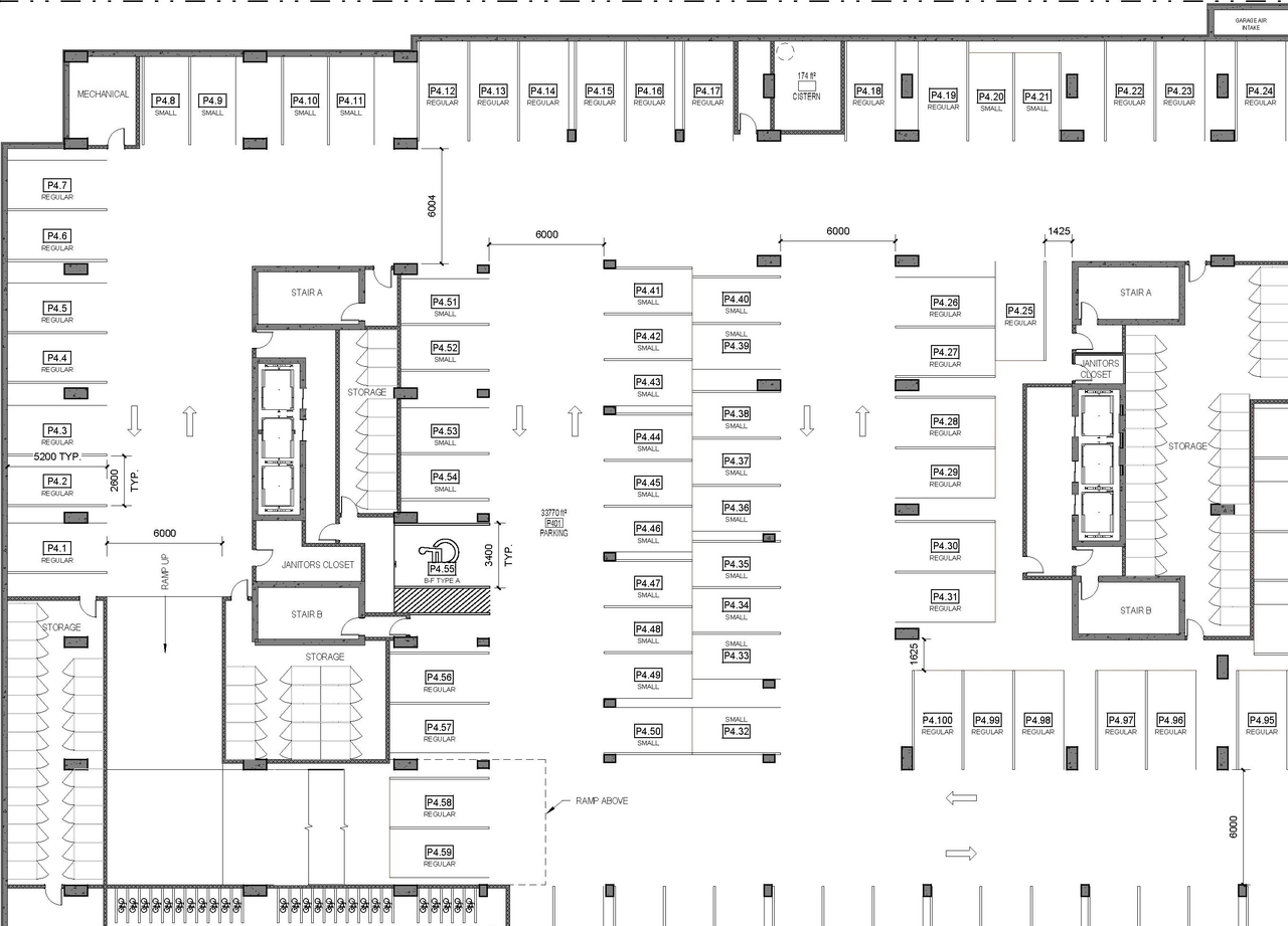
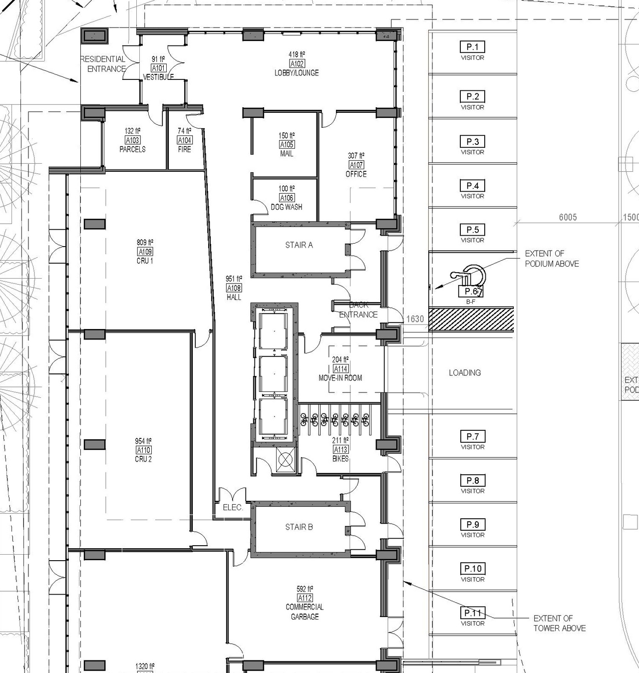
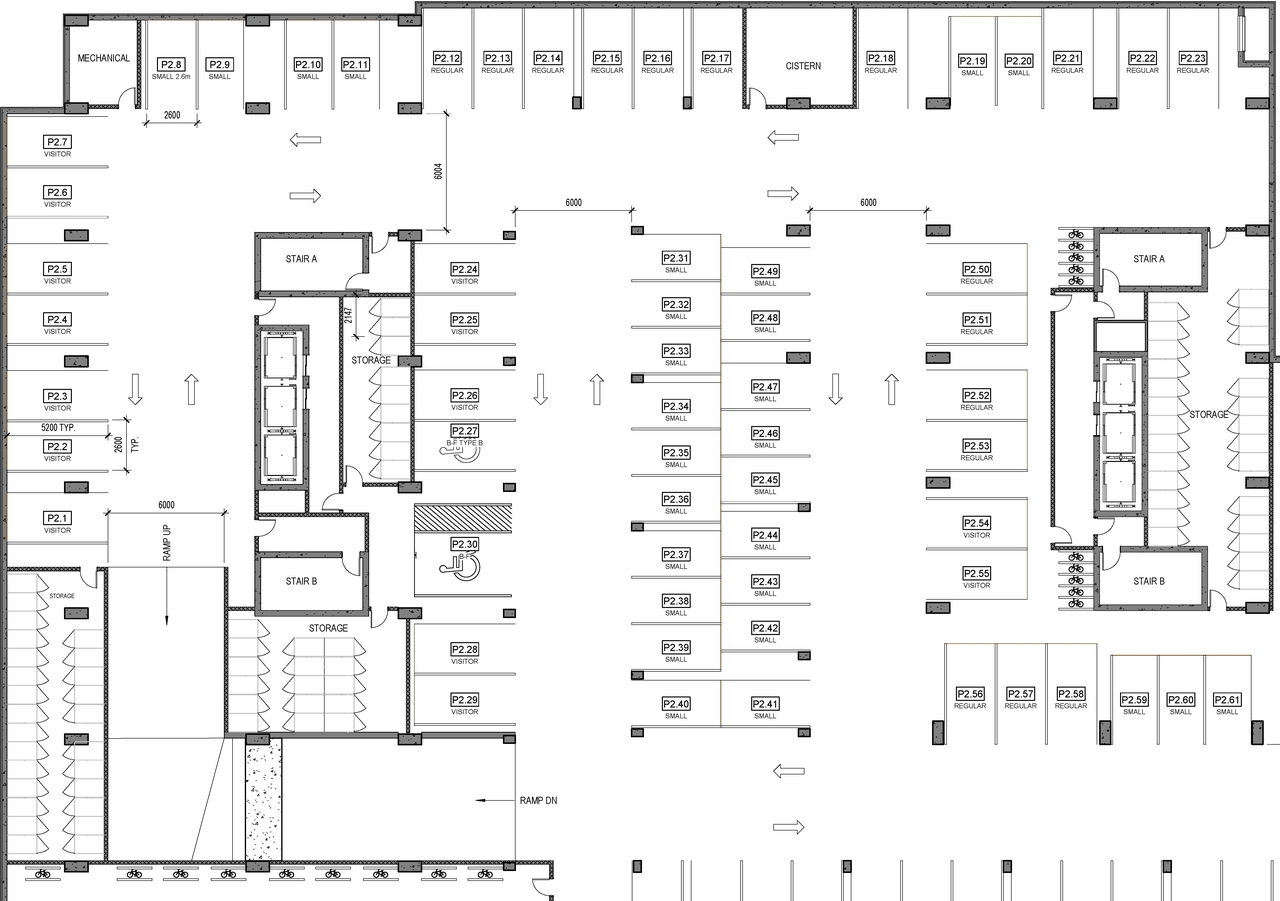
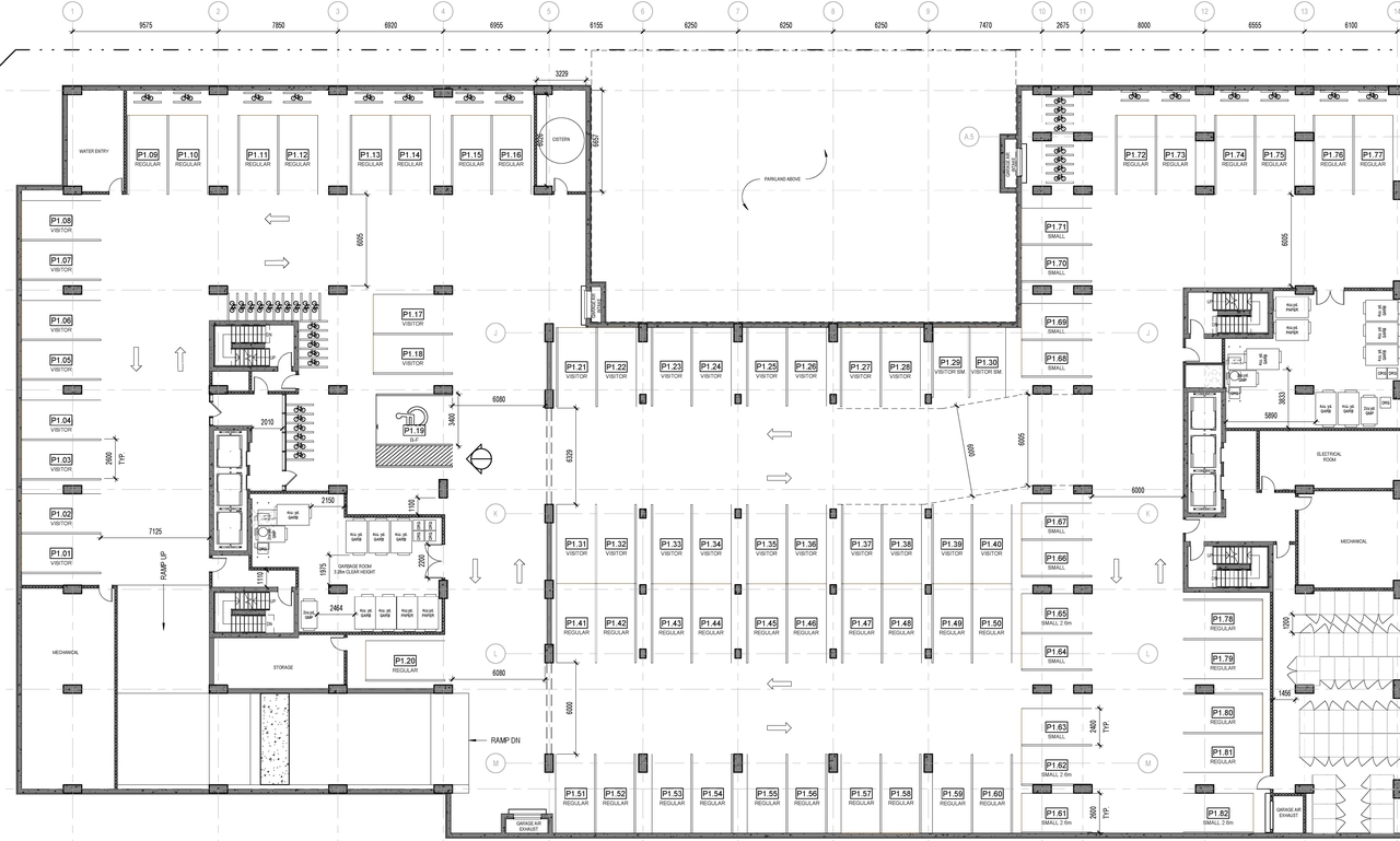
  • Floor plan for project from page 1 of the file '2024-07-23 - Parking & Floor Plans - D02-02-23-0056'
  • Floor plan for project from page 5 of the file '2024-07-23 - Parking & Floor Plans - D02-02-23-0056'
  • Floor plan for project from page 4 of the file '2023-06-15 - Floor Plans - D02-02-23-0056'
  • Floor plan for project from page 18 of the file '2024-07-23 - UDRP Design Brief - D02-02-23-0056'
  • Floor plan for project from page 8 of the file '2023-06-15 - Floor Plans - D02-02-23-0056'
  • Floor plan for project from page 8 of the file '2024-07-23 - Parking & Floor Plans - D02-02-23-0056'
  • Floor plan for project from page 7 of the file '2024-07-23 - Parking & Floor Plans - D02-02-23-0056'
  • Floor plan for project from page 25 of the file '2026-03-26 - UDRP Presentation Drawing Set - D02-02-23-0056'
  • Floor plan for project from page 7 of the file '2023-06-15 - Floor Plans - D02-02-23-0056'
  • Floor plan for project from page 9 of the file '2023-06-15 - Floor Plans - D02-02-23-0056'
  • Floor plan for project from page 11 of the file '2024-07-23 - Parking & Floor Plans - D02-02-23-0056'
  • Floor plan for project from page 10 of the file '2023-06-15 - Floor Plans - D02-02-23-0056'
  • Floor plan for project from page 31 of the file '2026-03-26 - UDRP Presentation Drawing Set - D02-02-23-0056'
  • Floor plan for project from page 29 of the file '2026-03-26 - UDRP Presentation Drawing Set - D02-02-23-0056'
  • Floor plan for project from page 25 of the file '2024-07-23 - UDRP Design Brief - D02-02-23-0056'
  • Floor plan for project from page 9 of the file '2024-07-23 - Parking & Floor Plans - D02-02-23-0056'
  • Floor plan for project from page 12 of the file '2023-06-15 - Floor Plans - D02-02-23-0056'
  • Floor plan for project from page 28 of the file '2026-03-26 - UDRP Presentation Drawing Set - D02-02-23-0056'
  • Floor plan for project from page 26 of the file '2026-03-26 - UDRP Presentation Drawing Set - D02-02-23-0056'
  • Floor plan for project from page 24 of the file '2024-07-23 - UDRP Design Brief - D02-02-23-0056'
  • Floor plan for project from page 4 of the file '2024-07-23 - Parking & Floor Plans - D02-02-23-0056'
  • Floor plan for project from page 5 of the file '2024-07-23 - Parking & Floor Plans - D02-02-23-0056'
  • Floor plan for project from page 21 of the file '2024-07-23 - UDRP Design Brief - D02-02-23-0056'
  • Image from page 9 of the file '2026-03-26 - UDRP Presentation Drawing Set - D02-02-23-0056'
  • Image from page 9 of the file '2026-03-26 - UDRP Presentation Drawing Set - D02-02-23-0056'
  • Image from page 32 of the file '2024-07-23 - UDRP Design Brief - D02-02-23-0056'
  • Image from page 37 of the file '2026-03-26 - UDRP Presentation Drawing Set - D02-02-23-0056'
  • Image from page 34 of the file '2026-03-26 - UDRP Presentation Drawing Set - D02-02-23-0056'
  • Image from page 29 of the file '2024-07-23 - UDRP Design Brief - D02-02-23-0056'
  • Image from page 9 of the file '2026-03-26 - UDRP Presentation Drawing Set - D02-02-23-0056'
  • Image from page 36 of the file '2026-03-26 - UDRP Presentation Drawing Set - D02-02-23-0056'
  • Image from page 36 of the file '2026-03-26 - UDRP Presentation Drawing Set - D02-02-23-0056'
  • Image from page 31 of the file '2024-07-23 - UDRP Design Brief - D02-02-23-0056'
  • Image from page 32 of the file '2024-07-23 - UDRP Design Brief - D02-02-23-0056'
  • Image from page 31 of the file '2024-07-23 - UDRP Design Brief - D02-02-23-0056'
  • Image from page 37 of the file '2026-03-26 - UDRP Presentation Drawing Set - D02-02-23-0056'
  • Image from page 33 of the file '2024-07-23 - UDRP Design Brief - D02-02-23-0056'
  • Image from page 35 of the file '2026-03-26 - UDRP Presentation Drawing Set - D02-02-23-0056'
  • Image from page 35 of the file '2026-03-26 - UDRP Presentation Drawing Set - D02-02-23-0056'
  • Image from page 28 of the file '2024-07-23 - UDRP Design Brief - D02-02-23-0056'
  • Image from page 12 of the file '2023-06-15 - Floor Plans - D02-02-23-0056'
  • Image from page 8 of the file '2023-06-15 - Floor Plans - D02-02-23-0056'
  • Image from page 30 of the file '2024-07-23 - UDRP Design Brief - D02-02-23-0056'
  • Construction site plan for project from page 11 of the file '2026-03-26 - UDRP Presentation Drawing Set - D02-02-23-0056'
  • Construction site plan for project from page 10 of the file '2026-03-26 - UDRP Presentation Drawing Set - D02-02-23-0056'
  • Construction site plan for project from page 8 of the file '2024-07-23 - UDRP Design Brief - D02-02-23-0056'
  • Construction site plan for project from page 34 of the file '2024-07-23 - UDRP Design Brief - D02-02-23-0056'
  • Construction site plan for project from page 10 of the file '2024-07-23 - UDRP Design Brief - D02-02-23-0056'
  • Construction site plan for project from page 3 of the file '2024-07-23 - Parking & Floor Plans - D02-02-23-0056'
  • Construction site plan for project from page 20 of the file '2024-07-23 - UDRP Design Brief - D02-02-23-0056'
  • Construction site plan for project from page 4 of the file '2024-07-23 - UDRP Design Brief - D02-02-23-0056'
  • Construction site plan for project from page 5 of the file '2023-06-15 - Floor Plans - D02-02-23-0056'
  • Construction site plan for project from page 6 of the file '2023-06-15 - Floor Plans - D02-02-23-0056'
  • Construction site plan for project from page 9 of the file '2024-07-23 - UDRP Design Brief - D02-02-23-0056'
  • Construction site plan for project from page 4 of the file '2026-03-26 - UDRP Presentation Drawing Set - D02-02-23-0056'
  • Floor plan for project from page 21 of the file '2026-03-26 - UDRP Presentation Drawing Set - D02-02-23-0056'
  • Floor plan for project from page 13 of the file '2023-06-15 - Floor Plans - D02-02-23-0056'
  • Floor plan for project from page 1 of the file '2024-07-23 - Parking & Floor Plans - D02-02-23-0056'
  • Floor plan for project from page 5 of the file '2024-07-23 - Parking & Floor Plans - D02-02-23-0056'
  • Floor plan for project from page 4 of the file '2023-06-15 - Floor Plans - D02-02-23-0056'
  • Floor plan for project from page 18 of the file '2024-07-23 - UDRP Design Brief - D02-02-23-0056'
  • Floor plan for project from page 8 of the file '2023-06-15 - Floor Plans - D02-02-23-0056'
  • Floor plan for project from page 8 of the file '2024-07-23 - Parking & Floor Plans - D02-02-23-0056'
  • Floor plan for project from page 7 of the file '2024-07-23 - Parking & Floor Plans - D02-02-23-0056'
  • Floor plan for project from page 25 of the file '2026-03-26 - UDRP Presentation Drawing Set - D02-02-23-0056'
  • Floor plan for project from page 7 of the file '2023-06-15 - Floor Plans - D02-02-23-0056'
  • Floor plan for project from page 9 of the file '2023-06-15 - Floor Plans - D02-02-23-0056'
  • Floor plan for project from page 11 of the file '2024-07-23 - Parking & Floor Plans - D02-02-23-0056'
  • Floor plan for project from page 10 of the file '2023-06-15 - Floor Plans - D02-02-23-0056'
  • Floor plan for project from page 31 of the file '2026-03-26 - UDRP Presentation Drawing Set - D02-02-23-0056'
  • Floor plan for project from page 29 of the file '2026-03-26 - UDRP Presentation Drawing Set - D02-02-23-0056'
  • Floor plan for project from page 25 of the file '2024-07-23 - UDRP Design Brief - D02-02-23-0056'
  • Floor plan for project from page 9 of the file '2024-07-23 - Parking & Floor Plans - D02-02-23-0056'
  • Floor plan for project from page 12 of the file '2023-06-15 - Floor Plans - D02-02-23-0056'
  • Floor plan for project from page 28 of the file '2026-03-26 - UDRP Presentation Drawing Set - D02-02-23-0056'
  • Floor plan for project from page 26 of the file '2026-03-26 - UDRP Presentation Drawing Set - D02-02-23-0056'
  • Floor plan for project from page 24 of the file '2024-07-23 - UDRP Design Brief - D02-02-23-0056'
  • Floor plan for project from page 4 of the file '2024-07-23 - Parking & Floor Plans - D02-02-23-0056'
  • Floor plan for project from page 5 of the file '2024-07-23 - Parking & Floor Plans - D02-02-23-0056'
  • Floor plan for project from page 21 of the file '2024-07-23 - UDRP Design Brief - D02-02-23-0056'

Additional Information#

Date Initiated2023-06-15
WardWard 18 - Marty Carr

Documents#

TypeDocument
Application Summary2023-07-05 - Application Summary - D02-02-23-0056
Architectural Plans2024-07-23 - Site Plan - D02-02-23-0056
Architectural Plans2024-07-23 - Site Grading, Drainage & Erosion & Sediment Control Plan - D02-02-23-0056
Architectural Plans2024-07-23 - Section Plan - D02-02-23-0056
Architectural Plans2024-07-23 - Elevations - D02-02-23-0056
Architectural Plans2023-06-15 - Site Plan - D02-02-23-0056
Architectural Plans2023-06-15 - Site Grading, Drainage and Erosion and Sediment Control Plan - D02-02-23-0056
Architectural Plans2023-06-15 - Sections Plan - D02-02-23-0056
Architectural Plans2023-06-15 - Elevations - D02-02-23-0056
Architectural Plans2026-03-26 - Site Servicing Plan - D02-02-23-0056
Architectural Plans2026-03-26 - Site Plan - D02-02-23-0056
Architectural Plans2026-03-26 - Site Grading Drainage Erosion & Sediment Control Plan - D02-02-23-0056
Architectural Plans2026-03-26 - Parking Plan - D02-02-23-0056
Architectural Plans2026-03-26 - Landscape Plan - D02-02-23-0056
Design Brief2024-07-23 - UDRP Design Brief - D02-02-23-0056
Design Brief2026-03-26 - UDRP Presentation Drawing Set - D02-02-23-0056
Environmental2023-06-15 - Phase I Environmental Site Assessment - D02-02-23-0056
Floor Plan2024-07-23 - Parking & Floor Plans - D02-02-23-0056
Floor Plan2023-06-15 - Floor Plans - D02-02-23-0056
Geotechnical Report2023-06-30 - Geotechnical Investigation - D02-02-23-0056
Geotechnical Report2023-06-15 - Geotechnical Investigation - D02-02-23-0056
Landscape Plan2024-07-23 - Landscape Plan - D02-02-23-0056
Landscape Plan2023-06-15 - Landscape Plan -D02-02-23-0056
Noise Study2024-07-23 - Transportation Noise Assessment - D02-02-23-0056
Noise Study2023-06-15 - Transportation Noise Assessment - D02-02-23-0056
Planning2023-06-15 - Planning Rationale - D02-02-23-0056
Shadow Study2024-07-23 - Shadow Studies - D02-02-23-0056
Shadow Study2023-06-15 - Shadow studies - D02-02-23-0056
Site Servicing2024-07-23 - Site Servicing Plan - D02-02-23-0056
Site Servicing2024-07-23 - Servicing & SWM Report - D02-02-23-0056
Site Servicing2023-06-15 - Site Servicing Plan - D02-02-23-0056
Site Servicing2023-06-15 - Servicing and Stormwater Management Report -D02-02-23-0056
Stormwater Management2026-03-26 - Servicing & Stormwater Management Report - D02-02-23-0056
Surveying2023-06-15 - Topographic Plan of Survey - D02-02-23-0056
Transportation Analysis2024-07-23 - TIA Strategy Report - D02-02-23-0056
Transportation Analysis2023-06-15 - Transportation Impact Assessment - D02-02-23-0056
Tree Information and Conservation2023-06-15 - Tree Conservation Report Letter - D02-02-23-0056
Tree Information and Conservation2026-03-26 - Tree Conservation Report - D02-02-23-0056
Wind Study2024-07-23 - Wind Study - D02-02-23-0056
Wind Study2023-06-15 - Pedestrian Level Wind Study - D02-02-23-0056
2024-07-23 - Supplemental Phase II ESA - D02-02-23-0056
2024-07-23 - Phase I & II ESA - D02-02-23-0056
2023-06-15 - Presentation - D02-02-23-0056
2026-03-26 - Cover Letter - D02-02-23-0056