352 Somerset St.#
Last updated: 2023-10-18 · ID: D02-02-23-0036
Summary#
This is a minor zoning amendment for: 1 - Bicycle parking spaces by law requires 0.50 per unit apartment building-low rise) and 1 per 250M2 of gross floor area (retail) By-law requires 7 bicycle parking residential and 3.35 bicycle parking retail. Amendment to reduce to zero. 2 - Amenity area by law requires 6M2 per unit mixed use buildings reduction of amenity area required foe 14 units from 84M2 to Zero.
Status
Inactive (Zoning By-law in Effect)
Building Scale (Max.)
Based on elevation drawings. Values may be approximate. See sources for exact figures.
Low-rise · 3 storeys
Data Quality Note
Text was extracted using optical character recognition. This may introduce artifacts or misreads.
Location#
Select a marker to view the address.
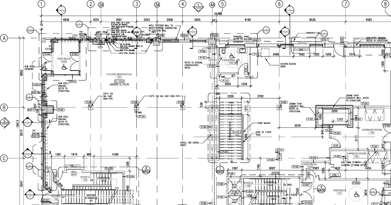
Site Plans, Elevations and Floor Plans#
Additional Information#
| Date Initiated | 2023-05-03 |
| Ward | Ward 14 - Ariel Troster |
Documents#
Related Projects#
| Project | Last Updated | Date Initiated |
|---|---|---|
352 Somerset St.
D07-12-22-0003 | 2025-05-05 | 2022-01-13 |
352 Somerset St.
D09-04-23-0030 | 2023-10-23 | 2023-06-14 |




