1184-1196 Cummings Ave.#
Last updated: 2023-08-14 · ID: D02-02-23-0031
Summary#
Seeking to develop the subject site with a six (6) storey mid-rise building consisting of 188 dwelling units.
Status
Inactive (Zoning By-law in Effect)
Building Scale (Max.)
Based on elevation drawings. Values may be approximate. See sources for exact figures.
Mid-rise · 6 storeys
· 22.8 m
Renders#
Location#
Select a marker to view the address.
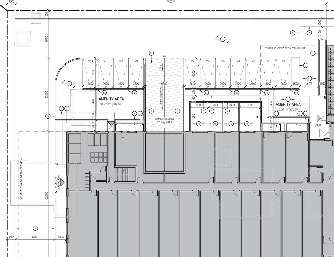
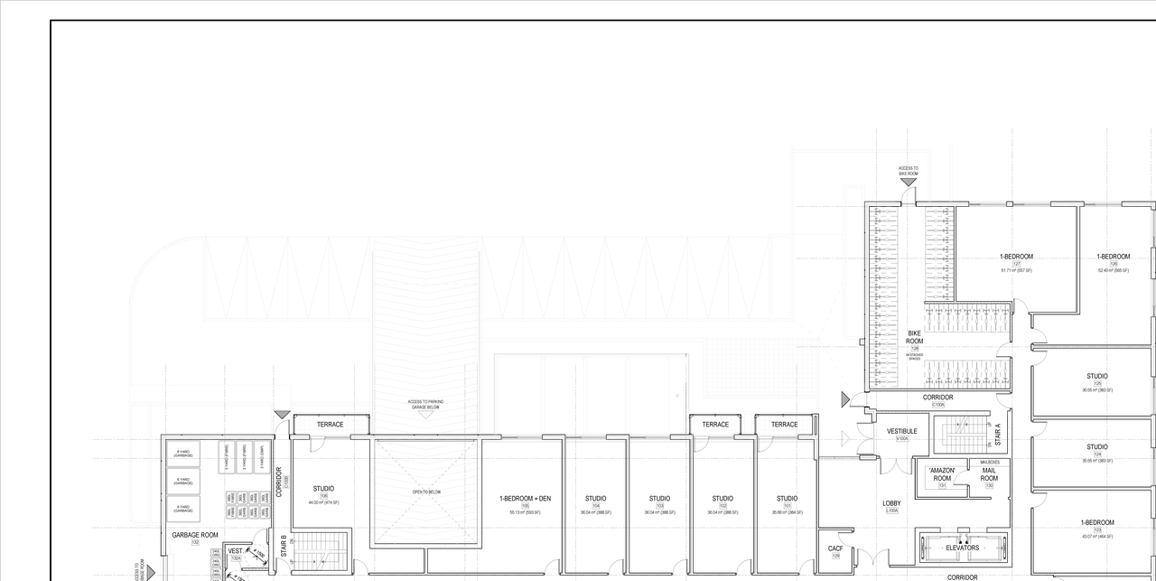
Site Plans, Elevations and Floor Plans#
Additional Information#
| Date Initiated | 2023-04-18 |
| Ward | Ward 11 - Tim Tierney |
| All Addresses | 1184 Cummings Ave. 1188 Cummings Ave. 1196 Cummings Ave. |






























